[히마와리] 왕십리에 핀 해바라기

오사카식 철판 요리 주점 히마와리의 컨셉, 공간 디자인 이야기

by Studio Mountain


부담 없이 운영할 수 있는 나만의 작은 아지트



시작한 계기


오사카 출신의 교포인 20대 중반 젊은 클라이언트는 패션에 관심이 많고 섬세함도 갖고 있었지만, 누구에게나 붙임성있게 대해 호감을 사는 활발한 성격의 소유자였습니다. 그는 한국과 일본을 오고 가며 연예인들을 현지에 연결해주는 엔터테인먼트 에이젼시 일을 하고 있었습니다. 클라이언트는 중요한 손님들을 응대하는 아지트 겸 술집을 자신의 집 근처인 왕십리에 열고 싶어했습니다. 일본에서 즐겨 먹던 오사카식 철판요리와 술과 함께 즐길 수 있는 이자까야 컨셉의 매장을 원했으며, 직접 오사카에서 솜씨 좋은 요리사를 데려오기로 했습니다.


클라이언트는 상업공간으로써의 브랜딩과 마케팅에 큰 비중을 두기 보단 상권 유동인구에서 나오는 고정 매출에 관심이 많았으며, 자신의 라이프스타일 패턴에 맞게 매장 또한 탄력적으로 운영하기를 바랐습니다.


모든 브랜딩이 한가지 방식으로 갈 수는 없습니다. 클라이언트에게 맞는 브랜드를 입히는 것, 그리고 그 안에서 여러가지 디테일을 결정하는 방식으로 진행하기로 했습니다. 이번 프로젝트는 공간 디자인에 중점를 두고 진행된 프로젝트였습니다.


IMG_1665.jpg



술 한잔을 위한 골목



상권분석


클라이언트가 가계약을 한 점포는 8평이 채 안되는 좁은 공간으로 성동구청 뒷편 먹자골목길에 위치하고 있었습니다. 점포 주변의 주요 유동 인구는 젊은 층보다는 30-50대의 비중이 높았고, 저녁 겸 술 한잔 할 수 있는 식당을 찾아서 오는 것이었습니다. 기존 유동인구층 외에 이 먹자골목길에 올만한 잠재고객 (= 젊은층)을 매장으로 유입시키는 것이 중요해 보였습니다. 다른 점포들과 시각적으로 차별화가된다면 매장이 위치한 상권에서 충분히 고정 단골들을 확보하고, 잠재고객도 유입시킬 수 있다는 판단이 들었습니다.



사진 복사본.JPG 가계약 해 놓은 점포 사진.
DSCN8114.JPG 내부사진. 철거 시 층고는 3.5m로 높았으나 전체공간은 8평.




해바라기를 좋아하는 클라이언트



브랜드 컨셉

해바라기를 의미하는 일본어 히마와리

자신만의 아지트 겸 술집을 열고 싶어했던 클라이언트의 목적에 맞게, 공간의 이름도 클라이언트가 가장 좋아하는 꽃인 해바라기의 일본어 히마와리로 결정 되었습니다. 오사카 철판 요리와 현지에서 직접 온 요리사라는 오리지널리티는 클라이언트 자신이 애착을 가지고 있는 할머니 유품인 도기 그릇과 함께 아기자기한 플레이팅으로 디테일을 보여주고자 했습니다. 이 도기 그릇들은 주로 꽃 모티브의 장식이 들어간 그릇들인데, 매장 이름과도 자연스럽게 연결이 되어 브랜드 컨셉으로 작용하게 되었습니다.



꽃무늬가 들어가 있는 클라이언트의 도기 그릇
















그리드로 풀어 낸 브랜드 아이덴티티



로고 디자인

브랜드의 영문 표기와 세로 배열의 국문 텍스트를 통해 일본어의 느낌을 전달

히마와리 로고타입은 일본어 - 영어 - 한국어를 혼용하여 일본의 오리지널리티와 영어 로고에서 전달되는 모던함, 정보 전달이 쉬운 한국어의 기능들을 적절히 활용하였습니다. 텍스트의 가로 + 세로 배열의 그리드는 일본 오리지널리티를 살리는 방식으로 기능할 수 있다고 판단했습니다. 같은 이유로 메인 사이니지와 명판에 일본어를 함께 표기하는 방식도 같이 사용했습니다.


영어 메인 로고타입에 한글을 세로로 함께 병용한 이유는 상권과 타겟 특성상 일본어만 표기 했을시에 위화감을 느낄 수 있다고 생각했기 때문입니다.






IMG_1601.jpg




심리적 부담감을 줄여주는 전략



가격 전략과 보여주기 효과


시각적으로 어수선한 먹자골목 상권 안에서 클라이언트 취향을 반영한 컨셉의 매장이 들어설 경우 확연하게 눈에 띌 것이 예상됐습니다. 고급스러운 디자인에 음식 가격까지 높다면 먹자골목길을 지나다니는 주요 타겟에게는 심리적 부담으로 작용할 것 같았습니다. 먹자골목에서 형성되는 평균 가격대는 2만원 대로 식사를 해결하면서 소주를 마시는 코스였습니다. 따라서 거리를 지나다니는 주요 타겟을 매장으로 유입시키기 위해 요리 메뉴의 가격을 2만원 이하로 구성하는 코스트 전략을 제안드렸습니다. 공간 디자인에 걸맞는 고가 전략을 취하지 않는 대신, 소주는 메뉴 구성에서 배제했습니다. 분위기 때문인데요. 클라이언트의 아지트로서의 공간으로 봤을 때도 소주를 마시며 왁자지껄 한 매장 분위기는 어울리지 않았습니다. 이에 따라 주류 메뉴는 가격이 부담없는 생맥주에서부터 샴페인, 위스키, 고급증류주 (화요) 등 고가 주류까지 다양한 라인업으로 구성되었습니다.



8평 안에 모든 것을 다 넣었습니다.



동선 설계


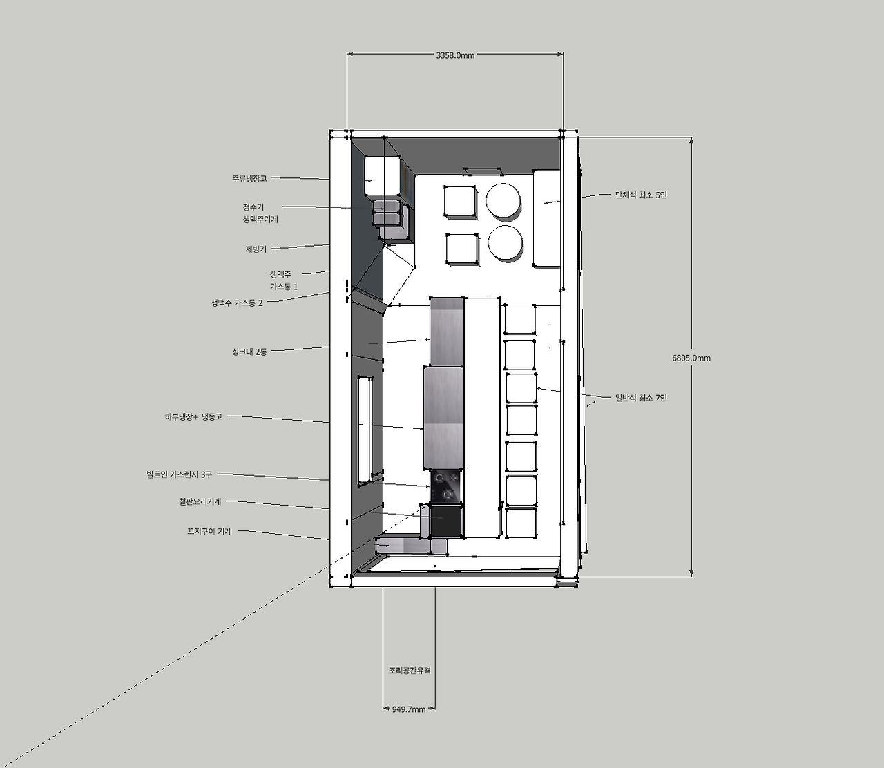
넓은 공간을 디자인 하는 것은 훨씬 수월합니다. 클라이언트가 원하는 부분들을 전부 공간 안에 반영하면서도 고객들도 만족할 수 있는 디자인이 나올 수 있죠. 좁은 공간을 디자인하는 것은 조금 다릅니다. 필수로 자리잡아야 하는 기능들이 서로 여기저기서 충돌하게 됩니다. 조리공간(키친), 수납공간(식자재 및 소모품), 식사공간, 주방동선, 고객동선을 8평 공간 안에서 모두 구성하는 것이 이번 작업의 큰 과제였습니다. 쿠쿠 이케부쿠로는 6평이었지만 테이크아웃 전략으로 공간의 한계를 해결했습니다. 반면 8평의 히마와리는 메뉴 컨셉상 고객들이 앉아서 식사를 해야하는 공간이 필요했습니다.


따라서 클라이언트가 공간 안에서 풀어내길 바란 요청사항은


- 손님이 불편하더라도 주방의 동선이 넓어서 일하기 편해야 한다 (이동 통로 공간의 폭이 1m 이상)

- 자신의 주요 고객들이 왔을 때 접대할 수 있는 테이블은 확보돼야 한다 (최소 5석)

- 충분한 수납공간이 확보돼야 한다 (집기 및 비품)


쾌적한 조리 환경이 우선돼야 한다는 일본 요리사들의 보편적인 의견에 맞춰 3미터 남짓 폭에서 3분의 1가량의 주방 동선 확보.



공간 안에서 안정적인 수익이 발생하려면 좌석은 최소 10~12개가 필요했습니다. 약 3미터 정도의 폭이 좁은 공간안에서 이 모든 요구 사항을 반영할 경우엔 밀도가 높아져 손님들의 동선과 조리공간의 동선이 겹치는 문제가 발생했습니다.


그러다 떠오른 것이 바로 심야식당. 심야식당이란 만화의 인기가 높아지면서 비슷한 포맷의 가게들이 많이 등장하였지만 저희가 주목한 것은 좁은 공간 안에서 좌석 수를 늘리는 오픈 키친 포맷과, 바의 높이였습니다. 아래 사진을 보시면 바의 높이가 허리에도 미치지 않을 정도로 낮습니다. 바의 높이가 낮으면 손님들이 훨씬 안정감 있게 식사를 할 수 있고, 천장을 오픈시켜 좁은 공간 대비 높은 층고 (3.5m)의 높이감을 극대화 하여 공간이 넓게 느껴지는 효과가 생깁니다.


심야식당_마스터.jpg 허리보다 낮은 바의 높이로 좁은 공간이 갑갑하지 않게 설계된 심야식당.



그리고 시즐(Sizzle) 효과


시즐(Sizzle)효과라고 들어보셨나요?


시즐은 고기가 지글지글 구워질 때 나는 소리의 영어 표현입니다. 마케팅 용어로서 시즐 효과는 이러한 시각적, 청각적 효과를 극대화하여 소비자들에게 구매욕을 어필하는 것을 의미합니다. 협소한 공간으로 인해 오픈 키친은 반드시 들어가야 하는 포맷이긴 했지만, 오픈 키친형태로 엔터테인먼트를 운영하는 클라이언트를 위한 또 하나의 무대가 되길 바랐습니다,

국내 마케팅에 크게 관심을 두지 않았던 클라이언트였지만, 이러한 포맷이 음식 사진을 남기고 싶어하는 고객들에게도 어필되어 자연스러운 홍보 수단으로 작용하길 바랐습니다. 이러한 보여주기 전략과 차별화된 아이템은 거리감이 있는 왕십리역 상권에서도 젊은 층이 유입될 수 있는 요소로 작용할 수 있다고 생각했습니다. 젊은 층이 유입되면 쿠쿠 이케부쿠로처럼 블로그를 통해 자연스러운 홍보도 될 것이라 생각했죠.


IMG_1612.jpg




공간 디자인


클라이언트의 취향에 맞춰 빈티지한 느낌을 담은 고급스럽고 모던한 북유럽 스타일의 공간 디자인을 제안하였습니다. 수직으로의 공간감을 극대화하기 위하여 색상 사용도 바닥쪽은 메인칼라로 정한 빈티지 느낌의 블루 계열의 어두운 톤을, 윗부분은 웜 아이보리색을 제안드렸고 페인트 역시 빈티지 페인트를 사용하기로 하였습니다. 천장에는 실링팬을 설치하여 심미성을 높이고 고객의 시선을 유도했습니다. (실링팬은 그 외에도 층고가 높은 공간에서 냉난방의 비용을 절감해주는 실용성도 갖고 있습니다. 미적요소와 기능적인 부분을 함께 고려한 아이디어였습니다. )


히마와리 세부2.png 윗부분은 밝은 톤으로 시선이 올라가는 효과와 실링팬으로 위로 향하는 시선을 머물게 하는 효과 유도.



수납의 문제 또한 높은 층고를 활용하여 붙박이장 형태로 해결하도록 디자인했습니다. 주류 냉장고와 생맥주 탭, 가스통, 정수기, 카드기가 중간에 위치하고 위 아래를 활용하여 비품을 수납할 수 있는 기능적인 붙박이 장의 크기는 1평을 채 차지하지 않았습니다. (빈티지 스위치와 콘센트도 전부 붙박이장에 매립을 했어요.)

IMG_1621.jpg 고민을 많이 한 붙박이장. 스위치 콘센트도 전부 매입하여 오픈키친에서 보일 수 있는 단점들을 깔끔하게 정리함.



스크린샷 2017-08-27 오후 8.07.05.png 기본 12명 착석이 가능 (테이블석 5석 포함)한 구조. 상황에 따라서 외부 테라스에 테이블을 두는 형식으로 최대 17명의 손님이 동시에 앉을 수 있게 설계.


히마와리측면.png 개방감을 주고 요리의 연기가 잘 빠져나갈 수 있게 입구 전면에 폴딩도어 설치.파사드와 측면은 기존 건물과 조화롭게 브랜드의 메인컬러 카키, 다크 그레이로 처리.


편안한 나무소재와 라이팅을 이용해서 따뜻한 톤과 무드로 위화감 없는 분위기를 의도했으며, 빈티지한 소품을 선호하는 클라이언트의 취향을 반영해 나무소재는 모두 호두 나무로 제작했습니다. 또한 북유럽 스타일의 느낌이 들도록 의자들은 북유럽풍 가구들로 배치했습니다. 전체 바닥에는 나무결이 살아 있는 이스라엘에서 수입 되는 우드 플로어 타일을 픽업하였고, 입구면의 타일도 이태리산 타일을 활용하여 고급스러운 느낌을 전달하여 주변과의 차별화를 의도했습니다.



11ef6e4db351d6a789a745e243cd40a3.jpg 북유럽풍의 모던하고 빈티지한 디자인
4546aa26aa70c8c5d47d3c5e6ccf993c.jpg 개방감을 위한 갤러리 창문





공간 작업에 들어갔습니다.


DSCN8195.JPG 철거 후의 모습.
DSCN8216.JPG 갤러리 이중 창을 통해 통풍은 가능하나 바깥의 어수선한 풍경들을 정리하여, 공간 안에 집중 할 수 있도록 구성.





완성된 모습입니다.


IMG_1683.jpg 외부
IMG_1630.jpg 내부 - 좁은 공간에서의 동선을 살리는 사선 형태를 적용.


IMG_1632.jpg 좁은 공간에서 일 효율을 높이기 위한 두 개의 수전과 개수대.
IMG_1656.jpg 좁은 공간에서 양쪽 조리대의 연기를 모두 배출시킬 수 있게 기능적인 면을 고려하여 사선 덕트를 제작.
IMG_1606.jpg 이중으로 제작한 슬라이딩 갤러리 도어.현장 수작업으로 제작.
IMG_1668.jpg 안쪽은 슬라이딩, 바깥쪽은 폴딩형식으로 제작된 갤러리 창문으로 외부의 어수선한 시야를 가리는 효과.
IMG_1695.jpg 개수대 모서리 부분을 커팅하여 동선 상에 위험요소들을 안전하게 정리.




작은 평수이지만 밀도 있는 디자인



쿠쿠 이케부쿠로와 히마와리의 공간을 디자인하면서 작지만 밀도있는 설계가 저희의 장점으로 알려지기 시작했습니다. 클라이언트도 결과물에 대해 크게 만족을 하였으며 사선을 통한 동선설계 솔루션으로 기능적이고 쾌적한 공간이 구성됐습니다. 매장이 오픈 한 이후 몇번 찾아갔는데 그때마다 만석이어서 요리를 먹어보지 힘들 정도로 운영이 잘 됐습니다. 왕십리 지역의 혼술하기 좋은 심야식당이라는 소문이 퍼지면서 목표했었던 왕십리역 주변의 젊은 고객들이 히마와리로 유입이 되었습니다. 젊은 고객들이 블로그 후기를 남긴 결과, 지속적 바이럴을 통한 홍보가 되었습니다. 시간이 꽤 흐른 예전의 작업이라 현재의 모습이 궁금해서 검색해 보니, 운영상 변화가 있었던 것 같았습니다. 저희가 클라이언트 취향에 맞게 선곡하여 드린 매장의 플레이 리스트들은 여전히 잘 흘러나오고 있는 지 궁금하네요.


히마와리.png 클라이언트의 취향에 맞춰 보사노바, 어쿠스틱, 모던 재즈 장르의 매장 음악 플레이리스트 기획.
스크린샷 2017-08-31 오후 7.47.19.png 공간에 적용된 브랜드의 메인 컬러톤은 명함에도 적용이 되었다.

(공간디자인 컨셉에 따라 브랜드 메인컬러도 채도가 없는 모노톤의 웜 아이보리, 카키 컬러, 다크 그레이의 세가지 색이 결정이 되었고, 이것을 반영하여 명함만 보아도 자연스럽게 공간을 연상할 수 있도록 디자인 하였습니다.)

스크린샷 2017-08-31 오후 7.47.30.png




작은 공간을 밀도 있게 풀어내는 스튜디오 마운틴의 역량이 향후 소개해드릴 효자바베의 공간 디자인에서도 큰 역할을 했는데요. 그 내용은 이후 효자바베 편에서 풀어보도록 하겠습니다. 히마와리를 진행하는 당시, 소격동의 이방인의 작업 의뢰가 들어왔습니다. 다음편에서는 이방인의 곱창카레에 대한 이야기를 해보도록 하겠습니다.


다음편에서 만나요!







ⓒ2017 Studio Mountain
스튜디오 마운틴은 브랜드 기획을 기반으로 2013년 설립된 토털 브랜딩 스튜디오입니다.
http://studiomountain.kr
keyword