#7 밤하늘의 별빛을 품은 집. 모던형 38평 전원주택

#7 철근콘크리트 모던 스타일 38평 전원주택 설계제안

by 이동혁 건축가

#7 철근콘크리트 모던 스타일 38평 전원주택 설계제안


출발


안녕하세요. 이동혁 건축가 입니다.^^

정말 오랜만에 글을 쓰는 것 같네요. 겨울에는 좀 한가했었는데 역시 봄 공사시즌이 되니 하루가 어떻게 지나가는지 모를정도로 빠르게 지나가네요.ㅠㅠ

제 이메일로 많은 응원과 설계안에 대해서 많은 이야기를 보내주시는 분들께 정말로 감사의 인사를 전합니다.

게을러지지 않고 쭈~욱 열심히 구독자분들을 위해 많은 이야기를 들려드리도록 하겠습니다.^^

오늘은 필로티 구조가 적용된 철근콘크리트 주택을 보여드릴까 합니다. 큰 공간보다는 실용적이고 모던한 느낌을 좋아하시는 분들이라면 아마 이번 기획설계안이 마음에 드실거라 생각됩니다.

자 그럼 출발해 보겠습니다.^^

*읽고 난 다음에는 위의 하트모양 라이킷과 공유 꾹 눌러주세용~^^



dlhousing_com_20160301_171008.jpg 메인 투시도

HOUSE PLAN

연면적 : 126.37㎡(1층+2층)

1층 : 6.98㎡(필로티 면적은 제외)

2층 : 119.39㎡

총괄 건축가 : 이동혁, 임성재, 정다운

설계·시공 : 홈트리오(주) 1522-4279

Homepage : http://hometrio.kr

이동혁건축가TV : http://tv.naver.com/sunsutu1

예상 총 건축비 : 230,000,000원(부가세포함)

설계비 및 인허가비 : 9,500,000원(부가세포함)

*건축비 외 부대비용 : https://brunch.co.kr/@sunsutu/96 참고

*1층 필로티 구조공사 별도(8,750만원)


SPEC

공법 : 기초-철근콘크리트 / 1층, 2층구조-철근콘크리트

지붕마감재 : 평지붕마감

외벽마감재 : 스타코플렉스

외벽포인트자재 : 베이스판넬, 화강석

실내벽마감재 : 실크벽지

실내바닥마감재 : 강마루

창호재 : 융기 3중 시스템창호

단열재 : 외부벽체(Glasswool Insulation R21HD-15" 나등급)

▷크나우프社 ECOBATT (ECOSE® 특허)

▷HD:저에너지 하우스용 / 15인치(381mm) *동등 제품

: 내부벽체(Glasswool Insulation R19-15" 다등급)

: 천장(Glasswool Insulation R30-15" 다등급)

: 지붕(Glasswool Insulation R37-23" 가등급) ▷ISOVER社에너지세이버

*단열기준은 2016년 7월1일자로 변경되는 단열기준법을 적용하여 강화시켜 놓았습니다.



1층.jpg 1층 평면도
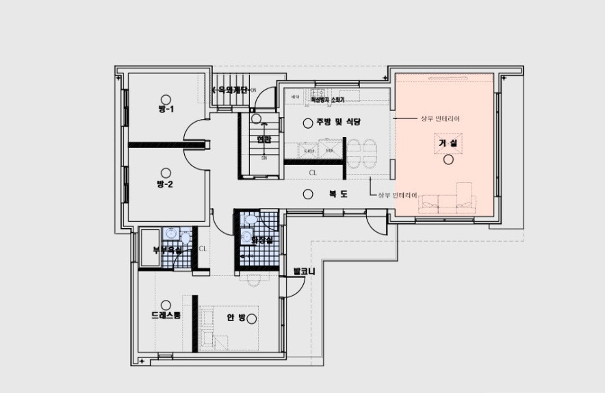
2층.jpg 2층 평면도


Q.설계 방향에 대해 설명해주세요.

이번 설계방향은 1층은 필로티 구조를 통해 바닥에서 건물을 띄우고 2층부분에 주거공간을 올려 조망과 디자인 모두를 잡은 설계안입니다. 모던함을 느낄 수 있는 디자인적 요소들 모두 사용하였으며, 단조롭지만 입체감이 느껴지고 지루함이 없는 매스를 만들기 위해 노력했습니다.

아마 이번 설계안은 유니크하고 모던한 주택을 원하셨던 구독자분들은 많이 관심가져주실만한 모델이 아닐까 생각되네요.^^


Q.면적은 얼마나 되는가요?

1층과 2층을 합하여 126.37㎡(38평)으로 구성하였습니다. 1층의 경우 계단과 창고공간으로 매우 작은 평수만이 소요되었으며, 대부분의 실 면적은 2층 주거공간에 배치되어져 있습니다.


Q.비용은 얼마가 들었나요?

총 228,000,000원이 소요될 것으로 판단됩니다. 평당단가로 나눈다면 평당 600만원(부가세포함)이 되어질 것입니다. 하지만 1층을 필로티로 띄우는 비용이 산정되지 않음 금액이므로 1층 필로티 공간의 시공비를 포함시킨다면 2층 주거부분의 건축비는 평당 500만원 전후가 되지 않을까 생각됩니다.

목조의 경우 평균 평당 450~500만원선이며, RC의 경우 500~600만원 사이선으로 마감이 되어집니다.

간혹 "우리집 옆의 빌라는 평당 350만원에 지었다던데 전원주택이 너무 비싼거 아니야?" 라고 질문하시는 분들이 있는데 빌라나 상가의 경우 평수가 크고 단순한 디자인이기 때문에 상대적으로 물량과 장비대 대비 평당단가가 내려가는 것은 사실입니다. 하지만 전원주택의 경우 30~60평 사이가 대부분이기 때문에 금액적인 부분이 빌라나 상가주택처럼 혜택을 보기 힘든 것이 현실입니다.^^;


Q.실제 지어진 건물인가요?

네. 이번 설계안의 경우 실제로 강원도 강릉시에 지어진 주택입니다. 추후 기회가 된다면 완공된 사진도 소개시켜 드리도록 하겠습니다.^^


Q.집의 컨셉이 무엇인가요?

집의 컨셉은 추상적인 이미지에서 시작되었습니다. 밤하늘에 떠 있는 별빛을 집안으로 품다. 라는 느낌을 디자인에 담고자 하였으며, 풀빌라의 느낌과 이국적인 유니크한 느낌을 설계에 반영하고자 하였습니다.

결과적으로 일반적인 전원주택이 아닌 이국적이며, 독특한 모던형 전원주택이 완성된 것 같습니다.


Q.이번 주택에서의 포인트는 무엇인가요?

1층의 필로티와 2층의 거실부분이지 않을까 생각됩니다. 1층의 필로티는 주차장이나 다양한 공간으로서 활용가능하며, 2층의 거실은 높은 오픈천장 적용과 바다를 바라볼 수 있는 정면과 우측의 파티오창 적용으로 입면적인 아름다움과 멋진 조망을 놓치지 않는 욕심있는 주택이 되었습니다.


Q.시공기간은 얼마나 걸릴까요?

철근콘크리트 주택의 경우 최소 5개월은 잡아야 합니다. 양생기간을 정확히 지켜야 하며, 완전히 양생 된 다음 그 다음 공정을 진행하여야 합니다.

아래의 주택도 사용승인을 완료하는 시간까지 총 5.5개월이 소요되었습니다.


Q.마지막 총평을 한다면?

지금까지 소개해 드렸던 주택과 이번주택은 그 시작점과 매스형태가 많이 달랐을 겁니다.^^ 전원주택이라고 하면 어느순간 우리머리속에 기성화 되어져 있는 이미지가 먼저 그려지실 겁니다. 하지만 집이라는 것은 답이 없는 것을 향해 가는 것과 같습니다. 나만을 위한 집이 되어야 하며, 내 땅에 오로지 이 공간만이 가질 수 있는 답을 풀어내야만 합니다.

이번 주택은 그러한 의미에서 저에게도 참 많은 의미를 가져다 준 주택인 것 같습니다.

모던함과 실용성을 모두 겸비한 이번 주택. 어떠셨나요?^^


정면.jpg 정면도
좌측.jpg 좌측면도
우측.jpg 우측면도
배면.jpg 배면도


도착


이번 설계 제안 어떠셨나요?

마음에 드셨어야 하는데 걱정이네요.^^

집이라는 것을 설계하다보면 참 다양한 생각을 가지게 됩니다. 라이프스타일을 어떻게 반영할까? 이러한 공간들을 편리할까? 등등... 저희가 설계하는 설계기간은 최소 3개월이랍니다. 평균적으로 3~6개월 사이가 걸리는 것 같네요. 업계 사람들과 이야기하다보면 다들 놀랩니다. 빨리 설계를 끝내고 시공에 들어가야 이윤이 납는데 그렇게 오랫동안 설계를 하면 회사 망할거라고...

하지만 이러한 꼼꼼한 설계때문에 제가 9년이라는 시간동안 건축일을 이어갈 수 있었던 것 같습니다.^^

많은 분들이 시공이 어려울 것이라 생각하는데 실상은 그렇지 않습니다. 설계만 꼼꼼하고 완벽하다면 시공은 설계도 대로 지어집니다.

구독자 여러분들도 처음부터 시공에 매달리시기 보다는 설계를 오랜시간동안 꼼꼼히 하여 원하시는 꿈의 집!! 지으시길 바라겠습니다.

감사합니다.^^

*읽고 난 다음에는 위의 하트모양 라이킷과 공유 꾹 눌러주세용~^^


KakaoTalk_20160226_124302788.jpg (좌측부터) 정다운 건축가, 이동혁 건축가, 임성재 건축가

총괄 건축가 : 이동혁, 임성재, 정다운

설계·시공 : 홈트리오(주) 1522-4279

Homepage : http://hometrio.kr

이동혁건축가TV : http://tv.naver.com/sunsutu1

[집이라는 본질적인 가치에 집중하다.]


글쓴이 : 이동혁 건축가

이메일 : sunsutu@hanmail.net

홈페이지 : http://hometrio.modoo.at/


상담 및 자문

이동혁 건축가 : 010-4567-8413

정다운 건축가 : 010-8560-0477

임성재 건축가 : 010-9941-8899



keyword