#12 어머님을 위한 선물. 북유럽식 26평 전원주택

#12 목조 북유럽 스타일 26평 전원주택 설계제안

by 이동혁 건축가

#12 목조 북유럽 스타일 26평 전원주택 설계제안


출발


안녕하세요. 이동혁 건축가 입니다.^^

봄바람 부는 요즘같은 날에는 컴퓨터 앞에 앉아 작업하는 것이 아니라 자꾸 밖으로 뛰어나가고 싶네요. 봄바람이 든 것일까요?^^;

오늘 들려드릴 이야기는 26평 소형주택에 관한 이야기 입니다.

요즘 대세가 소형 전원주택인 만큼 제가 기획하고 담당하는 프로젝트들이 자꾸 소형평수대로 이루어지고 있네요. 하지만 작다고 무시하면 안됩니다. 왜냐? 있을건 다 있기 때문이지요.^^

자 그럼 오늘도 출발해 보겠습니다.

*읽고 난 다음에는 위의 하트모양 라이킷과 공유 꾹 눌러주세용~^^


양산 주택 수정.jpg 메인투시도


HOUSE PLAN

연면적 : 86.40㎡

1층 : 86.40㎡

총괄 건축가 : 이동혁, 임성재, 정다운

설계·시공 : 홈트리오(주) 1522-4279

Homepage : http://hometrio.kr

이동혁건축가TV : http://tv.naver.com/sunsutu1

예상 총 건축비 : 135,800,000원(부가세포함)

설계비 및 인허가비 : 6,500,000원(부가세포함)

*건축비 외 부대비용 : https://brunch.co.kr/@sunsutu/96 참고


SPEC

공법 : 기초-철근콘크리트 / 1층 구조-경량목구조

지붕마감재 : 테릴기와

외벽마감재 : 스타코플렉스

외벽포인트자재 : 파벽돌, eps몰딩

실내벽마감재 : 실크벽지

실내바닥마감재 : 강마루

창호재 : 융기 3중 시스템창호

단열재 : 외부벽체(Glasswool Insulation R21HD-15" 나등급)

▷크나우프社 ECOBATT (ECOSE® 특허)

▷HD:저에너지 하우스용 / 15인치(381mm) *동등 제품

: 내부벽체(Glasswool Insulation R19-15" 다등급)

: 천장(Glasswool Insulation R30-15" 다등급)

: 지붕(Glasswool Insulation R37-23" 가등급) ▷ISOVER社에너지세이버

*단열기준은 2016년 7월1일자로 변경되는 단열기준법을 적용하여 강화시켜 놓았습니다.


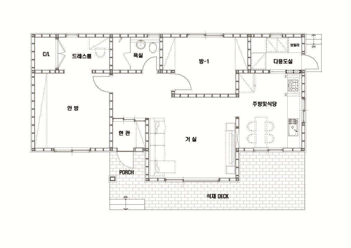
1층평면도.jpg 1층 평면도

Q.설계 방향에 대해 설명해주세요.

이번 설계방향은 '어머님을 위한 선물'이라는 컨셉으로 진행되었습니다. 요즘 저에게 많이 문의오시는 내용들을 살펴보면 두 가지로 많이 갈립니다. 첫번째는 어린 아이들을 키우시는 젋은 부부 층과 부모님만 거주하시는 노 부부 층으로 나뉩니다. 오늘은 첫번째 층이 아닌 두번째 층인 노 부부를 위한 주택으로 방향을 맞추어 기획하였습니다.^^

자녀들과 같이 생활한다면 방은 최소 3개가 필요한 것이 현실입니다. 하지만 자녀들이 없다면?? 방은 두 개만 있어도 충분할 것입니다.

이번 주택은 방은 2개만 구성하되 수납공간과 공용공간을 최대한 확보하여 무수히 많은 잡동사니들을 최대한 안쪽으로 수납시킬 수 있게 하고 아버님과 어머님의 프라이버시를 각각 보전 시킬 수 있도록 공간을 분리시켜 주는 것이 주 핵심이라고 할 수 있습니다.^^


Q.면적은 얼마나 되는가요?

1층 단층으로 구성하였으며, 86.40㎡(26평)으로 구성하였습니다. 어찌보면 작다고 느낄 수도 있지만 평면구성을 보면 있을 건 다 있는 구성이라 더 크게 지을 이유가 없다고 느끼실 겁니다.^^


Q.비용은 얼마가 들었나요?

총 135,800,000원이 소요될 것으로 판단됩니다. 부가세가 포함 된 가격이며, 순수한 건축비 입니다. 많은 분들이 동네에서는 평당 300에도 지어주는데 왜 이렇게 비싸냐라고 하시는데 자재가 틀립니다. ㅠㅠ 시작가는 중요하지 않습니다. 완공금액이 중요합니다. 또한 부가세가 포함되었는지 여부도 중요합니다. 목조주택의 경우 이미 기성화가 되어져 있어 금액차이가 많이 나 봐야 평당 10~15만원 입니다. 너무 터무니 없이 저렴한 주택의 경우 한번쯤은 정확한 자재가 들어가는지 살펴보아야 합니다.^^


Q.기와는 국내에서 생산되는 것인가요? 왜 이렇게 비싼가요?

스페니쉬 기와의 경우 국내생산이 안 되어집니다. 전량 수입이며, 테릴 이라는 업체에서 생산되고 있습니다. 스페니쉬기와 또는 테릴기와라고 많이 불리웁니다. 국내에서는 흙기와라고 검은색 기와만 생산되고 있으며, 비슷한 느낌으로 생산이 되고 있는 것도 있지만 아직까지는 테릴기와의 은은한 느낌을 따라가지 못하고 있습니다. 전량 수입이다보니 가격이 타 지붕 마감재보다는 높으며, 기와의 무게를 견디기 위해 구조보강 및 인력적인 시공비가 좀 더 들어가다보니 기와를 시공 시 평당 20만원 이상 높아지는 현상이 발생되어지고 있습니다.^^


Q.외관 디자인의 컨셉이 무엇인가요?

집의 외관은 전형적인 북유럽 주택의 느낌을 가지고 가고자 하였습니다. 농촌에 지어질 거라 생각하였기 때문에 차가운 느낌의 모던형 보다는 오래되도 처음의 분위기를 그대로 가지고 갈 수 있는 북유럽식 주택을 선택하였습니다.

주황톤의 지붕과 파벽돌의 톤을 맞추어 일체감 있게 보이게 하였으며, 석재데크 부분도 같은 톤의 마감재로 시공하여 전체적인 느낌을 국내가 아닌 해외에 나와있는 듯한 느낌을 받도록 하였습니다.


Q.이번 주택에서의 포인트는 무엇인가요?

이번 주택의 포인트는 거실과 주방의 남향배치 일 것입니다. 많이들 거실과 주방을 1자형 배치로 거실을 남향으로 주방을 북향으로 두는 경우가 많습니다. 하지만 이번 주택의 경우 어머님께서 주방에서 머무시는 시간이 많은실 것을 예상하여 주방을 남향배치 하였습니다.

또한 가벽으로 거실과 분리시켜 거실에서 아버님이 티비를 보시더라도 방해받지 않고 요리와 개인적인 생활이 가능하도록 하였습니다.


Q.시공기간은 얼마나 걸릴까요?

시공기간은 3.5개월이 소요될 것으로 생각합니다. 이는 사전에 인허가 및 착공신고까지 모두 이루어졌다는 것을 가정한 기간입니다.


Q.마지막 총평을 한다면?

요즘에는 큰 평수보다는 이렇게 30평 미만의 소형 주택들에 대해 많은 관심이 가는 것 같습니다. 실제로 집을 지어보아도 더 애착이 가는 것은 어쩔수가 없나봅니다. ^^;

집이라는 것은 시간이 지나도 처음 그대로의 모습과 분위기를 간직하는 곳이라 생각합니다. 내가 뛰어놀 던 장소가 시간이 지나 내 자식들과 강아지들이 같이 뛰어노는 곳.

그만큼 소중한 공간이기 때문에 하나하나 신경을 더 써서 설계하고 시공하는 것 같습니다.

이번 주택은 개인적으로 저희 부모님에게도 하나 지어드리고 싶은 주택이네요. ^^

단순해 보이지만 그 내면에 따스함이 녹아내려가 있는 이번 주택. 오랜기간 제 머리속에 기억될 것 같습니다.

정면도.jpg 정면도
좌측면도.jpg 좌측면도
우측면도.jpg 우측면도
배면도.jpg 배면도
지붕평면도.jpg 지붕평면도

도착


이번 주택 설계기획안은 어떠셨나요?

아직도 내가 원하는 주택 디자인이 안 나왔다고 실망하셨나요? ㅠㅠ 걱정마세요. 앞으로 올려드릴 전원주택 설계 기획안들이 많이 남았답니다.^^

전원주택이라는 것은 아파트처럼 획일화 되어져 있는 것을 사는 것이 아니랍니다. 기성복이 아닌 주문생산된 나만의 옷을 입는 것이며, 추억을 함께 녹여내는 공간이랍니다.

구독자 여러분들도 언젠가는 나만의 생각과 우리 가족의 라이프스타일을 담아낼 수 있는 나만의 유일한 집을 짓길 바라겠습니다.^^

감사합니다.

*읽고 난 다음에는 위의 하트모양 라이킷과 공유 꾹 눌러주세용~^^


KakaoTalk_20160226_124302788.jpg (좌측부터) 정다운 건축가, 이동혁 건축가, 임성재 건축가

총괄 건축가 : 이동혁, 임성재, 정다운

설계·시공 : 홈트리오(주) 1522-4279

Homepage : http://hometrio.kr

이동혁건축가TV : http://tv.naver.com/sunsutu1

[집이라는 본질적인 가치에 집중하다.]


글쓴이 : 이동혁 건축가

이메일 : sunsutu@hanmail.net


상담 및 자문

이동혁 건축가 : 010-4567-8413

정다운 건축가 : 010-8560-0477

임성재 건축가 : 010-9941-8899



keyword
작가의 이전글#11 제주도의 바다를 담아내다. 모던 29평 전원주택