#1 북유럽의 감성을 영천 푸른하늘아래 담아내다.

경북 영천 47평 목조주택 완공사례

by 이동혁 건축가

출발


안녕하세요. 이동혁 건축가 입니다.^^

ㅠㅠ 또 엄청 오랜만에 글을 올립니다. 제 글을 기다리고 있으셨던 구독자분들께 사죄의 말씀을 드립니다. 주 1회 연재를 또 어기고 말았네요. 겨울에는 꼬박꼬박 글을 작성했는데 봄이 되니 현장 체크하랴 상담 드리랴 정신이 없네요. ㅠㅠ 이번주도 계속 저녁 11시에 퇴근하고 있답니다.

오늘은 설계 기획안이 아닌 경북 영천에 시공이 완료된 전원주택을 소개시켜드릴까 합니다.

글을 연재하면서 가장 많이 문의가 왔던 것이 "혹 완공된 사진을 볼 수 없을까요?" 였습니다. 홈페이지에는 꼬박꼬박 업데이트 했었지만 브런치에는 계속 못 하다가 이번에 맘 잡고 전원주택 시공 완공 사진을 연재해 드릴까 합니다.^^

비 전문가가 사진을 찍다보니 구도들이 이상하네요. ㅠㅠ

사진 엄청 많으니 스압 주의하시면서 보세용.~^^

자 그럼 출발합니다.

*읽고 난 다음에는 위의 하트모양 라이킷과 공유 꾹 눌러주세용~^^

※사진 엄청 많습니다. 스압 주의하세용.~^^


DSC_0015.jpg

HOUSE PLAN

연면적 : 156.36㎡

1층 : 105.18㎡

2층 : 51.18㎡

총괄 건축가 : 이동혁, 임성재, 정다운

설계·시공 : 홈트리오(주) 1522-4279

Homepage : http://hometrio.kr

이동혁건축가TV : http://tv.naver.com/sunsutu1

예상 총 건축비 : 244,000,000원(부가세포함)

*건축비 외 부대비용 : https://brunch.co.kr/@sunsutu/96 참고


SPEC

공법 : 기초-철근콘크리트 / 1층, 2층 구조-경량목구조

지붕마감재 : 테릴변색기와

외벽마감재 : 스타코플렉스

외벽포인트자재 : 파벽돌, eps몰딩

실내벽마감재 : 실크벽지

실내바닥마감재 : 강마루

창호재 : 융기 3중 시스템창호

단열재 : 외부벽체(Glasswool Insulation R21HD-15" 나등급)

▷크나우프社 ECOBATT (ECOSE® 특허)

▷HD:저에너지 하우스용 / 15인치(381mm) *동등 제품

: 내부벽체(Glasswool Insulation R19-15" 다등급)

: 천장(Glasswool Insulation R30-15" 다등급)

: 지붕(Glasswool Insulation R37-23" 가등급) ▷ISOVER社에너지세이버

*단열기준은 2016년 7월1일자로 변경되는 단열기준법을 적용하여 강화시켜 놓았습니다.


1층평면도.jpg 1층 평면도
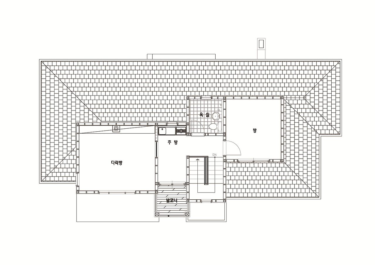
2층평면도.jpg 2층 평면도


외관
DSC_0029.jpg
DSC_0043.jpg
DSC_0062.jpg
DSC_0071.jpg
DSC_0135.jpg


Q.설계 방향에 대해 설명해주세요.

이번 설계방향은 북유럽식 느낌을 집에 담아내고자 하였습니다. 경북 영천의 아름다운 자연경관과 잘 어울리게 디자인한 주택이라 할 수 있습니다. 어두운 느낌을 버리고 최대한 밝은 느낌으로 집을 설계하고자 하였으며, 생활하시기 편리하도록 현대적인 공간 계획도 조화가 잘 될 수 있도록 방향성을 잡아 진행하였습니다.


Q.면적은 얼마나 되는가요?

2층으로 구성하였으며, 1층은 105.18㎡(31.8평), 2층은 51.18㎡(15.4평)으로 구성하였습니다. 총 47평형 주택으로 가족들과 여가를 즐기시기에 충분한 공간으로 계획되었습니다.


Q.비용은 얼마가 들었나요?

총 224,000,000원이 소요될 것으로 판단됩니다. 부가세가 포함 된 가격이며, 순수한 건축비 입니다. 설계비는 705만원이 소요되었으며, 인허가 및 준공 행정비용은 470만원이 소요되어졌습니다.


Q.집이 밝아 보이는거 같아요.

변색기와와 화이트톤의 스타코플렉스가 조화를 잘 이룬 주택입니다. 파벽돌도 화이트 계열의 밝은 톤으로 시공하여 주변의 밝은 분위기와 집이 하나되는 듯한 느낌을 받을 수 있게 하였습니다.


Q.인테리어 컨셉은 무엇인가요?

이번 주택의 인테리어 컨셉은 유니크 입니다.각 공간별로 특색이 있게 개별적으로 디자인을 하였으며, 건축주님의 가족분들의 라이프스타일과 취향이 다 다른만큼 각자의 개성을 담아내고자 노력하였습니다. 평균적으로 화이트톤을 기본으로 하되 포인트와 유니크한 소품들을 사용하여 공간의 개성감을 돋보이도록 하였습니다.


Q.시공기간은 얼마나 걸릴까요?

설계기간은 3개월(인허가기간 포함) 정도 소요되었으며, 시공기간은 준공까지 3.5개월이 소요되었습니다.


Q.마지막 총평을 한다면?

항상 그렇듯 집을 완공시키고나면 아쉬움이 많이 남습니다. 하지만 초기에 이루고자 하였던 밝은 느낌과 주변의 경치를 집 안으로 들고 들어오자한 목표는 어느정도 이룬 것 같습니다.^^;

집을 짓는 것이 많이 걱정되시죠? 어차피 고민해야 하는 부분은 정해져 있답니다. 너무 머리아파하시지 마시고 집 짓는 고민을 행복한 웃음으로 대체하여 즐겁게 집을 짓길 바라겠습니다.

작지만 알찬 집! 이번 주택에서 이러한 느낌을 받으셨는지 모르겠습니다. 부족하지만 다음 완공 주택에서는 더 많은 요소들을 담고자 노력하겠습니다.^^


현관
DSC_0090.jpg
DSC_0095.jpg
DSC_0143.jpg
DSC_0146.jpg
DSC_0160.jpg
DSC_0168.jpg


거실
DSC_0178.jpg
DSC_0181.jpg
DSC_0188.jpg
DSC_0189.jpg
DSC_0196.jpg
DSC_0207.jpg
DSC_0216.jpg
DSC_0274.jpg
DSC_0288.jpg
DSC_0296.jpg


1층 주방
DSC_9857.jpg
DSC_9873.jpg
DSC_9878.jpg
DSC_9887.jpg
DSC_9889.jpg
DSC_9900.jpg
DSC_9909.jpg
DSC_9921.jpg
DSC_9924.jpg
DSC_9934.jpg
DSC_9940.jpg


1층 화장실
DSC_9633.jpg
DSC_9654.jpg
DSC_9665.jpg
DSC_9682.jpg
DSC_9685.jpg


1층 안방
DSC_9762.jpg
DSC_9771.jpg
DSC_9782.jpg


계단
DSC_9375.jpg
DSC_9390.jpg
DSC_9544.jpg
DSC_9551.jpg
DSC_9553.jpg
DSC_9573.jpg
DSC_9583.jpg


온돌방
DSC_9700.jpg
DSC_9711.jpg
DSC_9721.jpg
DSC_9730.jpg


발코니
DSC_9461.jpg
DSC_9465.jpg
DSC_9468.jpg
DSC_9471.jpg


2층 주방
DSC_9354.jpg
DSC_9365.jpg


2층 화장실
DSC_9401.jpg
DSC_9409.jpg
DSC_9416.jpg
DSC_9421.jpg
DSC_9446.jpg


다락방
DSC_9247.jpg
DSC_9252.jpg
DSC_9255.jpg
DSC_9263.jpg
DSC_9301.jpg
DSC_9303.jpg


도착


사진 엄청 많았죠?^^;

그래도 끝까지 보시느라 고생 많으셨습니다.

잡지나 sns에 올려지는 것처럼 몇 컷트만 올려드리는 것이 아닌 좀 더 세부적으로 많은 사진을 보여드리고 싶었습니다.(너무 과했는지는 모르겠습니다. ㅠㅠ)

집이라는 것이 참 재미있으면서도 많은 고민을 해야 하는 집합체 인 것 같습니다.

설계자의 생각만 넣으면 안되며, 건축주님과 건축주님의 가족분들의 라이프스타일과 생각을 요소요소별로 반영을 해서 만들어야 하다보니 항상 고민과 생각의 연속입니다.^^;

하지만 완공된 후의 집을 이렇게 보고 있노라면 가슴 한켠이 웬지 모르게 뭉클함과 뿌듯함이 공존하면서 발생됩니다.

아직도 집을 짓기위해 많은 고민을 하고 계시는 분들이 있으실 것입니다.

제가 하나 팁을 드리면 집은 이미 어느정도 기성화가 되어져 있습니다.

많은 분들이 최저가만 비교하고 다니시는데 어차피 들어가야 할 비용들을 들어가기 마련입니다.

너무 최저가를 찾기 보다는 정말로 내 생각을 잘 반영해 줄 수 있는 사람을 만나 속 편안히 좋은 집을 짓길 바라겠습니다.^^

감사합니다.

*읽고 난 다음에는 위의 하트모양 라이킷과 공유 꾹 눌러주세용~^^


KakaoTalk_20160315_150829991.jpg (좌측부터) 정다운 건축가, 이동혁 건축가, 임성재 건축가

총괄 건축가 : 이동혁, 임성재, 정다운

설계·시공 : 홈트리오(주) 1522-4279

Homepage : http://hometrio.kr

이동혁건축가TV : http://tv.naver.com/sunsutu1

[집이라는 본질적인 가치에 집중하다.]


글쓴이 : 이동혁 건축가

이메일 : sunsutu@hanmail.net


상담 및 자문

이동혁 건축가 : 010-4567-8413

정다운 건축가 : 010-8560-0477

임성재 건축가 : 010-9941-8899



keyword