#4 '1억5천만원'으로 부모님께 집을 선물하다.

경북 칠곡 32평 목조 전원주택 완공사례

by 이동혁 건축가

출발


안녕하세요. 이동혁 건축가 입니다.^^

한동안 날씨가 따뜻하나 싶었는데 오늘은 비바람이 몰아치면서 기온이 뚝 떨어졌네요. 어제까지만해도 반팔입고 돌아다녔는데 오늘은 긴팔을 입고 외투까지 입었는데도 으슬으슬 춥습니다.ㅠㅠ 다들 감기 조심하세요.

오늘은 단층 기와집을 소개시켜드릴까 합니다.

부모님을 위해 지은 칠곡의 단층 기와집.^^

30대의 젋은 층보다는 50대 이상의 예비 건축주님들께 더 인기있을 사례일 것 같습니다.

예산을 1억 5천에 맞추어 설계를 진행하였으며, 30평대 설계이지만 화장실 3개와 넓은 다용도실까지 알차게 공간구성을 한 사례입니다.

자 그럼 출발합니다.^^

*읽고 난 다음에는 위의 하트모양 라이킷과 공유 꾹 눌러주세용~^^

※사진 엄청 많습니다. 스압 주의하세용.~^^


HOUSE PLAN

연면적 : 104.60㎡

1층 : 104.60㎡

총괄 건축가 : 이동혁, 임성재, 정다운

설계·시공 : 홈트리오(주) 1522-4279

Homepage : http://hometrio.kr

이동혁건축가TV : http://tv.naver.com/sunsutu1


총 건축비 : 149,500,000원(부가세포함)

설계비 및 인허가비 : 6,400,000원(부가세포함)

*건축비 외 부대비용 : 가구(싱크대, 신발장, 붙박이장), 기반시설인입(수도,전기,가스 등), 토목공사, 조경


SPEC

공법 : 기초-철근콘크리트 / 구조-경량목구조

구조재 : 벽-2*6 SPF / 지붕-2*10 SPF

단열재 : 벽-R21HD 글라스울 인슐레이션(나등급) / 지붕-R32HD 글라스울 인슐레이션(나등급)

지붕마감재 : 아스팔트슁글

외벽마감재 : 스타코플렉스

외벽포인트자재 : 파벽돌

실내벽마감재 : 실크벽지

실내바닥마감재 : 강마루

창호재 : 융기 3중 시스템창호

단열재 : 외부벽체(Glasswool Insulation R21HD-15" 나등급)

▷크나우프社 ECOBATT (ECOSE® 특허)

▷HD:저에너지 하우스용 / 15인치(381mm) *동등 제품

: 내부벽체(Glasswool Insulation R19-15" 다등급)

: 천장(Glasswool Insulation R30-15" 다등급)

: 지붕(Glasswool Insulation R37-23" 가등급) ▷ISOVER社에너지세이버

*단열기준은 2016년 7월1일자로 변경되는 단열기준법을 적용하여 강화시켜 놓았습니다.



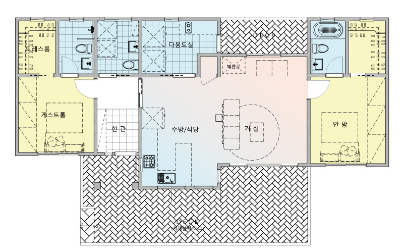
1층 평면도


외관


Q.설계 방향에 대해 설명해주세요.

이번 설계방향은 '한 지붕 아래 두 공간'이 존재할 수 있도록 설계안을 잡았습니다. 외관을 보시면 한 공간처럼 보이게 디자인하였지만 현관을 중심으로 좌측과 우측으로 각각의 프라이빗한 공간이 충분히 분리될 수 있도록 설계하였습니다.

30평대 설계이지만 화장실을 총 3개로 구성하여 손님들이 사용하기 편리하게 공간을 구성하였으며, 좁을 수 있는 내부공간에 대한 제약을 해결하기 위해 앞과 뒤쪽에 데크를 넓게 설치하였습니다.

단층 주택 디자인의 한계를 해결하기 위해 박공지붕의 레벨을 다르게 적용하여 매스에 입체감을 줄 수 있도록 하였으며, 변색기와를 적용하여 가볍지 않고 무게감 있는 외관을 완성시켰습니다.


Q.면적은 얼마나 되는가요?

단층으로 구성하였으며, 1층 104.60㎡(32평)으로 구성하였습니다. 원하시는 공간을 넓게 구성하되 불필요한을 최소화하여 축소하는 설계기법을 적용하여 작지만 알찬 주택으로 완공되었습니다.


Q.비용은 얼마가 들었나요?

시공비는 총 149,500,000원(부가세포함)이 소요되었으며, 설계비 및 인허가비는 6,400,000원(부가세포함)이 소요되었습니다.


Q.요즘 2층 주택보다 단층으로 짓는 분들이 많아진거 같아요. 단층이 유행인가요?

한 3년 전만해도 집을 지으면 당연히 2층으로 지어야지! 라고 생각하는 분들이 많으셨습니다.^^; 하지만 최근들어 전원주택도 실용성을 강조하기 시작했습니다. 2층의 매력도 있지만 35평 미만의 주택들은 솔직히 건폐율이 허용한다면 단층으로 구성하는 것이 공간효율성에 좋습니다. 2층으로 구성하기 위해 소요되는 계단 및 복도의 공간이 최소 3평이상 소모되기 때문입니다. 3평은 작은방 1개의 사이즈이므로 방 한개가 이동만을 위한 공간으로 소모된다고 생각하시면 될 것 같습니다.

예전에는 단층 전원주택 디자인이 다 비슷비슷했습니다.^^; 그래서 시골스러운 분위기가 더 났었는데 최근에 와서는 저희들같이 젊은 건축가들이 전원주택을 디자인하면서 외형적인 모습들이 세련되어져 가고 있습니다.

단층으로 집을 짓는 것이 유행이다? 라고 보는 것 보다는 점점 전원주택 시장도 실용적인 부분에 대해 고민하기 시작한 것 같습니다.^^


Q.거실 천장이 높아보이는데 몇미터 정도 되나요?

이번 주택의 거실에는 1층 오픈천장이라는 옵션을 더하였습니다. 기본적으로 천장 높이는 2.4m 입니다. 하지만 조금 답답할 수 있을거 같다는 건축주님 의견에 따라 1층 거실 공간 천장을 높이는 옵션을 적용하였고 약 3~3.5m 사이의 높이고 거실 천장을 구성하였습니다.


Q.시공기간은 얼마나 걸릴까요?

설계기간은 3개월(인허가기간 포함) 정도 소요되었으며, 시공기간은 준공까지 3.5개월이 소요되었습니다.


Q.마지막 총평을 한다면?

집이라는 것이 항상 아쉬움이 남기 마련입니다. 이번주택도 많은 노력을 기울였지만 조금의 아쉬움이 남네요.^^; 단층으로 구성된 32평 단층 기와집. 최근에 지어지는 주택들과 달리 북유럽식의 아담한 디자인으로 설계를 진행하였는데요. 어떠셨나요?

전원주택이라고 해서 꼭 크고 2층으로 지을 필요는 없답니다. 정해진 예산안에서 원하는 디자인적 요소를 도출해 내는 것. 그것이 바로 제가 해야 될 일이라고 생각합니다.^^

'파아란 하늘아래 주황빛 기와를 대지위에 얹혀 놓는다는 것.'

경북 칠곡의 고즈넉한 마을에 앉혀진 이번 주택은 마을의 사랑방 역할을 하지 않을까 생각됩니다.^^



현관


거실


방1


방2


주방1


주방2


화장실 1


화장실2


도착


경북 칠곡의 단층 32평 전원주택 잘 구경하셨나요?^^

직접 사진을 찍고 편집하고 글을 쓰다보니 하나하나 올릴때마다 시간이 많이 걸리네요. 일주일에 3개의 글을 연재한다고 했는데 일주일에 한 개 정도만 연재하니... 언제 글을 올려주느냐라고 이메일로 혼내시는 글들을 보내시네요. ㅠㅠ

현 시즌이 가장 공사현장이 많은 시즌이다보니 구독자 여러분 조금만 이해해 주세요. ㅠㅠ

여름이되면 조금 한가해지니 그 때는 더 많은 정보를 올려드리도록 하겠습니다.^^

집을 지을 때 예산을 어떻게 잡으시나요?

예산은 크게 4가지로 구분할 수 있습니다.

1. 토목공사비

2. 설계비 및 행정비

3. 순수한 건축비

4. 건축외 부대비용(가구, 조경, 기반시설 인입 등)

제가 제시해 드리는 금액은 2번과 3번 항목입니다.^^ 땅의 컨디션에 따라 토목공사비와 부대비용이 크게 달라지므로 너무 나대지를 사시는 것 보다는 조금 힘드셔도 어느정도 기반시설과 인프라가 있는 땅을 사시는게 유리합니다. 잘못하다가는 배보다 배꼽이 큰 상황이 발생할 수도 있으니 땅 고르실때 유념하시기 바랍니다.

오늘은 여기까지 입니다. 아침부터 일어나 눈비비면서 글을 작성했네요.

다음 글은 늦지 않게 연재하도록 하겠습니다.^^

감사합니다.

*읽고 난 다음에는 위의 하트모양 라이킷과 공유 꾹 눌러주세용~^^


(좌측부터) 정다운 건축가, 이동혁 건축가, 임성재 건축가

총괄 건축가 : 이동혁, 임성재, 정다운

설계·시공 : 홈트리오(주) 1522-4279

Homepage : http://hometrio.kr

이동혁건축가TV : http://tv.naver.com/sunsutu1


글쓴이 : 이동혁 건축가

이메일 : sunsutu@hanmail.net



<홈트리오 집짓기 영상>

1. 홈트리오 완공주택 - 전남 순천 50평 목조주택 완공 둘러보기(전원주택 집짓기)

https://www.youtube.com/watch?v=xONUa-8sUbA&list=PLIpsbWPaay95I-_T5JGIv4Mp3-HeatJnl

2. 홈트리오 완공주택 - 53평 충남 금산 전원주택 톺아보기(전원주택 집짓기)

https://www.youtube.com/watch?v=3I7pEJ5a4WA&list=PLIpsbWPaay95I-_T5JGIv4Mp3-HeatJnl&index=2

3. 56평 충남 논산 홈트리오 완공주택 톺아보기 - 전원주택 집짓기

https://www.youtube.com/watch?v=A-p9DW9xlac&list=PLIpsbWPaay95I-_T5JGIv4Mp3-HeatJnl&index=3

4. 44평 강원 양양 홈트리오 완공주택 톺아보기 - 전원주택 집짓기

https://www.youtube.com/watch?v=rsy2ld3DSFE&list=PLIpsbWPaay95I-_T5JGIv4Mp3-HeatJnl&index=45.

5. 일산 풍동 애니아트힐즈 73평 목조 단독주택 완공 톺아보기(전원주택 집짓기)

https://www.youtube.com/watch?v=fjQlAE2hloU&list=PLIpsbWPaay95I-_T5JGIv4Mp3-HeatJnl&index=5

6. 경북 상주 52평 목조 전원주택 완공 톺아보기(전원주택 집짓기)

https://www.youtube.com/watch?v=haAsuLN21pQ&list=PLIpsbWPaay95I-_T5JGIv4Mp3-HeatJnl&index=6

7. 완주 삼례읍 76평 목조 전원주택 완공 톺아보기(전원주택 집짓기)

https://www.youtube.com/watch?v=PH10Z8J_jgc&list=PLIpsbWPaay95I-_T5JGIv4Mp3-HeatJnl&index=7

8. 세종시 장군면 57평 목조 전원주택 완공 톺아보기(전원주택 집짓기)

https://www.youtube.com/watch?v=WleLIuA1ccA&list=PLIpsbWPaay95I-_T5JGIv4Mp3-HeatJnl&index=8

9. 세종시 도담동 56평 목조 단독주택 완공 톺아보기(전원주택 집짓기)

https://www.youtube.com/watch?v=fXDoVHCridA&list=PLIpsbWPaay95I-_T5JGIv4Mp3-HeatJnl&index=13

10. 일산 풍동 애니아트힐즈 67평 도심형 단독주택 완공 톺아보기(전원주택 집짓기)

https://www.youtube.com/watch?v=X8RMQBBaSYc&list=PLIpsbWPaay95I-_T5JGIv4Mp3-HeatJnl&index=25


keyword