#71 '동화 속 기와집' 46평 전원주택 기획모델

#71 목조 북유럽 스타일 46평 전원주택 기획모델

by 이동혁 건축가

제목 : #71 '동화 속 기와집' 46평 전원주택 기획모델

소제목 : #71 목조 북유럽 스타일 46평 전원주택 기획모델


출발


안녕하세요. 이동혁 건축가 입니다.^^

어제 울산에 다녀왔는데 '뜨악' 낮 기온이 영상 16도였습니다. 정말 따뜻한 봄 날씨. 드디어 봄이 오긴 오나 봅니다. 이번 주에는 제주도 착공현장에 대한 착공 미팅을 주로 다녔는데요. 인허가 내기가 어렵긴 하지만 끝가지 공무원과 협의 끝에 모든 현장들이 무사히 인허가가 날 수 있었습니다.

오랫동안 기다려온 건축 주님들의 마음을 알기에 최대한 빠르고 정확하게 집을 지어 입주하실 수 있도록 준비하겠습니다.

오늘은 지어질 주택은 아니지만 저희가 생각하기에 트렌드에 맞다고 생각하는 방향과 콘셉트를 잡아 진행한 기획모델입니다.

최근 들어 모던 스타일을 많이 디자인해 왔지만 그래도 무게감과 감성적인 느낌은 스페니쉬 기와가 올라간 북유럽식 주택을 따라갈 수는 없겠죠.^^;

변색 기와가 올라간 동화 속에 있을 법한 전원주택. 저와 같이 동화 속으로 빠져보도록 하겠습니다.

자 그럼 오늘도 출발해 보겠습니다.

*읽고 난 다음에는 위의 하트 모양 라이킷과 공유 꾹 눌러주세용~^^


1308-군산 주택.jpg

HOUSE PLAN

연면적 : 152.46㎡

1층 : 99.53㎡

2층 : 52.93㎡

규모 : 지상 2층

총괄 건축가 : 이동혁, 임성재, 정다운

설계·시공 : 홈트리오(주) 1522-4279

Homepage : http://hometrio.kr

이동혁건축가TV : http://tv.naver.com/sunsutu1

예상 총 건축비 : 272,200,000원(부가세 포함)

설계비 및 인허가비 : 11,500,000(부가세 포함)

*건축비 외 부대비용 : 대지구입비, 가구(싱크대, 신발장, 붙박이장), 기반시설 인입(수도, 전기, 가스 등), 토목공사, 조경비 등


SPEC

공법 : 기초-철근콘크리트 / 1층, 2층 구조-목조

지붕마감재 : 스페니쉬 기와(테릴 변색기와)

외벽마감재 : 스타코플렉스

외벽포인트자재 : 파벽돌

실내벽마감재 : 실크벽지

실내바닥마감재 : 강마루

창호재 : 융기 3중 시스템창호

단열재 : 외부벽체(Glasswool Insulation R21HD-15" 나등급)

▷크나우프社 ECOBATT (ECOSE® 특허)

▷HD:저에너지 하우스용 / 15인치(381mm) *동등 제품

: 내부벽체(Glasswool Insulation R19-15" 다등급)

: 천장(Glasswool Insulation R30-15" 다등급)

: 지붕(Glasswool Insulation R37-23" 가등급) ▷ISOVER社에너지세이버

*단열기준은 2016년 7월1일자로 변경되는 단열기준법을 적용하여 강화시켜 놓았습니다.

1층평면도.jpg 1층 평면도
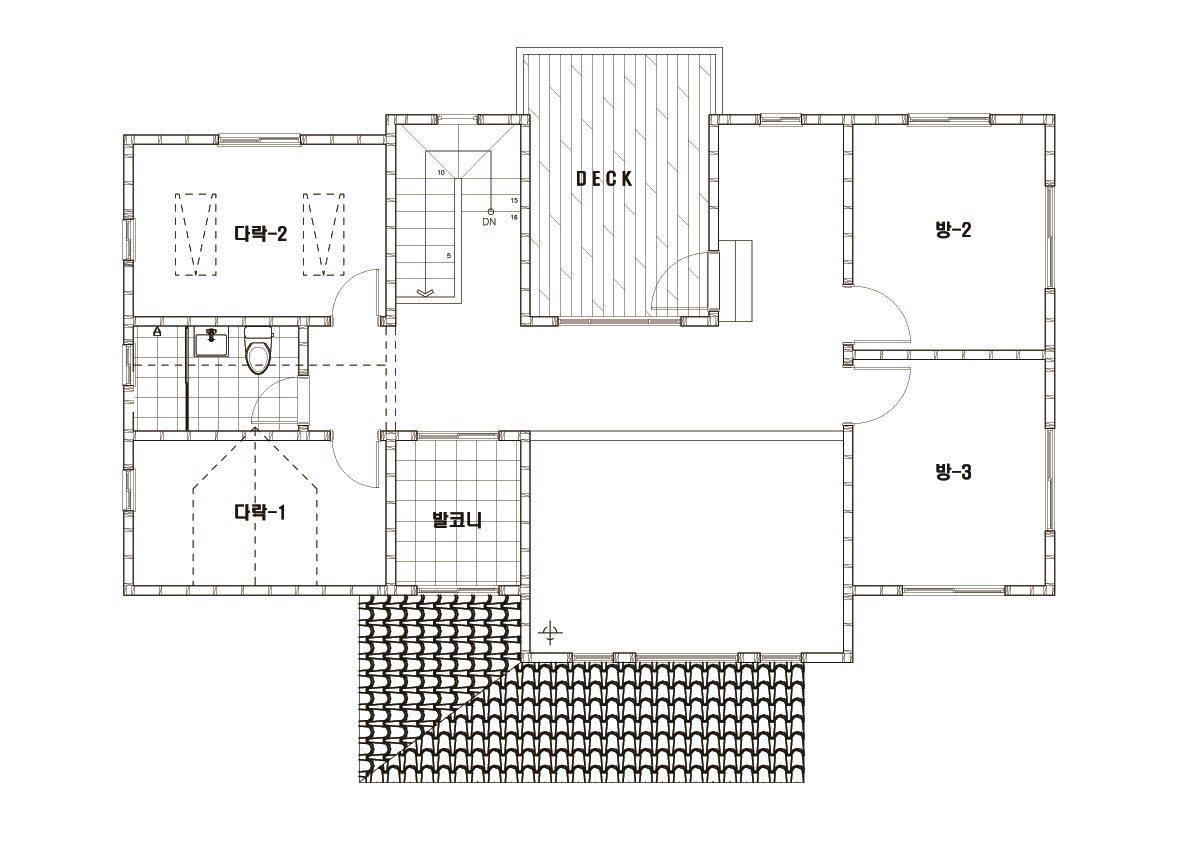
2층평면도.jpg 2층 평면도


Q.설계 방향에 대해 설명해주세요.

이번 설계 방향의 테마는 '동화 속 기와집'입니다. 한 번쯤 동화책을 읽다 보면 꿈만 같은 집을 본 적 있지 않으신가요? 이번 기획설계는 우리가 상상하던 그런 집을 만들겠다는 목표 아래 기획된 설계 안 이랍니다.^^

최근 들어서는 모던한 주택과 지붕을 감추는 디자인이 트렌드로 자리 잡았지만 그래도 우리는 박공지붕에 기와가 올라간 집을 더 기억에 가지고 있을 것입니다.^^

동화 속에 들어와 있는 듯한 느낌처럼 주황빛 기와를 박공지붕 위에 올리고 깔끔한 화이트 톤의 벽에 주황빛 벽돌의 포인트. 그리고 아치형의 포치. 이 조합만으로도 이미 동화 속에 빠져 버린 듯한 느낌을 받습니다.

45평의 가장 안정적이고 전원주택의 매력을 충분히 느낄 수 있는 주택으로 설계를 진행하였으며, 다락같은 숨겨진 공간 등도 계획하여 어느 한 곳 부족함 없는 집을 탄생시켰습니다.^^


Q.면적은 얼마나 되는가요?

총 46평(152.46㎡)으로 설계되었으며, 1층 99.53㎡(30평), 2층 52.93㎡(16평)으로 계획되었습니다. 5인 가족 기준으로 공간을 구성하였으며, 부모님을 모시고 살 수 있는 계획안으로 진행하였습니다. 많은 식구가 사는 공간이기 때문에 답답함을 없애기 위해 오픈 천장 및 개방감을 극대화할 수 있는 요소들을 많이 적용시켜 놓았습니다.^^


Q.비용은 얼마가 들었나요?

건축비의 경우 272,200,000원이 소요될 것으로 예상됩니다. 부가세가 포함된 가격이며, 순수한 건축비입니다.

설계비는 11500,000원이 소요되어졌습니다. 이는 부가세 포함 가격이며, 인허가 및 사용승인 비용도 포함된 금액입니다.


Q.외벽 스타코프렉스의 색깔을 변경할 때 비용이 추가되나요?

그렇지는 않습니다. 외벽 스타코플렉스의 색깔은 다양하게 변경 가능하며, 색을 변경한다고 해서 추가가 되는 것이 아닙니다.


Q.지붕형 발코니의 경우 건축비가 어떻게 되나요?

목조주택에 발코니를 설치할 때에는 필수적으로 지붕을 씌워줘야 합니다. 직사광선을 피하셔야 하며, 발코니 위에 지붕을 시공하여 혹시 모를 누수에 대비하셔야 합니다. 간혹 지붕이 없는 것이 이쁘다고 무조건 해 달라고 하시는 분들이 계신데 이는 위험한 행동입니다. ^^;

건축가가 지붕을 없애도 된다고 하여도 우리 구독자 여러분들은 꼭 지붕을 씌워 달라고 요청하셔야 합니다.^^

지붕형 발코니의 경우 평당 단가로 따졌을 때 260만 원(부가세 포함)으로 진행되며, 내부 마감까지 포함된 금액입니다.


Q.주차장 계획은 꼭 해야 하나요?

주차장의 경우 인허가 단계에서 필수로 들어가야 하는 건축 사항입니다.

많은 분들이 준공단계에서 주차장을 만들어 놓았다가 추후 마당으로 그냥 쓰시는 데 사용 자체에는 문제가 없지만 추후 민원이 들어갔을 때에 벌금 및 원상복구 명령이 떨어질 수 있으므로 남의 집에서 주차장을 안 했다고 하여 내 집에도 안 하는 일은 없으셔야 합니다.^^


Q.설계기간 및 시공기간은 얼마나 걸릴까요?

설계기간은 인허가 포함 3달 정도를 잡는 것이 여유로우며, 목조주택 시공기간은 착공일로부터 3.5개월을 잡는 것이 좋습니다. 사용승인(준공)까지 포함된 기간입니다.


Q.마지막 총평을 한다면?

동화 속 집을 구현한다는 것만으로도 설레는 작업이었던 것 같습니다.^^ 기와의 매력. 특히 노을빛이 기와에 얹힐 때면 그 느낌이 다른 것으로 표현이 불가능한 것 같습니다.

46평의 주택으로 건축주님들이 그동안 꿈꿔왔던 요소들을 집약시킨 이번 설계안. 어떠셨는지 모르겠습니다.

실제로 지어질지는 미정이지만 그 누군가는 이 모델을 짓는 날이 오겠죠?^^

정면도.jpg 정면도
우측면도.jpg 좌측면도
좌측면도.jpg 우측면도
배면도.jpg 배면도
지붕평면도.jpg 지붕평면도

도착


46평 동화 속 기와집의 느낌을 담은 전원주택 기획설계안. 어떠셨나요?

요리보고 저리 봐도 예쁨이 느껴지지 않나요? ^^ 공간을 구성하고 외관을 디자인할 때에는 내가 왜 이렇게 힘든 일을 하고 있을까(?)라는 생각이 들 때가 있는데요. 이렇게 완성된 주택을 보고 있노라면 그러한 걱정이 한순간에 사라진답니다.

마당 있는 집. 그리고 우리 가족이 함께 살 터전. 정말 어떻게 보면 모든 건축주님들의 꿈이지 않을까 생각됩니다.

오늘의 이야기는 여기 까지랍니다.^^ 다음에 더 좋은 기획설계안으로 여러분들을 찾아뵐게요~

감사합니다.

*읽고 난 다음에는 위의 하트모양 라이킷과 공유 꾹 눌러주세용~^^


KakaoTalk_20161025_150013244.jpg (좌측부터) 정다운 건축가, 임성재 건축가, 이동혁 건축가


설계·시공 : 홈트리오(주) 1522-4279

Homepage : http://hometrio.kr

이동혁건축가TV : http://tv.naver.com/sunsutu1

[집이라는 본질적인 가치에 집중하다.]


글쓴이 : 이동혁 건축가

이메일 : sunsutu@hanmail.net

이동혁건축가TV : http://tv.naver.com/sunsutu1


상담 및 자문(홈트리오(주) 대표)

이동혁 건축가 : 010-4567-8413

정다운 건축가 : 010-8560-0477

임성재 건축가 : 010-9941-8899



keyword