#70 '건강과 여유를 찾다.' 칠곡 35평 전원주택

#70 경북 칠곡군 왜관읍 목조 클래식 스타일 35평 전원주택 설계 제안

by 이동혁 건축가

제목 : #70 '미국 감성 주택' 경북 칠곡 35평 전원주택

소제목 : #70 경북 칠곡군 왜관읍 목조 클래식 스타일 35평 전원주택 설계 제안


출발


안녕하세요. 이동혁 건축가 입니다.^^

출장 다녀오다 보니 초등학교는 개학을 했더군요. 운동장에서 뛰어노는 모습을 보니 저도 어릴 적 뛰어놀던 생각이 나네요^^

좀 있으면 대학교도 개강을 할 텐데 그려면 본격적인 봄의 시작이지 않을까 생각해 봅니다.

올봄도 열심히 착공 준비를 하고 있는데요. 경남 지역의 경우 이미 공사가 들어간 곳도 있고 늦어도 3월 말 내에 모든 현장이 착공에 들어갈 것 같습니다.

우리 구독자 여러분들도 저와 같이 내 집짓기 위한 준비를 같이 시작하시면 될 것 같습니다.

오늘 이야기 드릴 주택은 경북 칠곡에 지어질 35평 전원주택입니다. 미국 주택의 클래식함을 담은 주택으로 박공지붕과 화이트 외관은 더욱 클래식함을 돋보이게 합니다.^^

자 그럼 오늘도 출발해 보겠습니다.

*읽고 난 다음에는 위의 하트 모양 라이킷과 공유 꾹 눌러주세용~^^


칠곡 주택thumbnail.jpg

HOUSE PLAN

연면적 : 116.44㎡

1층 : 78.38㎡

2층 : 38.06㎡

규모 : 지상 2층

총괄 건축가 : 이동혁, 임성재, 정다운

설계·시공 : 홈트리오(주) 1522-4279

Homepage : http://hometrio.kr

이동혁건축가TV : http://tv.naver.com/sunsutu1

예상 총 건축비 : 165,700,000원(부가세 포함)

설계비 및 인허가비 : 8,500,000(부가세 포함)

*건축비 외 부대비용 : 대지구입비, 가구(싱크대, 신발장, 붙박이장), 기반시설 인입(수도, 전기, 가스 등), 토목공사, 조경비 등


SPEC

공법 : 기초-철근콘크리트 / 1층, 2층 구조-목조

지붕마감재 : 아스팔트슁글

외벽마감재 : 스타코플렉스

외벽포인트자재 : 파벽돌

실내벽마감재 : 실크벽지

실내바닥마감재 : 강마루

창호재 : 융기 3중 시스템창호

단열재 : 외부벽체(Glasswool Insulation R21HD-15" 나등급)

▷크나우프社 ECOBATT (ECOSE® 특허)

▷HD:저에너지 하우스용 / 15인치(381mm) *동등 제품

: 내부벽체(Glasswool Insulation R19-15" 다등급)

: 천장(Glasswool Insulation R30-15" 다등급)

: 지붕(Glasswool Insulation R37-23" 가등급) ▷ISOVER社에너지세이버

*단열기준은 2016년 7월1일자로 변경되는 단열기준법을 적용하여 강화시켜 놓았습니다.


1층 copy.jpg 1층 평면도


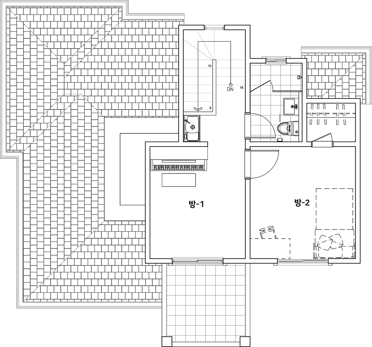
2층 copy.jpg 2층 평면도


Q.설계 방향에 대해 설명해주세요.

이번 설계 방향의 테마는 '건강과 여유를 찾다.'입니다. 팍팍한 도심생활 속 어느 순간 여유와 나 자신을 잃어버린 듯한 느낌을 받은 적은 없으신지요? 최근 들어 전원주택이 열풍인데 이 흐름에 여유가 없는 도심 속 생활이 한몫을 하지 않았나 생각합니다.

집이라는 것은 편안해야 하고 힘든 몸이 충분히 쉴 수 있는 공간이어야 한다고 생각합니다. 이번 주택은 건축주님의 건강과 여유로는 생활을 위해 지어진 주택으로 가성비는 높게 하지만 과하지 않게 라는 목표 아래에 설계가 진행되었습니다.


Q.면적은 얼마나 되는가요?

총 35평(116.44㎡)으로 설계되었으며, 1층 78.38㎡(24평), 2층 38.06㎡(11평)으로 계획되었습니다. 4인 가족 기준으로 공간을 구성하였으며, 주방 공간을 조금 줄이는대신 다용도실 공간을 별도로 구성하여 작지만 실용성 가득한 공간으로 설계하였습니다.


Q.비용은 얼마가 들었나요?

건축비의 경우 165,700,000원이 소요될 것으로 예상됩니다. 부가세가 포함된 가격이며, 순수한 건축비입니다.

설계비는 8,500,000원이 소요되어졌습니다. 이는 부가세 포함 가격이며, 인허가 및 사용승인 비용도 포함된 금액입니다.


Q.외벽 스타코프렉스의 색깔을 변경할 때 비용이 추가되나요?

그렇지는 않습니다. 외벽 스타코플렉스의 색깔은 다양하게 변경 가능하며, 색을 변경한다고 해서 추가가 되는 것이 아닙니다.


Q.지붕형 발코니의 경우 건축비가 어떻게 되나요?

목조주택에 발코니를 설치할 때에는 필수적으로 지붕을 씌워줘야 합니다. 직사광선을 피하셔야 하며, 발코니 위에 지붕을 시공하여 혹시 모를 누수에 대비하셔야 합니다. 간혹 지붕이 없는 것이 이쁘다고 무조건 해 달라고 하시는 분들이 계신데 이는 위험한 행동입니다. ^^;

건축가가 지붕을 없애도 된다고 하여도 우리 구독자 여러분들은 꼭 지붕을 씌워 달라고 요청하셔야 합니다.^^

지붕형 발코니의 경우 평당 단가로 따졌을 때 260만 원(부가세 포함)으로 진행되며, 내부 마감까지 포함된 금액입니다.


Q.주차장 계획은 꼭 해야 하나요?

주차장의 경우 인허가 단계에서 필수로 들어가야 하는 건축 사항입니다.

많은 분들이 준공단계에서 주차장을 만들어 놓았다가 추후 마당으로 그냥 쓰시는 데 사용 자체에는 문제가 없지만 추후 민원이 들어갔을 때에 벌금 및 원상복구 명령이 떨어질 수 있으므로 남의 집에서 주차장을 안 했다고 하여 내 집에도 안 하는 일은 없으셔야 합니다.^^


Q.설계기간 및 시공기간은 얼마나 걸릴까요?

설계기간은 인허가 포함 3달 정도를 잡는 것이 여유로우며, 목조주택 시공기간은 착공일로부터 3.5개월을 잡는 것이 좋습니다. 사용승인(준공)까지 포함된 기간입니다.


Q.마지막 총평을 한다면?

집을 디자인하다 보면 클래식한 주택의 느낌을 문득 아무 생각 없이 바라볼 때가 있습니다. 국내에서는 다양한 스타일의 디자인이 창출되지만 해외의 경우 대부분 클래식 스타일의 주택들이 주를 이루고 있는 것을 볼 수 있습니다. 집을 과시하는 목적으로 짓는 것이 아닌 정말로 내 가족들이 편안하게 쉴 수 있는 그런 공간. 내가 가진 예산 안에서 충분히 넓고 따뜻한 집을 짓고 구할 수 있다는 기본 생각이 깔려 있기 때문에 너무 과한 주택이 탄생되지 않았던 것 같습니다.

집은 정말로 내가 원하는 단 한 가지 요소만 들어가 있어도 훌륭한 집이 될 수 있다고 생각합니다.

우리 구독자 여러분 혹 집을 짓는다고 너무 힘들어하고 스트레스받지는 않았는지요? 정말로 내가 처음 집을 짓고자 했을 때의 마음. 너무 과한 주택이 아닌 여유를 가지고 천천히 집을 준비하시고 짓길 바라겠습니다.^^


정면도 copy.jpg 정면도


좌측면도 copy.jpg 좌측면도


우측면도 copy.jpg 우측면도


배면도 copy.jpg 배면도


지붕 copy.jpg 지붕평면도
입면 전체.jpg
투시 1.jpg
투시 2.jpg
투시 3.jpg

도착


35평 경북 칠곡군 왜관읍에 지어질 전원주택 설계안. 어떠셨나요?

올해 봄 공사 계약이 완전히 마감되었습니다. 모든 건축주님들께 감사인사를 전합니다. 이제 가을 공사 계약만 진행하며, 올봄은 저희를 믿고 계약해 주신 건축주님들께 모든 역량을 쏟아붓도록 하겠습니다.^^

많은 분들이 계약시기를 많이들 혼동해하십니다. 어떤 데는 바로 집을 지을 수 있다고 하는 곳도 있고 어떤 곳은 3개월 이상 설계가 걸린다고 하는 곳도 있고...

참 판단하기 어렵죠? 하지만 제 경험상 설계는 3개월 정도 가지고 가는 것이 좋습니다. 물론 빨리빨리 결정이 되어 시간을 단축시킬 수는 있습니다.

대부분의 건축주님들이 시공이 더 어렵다고 생각하지만 실상은 설계가 더 어렵습니다.^^; 시공은 설계도 그대로 짓기만 하면 되기 때문이지요.

설계는 한번 그려져서 인허가가 득해지면 더 이상의 수정은 어렵습니다. 공사 도중 내 마음대로 변경할 시 추가비가 발생될 수밖에 없으므로 쉽게 변경은 어렵다고 보는 것이 맞습니다.

저희들이 10년이라는 시간 동안 건축을 진행해온 결과 계약을 위한 상담은 진행하지 않기로 했습니다. 어설프게 남의 설계를 들고 와서 가설계라고 우기는 사람이 있는가 반면, 건축과 조차도 나오지 않은 사람이 현장에 나와 상담을 하는 등... ㅠㅠ

저희는 저희가 초기에 가졌던 모토를 그대로 유지하기로 했습니다. 흔들리지 않고 1년에 50채만을 잘 짓는 건축가. 100% 신뢰하시는 분만 계약한다는 마음. 그 마음 잃지 않고 굳게 건축의 길을 걸어 나가겠습니다.^^

간혹 다른 곳은 다 된다는데 왜 이곳만 안되느냐?라고 질문하시는 분들이 계십니다. 된다라고 말하는 것은 쉽습니다.^^; 다 된다라고 하면 바로 계약을 이끌어 낼 수 있으니까요. 하지만 저희들은 계약 전 문제점들을 미리 이야기드리고자 합니다. 저희가 세운 원칙. 정도의 길을 걷고 지켜나가겠습니다.^^

감사합니다.

*읽고 난 다음에는 위의 하트모양 라이킷과 공유 꾹 눌러주세용~^^


KakaoTalk_20161025_150013244.jpg (좌측부터) 정다운 건축가, 임성재 건축가, 이동혁 건축가


설계·시공 : 홈트리오(주) 1522-4279

Homepage : http://hometrio.kr

이동혁건축가TV : http://tv.naver.com/sunsutu1

[집이라는 본질적인 가치에 집중하다.]


글쓴이 : 이동혁 건축가

이메일 : sunsutu@hanmail.net

이동혁건축가TV : http://tv.naver.com/sunsutu1


상담 및 자문(홈트리오(주) 대표)

이동혁 건축가 : 010-4567-8413

정다운 건축가 : 010-8560-0477

임성재 건축가 : 010-9941-8899



keyword