#31 '협소주택 디자인하다.' 고벽돌 32평 단독주택

#31 철근콘크리트 협소주택 32평 도심형 단독주택 설계제안

by 이동혁 건축가

제목 : #31 '협소주택을 디자인하다.' 고벽돌 32평 단독주택

소제목 : #31 철근콘크리트 협소주택 32평 도심형 단독주택 설계제안


출발


안녕하세요. 이동혁 건축가 입니다.^^

박람회 준비한다고 정신없이 돌아다녔더니 이제서야 컴퓨터 앞에 다시 앉네요. ㅠㅠ

이번 박람회는 내년 봄 공사를 준비하시는 건축주님들을 위해 많은 혜택을 담았으니 많이들 구경와주세요. 오신 차비보다 더 큰 금액적 혜택을 빵빵 쏘도록 하겠습니다.^^

오늘의 설계제안은 실재 로 설계된 것은 아니지만 요즘 한창 열풍처럼 불고있는 협소주택에 관련된 내용입니다.

서울이나 도심지 작은 대지에 내 집을 짓겠다고 공부중이신 분들이 계시면 이번주택 저와 같이 꼼꼼이 살펴보시면 좋을 듯 합니다.^^

자 그럼 오늘도 출발해 보겠습니다.

*읽고 난 다음에는 위의 하트모양 라이킷과 공유 꾹 눌러주세용~^^



HOUSE PLAN

연면적 : 111.68㎡

1층 : 49.00㎡

2층 : 13.66㎡

3층 : 49.00㎡

총괄 건축가 : 이동혁, 임성재, 정다운

설계·시공 : 홈트리오(주) 1522-4279

Homepage : http://hometrio.kr

이동혁건축가TV : http://tv.naver.com/sunsutu1

예상 총 건축비 : 230,000,000원(부가세포함)

설계비 및 인허가비 : 8,500,000(부가세포함)

*건축비 외 부대비용 : 대지구입비, 가구(싱크대, 신발장, 붙박이장), 기반시설인입(수도,전기,가스 등), 토목공사, 조경비 등


SPEC

공법 : 기초-철근콘크리트 / 1층, 2층, 3층 구조-철근콘크리트

지붕마감재 : 리얼징크

외벽마감재 : 고벽돌

외벽포인트자재 : 적삼목사이딩, 리얼징크, 노출콘크리트 패널

실내벽마감재 : 실크벽지

실내바닥마감재 : 강마루

창호재 : 엘지 2중 하이샤시 창호


1층 평면도
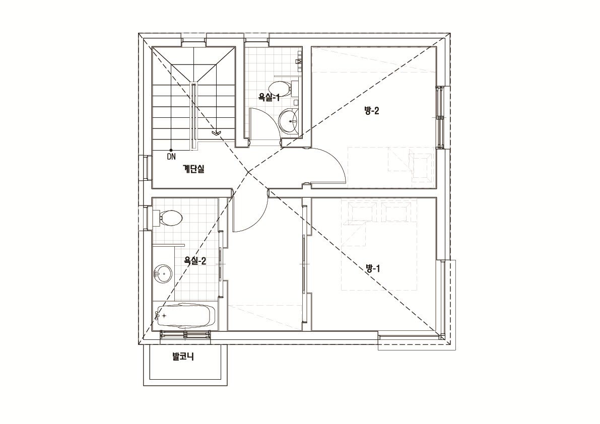
2층 평면도
3층 평면도


Q.설계 방향에 대해 설명해주세요.

이번 설계방향은 20평 미만의 대지에 짓는 '협소주택'입니다.^^ 저도 젋다보니 협소주택에 관한 내용에 많은 관심을 가지고 있는데요. 좁은 땅에 나만의 집을 짓는다는 꿈. 여러분들도 저와 같은 꿈을 꾸고 계신가요?

이번 설계제안된 단독주택은 1층 공간의 평수가 14평으로 작습니다. 하지만 각 층 별로 필요한 공간들을 분리시켜 배치해 좁지만 넓은 공간처럼 보이는 계획을 진행하였습니다.^^


Q.면적은 얼마나 되는가요?

총 3층으로 구성하였으며, 1층 49.00㎡(14평), 2층 13.66㎡(4평), 3층 49.00㎡(14평) 으로 구성하였습니다. 총 연면적 32평으로 설계하였으며, 2층 베란다의 공간은 이 면적에서 빠져있습니다.


Q.비용은 얼마가 들었나요?

공사비는 총 220,000,000원이 소요될 것으로 판단되며, 설계비는 인허가비 포함 8,500,000원이 책정되어 진행되어졌습니다. 제시된 금액은 모두 부가세가 포함 된 가격입니다.


Q.창호의 경우 어떤 것을 사용하고 있나요?

아파트와 다르게 전원주택은 4면이 외기에 접촉되고 있기 때문에 창호에 대한 부분을 많이 신경쓰셔야 합니다. 벽때문에 춥기보다는 창호때문에 춥다는 말이 오히려 맞을 것입니다. 저희는 현재 3중 시스템 창호를 전 창호로 적용하고 있습니다. 일반 창호의 경우 밀폐력이 조금 떨어져 아무리 벽 단열을 잘 해도 열이 새어나가는 현상이 있어 현재는 모든 시공현장에 3중 시스템 창호만을 사용하고 있습니다.


Q.외관 디자인의 컨셉이 무엇인가요?

제 설계 스타일을 보시면 외관을 테라코트나 스타코플렉스 화이트톤의 마감을 많이 사용하였었는데요. 이번에는 요즘 문의가 많이 들어오는 고벽돌 스타일의 파벽돌을 사용해 보았습니다.

외벽을 돌 마감으로하게되면 기본적으로 무게감 있는 느낌을 가지고 갈 수 있다는 장점이 있습니다. 외벽 돌 마감에 이어 지붕을 리얼징크로 마감해 주었으며, 난간부분도 블랙톤의 단조난간으로 계획하여 전체적으로 모던하면서 세련된 느낌의 주택 느낌을 주고자 하였습니다.^^


Q.이번 주택에서의 포인트는 무엇인가요?

바로 '공간감'일 것입니다. 작은 공간에 내가 원하는 요소들을 모두 넣어주는 것. 그것이 바로 건축 설계가 가진 매력이 아닐까 싶습니다. 또한 매스적으로 너무 획일적으로 집을 올린 것이 아니라 2층에 베란다를 설치하여 별다른 매스 계획을 통하지 않더라도 입체감 있는 외형을 가지고 갈 수 있도록 하였습니다.


Q.시공기간은 얼마나 걸릴까요?

설계기간은 기본적으로 3개월은 가지고 가야 하며, 시공기간은 5개월 정도 소요됩니다. 집을 짓는 시기는 봄과 가을로 한정되어져 있기 때문에 착공시기 최소 6개월 전에는 설계부터 스타트 하셔야 원하시는 날짜에 착공이 가능하십니다.^^


Q.마지막 총평을 한다면?

협소주택의 매력은 작은 땅에 우리 가족만을 위한 집을 짓는다는 것일 겁니다. 저 또한 적당한 땅만 구해진다면 협소주택으로 집을 한채 짓고 싶은 것이 꿈이랍니다.^^

집을 지을 때 제가 자주 하는 말이 있습니다.

"절대로 남이 좋다는 것을 다 따라가지는 마세요."

각 가정마다 라이프스타일이 모두 다릅니다. 또한 취향 또한 모두 다릅니다.

모두 다른 인성과 성격을 가진 사람들이기 때문에 획일적으로 공간을 계획한다는 것은 맞지 않습니다.

누군가는 14평의 공간을 보고 작다라고 말할 수 있습니다.

하지만 어떤이는 14평의 공간을 보고 크다라고 말 할 수 있습니다.

모든 사람이 보는 공간감을 다 다릅니다.^^

이 말을 한 이유는 주변의 말에 너무 연연해 하시지 않으셔도 되시기 때문입니다.

협소주택을 계획하는 분들이 가장 어려워 하는 것은 공간구성을 하고 주변분들에게 물어볼 때 입니다.

대부분의 주변분들은 와 좋다. 보다는 너무 집이 작지 않을까? 라는 물음을 남기싶니다.^^;

집은 나와 내 가족이 생활하는 공간이랍니다. 우리 가족에 마음에 들면 그것이 최고의 집이랍니다.

남의 눈과 평가에 연연해 하시지 마시고 처음 가지고 계셨던 그 마음 그대로 집을 짓길 바라겠습니다.

감사합니다.^^


도착


이번 32평 협소주택 설계제안 어떠셨나요?

아파트의 경우 아이들이 마음껏 뛰어놀지 못한다는 문제 때문에 많이들 마음아파하셨죠?

저 또한 아파트를 개인적으로 좋아하기는 하지만 우리 가족의 라이프스타일을 담은 것이 아니고 획일적인 공간으로 구성되다보니 맞지 않은 옷을 입은듯한 느낌이 들 때가 많답니다.

아파트를 떠나 마당있는 집을 지으면 참 좋겠지만 현실적으로 만만치가 않습니다.

그래서 최근에 트렌드로 떠오르고 있는 것이 이번에 제안드린 협소주택이라는 분야입니다.

좁은 땅이지만 잘만 활용한다면 아파트보다 짜임새 있는 공간을 만들어 낼 수 있고 한정된 예산안에서 완성시킬 수 있다는 장점이 있기 때문에 매우 매력적인 집이라고 할 수 있습니다.

제가 제안드리는 설계제안은 "꼭 이대로 지으세요!" 라고 제안드리는 것이 아닙니다.

여러가지의 문제점 등을 가정하고 아 이러한 문제를 설계적으로 풀려면 이렇게 하면 되겠구나하고 방법을 제시한 것입니다.^^

많은 분들이 꼭 이렇게 지어야 하나요? 라고 질문하시는데 절대로 그럴 필요 없습니다. 또한 땅의 컨디션이 두 다르기 때문에 똑같이 짓는 것도 불가능하답니다.

오늘은 여기까지 입니다.^^ 협소주택을 준비하시는 분들께 많은 도움이 되었으면 좋을텐데 도움되는 내용이었을지는 모르겠습니다. ㅠㅠ

이번주 목요일부터는 건축박람회가 열리는 관계로 다음주 정도에 다시 연재한 예정입니다.

박람회장 많이 찾아와주시고 다음주에 좋은 설계안으로 다시 찾아뵙겠습니다.^^

감사합니다.

*읽고 난 다음에는 위의 하트모양 라이킷과 공유 꾹 눌러주세용~^^



(좌측부터) 정다운 건축가, 이동혁 건축가, 임성재 건축가


총괄 건축가 : 이동혁, 임성재, 정다운

설계·시공 : 홈트리오(주) 1522-4279

Homepage : http://hometrio.kr

이동혁건축가TV : http://tv.naver.com/sunsutu1

[집이라는 본질적인 가치에 집중하다.]


글쓴이 : 이동혁 건축가

이메일 : sunsutu@hanmail.net


상담 및 자문

이동혁 건축가 : 010-4567-8413

정다운 건축가 : 010-8560-0477

임성재 건축가 : 010-9941-8899