#30 '주방을 중심으로 설계하다.' 41평 모던주택.

#30 목조 모던 스타일 41평 전원주택 설계제안

by 이동혁 건축가

제목 : #30 '주방을 중심으로 설계하다.' 41평 모던주택.

소제목 : #30 목조 모던 스타일 41평 전원주택 설계제안


출발


안녕하세요. 이동혁 건축가 입니다.^^

더운 날씨에 구독자 여러분 많이 힘드시죠? ㅠㅠ 날씨가 이렇게 더운적이 있었던가(?) 다시한번 생각하게 되는 날이네요.

이번달에 유독 준공(사용승인)이 나는 주택들이 많았습니다. 그만큼 완공사례들을 많이 올려드리는 달이 되었네요.^^ 집을 짓는 기간동안에는 너무나도 힘들지만 이렇게 완공을 하고 사용승인까지 마무리되고 입주하시는 것을 보고 있노라면 이 뭉클함 감정은 매번 느껴도 좋기만 하답니다.^^

오늘 소개시켜드릴 주택설계는 41평 모던 스타일의 전원주택입니다.

저희가 설계하는 스타일을 자세히 보시면 저희들의 설계 모토라고 해야 할까요(?) 추구하는 바가 조금씩은 들어가 있답니다.^^; 외장은 최대한 깔끔하게 마무리하되 정갈한 느낌을 많이 주고자 하며, 실내 동선은 얽히지 않고 공용공간과 개인공간을 철저히 분리시켜 설계하는 것. 개인적으로 공간이 무의미하게 소모되는 데드스페이스를 워낙에 싫어하다보니 간결하지만 실용적인 공간 위주로 저도 모르게 설계를 하는 것 같습니다.^^

오늘 설계제안은 모던 스타일이기는 하지만 좌, 우로 길게 뻗어나가는 공간배치로 계획하였습니다.

자 그럼 같이 집이 어떻게 설계되었는지 확인해 보러 출발하시죠!

*읽고 난 다음에는 위의 하트모양 라이킷과 공유 꾹 눌러주세용~^^


합천-초계면-투시도1thumbnail.JPG


HOUSE PLAN

연면적 : 135.04㎡

1층 : 71.42㎡

2층 : 40.64㎡

총괄 건축가 : 이동혁, 임성재, 정다운

설계·시공 : 홈트리오(주) 1522-4279

Homepage : http://hometrio.kr

이동혁건축가TV : http://tv.naver.com/sunsutu1

예상 총 건축비 : 207,500,000원(부가세포함)

설계비 및 인허가비 : 10,250,000(부가세포함)

*건축비 외 부대비용 : 대지구입비, 가구(싱크대, 신발장, 붙박이장), 기반시설인입(수도,전기,가스 등), 토목공사, 조경비 등


SPEC

공법 : 기초-철근콘크리트 / 1층, 2층 구조-경량목구조

지붕마감재 : 아스팔트슁글

외벽마감재 : 스타코플렉스

외벽포인트자재 : 파벽돌

실내벽마감재 : 실크벽지

실내바닥마감재 : 강마루

창호재 : 융기 3중 시스템창호

단열재 : 외부벽체(Glasswool Insulation R21HD-15" 나등급)

▷크나우프社 ECOBATT (ECOSE® 특허)

▷HD:저에너지 하우스용 / 15인치(381mm) *동등 제품

: 내부벽체(Glasswool Insulation R19-15" 다등급)

: 천장(Glasswool Insulation R30-15" 다등급)

: 지붕(Glasswool Insulation R37-23" 가등급) ▷ISOVER社에너지세이버

*단열기준은 2016년 7월1일자로 변경되는 단열기준법을 적용하여 강화시켜 놓았습니다.


1층평면도.jpg 1층 평면도
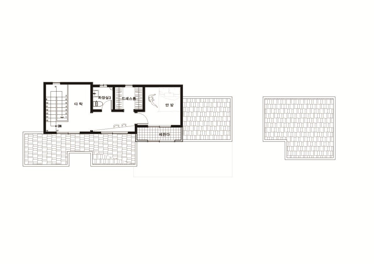
2층평면도.jpg 2층 평면도


Q.설계 방향에 대해 설명해주세요.

이번 설계방향의 테마는 '주방을 중심으로 하다.' 입니다. 보통 집을 구성할 때 가장 중심적으로 배치되는 공간이 어디일까요? 제 생각이는 90% 이상 거실을 중심으로 공간구성을 시작하실 것입니다. 물론 저도 설계할 때 가급적이면 거실을 중심으로 그리는 편이랍니다.^^;

이번 주택에서는 기존의 고정관념을 깨고 주방을 중심으로 각 실과 거실을 배치해 보았답니다. 예전처럼 거실에서 많은 시간을 보내는 것이 아닌 오히려 주방과 식당에서 대화를 하고 여가생활을 즐기는 분들이 많아지셔서 점점 주방 공간이 커지고 집의 중심적인 역할로 옮겨가고 있는 것 같습니다.

남자인 저도 요즘은 주방과 식당이 컸으면 하는 생각이 들 정도니 여러분들도 어느정도 공감하시는 부분들이 있을거라 생각합니다.^^


Q.면적은 얼마나 되는가요?

총 41평으로 계획되어졌으며, 1층은 71.42㎡(22평), 2층은 40.64㎡(19평)으로 지어졌습니다. 4인가족을 위한 공간으로 계획되어졌으며, 별동을 계획하여 공간적 활용도를 높게 가져갈 수 있도록 하였습니다.


Q.비용은 얼마가 들었나요?

총 207,500,000원이 소요될 것으로 판단됩니다. 부가세가 포함 된 가격이며, 순수한 건축비 입니다. 설계비는 10,250,000원이 소요되어졌습니다. 이는 부가세 포함 가격이며, 인허가 및 사용승인 비용도 포함된 금액입니다.


Q.지붕의 경사도를 다르게하면 공사비가 증가되나요?

지붕의 경사도를 다르게 한다고 하여 공사비가 증가되지는 않습니다.^^ 다만 그 속안에 다락방 같은 실을 구성하였을 경우에는 추가비용이 있지만 하부 공간을 플랫하게 천장 마감하고 지붕 경사면 속을 벤트 공간으로만 활용한다면 별도의 추가비용은 발생하지 않습니다.^^


Q.모던 스타일로 집을 지으면 더 비싸다던데 사실인가요?

그렇지는 않습니다. 모던으로 짓는다고하여 공사비가 비싸진다고 하는 것은 틀린 말입니다. 공사비의 증가는 포치, 발코니, 데크 등 집 외부적으로 더 붙여내는 부분들과 포인트와 인테리어적인 부분 때문에 공사비가 주로 증가하는 것이지 절대로 외관 이미지를 모던으로 한다고 하여 공사금액이 증가하지는 않습니다.^^


Q.별동을 지을 때 추가비가 더 들어가나요?

기본 주택과 같이 연계되어 지었을 경우에는 특별한 추가비용이 없으나 별동을 지을 경우 기본적으로 물량 자체가 더 들어가기 때문에 추가비가 발생되어지는 것이 현실입니다.^^ 큰 추가비용보다는 외부 면적에 대한 포인트 부분과 기초 공사에 대한 부분이 조금 더 발생되어진다고 보시면 될 것 같습니다.


Q.설계기간 및 시공기간은 얼마나 걸릴까요?

설계기간은 인허가포함 3달 정도를 잡는 것이 여유로우며, 시공기간은 착공일로 부터 3.5개월을 잡는 것이 좋습니다. 사용승인(준공)까지 포함된 기간입니다. 요즘 건축문의가 많아지면서 계약에 관련된 내용을 많이 물으시는데요. 오늘 계약했다고 해서 내일 당장 집을 지을 수 있는 것은 아니랍니다.^^; 저희의 경우에는 최소 착공일 6개월 전에 계약이 진행되어야 원하는 공사날짜에 스타트가 가능합니다. 아마 이 부분은 컨테이너가 아닌 이상 타 업체들도 동일한 일정이라고 생각합니다.


Q.마지막 총평을 한다면?

드디어 다음주 부터 일산 킨텍스에서 MBC건축박람회가 시작되네요.^^ 올해 두 번째 나가는 것인데 건축주님들을 뵌다고 생각하니 벌써부터 설레입니다.

저희가 진행했던 주택 사례들과 가이드북 2.1버전을 들고나갈 예정이며, 모든 주택들의 금액을 투명하게 공개할 예정이니 많은 참석 부탁드립니다.^^

감사합니다.^^


정면도.jpg 정면도
좌측면도.jpg 좌측면도
우측면도.jpg 우측면도
배면도.jpg 배면도
합천-초계면-투시도2.JPG
합천-초계면-투시도3.JPG
합천-초계면-투시도4.JPG


도착


41평 모던 스타일 전원주택 설계안. 어떠셨나요?

41평 안에는 별동은 포함되어지지 않았답니다. 그 이유는 설계도를 자세히 보시면 창고 공간으로 인허가를 냈기 때문입니다. 물론 지금은 창고 공간이지만 추후에 생활공간으로도 사용을 할 수 있도록 설비계획을 같이 진행해 놓았답니다.

오늘 상담을 하던 도중에 고벽돌에 대한 문의가 있었는데요. 오리지날 고벽돌은 솔직히 국내에서 구한다는 것은 하늘의 별따기라 말씀드리고 싶습니다. 또한 구한다고 해도 너무 고가라 시공비 자체가 너무 부담되는 것이 사실입니다.

고벽돌의 느낌을 원하신다면 가급적이면 그 분위기를 낼 수 있는 다른 대체자재를 사용하여 마감 하는 것을 추천드립니다. 물론 오리지널과의 느낌적 차이는 있지만 그 비싼 비용을 들여서 외관을 꾸미는 것은 제 개인적 생각으로는 너무 낭비라고 생각합니다.(이는 완전히 제 개인적 생각입니다. ㅠㅠ 고벽돌 판매하시는 분들이 보면 또 뭐라고 하겠네요. 그래도 외장재에 많은 비용을 들이시는 것은 반대입장이랍니다.^^;)

오늘의 설계 이야기는 여기까지 랍니다.^^ 조금씩 글을 쓴지가 거의 10개월 가량 된 것 같습니다. 글도 100개가 넘게 발행되었네요. 시간이 참 빠른 것 같습니다. 앞으로도 꾸준하게 글 연재해 드릴테니 많은 관심과 사랑 부탁드립니다.

감사합니다.^^

*읽고 난 다음에는 위의 하트모양 라이킷과 공유 꾹 눌러주세용~^^


(좌측부터) 정다운 건축가, 임성재 건축가, 이동혁 건축가

총괄 건축가 : 이동혁, 임성재, 정다운

설계·시공 : 홈트리오(주) 1522-4279

Homepage : http://hometrio.kr

이동혁건축가TV : http://tv.naver.com/sunsutu1

[집이라는 본질적인 가치에 집중하다.]


글쓴이 : 이동혁 건축가

이메일 : sunsutu@hanmail.net


상담 및 자문

이동혁 건축가 : 010-4567-8413

정다운 건축가 : 010-8560-0477

임성재 건축가 : 010-9941-8899