#29 'ㄱ자형 주택의 매력' 40평 모던주택을 말하다

#29 목조 모던 스타일 40평 전원주택 설계제안

by 이동혁 건축가

제목 : #29 'ㄱ자형 주택의 매력' 40평 모던 주택을 말하다.

소제목 : #29 목조 모던 스타일 40평 전원주택 설계제안


출발


안녕하세요. 이동혁 건축가 입니다.^^

더위가 살짝이지만 조금 누그러진 것 같습니다. 저녁에 잠잘때 조금은 시원한 느낌을 받았네요.^^

오늘 소개시켜드릴 집은 'ㄱ'자형 주택입니다. 좁은 대지에서 최대한의 마당 공간과 집 내부에 균일한 채광을 유지할 수 있다는 큰 장점이 있는 평면형태이며, 입체적인 외관을 느낄 수 있는 사례인 만큼 눈여겨 보시면 좋을 듯 합니다.^^

이번 주택은 전면부의 리얼징크 포인트와 좌측편의 파벽돌 시공으로 집의 무게감과 모던의 세련됨을 같이 가지고 갈 수 있게한 모던 스타일의 전원주택입니다.

기존의 설계안과는 조금 다른 공간구성으로 설계된 만큼 공간구성 위주로 잘 살펴보신다면 많은 도움이 되시리라 생각합니다.^^

자 그럼 같이 집이 어떻게 설계되었는지 확인해 보러 출발하시죠!

*읽고 난 다음에는 위의 하트모양 라이킷과 공유 꾹 눌러주세용~^^


광주-정희범님 투시도(thumbnail).JPG


HOUSE PLAN

연면적 : 133.87㎡

1층 : 87.74㎡

2층 : 46.13㎡

총괄 건축가 : 이동혁, 임성재, 정다운

설계·시공 : 홈트리오(주) 1522-4279

Homepage : http://hometrio.kr

이동혁건축가TV : http://tv.naver.com/sunsutu1

예상 총 건축비 : 227,100,000원(부가세포함)

설계비 및 인허가비 : 10,000,000(부가세포함)

*건축비 외 부대비용 : 대지구입비, 가구(싱크대, 신발장, 붙박이장), 기반시설인입(수도,전기,가스 등), 토목공사, 조경비 등


SPEC

공법 : 기초-철근콘크리트 / 1층, 2층 구조-경량목구조

지붕마감재 : 아스팔트슁글

외벽마감재 : 스타코플렉스

외벽포인트자재 : 파벽돌, 리얼징크

실내벽마감재 : 실크벽지

실내바닥마감재 : 강마루

창호재 : 융기 3중 시스템창호

단열재 : 외부벽체(Glasswool Insulation R21HD-15" 나등급)

▷크나우프社 ECOBATT (ECOSE® 특허)

▷HD:저에너지 하우스용 / 15인치(381mm) *동등 제품

: 내부벽체(Glasswool Insulation R19-15" 다등급)

: 천장(Glasswool Insulation R30-15" 다등급)

: 지붕(Glasswool Insulation R37-23" 가등급) ▷ISOVER社에너지세이버

*단열기준은 2016년 7월1일자로 변경되는 단열기준법을 적용하여 강화시켜 놓았습니다.


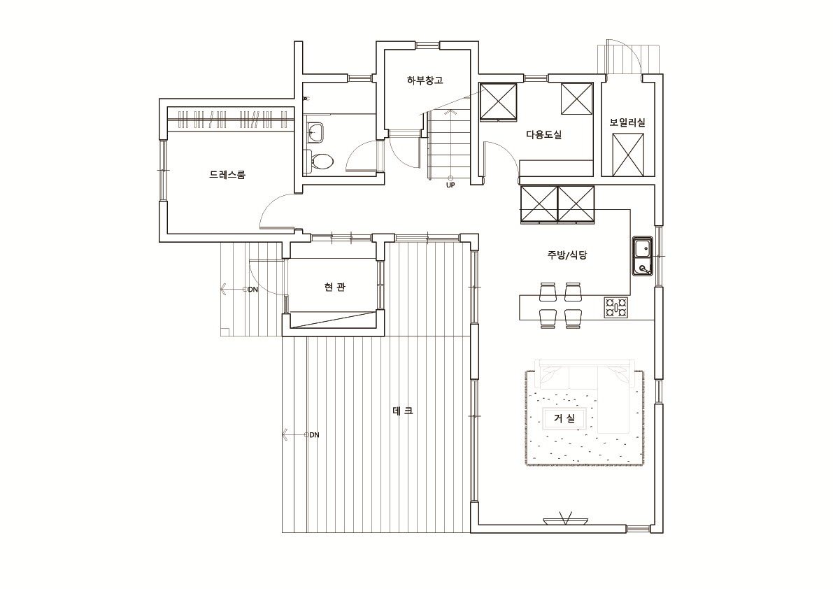
1층평면도.jpg 1층 평면도
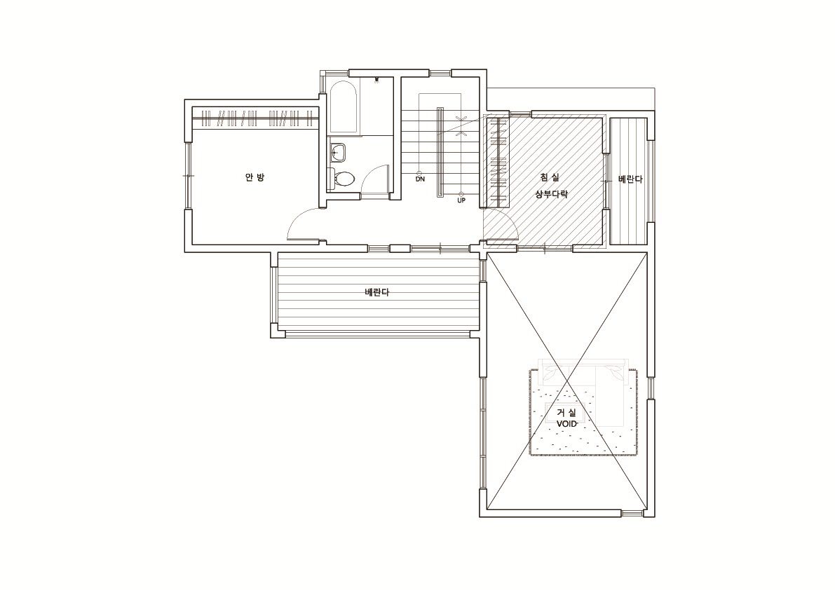
2층평면도.jpg 2층 평면도


Q.설계 방향에 대해 설명해주세요.

이번 설계방향의 테마는 'ㄱ자형 주택의 매력'입니다. 협소한 대지나 모든 실내에 균일한 채광을 얻고 싶어하시는 분들은 이번 'ㄱ'자형 주택평면을 잘 살펴보시기 바랍니다. 'ㄱ'자형 평면의 단점으로는 각 실로 이동하는 이동공간이 다른 평면구성보다 많이 소요된다는 점에 있습니다. 하지만 다른 평면구성보다 넓은 마당을 확보할 수 있고 대지의 경계라인을 따라 집을 앉힐 수 있다는 장점이 있어 많이 사용되고 있는 평면구성 방식입니다.

내 땅이 조금 이상하거나 채광에 대한 문제가 걸린다면 이번 주택의 평면구성안을 참고하시면 좋은 해결방안이 나오시리라 생각합니다.^^


Q.면적은 얼마나 되는가요?

총 40평으로 계획되어졌으며, 1층은 87.74㎡(27평), 2층은 46.13㎡(13평)으로 지어졌습니다. 'ㄱ'자형 배치는 일반적으로 이동공간을 많이 소요시킨다는 단점이 있지만 반대로 대지의 제약을 쉽게 해결할 수 있다는 장점과 모든 실에 균일한 채광을 수 있다는 장점을 동시에 가지고 있습니다.


Q.비용은 얼마가 들었나요?

총 227,100,000원이 소요될 것으로 판단됩니다. 부가세가 포함 된 가격이며, 순수한 건축비 입니다. 설계비는 10,000,000원이 소요되어졌습니다. 이는 부가세 포함 가격이며, 인허가 및 사용승인 비용도 포함된 금액입니다.


Q.지붕의 경사도를 다르게하면 공사비가 증가되나요?

지붕의 경사도를 다르게 한다고 하여 공사비가 증가되지는 않습니다.^^ 다만 그 속안에 다락방 같은 실을 구성하였을 경우에는 추가비용이 있지만 하부 공간을 플랫하게 천장 마감하고 지붕 경사면 속을 벤트 공간으로만 활용한다면 별도의 추가비용은 발생하지 않습니다.^^


Q.리얼징크의 경우 시공비가 어떻게 되나요?

각 시공사마다 리얼징크의 시공단가는 다르겠지만 저희의 경우 기본적용되어져 있는 아스팔트슁글에서 리얼징크로 변경 시 평당가격으로 15만원을 받고 있습니다. 하지작업 및 시공비, 부가세 까지 모두 포함 된 금액입니다. 예를들어 집의 연면적이 30평이라고 하면 30평*15만원=450만원의 추가비용이 발생된다고 생각하시면 됩니다.^^


Q.외장 스타코플렉스 마감색은 다양하게 선택할 수 있나요?

스타코플렉스 외장마감의 색은 다양하게 구현이 가능합니다. 외장재를 별도로 붙여서 포인트를 주는 방식도 있지만 스타코플렉스 자체가 외장 마감재이기 때문에 추가 외장재에 대한 비용을 늘리지 않으면서 입면적인 효과를 극대화 시킬 수 있도록 하였습니다.


Q.시공기간은 얼마나 걸릴까요?

시공기간은 3.5개월이 소요될 것으로 생각합니다. 이는 사전에 인허가 및 착공신고까지 모두 이루어졌다는 것을 가정한 기간입니다. 설계기간은 최소 2~3개월 정도 소요됩니다. 많은 분들이 시공계약하면 바로 공사가 이루어진다고 생각하시는데 절대로 그렇지 않습니다.^^; 설계 및 착공계를 내는 기간이 3달 정도 소요되니 꼭 집을 짓는다고 결정하셨으면, 3~6개월 전에는 설계 스타트를 하셔야 합니다.


Q.마지막 총평을 한다면?

모던한 주택을 머릿속으로 떠올리면 박스형의 군더더기 없는 스타일을 가장 먼저 떠올리실 것입니다.^^ 하지만 모던 스타일은 다양하게 존재한답니다. 이번 주택처럼 지붕의 방향으로 모양을 내기도하며, 매스분절과 평면적인 공간계획으로 모던한 건물을 설계하기도 한답니다.

많은 분들이 집을 지을 때 남이 지은 설계도를 많이 참고하시면서 공부를 하십니다.

물론 이 방법이 가장 1차적인 좋은 방법임에는 틀림 없습니다. 다만 어느순간에는 내 땅에 맞게 드려야 하는 시기가 오는데 남의 설계만 공부한다고 해서 내 땅에 맞는 설계안이 뚝딱 나오는 것은 아닙니다. ㅠㅠ

집의 착공시기라는 것은 정해져 있는 만큼 설계시기도 어느정도는 정해져 있답니다. 너무 고민하시다가 시간을 계속 잃어버리시게되면 내가 원하는 날짜에 착공을 못하는 경우도 발생되므로 어느정도 생각이 정리가 되시면 어느 회사에라도 방문하시더 구체적인 상담을 받는 것을 추천드립니다.^^


광주-정희범님 투시도(thumbnail).JPG
광주-정희범님 투시도-1.jpg
광주-정희범님 투시도-2.jpg
광주-정희범님 투시도-3.jpg
광주-정희범님 투시도-4.jpg
001.jpg
002.jpg
003.jpg
005.jpg
006.jpg
007.jpg
008.jpg


도착


40평 모던 스타일 전원주택 설계안. 어떠셨나요?

집의 외관 스타일을 정할때 가장 많이 고민하는 것이 지붕의 모양입니다. 지붕의 마감재와 모양에 따라 집의 분위기가 아에 달라지기 때문이지요.^^

북유럽스타일을 원한다면 박공지붕에 주황빛의 스페니쉬기와가 올라가야 그 느낌이 나며, 모던스타일이라면 최대한 지붕면을 감추고 박스형 외관을 가지고 가야 그 느낌이 살 것입니다.

박공지붕으로 하던 외경사 지붕으로 하던 공사비의 차이는 크지 않습니다.^^; 다만 기와나 징크의 경우 지붕재의 자재값이 더 들어가니 공사비가 훨씬 많이 뛰어오르겠죠.

평균적으로 기와를 지붕에 올린다면 30평 기준으로 근 1,000만원 가량이 추가되어집니다. 생각보다 만만치 않죠?^^;

제가 상담을 드릴때 항상 하는 말이 있습니다. "과시욕을 버리세요." 솔직히 지붕재 다 날라가도 단열과 방수에 아무런 문제 없답니다. 내가 가진 예산안에서 해결하는 것이 가장 좋으며, 가격대비 효율이 좋은 자재 위주로 사용하는 것이 좋습니다. 비싼 자재가 더 좋은 성능을 나타내는 것은 어찌보면 당연한 것을 수도 있습니다. 하지만 가격대비 성능으로 따진다면 그 자재들이 무조건 좋은 것은 아닐 수 있습니다.

내 집을 설계하고 지을 때 너무 무리해서 짓기보다는 가진 예산 안에서 가장 큰 성능을 낼 수 있는 자재로 선택하여 집을 짓길 바라겠습니다.

감사합니다.^^

*읽고 난 다음에는 위의 하트모양 라이킷과 공유 꾹 눌러주세용~^^


(좌측부터) 정다운 건축가, 임성재 건축가, 이동혁 건축가

총괄 건축가 : 이동혁, 임성재, 정다운

설계·시공 : 홈트리오(주) 1522-4279

Homepage : http://hometrio.kr

이동혁건축가TV : http://tv.naver.com/sunsutu1

[집이라는 본질적인 가치에 집중하다.]


글쓴이 : 이동혁 건축가

이메일 : sunsutu@hanmail.net


상담 및 자문

이동혁 건축가 : 010-4567-8413

정다운 건축가 : 010-8560-0477

임성재 건축가 : 010-9941-8899



keyword