#33 '경사지에 집을 짓다.' 41평 RC 모던 주택

#33 철근콘크리트 모던주택 41평 단독주택 설계제안

by 이동혁 건축가

제목 : #33 '경사지에 집을 짓다.' 41평 RC 모던 주택

소제목 : #33 철근콘크리트 모던주택 41평 단독주택 설계제안


출발


안녕하세요. 이동혁 건축가 입니다.^^

최근에 설계기획안을 보면 조금씩 비슷하다라는 느낌을 받으시죠? ^^; 그 이유가 고벽돌이라는 테마와 모던이라는 테마, 그리고 징크를 사용하겠다는 요소를 미리 설정해 놓고 기획안을 풀어내서 그렇답니다. 이렇듯 외관의 포인트와 전체적인 느낌만 통일해도 완벽히 다른 평면일지라도 비슷한 느낌의 집을 만들어 낼 수 있답니다.^^

신기하지 않나요? 공간도 틀리고 입면도 틀린데 비슷하 집 처럼 보이는게 말입니다.^^

오늘은 지난번 컨셉에서 한발 더 진행하여 경사지에 집을 짓으면 어떠할까(?)라는 테마에서 한번 설계를 진행시켜 보았습니다.^^

자 그럼 오늘도 출발해 보겠습니다.

*읽고 난 다음에는 위의 하트모양 라이킷과 공유 꾹 눌러주세용~^^


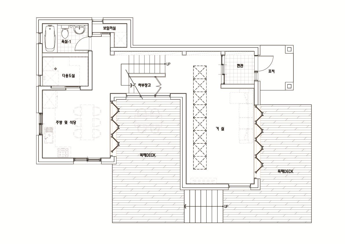
HOUSE PLAN

연면적 : 133.80㎡

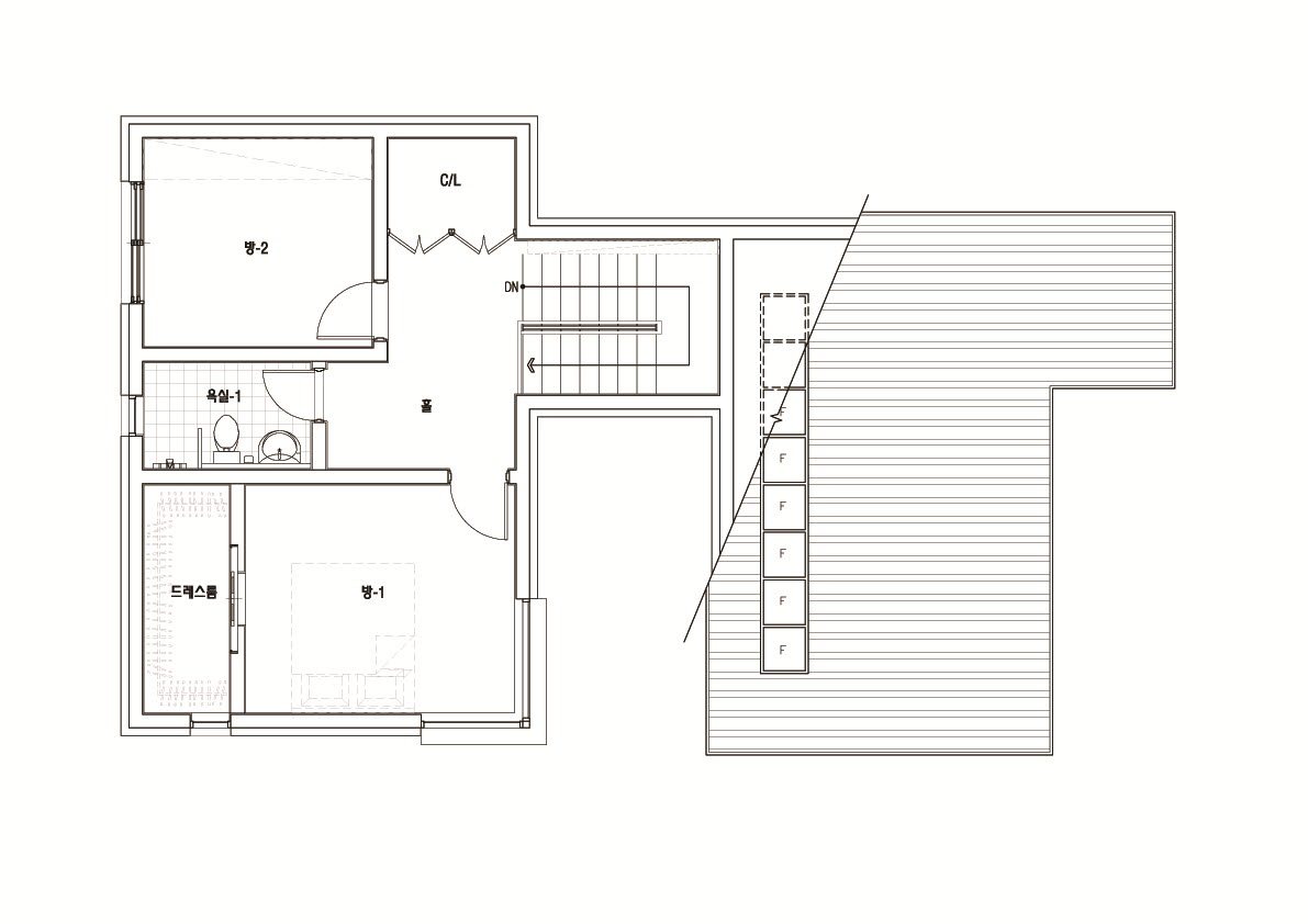
1층 : 72.81㎡

2층 : 60.99㎡

총괄 건축가 : 이동혁, 임성재, 정다운

설계·시공 : 홈트리오(주) 1522-4279

Homepage : http://hometrio.kr

이동혁건축가TV : http://tv.naver.com/sunsutu1

예상 총 건축비 : 251,000,000원(부가세포함)

설계비 및 인허가비 : 10,250,000(부가세포함)

*건축비 외 부대비용 : 대지구입비, 가구(싱크대, 신발장, 붙박이장), 기반시설인입(수도,전기,가스 등), 토목공사, 조경비 등


SPEC

공법 : 기초-철근콘크리트 / 1층, 2층 구조-철근콘크리트

지붕마감재 : 리얼징크

외벽마감재 : 고벽돌

외벽포인트자재 : 적삼목사이딩, 리얼징크

실내벽마감재 : 실크벽지

실내바닥마감재 : 강마루

창호재 : 엘지 2중 하이샤시 창호

Q.설계 방향에 대해 설명해주세요.

이번 설계방향의 테마는 '경사지를 이용한 스킵플로어 주택'입니다.^^ 최근 진행한 3가지 타입의 설계안이 동일한 외관 포인트 컨셉하에 진행되었는데요. 어떠셨는지요?^^ 이번 주택은 기존 주택들과 달리 평지에 지어진다는 요소를 제외한 뒤 경사지에도 집을 지을 수 있다라는 설정값을 적용하여 기획안을 설계하였답니다.

보통 경사진 땅을 설계적으로 풀때에는 지하부분에 주차장을 놓거나 필로티 구조로 건물을 띄워 설계하는데요. 이번 주택은 그러한 일반적인 설계 풀이방법이 아닌 경사면 그대로에 기초를 앉히고 단차를 이용한 스킵플로어 설계를 하여 조금은 독득한 설계안을 제안드려보았습니다.


Q.면적은 얼마나 되는가요?

총 41평으로 계획되어졌으며, 1층은 72.81㎡(22평), 2층은 60.99㎡(19평)으로 지어졌습니다. 4인 가족이 생활하기에 적절한 공간으로 구성되었으며, 스킵플로어 평면 구성 적용으로 모든 공간이 재미있는 특징을 가지는 집이 되었습니다.^^


Q.비용은 얼마가 들었나요?

총 251,000,000원이 소요될 것으로 판단됩니다. 부가세가 포함 된 가격이며, 순수한 건축비 입니다. 설계비는 10,250,000원이 소요되어졌습니다. 이는 부가세 포함 가격이며, 인허가 및 사용승인 비용도 포함된 금액입니다.


Q.천창시공은 괜찮나요?

전원주택의 로망 중 하나가 바로 방에 누워 하늘의 별을 보는 것일텐데요. 그러기 위해서는 천장에 천창을 시공하여야 그 로망을 이루실 수 있으실 것입니다. 천장에 시공하는 천창의 경우 가격대가 있어 일반 창호보다는 시공비가 많이 들어가게 되어집니다. 또한 청소가 용이하지 않다라는 문제가 있어 꼼꼼히 검토 후 설치하시기 바랍니다. ^^


Q.모던 스타일로 집을 지으면 더 비싸다던데 사실인가요?

그렇지는 않습니다. 모던으로 짓는다고하여 공사비가 비싸진다고 하는 것은 틀린 말입니다. 공사비의 증가는 포치, 발코니, 데크 등 집 외부적으로 더 붙여내는 부분들과 포인트와 인테리어적인 부분 때문에 공사비가 주로 증가하는 것이지 절대로 외관 이미지를 모던으로 한다고 하여 공사금액이 증가하지는 않습니다.^^


Q.평지에 집을 지을때와 경사지에 집을 지을때 공사비 차이가 있나요?

기초보강과 흙막이 공사가 추가되기 때문에 아무래도 기존 평지에 짓는 것 보다는 공사비가 증가됩니다. 하지만 흙을 매꾸고 옹벽을 보강한다라는 가정을 한다면 상대적으로 적은 비용으로 시공할 수 있는 방법이 될 것이라 생각됩니다.^^


Q.설계기간 및 시공기간은 얼마나 걸릴까요?

설계기간은 인허가포함 3달 정도를 잡는 것이 여유로우며, 시공기간은 착공일로 부터 5개월을 잡는 것이 좋습니다. 사용승인(준공)까지 포함된 기간입니다. 요즘 건축문의가 많아지면서 계약에 관련된 내용을 많이 물으시는데요. 오늘 계약했다고 해서 내일 당장 집을 지을 수 있는 것은 아니랍니다.^^; 저희의 경우에는 최소 착공일 6개월 전에 계약이 진행되어야 원하는 공사날짜에 스타트가 가능합니다. 아마 이 부분은 컨테리너가 아닌 이상 타 업체들도 동일한 일정이라고 생각합니다.


Q.마지막 총평을 한다면?

다들 집을 처음 짓는 것일 겁니다.^^; 아마 두 채 이상 집을 지어본 분은 정말 드물 것입니다. 그만큼 걱정도 많고 고민이 많이되는 작업일 것입니다.

팁을 드리자면 많은 분들이 최저가만 찾으시는데 솔직히 완공금액까지 가게되면 개인업자가 아닌 이상 금액은 대동소이 합니다. ㅠㅠ 의외죠? 그 이유는 건축법에 있답니다. 건축법에서 이미 기준을 정해 놓았고 시장단가라는 것이 이미 수년에 걸쳐 정해져 있기 때문에 외장재와 인테리어에 따른 추가비가 있을 뿐 골조, 창호, 기본 마감에 대한 비용은 거의 동일하다고 보시면 되십니다. 또한 각 회사의 마진률 또한 비슷하여 너무 싸거나 한다면 오히려 의심을 해 보시는 것이 좋습니다^^

도착


41평 경사지에 지어진 도심형 모던 스타일 단독주택 설계안. 어떠셨나요?

솔직히 경사지에 집을 지을 경우가 아마 100채 중 1채 있을까(?) 말까(?) 일 것입니다. 왜냐하면 대지를 구입할 때 이미 평지를 대부분 구입하시기 때문입니다.^^ 경사진 땅에 집 짓기위해 땅을 구입하시는 분들은 거의 없다고해도 무방할 것입니다. ^^;

하지만 단 한 분이라도 경사지에 집을 짓는다면(?) 그 분을 위한 설계를 만들어 드려야 한다고 생각합니다.

이번 주택은 그 동안 기획하였던 설계안보다는 인기가 없을거라 생각합니다. ㅠㅠ 그만큼 독특한 제약조건을 가상으로 만들어 설계했기 때문입니다.

하지만 아(!) 이러한 설계도 가능하구나. 꼭 토목공사가 정답은 아니구나 하는 것을 한번 쯤 생각해 보시는 계기가 되었으면 합니다.

오늘은 여기까지 입니다. 박람회가 2일 남았네요.^^ 많이들 찾아주시고 구경 많이 와 주세용~^^

감사합니다.^^

*읽고 난 다음에는 위의 하트모양 라이킷과 공유 꾹 눌러주세용~^^


(좌측부터) 정다운 건축가, 임성재 건축가, 이동혁 건축가

총괄 건축가 : 이동혁, 임성재, 정다운

설계·시공 : 홈트리오(주) 1522-4279

Homepage : http://hometrio.kr

이동혁건축가TV : http://tv.naver.com/sunsutu1

[집이라는 본질적인 가치에 집중하다.]


글쓴이 : 이동혁 건축가

이메일 : sunsutu@hanmail.net


상담 및 자문

이동혁 건축가 : 010-4567-8413

정다운 건축가 : 010-8560-0477

임성재 건축가 : 010-9941-8899