'두 아이의 놀이터' 4마리 강아지와 함께 뛰노는 집.

경남 양산 55평 목조 전원주택 완공사례

by 이동혁 건축가

제목 : #8 두 아이들과 4마리의 강아지가 뛰어노는 목조 드림하우스

소제목 : 경남 양산 55평 목조 전원주택 완공사례


출발


안녕하세요. 이동혁 건축가 입니다.^^

엊그제 봄이 온 것 같았는데 이제는 에어콘을 틀지 않으면 안되는 날씨가 되어버렸네요. 평균 낮 기온이 30도를 넘어가고 있어 여름이 바짝 다가온 것을 느낄 수 있답니다.^^

2016년도 봄 공사에 들어갔던 현장들이 이제 서서히 완공단계에 와 있습니다. 건축매니저로서 일을 할 때 이 순간이 가장 긴장되며 설레이는 시기랍니다.

장마가 오기 전 완공시켜야 하는 문제로 요즘 많이 힘들지만 그래도 건축주님께서 새로운 집에 입주하시는 것을 상상하면 힘들어도 불끈 기운이 샘 솓는답니다.^^

오늘 들려드릴 이야기는 경남 양산에 지어진 55평 목조주택입니다.

두 자녀와 4마리의 강아지가 함께 뛰노는 집인 이번 주택은 아마 모던스타일의 주택을 생각하시는 분들은 관심있게 지켜보아주지 않을까 생각됩니다.

자 그럼 출발하겠습니다.^^



DSC_5400.jpg


HOUSE PLAN

연면적 : 183.64㎡

1층 : 91.60㎡

2층 : 92.04㎡

총괄 건축가 : 이동혁, 임성재, 정다운

설계·시공 : 홈트리오(주) 1522-4279

Homepage : http://hometrio.kr

이동혁건축가TV : http://tv.naver.com/sunsutu1


예상 총 건축비 : 301,000,000원(부가세포함)

설계비 및 인허가비 : 11,000,000원(부가세포함)

*건축비 외 부대비용 : 가구(싱크대, 신발장, 붙박이장), 기반시설인입(수도,전기,가스 등), 토목공사, 조경


SPEC

공법 : 기초-철근콘크리트 / 구조-경량목구조

구조재 : 벽-2*6 SPF / 지붕-2*10 SPF

단열재 : 외벽/지붕(수성연질폼 '가'등급)

: 내부벽체(Glasswool Insulation R19-15" 다등급)

: 내부천장(Glasswool Insulation R30-15" 다등급)

지붕마감재 : 리얼징크

외벽마감재 : 테라코트

외벽포인트자재 : 리얼징크, 파벽돌

실내벽마감재 : 실크벽지

실내바닥마감재 : 강마루, 폴리싱타일

창호재 : 융기 3중 시스템창호

단열재 : 외부벽체(Glasswool Insulation R21HD-15" 나등급)

▷크나우프社 ECOBATT (ECOSE® 특허)

▷HD:저에너지 하우스용 / 15인치(381mm) *동등 제품

: 내부벽체(Glasswool Insulation R19-15" 다등급)

: 천장(Glasswool Insulation R30-15" 다등급)

: 지붕(Glasswool Insulation R37-23" 가등급) ▷ISOVER社에너지세이버

*단열기준은 2016년 7월1일자로 변경되는 단열기준법을 적용하여 강화시켜 놓았습니다.



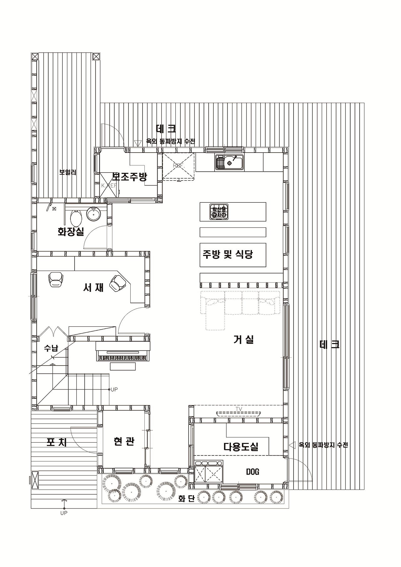
1층평면도.jpg 1층 평면도
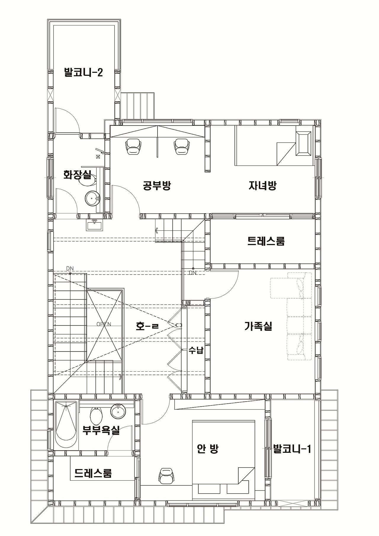
2층평면도.jpg 2층 평면도


Q.설계 방향에 대해 설명해주세요.

이번 설계방향은 '동화속 집' 입니다. 영화나 만화에서 보면 2층집을 뛰놀고 마당에서 강아지들과 같이 뒹굴며, 데크에 앉아 빗소리를 들어며 커피 한잔을 하는 상상. 아마 집을 짓고자 하시는 분들의 이상향이지 않을까 생각됩니다.^^

젋은 건축주님의 성향에 따라 모던과 심플함을 집에 도입하고자 였으며, 리얼징크의 마감재를 지붕과 외장재 포인트로 선정하여 유니크 하면서도 정갈한 느낌의 주택을 완성시켰습니다.

테라코트의 깔끔한 이미지와 파벽돌의 무게감. 그리고 징크의 세련됨과 차가움의 조화는 믹스엔매치 처럼 보이지만 디자인과 유지관리에 대한 모든 부분을 동시에 만족시킨 계획안이라고 설명드리고 싶습니다.

모던스타일이지만 20cm 정도의 처마를 조금씩 내 주어 입체감을 살려주었고 이에따라 자연스럽게 물끊기도 같이 기능적으로 될 수 있도록 하였습니다.

보통 집이 더러워지는 것은 지붕이나 창틀에 쌓여있는 먼지들이 물을 따라 벽을 흐르면서 더러워지게 됩니다. 하지만 이번 주택처럼 처마와 창문의 EPS몰딩 시공을 해 준다면 10년이 지나도 벽이 오염되지 않고 깨끗한 상태를 유지할 수 있습니다.^^


Q.면적은 얼마나 되는가요?

2층으로 구성하였으며, 1층은 91.60㎡(27.7평), 2층은 92.04㎡(27.8평)으로 구성하였습니다. 총 55.5평형 주택으로 4 식구와 4마리의 강아지가 생활하기 부족함 없는 공간으로 계획되어졌습니다.


Q.비용은 얼마가 들었나요?

시공비는 총 301,000,000원(부가세포함)이 소요되었으며, 설계비 및 인허가비는 11,000,000원(부가세포함)이 소요되었습니다.


Q.지붕 디자인이 독특해요.

지붕재의 경우 리얼징크를 사용하였습니다. 지붕에서부터 외벽까지 이어져 내리는 리얼징크는 건축주님께서 원하셨던 모던스타일과 세련됨을 동시에 추구할 수 있는 자재였습니다. 일반적으로 사용되는 블랙톤의 징크보다는 한톤 내려간 회색톤의 리얼징크를 사용하였으며, 너무 무겁지 않고 외벽과 자연스럽게 어울릴 수 있도록 디자인을 도출하였습니다. 또한 단조로울 수 있는 입면에 경사와 포치등의 요소들을 접목하여 큰 추가비용 없이도 입체적인 느낌을 받을 수 있게하였습니다.


Q.인테리어 컨셉 방향은 무엇인가요?

이번 주택의 인테리어는 공용공간과 개인공간을 분리하여 계획하였습니다. 공용공간의 경우 최대한 많은 창과 조명을 통해 밝은 느낌을 주고자 하였으며, 높은 천장과 개방감을 통해 전원주택의 장점을 최대한 만끽 할 수 있도록 하였습니다.

바닥재도 폴리싱타일을 적용하여 어둡고 무거운 느낌이 아니라 산뜻하고 깨끗한 느낌으로 넓어보이는 효과를 줄 수 있도록 하였습니다.

가구들도 최대한 화이트톤에 맞추어 진행하였으며, 포인트가 되는 부분 몇가지만 색을 넣어 강조될 수 있도록 했습니다.

개인 공간들의 경우 포인트 벽지를 각 공간마다 계획하였습니다. 방마다의 특성을 살릴 수 있도록 하였으며, 각자가 가장 좋아하는 색상으로 기본 포인트 색상을 정해 시공을 진행하였습니다. 방의 경우 바닥마감을 강마루로 진행하여 긁힘에 강하면서 분위기적으로 따뜻한 느낌을 받을 수 있도록 했습니다.^^

화장실은 각 공간별로 테마를 적용하여 진행하였으며, 아이들의 의견을 적극적으로 반영하여 계획하였습니다.


Q.시공기간은 얼마나 걸릴까요?

설계기간은 3개월(인허가기간 포함) 정도 소요되었으며, 시공기간은 준공까지 3.5개월이 소요되었습니다.


Q.마지막 총평을 한다면?

집짓기를 준비하시는 분들의 첫 스타트를 보면 대부분 남의 집을 구경하는데부터 시작을 합니다.^^ 아마 공간감이나 어떤 디자인으로 집을 지어야 하는지에 대한 궁금증 때문일 것입니다.

집을 보러 갈 때에는 중요하게 보아야 할 포인트들이 있습니다. 디자인이나 인테리어는 솔직히 원하시는대로 모두 계획이 가능하고 취향적인 부분이 커 남의 집을 개인적인 기준에서 판단하는 것은 큰 의미가 없습니다.가장 중점적으로 보아야 할 것은 바로 스케일과 마감입니다.^^

많은 분들이 아파트에서 생활하셨기 때문에 30평 정도를 지으면 엄청 큰 공간이 나올것이라 생각합니다. 하지만 짓고나면 생각보다 작은 공간에 많이들 실망하십니다. ㅠㅠ

그 이유는 전원주택은 서비스면적이라는 개념이 없기 때문입니다. 또한 이동공간으로 소요되는 면적도 큽니다. 아파트는 앞 뒤로 통베란다가 있기 때문에 공용면적으로 제외하더라도 거의 제 면적을 다 찾아먹는 형국입니다.

내가 원하는 거실 크기는 어느정도이고 방의 크기는 어느정도 되야하고 창문은 어디에 어느높이로 들어갔으면 좋겠는지 위주로 보시는 것이 더 효율적일 것입니다. 또한 각 설계자별로 마감방법이 다 다르므로 어떤 식으로 마무리를 할 지도 잘 검토하셔야 합니다.^^

이렇게 말씀드리니 생각보다 잘 와닿지 않으시죠? 글로서만 제 마음을 전하다보니 요즘 부쩍 한계를 느끼네요. ㅠㅠ 더 노력하겠습니다.

사설이 길었네요.^^; 이번주택은 아마 모던스타일을 좋아하시는 분들이라면 눈여겨볼 만한 주택일 것입니다. 또한 아이들을 마당있는 집에서 키우고 싶어하시는 분들도 관심있게 지켜볼 사례인 것 같습니다.

집을 짓는 이유 중 가장 큰 범위를 차지하는 요소는 바로 나만을 위한 집을 짓는다는 것일 겁니다.

아파트는 획일화 된 평면에 다 똑같은 인테리어이지만 전원주택은 문고리 하나까지도 다 선택해서 시공할 수 있다는 장점이 있기 때문입니다.^^

아! 마지막으로 올 7월달부터 건축법 중 단열기준이 변경이 되어집니다. 많은분들이 더 있어야 시행된다고 생각하시고 계신데 이미 법규는 올 초에 발표되었고 7월부터는 의무시행이랍니다.^^ 혹 집을 준비하시는 분들은 나중에 당황하시지 않도록 단열기준 잘 챙기셔서 진행하시길 바라겠습니다.


외관
DSC_5333.jpg
DSC_5349.jpg
DSC_5364.jpg
DSC_5375.jpg
gmST87X5DX.jpg


현관
DSC_5207.jpg


현관
DSC_5146.jpg
DSC_5149.jpg
DSC_5150.jpg
DSC_5160.jpg
DSC_5165.jpg
DSC_5170.jpg
DSC_5181.jpg
DSC_5185.jpg
DSC_5190.jpg
DSC_5212.jpg


서재
DSC_5287.jpg
DSC_5289.jpg


주방
DSC_5217.jpg
DSC_5225.jpg
DSC_5229.jpg
DSC_5235.jpg
DSC_5241.jpg
DSC_5253.jpg
DSC_5258.jpg
DSC_5264.jpg
DSC_5269.jpg
DSC_5295.jpg


화장실
DSC_5275.jpg
DSC_5281.jpg
DSC_5284.jpg


드레스룸
DSC_5107.jpg
DSC_5113.jpg
DSC_5133.jpg
DSC_5139.jpg


계단실
DSC_4923.jpg
DSC_4926.jpg
DSC_5079.jpg
DSC_5141.jpg


2층 가족실
DSC_5025.jpg
DSC_5032.jpg
DSC_5034.jpg
DSC_5040.jpg
DSC_5048.jpg
DSC_5050.jpg


2층 거실
DSC_4988.jpg
DSC_4997.jpg
DSC_5002.jpg
DSC_5064.jpg
DSC_5074.jpg


2층 안방 화장실
DSC_5093.jpg


2층 안방
DSC_5083.jpg
DSC_5088.jpg
DSC_5124.jpg


2층 자녀방
DSC_4930.jpg
DSC_4932.jpg
DSC_4934.jpg
DSC_4940.jpg
DSC_4943.jpg
DSC_4945.jpg
DSC_4948.jpg
DSC_4950.jpg


2층 화장실
DSC_4960.jpg
DSC_4964.jpg
DSC_4980.jpg
DSC_4985.jpg


발코니 1
DSC_5122.jpg


발코니 2
DSC_4968.jpg
DSC_4974.jpg


도착


경남 양산의 55평 전원주택 완공사례 잘 보셨나요?^^

이번 주택사례의 경우 전원주택의 매력을 모두 적용시킨 사례라고 설명드리고 싶습니다. 높은 천장과 넓은 개방감. 그리고 2층집. 2층 발코니와 각 방의 사용자에 따른 인테리어 적용. 마지막으로 모던한 느낌의 랜드마크적인 디자인. 이 모든 것이 어찌보면 전원주택을 지을때 드림하우스를 만드는 기본 조건이지 않을까 생각합니다.

집이라는 것은 참 정답이 없는 것이라 생각합니다. 매번 집을 지을때마다 수차례에 걸친 협의과 수정. 그리고 조율. 근 반년이라는 시간동안 건축주님과 같이 부대끼며 집을 짓고 완성을 시킬때면 아 이번에도 새로운 것을 깨닫고 배웠구나 라는 생각을 가지게 됩니다.

그만큼 새로운 디자인과 아이디어들. 한계를 넘어선 기획안들... 이 모든 것들이 건축주님들의 집을 짓기 위해 지나왔던 소중한 자산들이자 길인 것 같습니다.

땅이 못생겼다고 걱정하지 마세요. 9년이라는 시간동안 건축일을 하면서 깨달은 것은 어려운 조건일 수록 더 참신한 설계안과 독특한 디자인이 탄생한답니다.^^

집을 짓는 꿈을 실현하시는 그 날까지 같이 동행해 드릴테니 모두 힘내시고 화이팅 하시길 바라겠습니다.

감사합니다.

*읽고 난 다음에는 위의 하트모양 라이킷과 공유 꾹 눌러주세용~^^


KakaoTalk_20160525_154948785.jpg 꿈애하우징 (좌측부터) 정다운 건축가, 임성재 건축가, 이동혁 건축가

총괄 건축가 : 이동혁, 임성재, 정다운

설계·시공 : 홈트리오(주) 1522-4279

Homepage : http://hometrio.kr

이동혁건축가TV : http://tv.naver.com/sunsutu1


글쓴이 : 이동혁 건축가

이메일 : sunsutu@hanmail.net

상담 및 자문 : 010-4567-8413



keyword