#14 '다락을 품은 동화속 집' 단층의 한계를 넘다.

#14 목조 모던 스타일 36평 단층 전원주택 설계제안

by 이동혁 건축가

제목 : #14 '다락을 품은 동화속 집' 단층 의 한계를 넘다.

소제목 : 목조 모던 스타일 36평 단층 전원주택 설계제안


출발


안녕하세요. 이동혁 건축가 입니다.^^

3월달에 시작하였던 공사가 드디어 하나 둘 씩 완공되어지고 있습니다. 3달의 시공기간 중 지금이 가장 보람되고 뜻깊은 시간인 것 같습니다.^^

처음 집을 지을때에는 주변에서 집이 무너진다 저렇게 지으면 안된다 등 별여별 이야기들이 오가지만 이렇게 완공된 집을 보면 다들 아 이렇게 짓는 것이 맞았구나(!) 하고 느끼신답니다.

잘 짓는 집이란 무엇일까요(?) 제 생각에는 교과서대로 짓는 집이 가장 좋은 집이라 생각합니다.^^

각자 마다의 노하우도 있을테고 여러가지 기술들이 있겠지만 아직까지는 저의 어린 생각으로는 FM대로 그리고 교과서 대로 집을 짓는 것이 가장 좋다고 생각합니다.

서론이 또 길었네요. ^^; 오늘 이야기 드릴 기획 설계안은 36평형의 다락을 품은 단층 주택입니다.

동화속에나 나올법한 디자인으로 설계를 기획하였으며, 아담하지만 속이 꽉 찬 가격대비 우수한 효율성으로 계획된 주택입니다.

자 같이 집이 어떻게 설계되었는지 같이 확인해 보러 출발하시죠!

*읽고 난 다음에는 위의 하트모양 라이킷과 공유 꾹 눌러주세용~^^



HOUSE PLAN

연면적 : 118.91㎡

1층 : 105.93㎡

2층 : 12.98㎡

총괄 건축가 : 이동혁, 임성재, 정다운

설계·시공 : 홈트리오(주) 1522-4279

Homepage : http://hometrio.kr

이동혁건축가TV : http://tv.naver.com/sunsutu1

예상 총 건축비 : 192,700,000원(부가세포함)

설계비 및 인허가비 : 7,200,000(부가세포함)

*건축비 외 부대비용 : 대지구입비, 가구(싱크대, 신발장, 붙박이장), 기반시설인입(수도,전기,가스 등), 토목공사, 조경비 등


SPEC

공법 : 기초-철근콘크리트 / 1층 구조-경량목구조

지붕마감재 : 아스팔트슁글

외벽마감재 : 테라코트

외벽포인트자재 : 파벽돌, 리얼징크, 적삼목사이딩, eps몰딩

실내벽마감재 : 실크벽지

실내바닥마감재 : 강마루

창호재 : 융기 3중 시스템창호

단열재 : 외부벽체(Glasswool Insulation R21HD-15" 나등급)

▷크나우프社 ECOBATT (ECOSE® 특허)

▷HD:저에너지 하우스용 / 15인치(381mm) *동등 제품

: 내부벽체(Glasswool Insulation R19-15" 다등급)

: 천장(Glasswool Insulation R30-15" 다등급)

: 지붕(Glasswool Insulation R37-23" 가등급) ▷ISOVER社에너지세이버

*단열기준은 2016년 7월1일자로 변경되는 단열기준법을 적용하여 강화시켜 놓았습니다.


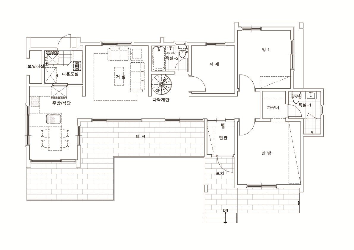
1층 평면도
2층 평면도


Q.설계 방향에 대해 설명해주세요.

이번 설계방향은 '동화 속 집'이라는 컨셉으로 계획하여 보았습니다. 대문을 열고 마당을 걸어 들어오면 무언가 아늑하면서도 나를 반겨주는 듯한 이미지의 집을 지어보고자 하였습니다. 보통 공간구성 할 때에는 일자형이나 'ㄱ'자형으로 많이 배치하게 되어지는데 이번 주택은 단층으로 구성하되 'ㄷ'자형으로 평면을 구성하여 매스적으로도 자연스럽게 입체감을 가지고 갈 수 있게 하였습니다.

모던한 느낌과 군더더기 없는 느낌으로 외관을 디자인 하였으며, 현관부분 일부만 포인트를 넣어주어 외장재로 인한 추가비용을 최소로 하였습니다.


Q.면적은 얼마나 되는가요?

1층 단층으로 구성하였으며, 1층은 105.93㎡(32평), 2층은 12.98㎡(4평)으로 구성하였습니다. 'ㄷ'자형 단층으로 기본 골격을 구성 한 뒤 4평 정도의 다락까지 구성하여 수납공간 및 단층의 디자인적 한계를 극복해 보고자 하였습니다.^^


Q.비용은 얼마가 들었나요?

총 192,700,000원이 소요될 것으로 판단됩니다. 부가세가 포함 된 가격이며, 순수한 건축비 입니다. 설계비는 7,200,000원이 소요되어졌습니다. 이는 부가세 포함 가격이며, 인허가 및 사용승인 비용도 포함된 금액입니다.


Q.이동혁 건축가님은 지붕에 돈을 들이지 말라고 하는데 이유가 있나요?

지붕재의 경우 사용할 수 있는 것이 한정되어져 있습니다. 징크, 기와, 아스팔트슁글, 세라믹기와 정도일 것입니다. 보통 지붕재의 경우 집의 디자인에 영향을 많이 미치는 부분 중의 하나입니다. 스페니쉬풍을 원하신다면 무조건 스페니시기와 지붕 마감을 가셔야 하며, 일본풍을 원하신다면 세라믹기와 등을 사용하여야 할 것입니다. 자 그런데 여기서 문제가 있습니다. 과연 이러한 지붕재들이 가격대비 성능을 동시에 가지고 갈 수 있을까요(?) 보통 아스팔트 슁글의 경우 시공비가 평균 평당 8만원정도 되어집니다. 이에반해 기와는 평당 33만원 정도 하며, 오리지날 징크는 0.7T 기준으로 평당 52만원 정도 시공비가 들어갑니다. 물론 좋은 자재를 쓰면 그만큼 디자인이나 퀄리티가 높지만 제가 생각했을 때에는 지붕재 다 날라가도 누수나 단열에 아무런 문제가 없으므로 가장 기본적인 자재를 사용하여 디자인적 효과를 극대화 시키는 것이 좋다고 생각합니다.^^

그래서 되도록이면 가장 기본 자재인 아스팔트 슁글을 사용하되 차라리 그 비용을 아껴 다른 곳에 투자하시기를 권해드리는 편입니다.


Q.외관 디자인의 컨셉이 무엇인가요?

박공지붕을 느낌을 살리고 포치와 처마를 통해 입체감을 살릴려고 노력하였습니다. 전체적인 느낌은 모던한 느낌으로 갈려고 하였으며, 최대한 외장재 부분에서 추가비용이 발생되지 않게 하기위해 노력하였습니다. 대신 단열적인 부분을 강화 시켰으며, 창호부분 등도 비용을 더 들여 강화 시켜 주었습니다.


Q.이번 주택에서의 포인트는 무엇인가요?

단층 주택이라고 하면 어느정도 정해진 이미지가 있었습니다. 농가주택 형식이 바로 대표적이죠.

이번 주택을 통해 단층이라 하더라도 훌륭하고 세련된 느낌의 디자인을 할 수 있다라는 것을 보여주고 싶었습니다. 또한 많은 금액을 들이지 않더라도 이번 디자인처럼 모던하면서도 정갈한 느낌을 낼 수 있다는 것을 알려드리고 싶었습니다. 단층을 짓는다고 하여 디자인적으로 너무 걱정하시지 않으셔도 된답니다.^^


Q.시공기간은 얼마나 걸릴까요?

시공기간은 3.5개월이 소요될 것으로 생각합니다. 이는 사전에 인허가 및 착공신고까지 모두 이루어졌다는 것을 가정한 기간입니다.


Q.마지막 총평을 한다면?

집을 지을때는 너무 많은 과식욕을 부리시면 안됩니다. 온 벽을 벽돌로 붙이고 징크로 감싸고 세라믹사이딩 등으로 내부를 마감하고... 등등 집이라는 것은 최소한의 마감재로 최대의 효과를 누리게 하는 것이 정답이라고 생각합니다.

평생 이 곳에서 살면 좋겠지만 건설기술연구원의 조사에 따르면 평균적으로 10년을 못넘기고 이사를 간다고 하네요. 그렇기 때문에 환급성도 생각하셔야 하며, 무조건 비싼자재, 남들이 좋다고 하는 자재만을 따라가는 것이 아닌 내가 가진 예산안에서 이룰 수 있는 가격대비 성능이 높은 자재들을 선정하여 집을 짓길 바라겠습니다.^^


정면도
배면도


우측면도
좌측면도
지붕평면도

도착


36평 단층 전원주택. 이번 설계기획안은 마음에 드셨나요?^^

설계 기획을 할때마다 어떠한 특정 테마와 방향성을 가지고 진행하는데요. 항상 조금씩의 아쉬움은 남는 것 같습니다. 많은분들이 2층으로 구성하는 이유 중의 하나가 "디자인이 이쁘게 안 나올 것 같다." 라는 이유가 가장 큰데요. 이번 주택의 경우 디자인 할 때 단층이지만 단층이 가지는 디자인적 한계성을 극복해 보고자 많은 노력을 기울였습니다.

일반적으로 잘 사용하지 않는 'ㄷ'자형 배치를 과감히 적용하여 매스적으로 웅장해 보이게 하였으며, 다락이라는 요소를 적용하여 부족할 수 있는 수납공간에 대한 한계성도 극복하고자 노력하였습니다.

집을 짓는다는 것은 참 어려운 일이라고 생각합니다.

하지만 그만큼 많은 고민과 걱정을 하였기 때문에 내 맘에 꼭 드는 나만의 집이 완성되는 것 같습니다.^^

지금도 많은 고민을 하고 계실 예비건축주님들께 응원의 말을 전하며, 앞으로도 더 참신한 기획안으로 찾아뵙도록 하겠습니다.^^

감사합니다.

*읽고 난 다음에는 위의 하트모양 라이킷과 공유 꾹 눌러주세용~^^


(좌측부터) 정다운 건축가, 임성재 건축가, 이동혁 건축가

총괄 건축가 : 이동혁, 임성재, 정다운

설계·시공 : 홈트리오(주) 1522-4279

Homepage : http://hometrio.kr

이동혁건축가TV : http://tv.naver.com/sunsutu1

[집이라는 본질적인 가치에 집중하다.]


글쓴이 : 이동혁 건축가

이메일 : sunsutu@hanmail.net


상담 및 자문

이동혁 건축가 : 010-4567-8413

정다운 건축가 : 010-8560-0477

임성재 건축가 : 010-9941-8899



keyword