#7 여자의 감성을 담아내다. 고벽돌을 입은 목조주택

경기 광주 38평 목조 전원주택 완공사례

by 이동혁 건축가

#7 여자의 감성을 담아내다. 고벽돌을 입은 목조주택

경기 광주 38평 목조 전원주택 완공사례


출발


안녕하세요. 이동혁 건축가 입니다.^^

3달동안 준비했던 MBC건축박람회가 성황리에 마무리되고 나니 이제야 한숨돌릴 시간들이 나네요. 걱정도 많았던 박람회인 만큼 잘 준비하고 많은 것을 보여드리고자 했는데 건축주님들도 저희들의 진심을 느꼈을지 모르겠습니다.^^;

박람회 준비한다고 한 달동안 거의 글을 연재하지 못했는데요. 오늘부터는 다시 매주 연재를 진행하도록 하겠습니다. 올릴 글들은 많은데 시간이 쫒기다보니... ㅠㅠ 마음만 급해지네요.

그래도 객관적이고 옳바른 정보를 전해드린다는 이념하에 끝까지 글을 적어보도록 하겠습니다.^^

오늘 소개시켜 드릴 전원주택은 경기도 광주에 지어진 38평 목조주택입니다. 외관만 봐서는 목조주택처럼 느껴지지 않는데요.

고벽돌 스타일의 외장재를 입은 이번 주택. 궁금하시지 않나요?

자 그럼 어떻게 지어졌는지 저와 함께 출발해 보도록 하겠습니다.^^


HOUSE PLAN

연면적 : 125.64㎡

1층 : 64.53㎡

2층 : 61.11㎡

총괄 건축가 : 이동혁, 임성재, 정다운

설계·시공 : 홈트리오(주) 1522-4279

Homepage : http://hometrio.kr

이동혁건축가TV : http://tv.naver.com/sunsutu1


예상 총 건축비 : 211,000,000원(부가세포함)

설계비 및 인허가비 : 9,500,000원(부가세포함)

*건축비 외 부대비용 : 가구(싱크대, 신발장, 붙박이장), 기반시설인입(수도,전기,가스 등), 토목공사, 조경


SPEC

공법 : 기초-철근콘크리트 / 구조-경량목구조

구조재 : 벽-2*6 SPF / 지붕-2*10 SPF

단열재 : 외벽/지붕(수성연질폼 '가'등급)

: 내부벽체(Glasswool Insulation R19-15" 다등급)

: 내부천장(Glasswool Insulation R30-15" 다등급)

지붕마감재 : 리얼징크

외벽마감재 : 파벽돌

외벽포인트자재 : 리얼징크, 적삼목사이딩

실내벽마감재 : 실크벽지

실내바닥마감재 : 강마루

창호재 : 융기 3중 시스템창호

단열재 : 외부벽체(Glasswool Insulation R21HD-15" 나등급)

▷크나우프社 ECOBATT (ECOSE® 특허)

▷HD:저에너지 하우스용 / 15인치(381mm) *동등 제품

: 내부벽체(Glasswool Insulation R19-15" 다등급)

: 천장(Glasswool Insulation R30-15" 다등급)

: 지붕(Glasswool Insulation R37-23" 가등급) ▷ISOVER社에너지세이버

*단열기준은 2016년 7월1일자로 변경되는 단열기준법을 적용하여 강화시켜 놓았습니다.



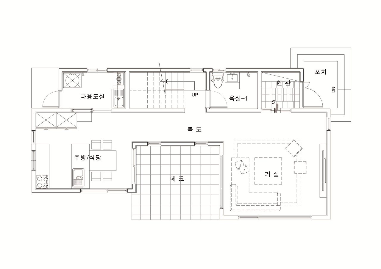
1층평면도.jpg 1층 평면도
2층평면도.jpg 2층 평면도
외관
DSC_5742.jpg


Q.설계 방향에 대해 설명해주세요.

이번 설계방향은 '무게감' 입니다. 지금까지 진행해 왔던 프로젝트들의 경우 정갈함이나 깔끔함이 주 였다면 이번 주택의 방향은 무게감과 모던함이 주 방향성이라고 할 수 있습니다.

고벽돌의 느낌을 담아내고 싶었집만 고벽돌이 워낙 고가인데다 구하기도 힘들어 최대한 가격이 저렴하면서 고벽돌의 느낌을 자아낼 수 있는 자재를 선정하여 외벽 디자인을 진행하였습니다.

전체적인 느낌을 맞추기 위해 지붕과 외벽포인트를 블랙 계열의 리얼징크를 사용하여 모던하면서 차가운 느낌을 집 전체에 입혀주었으며, 창문 외부 랩핑도 블랙톤으로 맞추어 디자인의 통일성을 유도하였습니다.

집 뿐만 아니라 외부 난간까지 블랙톤으로 맞추어 집 외관을 보았을 때 중후하면서도 무게감 있는 주택 디자인을 완성할 수 있었습니다.


Q.면적은 얼마나 되는가요?

2층으로 구성하였으며, 1층은 64.53㎡(19.5평), 2층은 61.11㎡(18.5평)으로 구성하였습니다. 총 38평형 주택으로 가족들과 여가를 즐기시기에 충분한 공간으로 계획되었습니다. 이번 주택의 매력 포인트는 2층의 지붕형 베란다 일 것입니다. 2층의 공간이 좁을 수 있는 점을 고려하여 양쪽으로 베란다를 계획하여 외부로의 공간 확장성을 유도하였습니다.


Q.비용은 얼마가 들었나요?

시공비는 총 211,000,000원(부가세포함)이 소요되었으며, 설계비 및 인허가비는 9,500,000원(부가세포함)이 소요되었습니다.


Q.창호 프레임이 검은색이네요?

창호의 경우 기본 프레임은 화이트 입니다. 창호 프레임이 블랙으로 보여지는 이유는 화이트 프레임 외부 블랙 랩핑을 진행한 것입니다. 비용적인 부분으로 보았을 때는 기존 창호가격에 약 15% 정도 업이 되어집니다. 하지만 포인트적인 느낌을 자아내고자 할 때는 외부에 포인트 자재를 붙이는 것 보다는 금액대비 적은 비용으로 할 수 있는 포인트 방법입니다.


Q.인테리어 컨셉은 무엇인가요?

요즘 인테리어 트랜드는 최대한 색을 덜어내는 것입니다. 엄청 큰 공간으로 집을 짓는다면 상관없지만 30~40평형태 집을 지을 경우 생각보다 좁은 느낌의 공간감을 느끼실 겁니다. 아파트는 플랫한 평면으로 최대한 공간을 오픈시키지만 전원주택의 경우 2층으로 공간을 분할하고 공용공간과 프라이빗한 공간을 구분해 주기 때문에 생각한 공간감보다 적게 느껴지실 겁니다.

그래서 최대한 밝은 톤으로 벽지 및 바닥마감, 그리고 타일 마감을 진행하고자 하였으며, 포인트는 가구 등으로 부분적 느낌을 강조해 주도록 하였습니다.

조명 등도 포인트 등을 제외한 대부분의 조명들을 매입시키거나 단조롭게 디자인된 조명을 사용하여 모던하면서 차분한 느낌을 담아낼 수 있도록 하였습니다.


Q.시공기간은 얼마나 걸릴까요?

설계기간은 3개월(인허가기간 포함) 정도 소요되었으며, 시공기간은 준공까지 3.5개월이 소요되었습니다.


Q.마지막 총평을 한다면?

경기도 광주에 지어진 이번 목조주택은 타 전원주택과 다른 느낌으로 광주지역의 랜드마크적인 건축물이 될 것이라 생각합니다. 고벽돌 느낌의 파벽돌 마감으로 분위기를 잡았으며, 리얼징크의 포인트 마감재 선택으로 세련되면서 모던한 감성을 동시에 입혀낼 수 있었습니다. 금액적인 부분도 철근콘크리트 주택 대비 저렴한 금액으로 시공되어 앞으로 무게감 있는 느낌 때문에 철근콘크리트 공법을 선택하시는 분들의 생각을 변화시킬 수 있는 좋은 사례가 될 것이라 생각합니다.


DSC_5719.jpg
DSC_5747.jpg
DSC_5774.jpg
DSC_5711.jpg


현관
DSC_5429.jpg
DSC_5431.jpg


거실
DSC_5434.jpg
DSC_5451.jpg
DSC_5454.jpg
DSC_5467.jpg
DSC_5474.jpg
DSC_5481.jpg


주방
DSC_5494.jpg
DSC_5496.jpg
DSC_5505.jpg
DSC_5508.jpg
DSC_5518.jpg
DSC_5530.jpg
DSC_5542.jpg


1층 화장실
DSC_5597.jpg


1층테라스
DSC_5552.jpg
DSC_5572.jpg
DSC_5582.jpg


계단실
DSC_5615.jpg
DSC_5626.jpg
DSC_5627.jpg
DSC_5633.jpg
DSC_5654.jpg


안방
DSC_5642.jpg
DSC_5646.jpg


2층화장실
DSC_5692.jpg


2층테라스
DSC_5661.jpg
DSC_5662.jpg
DSC_5682.jpg


도착


경기 광주의 38평 전원주택 완공사례 잘 보셨나요?^^

이번 주택은 지금까지 제가 보여드렸던 주택들과는 조금 다른 느낌이죠? 보통 저는 외벽에는 기본 스타코나 테라코트 같이 화이트톤으로 마감하는 디자인을 많이 사용했었는데 이번 주택은 고벽돌 느낌이 나는 파벽돌로 전체 외관을 마무리 했네요.

집을 디자인 할때 가장 중요하게 생각하는 것이 무었일까요? 건축가의 의견? 건축가로서 제안을 드릴 수 있지만 그것이 무조건 맞다고 할 수는 없답니다.^^

집이라는 것은 그 집에 사는 사용자가 원하는 요소를 얼마나 정확하게 구현해 냈는지가 가장 중요하다고 할 수 있습니다.

건축주가 만약 꽃무늬 벽지가 꿈이라고 한다면 촌스럽다고 무조건 반대할 것이 아니라 그것을 집과 어떻게 하면 최대한 조화롭게 표현해 낼 수 있을까(?)를 고민해야 한다는 것입니다.^^

이번 주택은 다양한 시도가 돋보인 주택인 것 같습니다. 고벽돌의 느낌이지만 실제로는 파벽돌을 사용하여 시공비를 현저하게 줄였으며, 가벼운 느낌을 싫어하신 건축주님의 성향에 따라 징크와 잘 조화시켜 겉에서 보면 철근콘크리트 주택처럼 무게감 있는 주택을 탄생시킬 수 있었습니다.^^

집이라는 것은 참 설계를 하고 시공을 할때마다 점점 궁금증을 자아내는 존재인 것 같습니다.

아직도 많이 부족함을 느끼며, 더욱 정진해야겠다는 생각이 드네요.

오늘의 이야기는 여기까지 입니다.^^ 다음 이야기에서 더 좋은 내용으로 찾아뵙겠습니다.

감사합니다.

*읽고 난 다음에는 위의 하트모양 라이킷과 공유 꾹 눌러주세용~^^


KakaoTalk_20160525_154948785.jpg (좌측부터) 정다운 건축가, 임성재 건축가, 이동혁 건축가

총괄 건축가 : 이동혁, 임성재, 정다운

설계·시공 : 홈트리오(주) 1522-4279

Homepage : http://hometrio.kr

이동혁건축가TV : http://tv.naver.com/sunsutu1


글쓴이 : 이동혁 건축가

이메일 : sunsutu@hanmail.net

상담 및 자문 : 010-4567-8413



keyword