#16 '청고벽돌을 입다.' 실용성을 강조한 목조주택.

목조 모던 스타일 40평 단독주택 설계제안

by 이동혁 건축가

제목 : #16 '청고벽돌을 입다.' 실용성을 강조한 목조주택

소제목 : 목조 모던 스타일 40평 단독주택 설계제안


출발


안녕하세요. 이동혁 건축가 입니다.^^

오늘도 여지없이 늦은 밤 글을 연재하는 중입니다. 요즘 이메일로 여러가지 문의들이 들어오고 있습니다. 그 중 협소한 대지에 집을 지을 수 있는지에 대한 문의가 많은데요.

일일이 현장에 나가서 확인해 드리면 좋으련만 컴퓨터 앞에서 지적도만을 보아서는 쉽게 현황 파악이 되어지지는 않네요. ㅠㅠ

협소주택의 경우 도심지이면서 용적율이 넉넉하게 확보된다면 50% 이상은 지을 수 있다고 생각합니다. 단, 너무 터무니 없이 작은 땅은 불가합니다.^^; 그래도 집을 앉힐 정도의 대지와 주차장이 나올 수 있는 땅은 있어야 한답니다.

집이라는 것은 내 땅이라고 하여 마음대로 지을 수 있는 것은 아닙니다. 각 땅마다 법규라는 것이 걸려있고 민원에 대한 부분들도 검토되어져야 하기 때문에 옆땅에서 집을 어떤식으로 지었다고 하여 무조건 그 땅과 똑같이 지을 수 있는 것은 아니랍니다.^^

꼭 집을 지을 때는 전문가와 같이 현장과 법규를 검토한 뒤 그 다음과정을 진행하시기 바랍니다.

오늘은 '청고벽돌'을 외관에 입힌 주택을 소개시켜드릴까 합니다. 요즘 고벽돌이 다시 유행인지 고벽돌을 많이 찾으시는데요. 고벽돌의 매력이 이미 흠뻑 빠져계신 분들이라면 이번 설계 기획안이 매우 마음에 들 것이라 생각합니다.

자 같이 집이 어떻게 설계되었는지 같이 확인해 보러 출발하시죠!

*읽고 난 다음에는 위의 하트모양 라이킷과 공유 꾹 눌러주세용~^^




HOUSE PLAN

연면적 : 131.50㎡

1층 : 65.75㎡

2층 : 65.75㎡

총괄 건축가 : 이동혁, 임성재, 정다운

설계·시공 : 홈트리오(주) 1522-4279

Homepage : http://hometrio.kr

이동혁건축가TV : http://tv.naver.com/sunsutu1

예상 총 건축비 : 240,600,000원(부가세포함)

설계비 및 인허가비 : 10,000,000(부가세포함)

*건축비 외 부대비용 : 대지구입비, 가구(싱크대, 신발장, 붙박이장), 기반시설인입(수도,전기,가스 등), 토목공사, 조경비 등


SPEC

공법 : 기초-철근콘크리트 / 1층, 2층 구조-경량목구조

지붕마감재 : 리얼징크

외벽마감재 : 청고벽돌

외벽포인트자재 : 청고벽돌

실내벽마감재 : 실크벽지

실내바닥마감재 : 강마루

창호재 : 융기 3중 시스템창호

단열재 : 외부벽체(Glasswool Insulation R21HD-15" 나등급)

▷크나우프社 ECOBATT (ECOSE® 특허)

▷HD:저에너지 하우스용 / 15인치(381mm) *동등 제품

: 내부벽체(Glasswool Insulation R19-15" 다등급)

: 천장(Glasswool Insulation R30-15" 다등급)

: 지붕(Glasswool Insulation R37-23" 가등급) ▷ISOVER社에너지세이버

*단열기준은 2016년 7월1일자로 변경되는 단열기준법을 적용하여 강화시켜 놓았습니다.


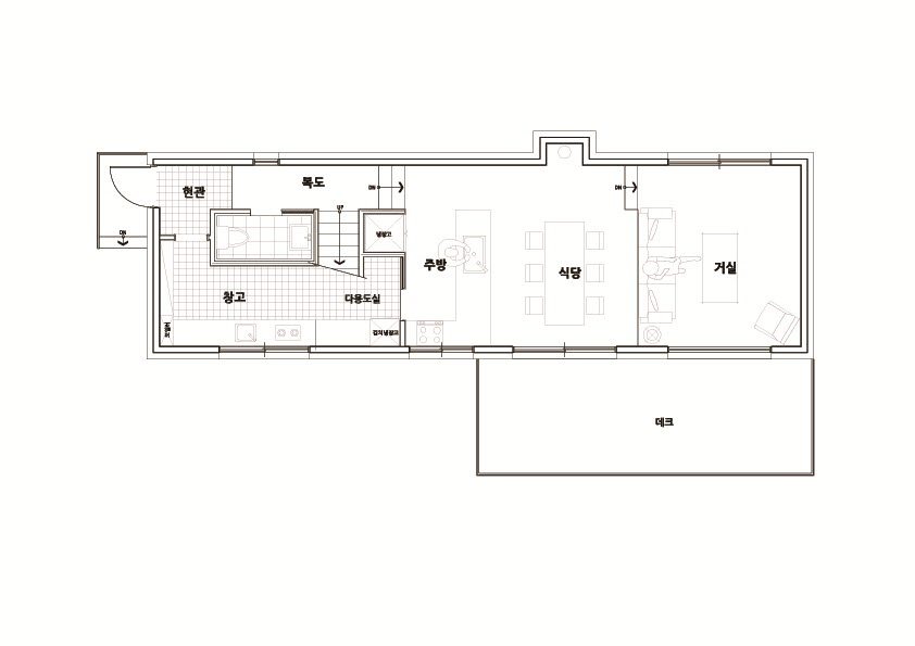
1층 평면도
2층 평면도
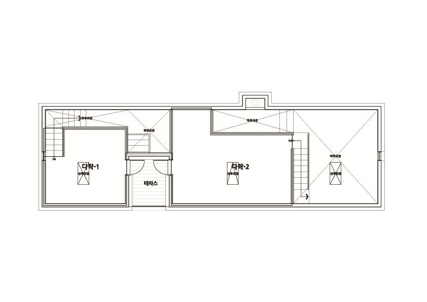
다락평면도


Q.설계 방향에 대해 설명해주세요.

이번 설계방향은 '실용적인 공간구성' 입니다. 최대한의 마당 공간을 확보할 수 있는 협소주택 형 설계계획을 진행하였으며, 각 층 별로 공간에 대한 목적성을 뚜렷하게 구분될 수 있도록 공간구성을 하였습니다.

1층은 식당 및 계단, 거실 부분을 구성하여 공용공간에 대한 니즈를 충족시킬 수 있도록 하였으며, 2층 부터는게스트룸 및 침실 등을 설치하여 프라이버시가 잘 유지될 수 있는 공간으로 구성하였습니다.

다락 공간 등을 더 배치하여 부족할 수 있는 공간에 대한 확장성을 유도하였으며, 각 공간 위로 올라갈 수 있는 계단을 별도로 배치하여 각 공간별 사용목적에 따라 다양하게 활용 가능하도록 하였습니다.


Q.면적은 얼마나 되는가요?

2층으로 구성하였으며, 1층은 65.75㎡(20평), 2층은 65.75㎡(20평)으로 구성하였습니다. 2층 위의 일부공간은 다락으로 구성하여 공간 활용성을 더 높여주었으며, 테라스 및 오픈천장 등의 옵션을 적용하여 공간감을 극대화 할 수 있는 계획안을 구성하였습니다.


Q.비용은 얼마가 들었나요?

총 240,600,000원이 소요될 것으로 판단됩니다. 부가세가 포함 된 가격이며, 순수한 건축비 입니다. 설계비는 10,000,000원이 소요되어졌습니다. 이는 부가세 포함 가격이며, 인허가 및 사용승인 비용도 포함된 금액입니다.


Q.외장재에 사용한 청고벽돌이 무엇인가요?

청고벽돌은 고벽돌과 같은 마감재로 붉은빛이 도는 벽돌이 아닌 회색빛과 청색이 도는 고벽돌을 뜻하는 말입니다. 일반 고벽돌의 경우 엔틱하면서 고즈넉한 분위기를 자아내는 반면, 청고벽돌은 세련되면서 차가운 느낌의 시크함을 느낄 수 있는 장점을 가지고 있습니다. 또한 모던한 마감자재인 징크와도 잘 어울려 젊은 건축주님들께서 많이 선택하시는 외장 마감재 입니다.

다만 가격대가 조금 있어 외장재 추가 비용으로 면적에 따라 최소한 500~1000만원 정도는 부담하셔야 하는 단점이 있습니다.^^;


Q.외관 디자인의 컨셉이 무엇인가요?

청고벽돌과 리얼징크를 조합하여 시크하면서 네츄럴한 모던함을 연출하고 싶었습니다. 아직 시공되어진 주택은 아니지만 완공되었을 시 주변에서 이목을 끄는 주택이 될 것이라 자부합니다.^^

또한 매스분절을 최소화 하고 박스형으로 올곧게 올라가는 평면과 벽은 데드스페이스를 최소화 하고 공사비를 상대적으로 줄일 수 있는 장점을 가지고 있다 할 수 있습니다.


Q.이번 주택에서의 포인트는 무엇인가요?

이번 주택의 포인트는 창이라고 할 수 있습니다. 매스적으로 입체감을 살릴 수 없었기 때문에 밋밋할 수 있는 입면에 창문 스케일을 다 다르게 적용하여 일반화 되지 않는 디자인 감성을 줄 수 있도록 하였습니다. 불규칙하게 배열된 가로창과 세로창의 조합을 통해 믹스&매치의 디자인적 느낌을 포인트로 줄 수 있도록 하였습니다.


Q.시공기간은 얼마나 걸릴까요?

시공기간은 3.5개월이 소요될 것으로 생각합니다. 이는 사전에 인허가 및 착공신고까지 모두 이루어졌다는 것을 가정한 기간입니다. 설계기간은 최소 2~3개월이 소요되므로 최소 공사 들어가기 6개월 전에는 스타트를 하셔야 합니다.^^


Q.마지막 총평을 한다면?

제가 일반적으로 사용을 잘 안했던 청고벽돌을 사용하였는데요. 외장재는 그마다의 장점과 특징들을 가지고 있는 것 같습니다. 청고벽돌의 경우 최근 모던함을 상징하는 건축물에 많이 사용되어지고 있는데요. 이번 주택도 차가워 보이지만 시크하면서 도도한 느낌을 줄 수 있도록 디자인 되어진 것 같습니다.

집을 설계하고 시공할 때 제가 건축주님께 '집을 지으면서 어떤점이 가장 어려웠나요?' 라고 물으면 외장재를 무엇으로 선정할지가 가장 고민이었다고 답하시는 분들이 많습니다.

국내 유통되고 있는 외장재의 종류만해도 수백가지가 되어집니다. 당연히 모든 자재의 장단점을 살펴볼 수는 없을 것입니다. 좋으면 비싸고 싼 마감재는 마음에 안들고...

그렇다고 마음대로 고를 수 없는 이유가 외장재에 따라 집의 분위기가 아에 달라지기 때문입니다. ㅠㅠ

제가 조언드릴 수 있는 것은 외장재에 너무 많은 고민을 하지 마시고 가장 기본이 되는 자재를 사용하되 내 예산범위 내에서 자재 선정을 하라는 것입니다.

항상 1번 고려사항은 예산입니다.^^ 내 예산안에서 움직이시고 예산이 허락하면 더 원하는 요소들을 넣으시면 되시고 부족하다면 일부분만 포인트를 넣는 방식으로 가셔야 한답니다.

간혹 빛을 더 내서 외장재에 돈을 쏟겠다고 하시는 분들이 있는데 '과시욕을 버리셔야 합니다!'

저희가 추천드리는 디자인을 항상 믿어주셔야 하며, 가고자 하는 방향에 대해 흔들리시면 안된답니다.^^

정면도
배면도


추윽면도
좌측면도
지붕평면도


도착


40평 '청고벽돌을 입은' 목조 전원주택. 이번 설계기획안은 마음에 드셨나요?^^

매번 노력을 하지만 오늘도 50% 이상의 구독자 여러분들은 다음 설계 기획안을 기약하시는 분들도 계실 것입니다. ㅠㅠ 내 마음에 쏙 드는 설계 기획안이 '짠' 하고 나타났으면 좋겠는데 생각보다 잘 안 나타나죠?^^;

그 마음 충분히 이해한답니다.

저의 설계기획안도 벌써 16번째를 넘어서고 있습니다. 올해안에 40개가 넘는 설계 기획안을 보여드리고자 하였는데 가능할지 모르겠네요. ㅠㅠ

그래도 열심히 노력할테니 많은 응원 부탁드립니다.

다음달은 벌써 휴가철이에요. 여러분들 집 짓기 준비하시다가 많이 지치셨을텐데 휴가계획 잘 짜시고 휴가가는 그 날만을 상상하며 오늘도 화이팅 하시길 바라겠습니다.^^

감사합니다.

*읽고 난 다음에는 위의 하트모양 라이킷과 공유 꾹 눌러주세용~^^


(좌측부터) 정다운 건축가, 임성재 건축가, 이동혁 건축가


총괄 건축가 : 이동혁, 임성재, 정다운

설계·시공 : 홈트리오(주) 1522-4279

Homepage : http://hometrio.kr

이동혁건축가TV : http://tv.naver.com/sunsutu1

[집이라는 본질적인 가치에 집중하다.]


글쓴이 : 이동혁 건축가

이메일 : sunsutu@hanmail.net


상담 및 자문

이동혁 건축가 : 010-4567-8413

정다운 건축가 : 010-8560-0477

임성재 건축가 : 010-9941-8899



keyword