땅 없어서 고민? 증축 리모델링으로 집을 마련하다.

#10 45평 증축 리모델링 상가주택 완공사례

by 이동혁 건축가

제목 : #10 땅 없어서 고민? 증축 리모델링으로 집을 마련하다.

소제목 : 부산 남구 45평 목조 증축 리모델링 상가주택 완공사례


출발


안녕하세요. 이동혁 건축가 입니다.^^

요즘 상담을 받다보면 5건 중 1건은 증축 리모델링에 관련된 내용들입니다. 그만큼 증축에 대한 관심도가 높다는 것을 뜻하겠죠.^^

어찌보면 도심지에 내 집을 짓는다는 것은 건축비 보다 땅을 구입하는 비용이 훨씬 더 크게 들어갈 수 있기 때문에 도심지의 집짓기는 꿈에도 생각지 못한 일일 것입니다. ㅠㅠ

이번에 들려드릴 이야기는 도심지에 집을 짓지만 기존 건물 위에 집을 올리는 증축 리모델링과 관련된 내용을 이야기 드리고자 합니다.

부산 남구에 증축 된 이번 주택은 도심지 내 집짓기를 준비하시는 분들께는 많은 도움이 되지 않을까 생각됩니다.

자 그럼 출발해 보겠습니다.^^

*읽고 난 다음에는 위의 하트모양 라이킷과 공유 꾹 눌러주세용~^^



HOUSE PLAN

연면적 : 148.40㎡

증축면적 : 132.86㎡

계단실면적 : 15.54㎡

총괄 건축가 : 이동혁, 임성재, 정다운

설계·시공 : 홈트리오(주) 1522-4279

Homepage : http://hometrio.kr

이동혁건축가TV : http://tv.naver.com/sunsutu1


예상 총 건축비 : 210,000,000원(부가세포함)

설계비 및 인허가비 : 11,250,000원(부가세포함)

*건축비 외 부대비용 : 대지구입비, 가구(싱크대, 신발장, 붙박이장), 기반시설인입(수도,전기,가스 등), 토목공사, 조경비 등


SPEC

공법 : 기초-철근콘크리트 / 구조-경량목구조

구조재 : 벽-2*6 SPF / 지붕-2*10 SPF

단열재 : 외벽/지붕(수성연질폼 '가'등급)

: 내부벽체(Glasswool Insulation R19-15" 다등급)

: 내부천장(Glasswool Insulation R30-15" 다등급)

지붕마감재 : 아스팔트슁글

외벽마감재 : 시멘트사이딩

외벽포인트자재 : EPS몰딩

실내벽마감재 : 실크벽지

실내바닥마감재 : 강마루

창호재 : 융기 3중 시스템창호

단열재 : 외부벽체(Glasswool Insulation R21HD-15" 나등급)

▷크나우프社 ECOBATT (ECOSE® 특허)

▷HD:저에너지 하우스용 / 15인치(381mm) *동등 제품

: 내부벽체(Glasswool Insulation R19-15" 다등급)

: 천장(Glasswool Insulation R30-15" 다등급)

: 지붕(Glasswool Insulation R37-23" 가등급) ▷ISOVER社에너지세이버

*단열기준은 2016년 7월1일자로 변경되는 단열기준법을 적용하여 강화시켜 놓았습니다.



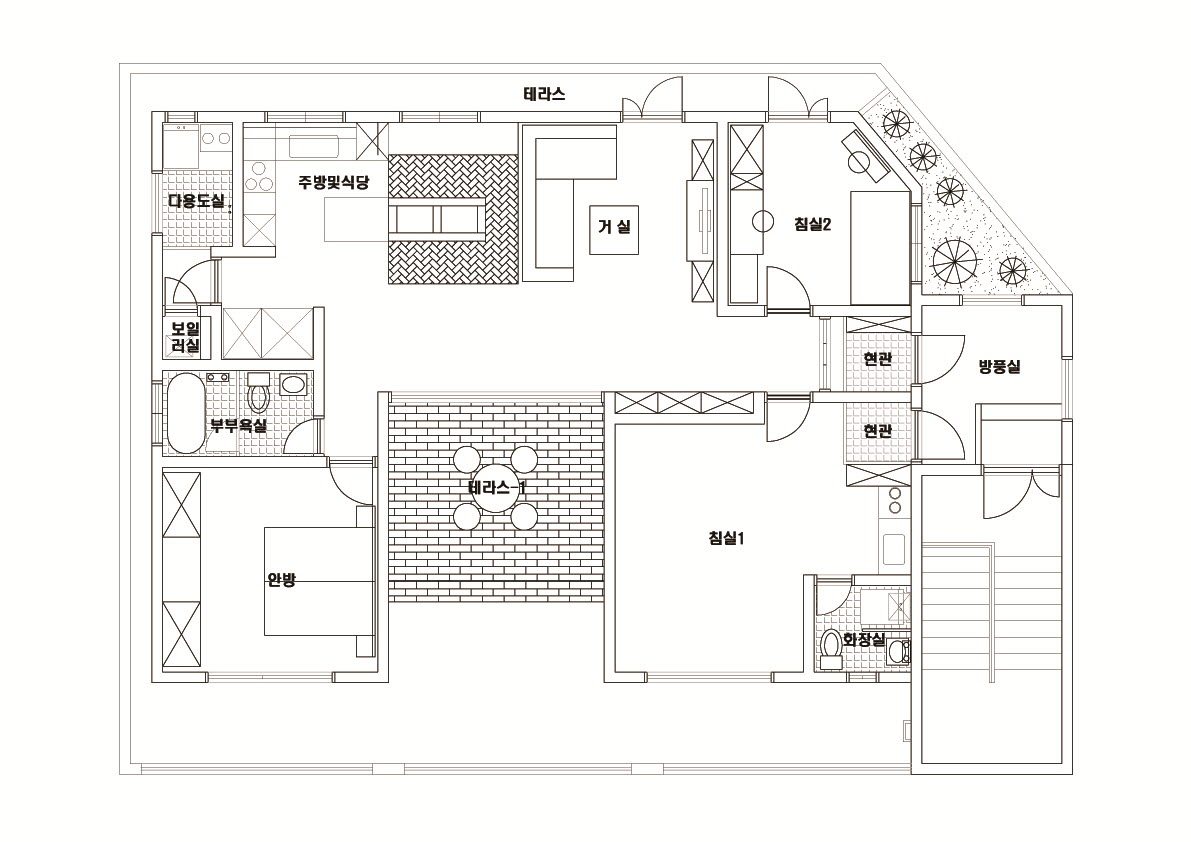
증축 리모델링 평면도


Q.설계 방향에 대해 설명해주세요.

이번 설계방향은 '최소한의 비용으로 증축하기'입니다. 최대한 옥상의 많은 공간을 찾아먹되 정해진 예산 안에서 완공이 되어야 하는 미션이 걸려있었습니다. 집 지을때마다 느끼는 것이지만 한정된 예산안에서 건축주님의 요구를 모두 반영한다는 것은 너무 어려운 것 같습니다.ㅠㅠ

하지만 이번 증축 리모델링 건으로 건축주님과 저희 건축가들 모두 만족할 만한 결과가 나와 고생한 만큼 많은 보람을 느끼는 프로젝트였습니다.

총 45평의 증축 리모델링 건이었으며, 법적인 이격거리만을 남겨둔 뒤 최대한의 공간을 찾아먹을 수 있는 설계안을 구상하였습니다.

중정에 대한 부분까지도 고려하여 옥상에 증축되는 주택이지만 최대한의 힐링적인 부분적인 요소를 가지고 갈 수 있도록 각 공간별 꼼꼼한 계획과 설계가 이루어졌습니다.

증축을 고려하고 계신 분들이라면 아마 관심있게 지켜볼 수 있는 프로젝트일 것이라 생각합니다.^^


Q.면적은 얼마나 되는가요?

옥상 위 1층 단층으로 구성하였으며, 148.40㎡(45평)으로 구성하였습니다. 침실은 총 3개로 구성하였으며, 화장실 2개에 중정, 그리고 주방과 거실까지 콤팩트하게 구성하여 데드스페이스 없이 짜임새 있는 공간배치를 이루어냈습니다.


Q.비용은 얼마가 들었나요?

공사비는 총 210,000,000원이 소요되었으며, 설계비는 11,250,000원이 소요되었습니다. 부가세가 포함 된 가격이며, 부대비용을 제외한 순수한 건축비 입니다.


Q.증축 리모델링을 할 때 주의할 점이 있나요?

증축을 진행할 때 가장 먼저 알아볼 것은 건축법규 입니다. 우리 지역이 증축 대상지인지와 용적률이 충분한지가 확인되어야 합니다.

옥상이 비워져 있다고 하여 모두 증축을 할 수 있는 것은 아닙니다. 이미 용적률을 100% 꽉 차게 지은 건물의 경우 증축은 불가능하며, 고도제한이 걸려 있는 곳들도 제약사항이 많을 것입니다.

개인적으로 이러한 부분을 확인하기 어렵기 때문에 꼭 건축전문가나 건축 담당공무원을 통해 전문적인 내용을 확인해 보시기 바랍니다.

또한 구조적인 문제도 확인해 보아야 합니다. 모든 건축물들이 튼튼하게 지어졌으면 좋겠지만 생각보다 날림으로 지은 주택들이 많이 존재합니다. 잘못하다가는 1층 증축을 할려다 하부의 보강을 더 많이 해야하는 경우가 발생할 수 있으므로 주의하셔야 합니다.


Q.증축 리모델링을 하면 신축대비 얼마나 절약할 수 있나요?

증축이라고 하여 신축대비 공사비가 줄어든 것은 아닙니다. 거의 동일시하게 진행된다고 생각하시면 됩니다. 다만 이미 기반시설이나 여러가지 제반사항들이 모두 들어와 있기 때문에 토목공사 및 기반시설 인입비, 측량비 등의 문제에 대해서 자유롭기 때문에 부대비용쪽에서 최소 2천만원 이상 절약가능하다라고 말씀드리고 싶습니다.^^


Q.이번 주택에서의 포인트는 무엇인가요?

이번 주택의 포인트는 외관이 아닌 실내공간에 있다고 할 수 있습니다. 제가 항상 설계할때마다 건축주님들께 강조하는 부분이 있는데 외관에 대해서는 너무 많은 투자를 하시지 말라는 것입니다. 지금처럼 시멘트 사이딩으로 마감한다고 해서 단열이나 방수에 아무런 문제가 없답니다.^^

특히 이번 사례처럼 증축을 하는 경우라면 더더욱 외관에 대해서 많은 돈을 들이시면 안됩니다. 대신 외관에 투자되었어야 할 돈을 아껴서 내부 인테리어에 투자하신다면 지금의 주택사례처럼 정갈하면서 분위기 있는 인테리어를 완성시킬 수 있을 것입니다.


Q.시공기간은 얼마나 걸릴까요?

시공기간은 3.5개월이 소요될 것으로 생각합니다. 이는 사전에 인허가 및 착공신고까지 모두 이루어졌다는 것을 가정한 기간입니다.


Q.마지막 총평을 한다면?

증축은 많이 진행하지 않지만 이번 사례는 특수한 경우였던 것 같습니다. 최근에 전원주택과 내집짓기가 열풍이다 보니 많은 특이한 케이스들이 문의오는 것 같습니다.

지금까지는 제가 신축과 관련된 내용만 글을 연재해 드렸었는데 이번 증축 사례를 통해 내 집을 지을 수 있는 새로운 방법을 하나 더 알게 되셨을거라 생각됩니다.^^

마당 있는 집에 대한 꿈. 물론 넓은 마당에서 아이들과 강아지들과 같이 뛰어노는 것도 좋은 방법이겠지만 땅에 대한 확신이 없거나 이미 건물이 존재하는 분들이라면 이렇게 증축을 통해 내 집마련을 하는 방법도 좋지 않을까(?) 조심스럽게 생각해 봅니다.^^


외관


현관


거실


주방 및 식당



안방


부부욕실


자녀방


화장실


운동실 및 다목적실


테라스


도착


45평 부산 남구에 지은 증축 리모델링 완공 사례. 잘 보셨나요?^^

증축이라고 해서 신축과 달리 대충 짓거나 어설프게 짓는 것은 아니랍니다. 신축과 동일한 조건에 짓되 기반시설 인입비나 토지 구입비가 절약되기 때문에 어찌보면 신축과 같은 품질에 훨씬 적은 금액으로 집을 지을 수 있는 방법일 것입니다.

오늘 증축 리모델링 건을 소개시켜드렸다고 해서 모든 건물 위에 집을 앉힐 수 있는 것은 아닙니다. 구조적인 부분이 충분히 검토되어야 하며, 건축법적인 부분이 모두 만족되어져야 하는 일인 만큼 증축 진행 시 꼭 건축 전문가의 자문을 얻으시길 바랍니다.^^

요즘 내 집 짓기 열풍이 계속되고 있습니다. 그만큼 아파트에 대한 인기가 많이 줄어들었다는 것을 뜻하겠지요.

마당 있는 집에서 사는 꿈. 그 꿈을 이루시는 그날까지 계속해서 동행해 드릴테니 포기하지 마시고 화이팅 하시길 바라겠습니다.

감사합니다.^^

*읽고 난 다음에는 위의 하트모양 라이킷과 공유 꾹 눌러주세용~^^


(좌측부터) 정다운 건축가, 임성재 건축가, 이동혁 건축가


총괄 건축가 : 이동혁, 임성재, 정다운

설계·시공 : 홈트리오(주) 1522-4279

Homepage : http://hometrio.kr

이동혁건축가TV : http://tv.naver.com/sunsutu1

[집이라는 본질적인 가치에 집중하다.]


글쓴이 : 이동혁 건축가

이메일 : sunsutu@hanmail.net

상담 및 자문 : 010-4567-8413



keyword