#21 RC 모던 스타일 55평 전원주택 설계제안
제목 : #21 '가족의 추억을 새기다.' 철근콘크리트 단독주택
소제목 : #21 RC 모던 스타일 55평 전원주택 설계제안
출발
안녕하세요. 이동혁 건축가 입니다.^^
오늘은 장바비가 새차게 내리고 있네요. 한동안 더위가 기승이더니 오늘은 비가 내려서인지 시원한 느낌이 드는 날이네요.^^
저는 개인적으로 비내리는 날 감성에 젖는 것을 좋아했었는데 건축업을 한 이후로는 비가내리면 공사현장 문제 생기지 않을까(?) 하는 걱정을 안고 살게 되었답니다. ㅠㅠ

그래도 다행히 올 봄 착공들어갔던 현장들이 모두 안전하게 마무리되어 편안한 마음으로 장마기간을 보내게 되었네요.
오늘 들려드릴 이야기는 55평 규모의 모던형 철근콘크리트 주택입니다. 심플한 외관에 박스형의 모던한 매스는 모던 스타일 전원주택의 정석이라 할 수 있겠네요.^^
자 같이 집이 어떻게 설계되었는지 같이 확인해 보러 출발하시죠!
*읽고 난 다음에는 위의 하트모양 라이킷과 공유 꾹 눌러주세용~^^
연면적 : 182.06㎡
1층 : 101.46㎡
2층 : 80.60㎡
총괄 건축가 : 이동혁, 임성재, 정다운
설계·시공 : 홈트리오(주) 1522-4279
Homepage : http://hometrio.kr
이동혁건축가TV : http://tv.naver.com/sunsutu1
예상 총 건축비 : 330,000,000원(부가세포함)
설계비 및 인허가비 : 13,750,000(부가세포함)
*건축비 외 부대비용 : 대지구입비, 가구(싱크대, 신발장, 붙박이장), 기반시설인입(수도,전기,가스 등), 토목공사, 조경비 등
공법 : 기초-철근콘크리트 / 1층, 2층 구조-철근콘크리트
지붕마감재 : 리얼징크
외벽마감재 : 스타코플렉스
외벽포인트자재 : 인조석, 적삼목사이딩
실내벽마감재 : 실크벽지
실내바닥마감재 : 강마루
창호재 : 융기 3중 시스템창호
단열재 : 외부벽체(Glasswool Insulation R21HD-15" 나등급)
▷크나우프社 ECOBATT (ECOSE® 특허)
▷HD:저에너지 하우스용 / 15인치(381mm) *동등 제품
: 내부벽체(Glasswool Insulation R19-15" 다등급)
: 천장(Glasswool Insulation R30-15" 다등급)
: 지붕(Glasswool Insulation R37-23" 가등급) ▷ISOVER社에너지세이버
*단열기준은 2016년 7월1일자로 변경되는 단열기준법을 적용하여 강화시켜 놓았습니다.
이번 설계방향은 '심플함에 감추어진 매력'입니다. 이번 주택은 그동안 제가 설계 제안 드린 타 주택과는 다르게 철근콘크리트 공법을 사용하여 계획되어졌습니다. 목조주택에 비해 평당가가 조금 더 비싼 이유로 최근에는 목조가 열풍이긴 한데요. 그래도 모던한 느낌과 철근콘크리트 주택만이 줄 수 있는 느낌은 목조보다는 조금 더 디자인적 우위에 있는 것 같습니다.^^; 집을 디자인 할 때 제가 항상 하는 말이 있죠? 포인트는 정면부분에 조금만!! 이번 주택도 현관의 정면부분과 발코니 부분에 포인트를 적용하여 심플하지만 세련된 느낌을 가미하고자 하였습니다. 또한 징크와 적삼목, 인조석을 혼합 적용하여 무게감과 더불어 고급스러운 이미지를 함께 집에 입힐 수 있었습니다.^^
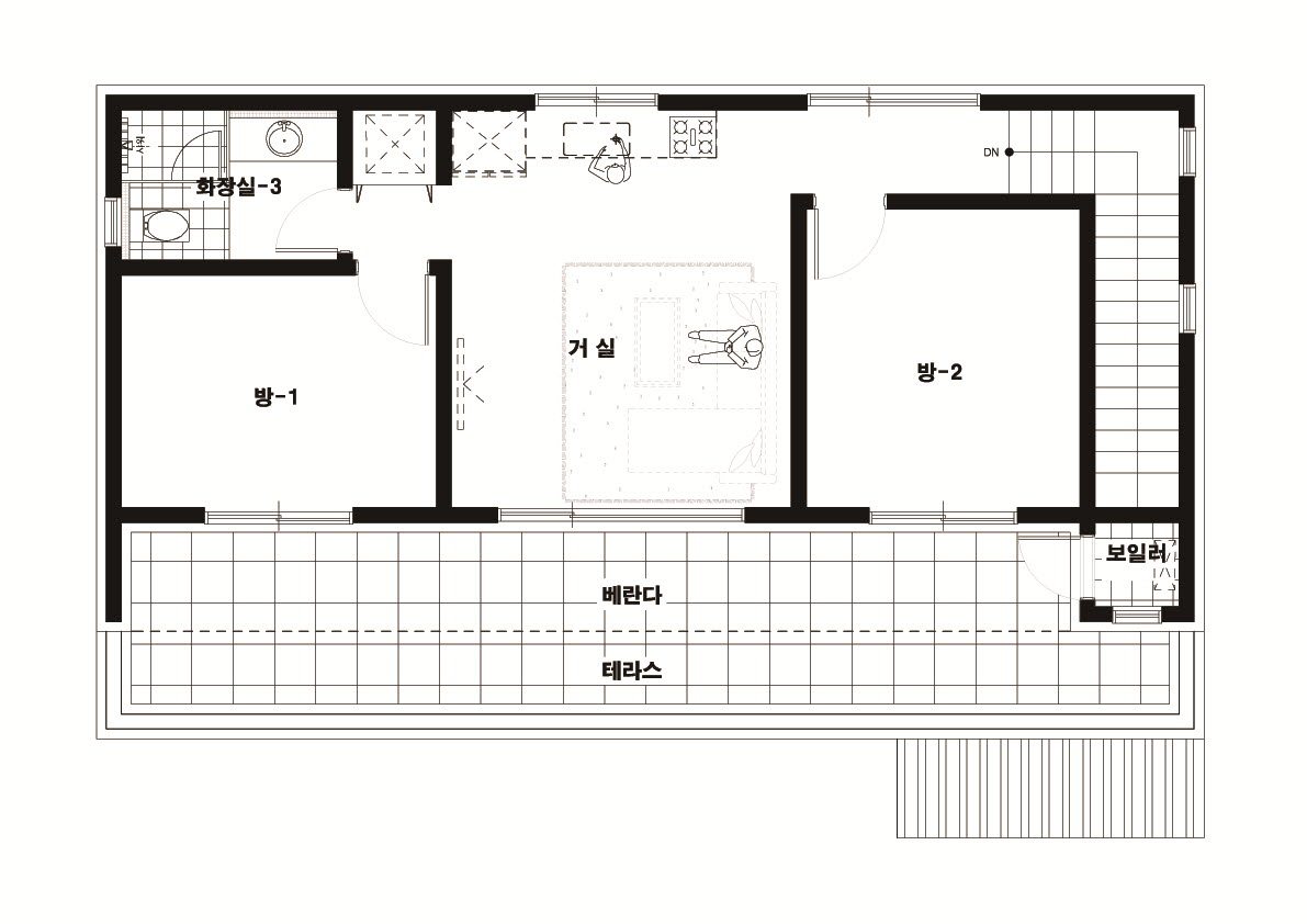
2층으로 구성하였으며, 1층은 101.46㎡(30.6평), 2층은 80.60㎡(24.4평)으로 구성하였습니다. 1층과 2층에 독립적으로 생활이 가능하도록 거실과 간이 주방을 별도로 구분하여 설치하였으며, 2층 베란다를 넓게 구성하여 답답할 수 있는 2층 생활공간에 대해 외부로의 확정성을 부여하고자 하였습니다.
총 330,000,000원이 소요될 것으로 판단됩니다. 부가세가 포함 된 가격이며, 순수한 건축비 입니다. 설계비는 13,750,000원이 소요되어졌습니다. 이는 부가세 포함 가격이며, 인허가 및 사용승인 비용도 포함된 금액입니다.
최근 전원주택 설계 트렌드를 보면 예전과 달리 거실보다 주방이 커지고 있는 것을 알 수 있습니다. 더 이상 집으 중심이 거실이 아니라 주방으로 옮겨가고 있다고 해도 무방할 것입니다. 저는 주방과 식당을 설계할 때 거실과 거의 1:1 비율이나 아니면 주방을 더 크게 설계하고 있습니다. 그 이유는 주방, 식당, 다용도실까지 연계되는 이 공간이 오픈되면서 넓게 구성되어야 답답함을 줄이면서 집의 분위기를 넓은 느낌으로 이끌어 갈 수 있기 때문입니다. 또한 주방이 작게 구성되면 실제로 동일한 평형이어도 생활할 때 집이 좁다는 느낌을 상대적으로 받는답니다. 여러분들도 주방을 구성하실 때 너무 좁게만 구성하시지 마시고 되도록이면 거실과 1:1 정도의 비율을 맞추어 계획하시기 바랍니다.^^
건축주님께서 모던스타일을 원하셨기 때문에 최대한 박스형의 매스분절이 없는 디자인으로 계획하였습니다.
평면 구성으로도 데드스페이스가 없는 공간구성이 나왔으며, 외관에서도 깔끔하면서 심플한 느낌의 주택이 완성 된 것 같습니다. 포인트를 정면부분에 집중시켰으며, 차가우면서 세련된 느낌으 징크와 무게감 있는 인조석, 그리고 친환경적인 느낌의 적삼목을 혼합 사용하여 모던한 이미지를 한 층 더 부각될 수 있도록 설계하였습니다.
예전에는 단열기능이 없이 바람을 막는 역할만 할 수 있는 문들을 사용했었는데요. 현재는 모든 주택들이 단열성능이 가미된 스틸단열도어를 의무적으로 사용하고 있답니다.^^ 사면이 고무패킹이 되어져 있으며, 내부에 단열재가 들어가 있어 단열이 중요한 전원주택의 경우 필히 단열도어를 적용하여 시공하여야 합니다.
시공기간은 5개월이 소요될 것으로 생각합니다. 이는 사전에 인허가 및 착공신고까지 모두 이루어졌다는 것을 가정한 기간입니다. 설계기간은 최소 2~3개월 정도 소요됩니다. 많은 분들이 시공계약하면 바로 공사가 이루어진다고 생각하시는데 절대로 그렇지 않습니다.^^; 설계 및 착공계를 내는 기간이 3달 정도 소요되니 꼭 집을 짓는다고 결정하셨으면, 3~6개월 전에는 설계 스타트를 하셔야 합니다.
집을 지을 때 가장 많이 하는 고민이 외관 스타일일 것입니다. 클래식으로 지어야 할지, 아니면 북유럽스타일로 기와를 올려야 할지 등등... 설계를 하는 저희들도 매번 집의 외관 이미지를 잡을 때 많은 고민을 한답니다.^^;
어떻게 하면 이번 주택은 다른 주택들보다 좀 더 멋지게 디자인하고 유니크하게 만들 수 있을까? 하지만 그러면서도 건축비는 저렴하게...^^; 참 어려운 일인 것 같습니다.
이번 전원주택은 추후 인천 서구 원당동에 지어질 예정입니다. 모던한 느낌이 잘 어울리는 대지에 앉혀질 예정이며, 인천 서구의 랜드마크적인 요소가 될 것이라 자부합니다.^^
모던스타일의 주택을 준비중이신가요? 이번에 제안드린 설계안이 조금은 도움이 되셨으면 합니다.
도착
55평 철근콘크리트 전원주택. 이번 설계기획안은 마음에 드셨나요?^^
집을 디자인 할 때 마다 많은 고민을 하게 되어집니다. 이번에는 어떻게 디자인해야 건축주님의 마음에 꼭 들 수 있을까? 그러면서도 건축비는 예산안에서 마무리 되어야 할 텐데... 3개월의 기나긴 설계협의, 그리고 확정. 집이라는 것은 참 다양한 이야기가 담겨져 있는 집합체 인 것 같습니다.^^
에고... 계속 사설이 길어지네요. ^^ 오늘 이야기 드린 주택 어떠셨나요? 그동안 보여드렸던 목조주택과는 조금은 느낌이 다른가요?
목조로 주택을 짓던 철근콘크리트로 주택을 짓던 중요한 것은 한가지 인 것 같습니다. 합리적인 금액으로 집을 설계하고 지을 것! ^^; 집을 지을 때 내가 정말 원하는 요소만을 가지고 가시길 바랍니다. 너무 많은 내용을 집에 담다보면 건축비가 한도끝도 없이 올라간답니다. ㅠㅠ
내가 꼭 필요한 내용만 담은 주택. 여러분들도 가족과의 소중한 추억을 새길 수 있는 멋진 집을 짓길 바라겠습니다.^^
감사합니다.
*읽고 난 다음에는 위의 하트모양 라이킷과 공유 꾹 눌러주세용~^^
총괄 건축가 : 이동혁, 임성재, 정다운
설계·시공 : 홈트리오(주) 1522-4279
Homepage : http://hometrio.kr
이동혁건축가TV : http://tv.naver.com/sunsutu1
[집이라는 본질적인 가치에 집중하다.]
글쓴이 : 이동혁 건축가
이메일 : sunsutu@hanmail.net
상담 및 자문
이동혁 건축가 : 010-4567-8413
정다운 건축가 : 010-8560-0477
임성재 건축가 : 010-9941-8899