#22 '모던을 입은 상가주택의 품격' 104평 설계안

#22 RC 모던 스타일 104평 상가주택 설계제안

by 이동혁 건축가

제목 : #22 '모던을 입은 상가주택의 품격' 104평 설계안

소제목 : #22 모던 스타일 104평 상가주택 설계제안


출발


안녕하세요. 이동혁 건축가 입니다.^^

이제 비가 다 내렸나봐요. 조금씩 하늘이 밝아지기 시작하네요. 어제 밤에 비를 엄청 쏟아붇어서 그런지 오늘 공기가 맑은 듯한 느낌이 드네요.^^;

오늘 이야기 드릴 설계기획안은 '상가주택'에 관한 내용입니다.

그동안에는 전원주택 위주로 기획안을 발표했었는데요. 오늘은 조금 특별한 분야인 상가주택에 대해 이야기 드려볼까 합니다.

예전에 상가주택이라고 하면 박스형에 최대한의 임대공간을 줄 수 있는 단조로운 형태들이 많았는데요. 요즘에는 그렇게 지으면 임대가 안 나가기 때문에 유니크하면서도 디자인된 상가주택 설계안을 많이 찾으신답니다.^^

모던 스타일에 어찌보면 작지만 웅장한 느낌이 드는 이번 상가주택 설계기획안.

자 같이 집이 어떻게 완공되었는지 같이 확인해 보러 출발하시죠!

*읽고 난 다음에는 위의 하트모양 라이킷과 공유 꾹 눌러주세용~^^


완도 상가 주택-업뎃용.jpg


HOUSE PLAN

연면적 : 343.77㎡

1층 : 96.62㎡

2층 : 107.09㎡

3층 : 88.25㎡

4층 : 51.81㎡

총괄 건축가 : 이동혁, 임성재, 정다운

설계·시공 : 홈트리오(주) 1522-4279

Homepage : http://hometrio.kr

이동혁건축가TV : http://tv.naver.com/sunsutu1

크기변환_KakaoTalk_20160706_162914492.jpg

예상 총 건축비 : 572,000,000원(부가세포함)

설계비 및 인허가비 : 20,800,000(부가세포함)

*건축비 외 부대비용 : 대지구입비, 가구(싱크대, 신발장, 붙박이장), 기반시설인입(수도,전기,가스 등), 토목공사, 조경비 등


SPEC

공법 : 기초-철근콘크리트 / 1~4층 구조-철근콘크리트

지붕마감재 : 리얼징크

외벽마감재 : 스타코플렉스

외벽포인트자재 : EPS, 적삼목사이딩

실내벽마감재 : 실크벽지

실내바닥마감재 : 강마루

창호재 : 융기 3중 시스템창호

단열재 : 외부벽체(Glasswool Insulation R21HD-15" 나등급)

▷크나우프社 ECOBATT (ECOSE® 특허)

▷HD:저에너지 하우스용 / 15인치(381mm) *동등 제품

: 내부벽체(Glasswool Insulation R19-15" 다등급)

: 천장(Glasswool Insulation R30-15" 다등급)

: 지붕(Glasswool Insulation R37-23" 가등급) ▷ISOVER社에너지세이버

*단열기준은 2016년 7월1일자로 변경되는 단열기준법을 적용하여 강화시켜 놓았습니다.

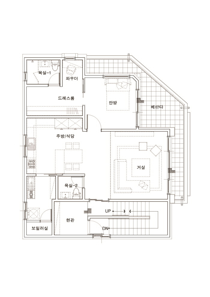
크기변환_1층평면도.jpg 1층 평면도
크기변환_2층평면.jpg 2층 평면도
크기변환_3층평면.jpg 3층 평면도
크기변환_4층평면.jpg 4층 평면도
크기변환_지붕평면도.jpg 지붕평면도


Q.설계 방향에 대해 설명해주세요.

이번 설계방향은 '모던을 입다.' 입니다. 단조로움을 피하고 입체적인 매스감으로 많은 비용을 외장재에 들이지 않더라도 유니크한 디자인을 만들어 내고자 하였습니다. 외장포인트로는 징크를 두가지 톤을 섞어 사용하여 차갑지만 세련된 느낌을 주고자 하였으며, 각 층별로 획일화 되어지지 않은 평면 계획으로 매스분절과 입체감의 극대화를 노렸습니다. 어느면을 보더라도 획일화 되어지지 않는 입면을 볼 수 있으며, 외장 마감재인 스타코플렉스도 투 톤으로 입면 계획하여 유니크함을 더욱 강조될 수 있게 하였습니다.


Q.면적은 얼마나 되는가요?

총 4층으로 구성하였으며, 1층은 96.62㎡(29평), 2층은 107.09㎡(32평), 3층은 88.25㎡(27평), 4층은 51.81㎡(16평)으로 총 면적 343.77㎡(104평)으로 구성하였습니다.


Q.비용은 얼마가 들었나요?

총 572,000,000원이 소요될 것으로 판단됩니다. 부가세가 포함 된 가격이며, 순수한 건축비 입니다. 설계비는 20,800,000원이 소요되어졌습니다. 이는 부가세 포함 가격이며, 인허가 및 사용승인 비용도 포함된 금액입니다.(감리비는 별도입니다.)


Q.상가부분의 경우 인테리어는 어떻게 하나요?

상가부분의 경우 입점하는 업체가 별도로 인테리어를 진행하므로 미리 해 둘 필요가 없습니다.^^ 해 놓는다고해도 다 뜯고 다시 하기 때문에 이 분에 대해서는 석보고드 기본 마감과 조명까지만 미리 진행해 놓고 나머지 부분에 대해서는 입점 업체가 직접 하게 놔 두는 것이 좋습니다.^^


Q.창호 랩핑의 색을 정할 수 있나요?

창호의 기본 프레임 색은 화이트 입니다. 여기에 외부쪽 랩핑을 진행하는 형식으로 색을 입히게 되어집니다. 색은 다양하게 구성되어져 있으며, 재질 및 무늬또한 결정할 수 있습니다.^^ 평균적으로 창호 랩핑 비용은 창호가격의 15%정도 업을 시키면 되십니다.


Q.외부 포인트로 사용한 징크의 경우에도 색이 다양한가요?

징크의 경우 많은 분들이 어두운 색만 생각하시는데 밝은색부터 찐한 검은색까지 다양하게 색이 구비되어져 있습니다. 또한 시공방에 따라 사선으로도 시공 할 수 있어 다양한 디자인적 효과를 연출할 수 있습니다. 징크오 오리지날 징크와, 리얼징크, 알류미늄 징크 등 다양하게 존재하며, 두께또한 여러가지가 있어 설계 디자인 시 담당 건축가와 잘 협의하셔서 결정하시기 바라겠습니다.^^


Q.시공기간은 얼마나 걸릴까요?

시공기간은 5개월이 소요될 것으로 생각합니다. 이는 사전에 인허가 및 착공신고까지 모두 이루어졌다는 것을 가정한 기간입니다. 설계기간은 최소 2~3개월이 소요되므로 최소 공사 들어가기 6개월 전에는 스타트를 하셔야 합니다.^^


Q.마지막 총평을 한다면?

상가주택의 경우 많은 분들이 쉽게 생각하시는데 설계를 막상 들어가면 어려운 부분이 많습니다. 신도시의 경우 상가주택에 대한 디자인 가이드라인을 만들어 그대로 설계 될 수 있게 만들어 놓았으며, 주변 상가주택들과 일체화 된 느낌을 가질 수 있도록 해 놓았습니다. 건축주님들 대부분이 원하는 느낌과 디자인이 있는데 그대로 설계 및 시공을 할 수 없는 경우가 많으니 설계 전 미리 검토하시는 것이 좋습니다.^^; 또한 상가주택 지구는 일부분 지역을 정해 놓기 때문에 그 많은 상가주택 중 내 건물이 더 튀고 유니크해 보이도록 설계하는 것은 저희 건축가들도 참 어려운 숙제 중의 하나인 것 같습니다.


*상가주택을 문의하시는 건축주님들 대부분이 부가세를 안 내고 싶어하십니다. 예전에는 부가세를 내지 않고 건축주 직영공사를 하는 것이 당연시 하게 되어졌었는데요. 부가세를 내지 않는다는 것은 추후 발생되는 하자(AS)에 대한 부분을 포기한다는 것과 같습니다. 저희들은 모든 공사건에 대해 국세청 신고를 진행하고 있어 부가세를 의무적으로 내고 있답니다.^^ 저희들은 부가세 빼고 건축주님 직영공사 처리하는 방식은 절대로 진행하지 않고 있으니 저희에게 상담의뢰 시 이 부분은 양해 부탁드립니다.

크기변환_정면도.jpg 정면도
크기변환_배면도.jpg 배면도
크기변환_우측면도.jpg 우측면도
크기변환_좌측면도.jpg 좌측면도

도착


104평 철근콘크리트 상가주택. 이번 설계기획안은 마음에 드셨나요?^^

이번 설계기획안은 전남 완도에 실재로 지어진 상가주택이랍니다. 추후 기회가 된다면 외관 사진도 올려드리도록 하겠습니다.

최근들어 상가주택 문의가 많이 들어오고 있습니다. 예전에는 수익성 사업이다 보니 무조건 싸게 지을 수 있는 방법들만 찾으셔서 디자인을 하는 상가주택 설계 문의가 거의 없었는데요. 최근에는 건축주님들의 인식도 많이 바뀌셔서 조금 비용이 들어가더라도 주변 상가주택들과 차별화 될 수 있는 디자인을 요구하신답니다. 실제로도 지 디자인 된 상가주택이 임대료가 주변보다 더 높고 공실률이 적다고 하니 상가주택 시장도 디자인 되는 쪽으로 점차 변화될 것으로 생각됩니다.^^

상가주택이라고 해서 비싼 외장재와 포인트를 많이 넣을 필요는 없답니다. 이번에 제안드린 설계기획안처럼 매스적인 부분으로 입체감을 살리고 창문과 외벽 색의 조정, 부분 포인트 적용으로도 멋진 효과와 디자인을 창출 할 수 있답니다.^^

상가주택을 어떻게 지을지 고민이시라구요? 걱정마시고 설계부터 차근차근 진행하시기 바랍니다.^^

감사합니다.

*읽고 난 다음에는 위의 하트모양 라이킷과 공유 꾹 눌러주세용~^^


3인방 프로필.jpg (좌측부터) 정다운 건축가, 임성재 건축가, 이동혁 건축가

총괄 건축가 : 이동혁, 임성재, 정다운

설계·시공 : 홈트리오(주) 1522-4279

Homepage : http://hometrio.kr

이동혁건축가TV : http://tv.naver.com/sunsutu1

[집이라는 본질적인 가치에 집중하다.]


글쓴이 : 이동혁 건축가

이메일 : sunsutu@hanmail.net


상담 및 자문

이동혁 건축가 : 010-4567-8413

정다운 건축가 : 010-8560-0477

임성재 건축가 : 010-9941-8899



keyword