'제주도의 따뜻한 감성'을 담아낸 30평 목조주택.

#12 목조 클래식 스타일 30평 전원주택 완공사례

by 이동혁 건축가

제목 : #12 '제주도의 따뜻한 감성'을 담아낸 30평 목조주택

소제목 : #12 목조 클래식 스타일 30평 전원주택 완공사례


출발


안녕하세요. 이동혁 건축가 입니다.^^

드디어 장마시즌의 시작이네요. 제주도 지역이 어제부터 본격적인 장마에 들어섰는데요. 다행히도 봄 공사를 진행하셨던 건축주님들께서 완공되는 시즌이라 비가와도 큰 걱정없이 새 집에서 새로운 시작을 할 수 있을 것 같습니다.^^

얼마전 통계청의 전국 인허가건을 살펴보니 제주도에만 올해 80건 가량의 신축 인허가가 접수 되었다고 하네요. 그만큼 제주도에 대한 집짓기 열풍이 얼마나 대단한지가 느껴집니다.

오늘은 제주도에 지어진 30평 주택을 이야기 드려보고자 하는데요. 클래식한 분위기의 안정된 느낌을 가진 이번 주택은 제주도에 새로운 터전을 마련하고자 준비하고 계신 분들께는 관심있게 지켜볼만한 사례인 것 같습니다.

자 같이 집이 어떻게 설계되었는지 같이 확인해 보러 출발하시죠!

*읽고 난 다음에는 위의 하트모양 라이킷과 공유 꾹 눌러주세용~^^



DSC_2171.JPG


HOUSE PLAN

연면적 : 98.73㎡

1층 : 66.87㎡

2층 : 31.86㎡

총괄 건축가 : 이동혁, 임성재, 정다운

총괄 건축가 : 이동혁, 임성재, 정다운

설계·시공 : 홈트리오(주) 1522-4279

Homepage : http://hometrio.kr

이동혁건축가TV : http://tv.naver.com/sunsutu1


예상 총 건축비 : 156,200,000원(부가세포함, 제주도 10% 할증 포함)

설계비 및 인허가비 : 8,250,000(부가세포함, 제주도 10% 할증 포함)

*건축비 외 부대비용 : 대지구입비, 가구(싱크대, 신발장, 붙박이장), 기반시설인입(수도,전기,가스 등), 토목공사, 조경비 등


SPEC

공법 : 기초-철근콘크리트 / 1층, 2층 구조-경량목구조

지붕마감재 : 아스팔트슁글

외벽마감재 : 테라코트, 파벽돌

외벽포인트자재 : 파벽돌

실내벽마감재 : 실크벽지

실내바닥마감재 : 강마루

창호재 : 융기 3중 시스템창호

단열재 : 외부벽체(Glasswool Insulation R21HD-15" 나등급)

▷크나우프社 ECOBATT (ECOSE® 특허)

▷HD:저에너지 하우스용 / 15인치(381mm) *동등 제품

: 내부벽체(Glasswool Insulation R19-15" 다등급)

: 천장(Glasswool Insulation R30-15" 다등급)

: 지붕(Glasswool Insulation R37-23" 가등급) ▷ISOVER社에너지세이버

*단열기준은 2016년 7월1일자로 변경되는 단열기준법을 적용하여 강화시켜 놓았습니다.



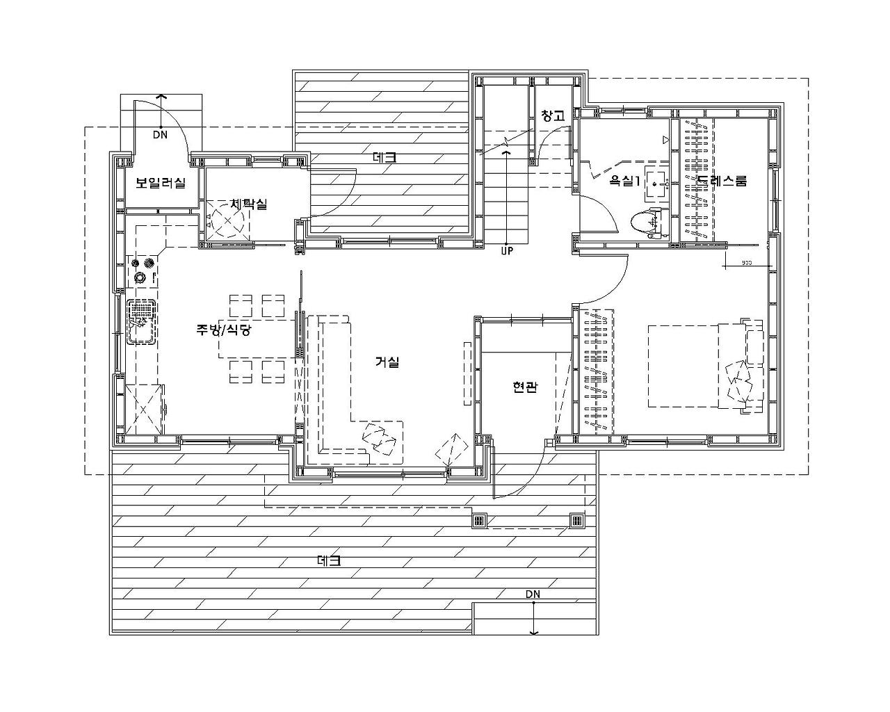
1수산리150706-Model.jpg 1층 평면도
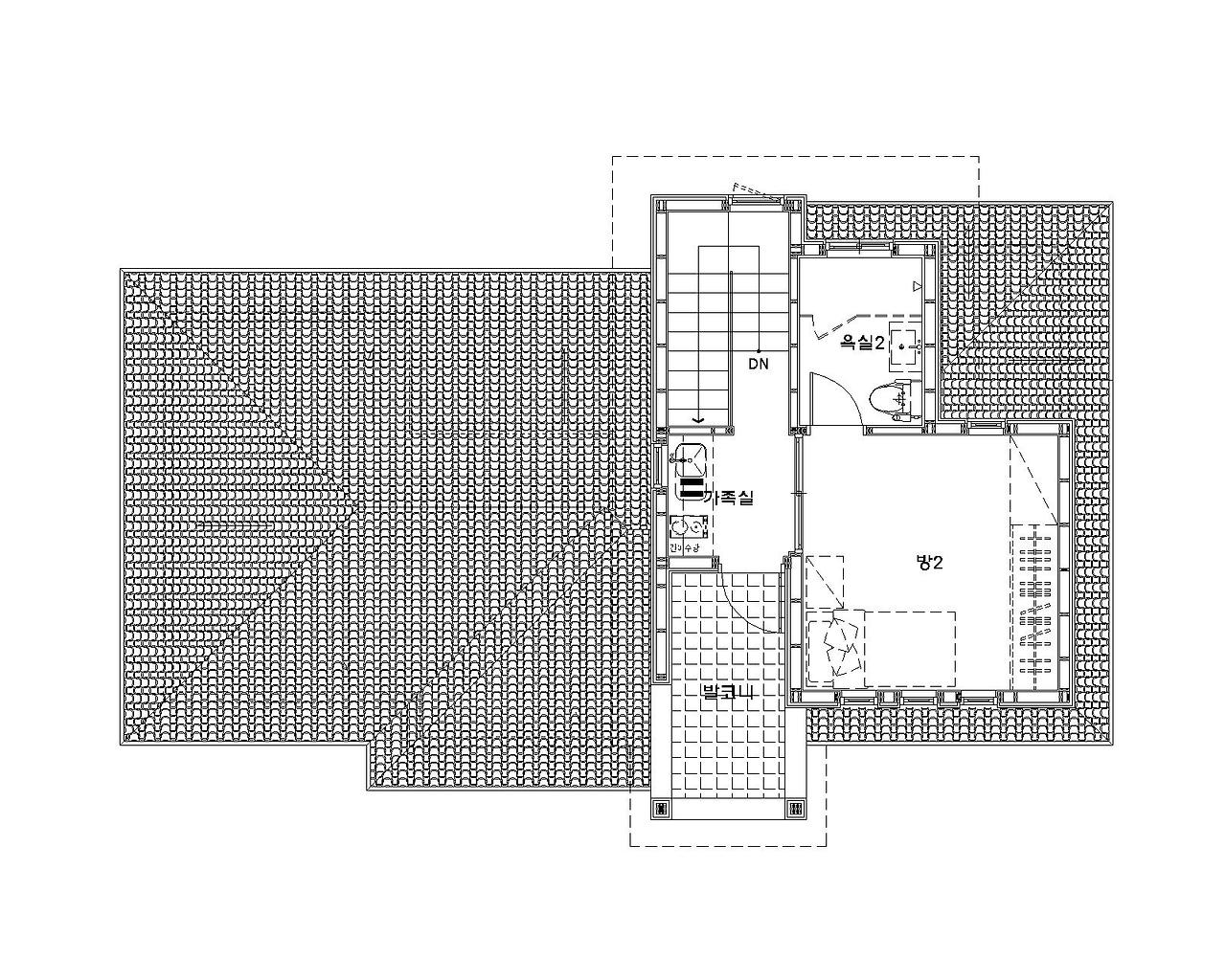
2수산리150706-Model.jpg 2층 평면도


Q.설계 방향에 대해 설명해주세요.

이번 설계방향은 '실용적인 공간감' 입니다. 30평대를 설계할 때 저는 항상 단층으로 추천을 드립니다. 그 이유는 2층으로 구성하면 계단실 및 복도공간으로 못해도 4~5평 정도는 소요되어지기 때문입니다. 그 평수만 1층으로 가지고 올 수 있다면 넓은 거실과 방 1개를 더 구성 할 수 있습니다. 하지만 이번 사례처럼 제주도라는 지역 특수성을 가기고 갈 때에는 어쩔 수 없이 2층으로 구성하되 각 공간에 대한 계획을 조금씩 면적을 줄여 가장 중요하게 생각하는 건축적 요소 1개를 집중하여 프로젝트를 진행합니다. 이번 주택의 설계 방향이 바로 여기에 있습니다.^^ 한정된 예산안에서 움직이되 원하는 공간을 모두 적용하는 것. 쉽지 않은 프로젝트였집만 건축주님의 많은 배려로 서로 만족할만한 주택이 완성된 것 같습니다.^^


Q.면적은 얼마나 되는가요?

2층으로 구성하였으며, 1층은 66.87㎡(20평), 2층은 31.86㎡(10평)으로 구성하였습니다. 30평대는 평균적으로 단층으로 구성하지 2층으로는 잘 구성하지 않습니다. 하지만 제주도의 지역 특성상 조망권이라는 특수성이 있어 거실과 주방 등의 면적을 줄이고 2층 공간을 마련하여 건축주님이 원하셨던 2층 주택을 설계할 수 있었습니다.^^


Q.비용은 얼마가 들었나요?

총 156,200,000원이 소요될 것으로 판단됩니다. 부가세가 포함 된 가격이며, 순수한 건축비 입니다. 설계비는 8,250,000원이 소요되어졌습니다. 이는 부가세 포함 가격이며, 인허가 및 사용승인 비용도 포함된 금액입니다. 2016년도 9월부터는 별도의 감리가 의무화 되므로 9월 이후 진행되는 건에 대해서는 감리비가 별도로 발생되어지는 점 유의하시기 바랍니다.^^


Q.제주도에 지을 때 공사비가 내륙지방과 같나요?

제주도의 경우 모든 자재가 배를타고 이동하므로 10%로의 할증이 붙습니다.ㅠㅠ 설계비 및 공사비 모두 10% 할증이 붙기 때문에 기존 공사비에서 10% 할증된 금액으로 예산을 잡으셔야 합니다.


Q.외관 디자인의 컨셉이 무엇인가요?

미국의 클래식한 느낌을 가지고가되 산뜻한 이미지의 느낌을 주고자 하였습니다. 일반적으로 사용되는 그레이톤이나 어두운톤의 지붕재가 아닌 과감하게 주황빛의 지붕톤을 선택하여 집의 분위기를 한층 더 밝게 꾸밀 수 있었습니다. 30평이라는 한정된 매스공간이기 때문에 입체적인 느낌을 주기 위하여 포치와 발코니를 계획하여 주었으며, 비대칭적인 1층과 2층 공간구성으로 작지만 커 보이는 입면 디자인을 만들어 낼 수 있었습니다.


Q.이번 주택에서의 포인트는 무엇인가요?

이번 주택의 포인트는 바로 실용적인 공간배치 일 것입니다. 이 말은 아래의 사진들을 보면 생각보다 넓지 않은 거실, 필요한 공간만 구성한 침실 등 과도하게 넓은 공간으로 각 구획을 계획한 것이 아닌 정말로 정해진 평수내에서 필요한 공간들만 구성하여 건축주님의 요구사항을 모두 적용시켰다는 것이 이 집의 포인트가 있습니다. 또한 정해져 있는 예산안에서 집을 만들어 내었으며, 단열적인 부분은 가지고 가되 외장재 부분에서 조금의 양보를 하여 디자인과 단열성 모두를 가지고 갈 수 있는 집이 탄생되었습니다.


Q.시공기간은 얼마나 걸릴까요?

시공기간은 3.5개월이 소요될 것으로 생각합니다. 이는 사전에 인허가 및 착공신고까지 모두 이루어졌다는 것을 가정한 기간입니다. 설계기간은 최소 2~3개월이 소요되므로 최소 공사 들어가기 6개월 전에는 스타트를 하셔야 합니다.^^


Q.마지막 총평을 한다면?

요즘 제주도의 문의가 하루에 10통이 넘게 오는 것 같습니다. 무조건 땅을 찾아가서 상담을 드리면 좋으련만 현실적으로 불가능 하네요. ㅠㅠ 하지만 이렇게 말해도 올해만 진행한 제주도 프로젝트 건이 20채를 넘어가고 있답니다. 그만큼 저희를 믿고 맡겨주시는 분들이 많았던 것 같습니다. 저희를 찾아주시는 이유는 딱 하나인 것 같습니다. 젊은 패기와 열정!! ^^ 항상 초심 잃지 않고 집을 지을려고 노력합니다. 집이라는 본질적인 가치에 집중하고자 하며, 겉치레만 화려한 집이 아닌 정말 실속 있는 집. 항상 집 다운 집을 짓기위해 계속해서 노력하도록 하겠습니다.

감사합니다.^^



외관
DSC_2171.JPG
DSC_2191.JPG
DSC_2218.JPG
DSC_2239.JPG
DSC_2255.JPG


현관
DSC_2292.JPG
DSC_2303.JPG
DSC_2334.JPG


거실
DSC_2339.JPG
DSC_2351.JPG
DSC_2361.JPG
DSC_2393.JPG


주방
DSC_2537.JPG
DSC_2543.JPG
DSC_2573.JPG
DSC_2703.JPG


계단
DSC_2511.JPG
DSC_2516.JPG
DSC_2728.JPG


방 & 드레스룸
DSC_2461.JPG
DSC_2495.JPG
DSC_2735.JPG
DSC_2764.JPG


화장실1
DSC_2625.JPG
DSC_2654.JPG


화장실2
DSC_2855.JPG


테라스
DSC_2892.JPG
DSC_2926.JPG
DSC_2942.JPG


도착


제주도에 지어진 30평 전원주택 어떠셨나요?^^

아마 마음에 드신 분들도 계실 것이며, 생각보다 좁은 공간감에 놀라신 분들도 계실거라 생각합니다.

상담을 진행하다보면 많은분들이 공통적으로 하는 말이 있습니다. 그 말은 "크게 지을 필요 없고 30평 미만으로 작게 짓겠다." 입니다. 아파트는 60평대에 사는데 전원주택은 전부 실 평수이니 30평만 지어도 충분할 것 같다는 것입니다. 하지만 여기서 문제가 발생됩니다. ㅠㅠ

그것은 바로 '공간감' 입니다. 30평이라는 공간은 어찌보면 매우 한정된 공간입니다. 저희가 설계를 아무리 잘해도 30평이라는 공간을 넘어설 수 없다라는 뜻입니다. 30평 안에서 결국에는 원하는 요소를 모두 넣어야 하는데 그러다보면 어느 한 공간은 면적이 줄어들 수 밖에 없습니다.^^;

집은 최소한의 면적으로 짓는 것이 맞습니다.^^ 하지만 그렇다고 하여 나의 라이프스타일을 무시하면서 공간을 배정할 수 없답니다.

평형대가 고민이시하구요? 그렇다면 줄자로 내가 살고 있는 집을 재는 것이 순서입니다.^^ 면적을 재다보면 아! 내가 원하는 공간감이 어느정도이니 이 정도의 공간은 필요하겠구나 라고 아실 수 있습니다.

너무 주변의 이야기에 귀 기울이시지 않으셔도 된답니다. 집이란 일생에 1번 짓는 것입니다. 너무 주변 이야기에 의존하기보다는 처음에 내가 꿈 꾸었던 집을 흔들리지 않고 짓는 것이 더 중요하다고 하겠습니다.^^

오늘의 이야기는 여기까지 입니다. 다음에 더 좋은 이야기로 찾아뵙겠습니다.

감사합니다.

*읽고 난 다음에는 위의 하트모양 라이킷과 공유 꾹 눌러주세용~^^


3인방 프로필.jpg (좌측부터) 정다운 건축가, 임성재 건축가, 이동혁 건축가


총괄 건축가 : 이동혁, 임성재, 정다운

설계·시공 : 홈트리오(주) 1522-4279

Homepage : http://hometrio.kr

이동혁건축가TV : http://tv.naver.com/sunsutu1

[집이라는 본질적인 가치에 집중하다.]


글쓴이 : 이동혁 건축가

이메일 : sunsutu@hanmail.net

이동혁건축가TV : http://tv.naver.com/sunsutu1


상담 및 자문(홈트리오(주) 대표)

이동혁 건축가 : 010-4567-8413

정다운 건축가 : 010-8560-0477

임성재 건축가 : 010-9941-8899



keyword