'가족이 함께 그리는 따듯한 집.' 52평 목조주택.

#13 경기 가평 북유럽식 스타일 52평 전원주택 완공사례

by 이동혁 건축가

제목 : #13 '가족이 함께 그리는 따뜻한 집.' 52평 목조주택

소제목 : #13 경기 가평 북유럽식 스타일 52평 전원주택 완공사례


출발


안녕하세요. 이동혁 건축가 입니다.^^

장마가 와서 그런지 불쾌지수도 높아지고 공기도 무거워져서 끕끕한 느낌이 계속되는 하루네요. ㅠㅠ

그래도 오늘도 열심히 제 이야기를 들려드리기 위해 브런치의 글을 작성하고 있답니다.

오늘 소개시켜드릴 주택은 경기 가평에 지어진 주택입니다. 북유럽식 스타일을 현대식으로 재해석한 주택이며, 정갈하면서 깔끔한 느낌으로 완공된 주택이랍니다.

50평대의 주택을 생각하고 계신 예비 건축주님들께서는 공간구성과 외관의 매스감을 중심으로 살펴보시면 많은 도움이 되실 것 같습니다.^^

자 같이 집이 어떻게 완공되었는지 같이 확인해 보러 출발하시죠!

*읽고 난 다음에는 위의 하트모양 라이킷과 공유 꾹 눌러주세용~^^


DSC_7201.JPG


HOUSE PLAN

연면적 : 171.55㎡

1층 : 117.55㎡

2층 : 54.00㎡

총괄 건축가 : 이동혁, 임성재, 정다운

설계·시공 : 홈트리오(주) 1522-4279

Homepage : http://hometrio.kr

이동혁건축가TV : http://tv.naver.com/sunsutu1


예상 총 건축비 : 260,000,000원(부가세포함)

설계비 및 인허가비 : 13,000,000(부가세포함)

*건축비 외 부대비용 : 대지구입비, 가구(싱크대, 신발장, 붙박이장), 기반시설인입(수도,전기,가스 등), 토목공사, 조경비 등


SPEC

공법 : 기초-철근콘크리트 / 1층, 2층 구조-경량목구조

지붕마감재 : 테릴기와

외벽마감재 : 테라코트, 파벽돌

외벽포인트자재 : 파벽돌, EPS몰딩

실내벽마감재 : 실크벽지

실내바닥마감재 : 강마루

창호재 : 융기 3중 시스템창호

단열재 : 외부벽체(Glasswool Insulation R21HD-15" 나등급)

▷크나우프社 ECOBATT (ECOSE® 특허)

▷HD:저에너지 하우스용 / 15인치(381mm) *동등 제품

: 내부벽체(Glasswool Insulation R19-15" 다등급)

: 천장(Glasswool Insulation R30-15" 다등급)

: 지붕(Glasswool Insulation R37-23" 가등급) ▷ISOVER社에너지세이버

*단열기준은 2016년 7월1일자로 변경되는 단열기준법을 적용하여 강화시켜 놓았습니다.



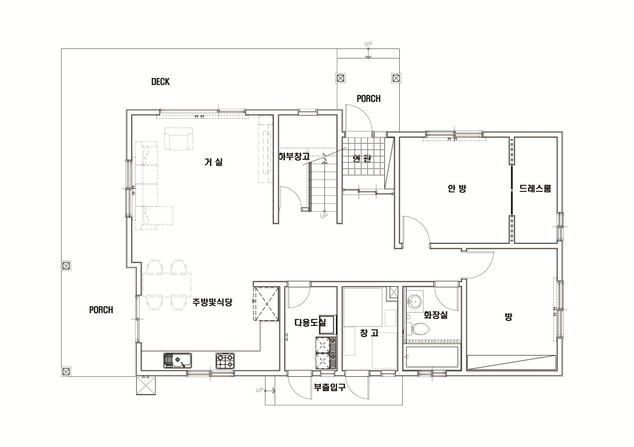
다운로드.jpg 1층 평면도
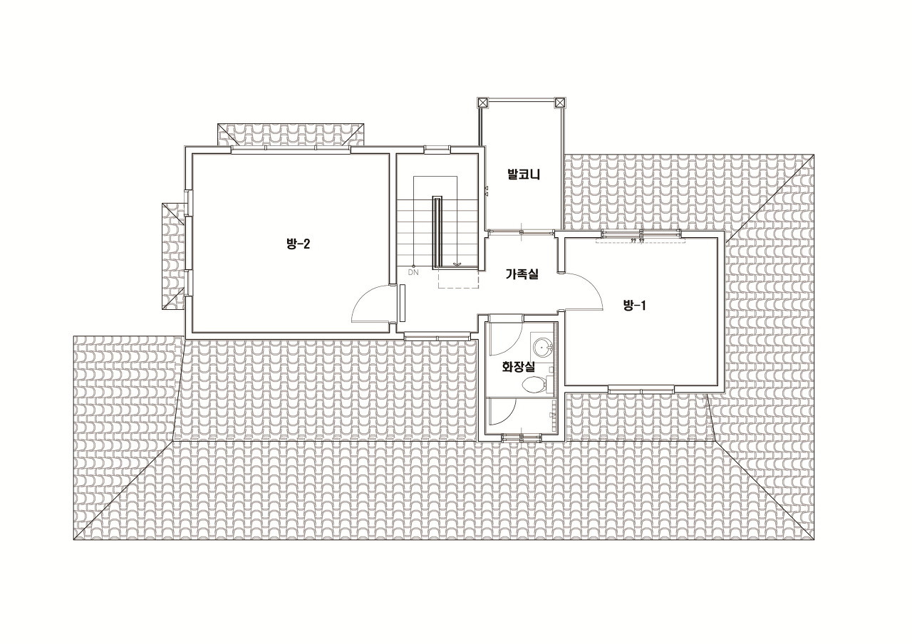
다운로드 (1).jpg 2층 평면도


Q.설계 방향에 대해 설명해주세요.

이번 설계방향은 '북유럽식 스타일의 현대적 해석' 입니다. 너무 거창한가요? ^^; 초창기 북유럽식 스타일을 지을 때는 내부와 창문도 전부 한가지 스타일로 통일하였던 것이 일반적이었습니다. 하지만 엔틱한 느낌보다는 현대적인 인테리어를 선호하시는 분들이 많다보니 최근들어서는 외관은 북유럽식 스타일로 디자인해도 내부는 현대적으로 꾸미는 분들이 많아지셨습니다.

이번 사례가 바로 그런 대표적인 사례라고 말할 수 있을 것 같습니다.^^ 우리나라의 경우 이미 현대식 아파트에 익숙해져 있다보니 공간구성이나 동선을 짤때 해외의 평면구성과 다른 구성을 하고 있는 편입니다. 이번주택의 테마처럼 외관은 북유럽식으로 가되 아파트의 현대적인 느낌을 가지고 가고 싶은 예비건축주님들께서는 많은 관심을 가지면 좋을 주택사례인 것 같습니다.^^


Q.면적은 얼마나 되는가요?

2층으로 구성하였으며, 1층은 117.55㎡(36평), 2층은 54.00㎡(16평)으로 구성하였습니다. 요즘 전원주택 트렌드는 작게 짓는 것이 유행입니다. 그동안 너무 크게 지었다고 생각하시는 분들이 이제 집을 짓는 분들께는 작게 지으라고 조언하기 때문입니다.^^ 하지만 내가 원하는 공간이 있는데 너무 작게들만 짓게되면 자칫 엉성하게 구성된 공간이 탄생할 수도 있답니다. 사람마다 원하는 '공간감'이나 '실'들이 다르므로 꼭 주변의 이야기에 연연하기 보다는 처음 내가 집을 지을려고 했을때 생각했던 공간구성을 끝까지 놓치지 않고 가시는 것이 중요하다 하겠습니다.^^



Q.비용은 얼마가 들었나요?

총 260,200,000원이 소요될 것으로 판단됩니다. 부가세가 포함 된 가격이며, 순수한 건축비 입니다. 설계비는 13,000,000원이 소요되어졌습니다. 이는 부가세 포함 가격이며, 인허가 및 사용승인 비용도 포함된 금액입니다. 2016년도 9월부터는 별도의 감리가 의무화 되므로 9월 이후 진행되는 건에 대해서는 감리비가 별도로 발생되어지는 점 유의하시기 바랍니다.^^


Q.석재테크의 경우 공사비가 어떻게 되나요?

요즘 목재데크의 경우 유지관리가 힘들다는 이유로 석재데크가 유행을 타고 있습니다. 저도 개인적인 생각으로는 예산이 충분하다면 목재데크보다는 유지관리가 편한 석재데크를 추천하고 있답니다.^^;

석재데크의 경우 저희는 기초공사비를 포함하여 평당 110만원에 시공하고 있습니다. 목조데크보다 평당 30만원 정도가 비싸기는 하지만 유지관리적인 측면을 따져본다면 석재데크로 하는 것이 조금은 이득일 수 있다고 말씀드리고 싶습니다.^^


Q.외관 디자인의 컨셉이 무엇인가요?

테릴기와와 스타코플렉스, 그리고 주황빛 파벽돌의 조화는 정통적인 북유럽식 스타일 주택입니다. 이번 주택은 안정감이 드는 스타일의 대명사인 북유럽식 스타일로 외관을 디자인하였으며, 포치와 베란다 등을 추가로 디자인하여 정통 스타일에 가까운 북유럽 스타일 전원주택을 디자인하고자 하였습니다.

많은 분들이 북유럽식하면 라운드 곡선과 아기자기한 모양들을 생각하시는데요. 실상 제가 여러채를 설계하고 디자인해 보았을 때는 어설픈 라운드보다는 직선과 군더더기 없는 디자인으로 방향을 잡는 것이 더 깨끗하고 입체적인 느낌이 드는 것 같습니다.^^


Q.파벽돌의 색상은 고를 수 있나요?

파벽돌의 경우 수백가지의 샘플들이 있답니다. 아마 원하는 색상과 두께, 그리고 디자인까지 다양하게 선택하실 수 있답니다. 똑같은 색상이어도 두께와 폭 등이 모두 다르므로 꼭 설계를 진행할 시 실물을 보신 후 디자인을 결정하시는 것이 좋습니다. 재질감도 모두 다르기 때문에 사진만 보고 결정하시게 되면 추후 내가 원하는 재질감과 색상감이 안 나올 수도 있답니다.^^;


Q.시공기간은 얼마나 걸릴까요?

시공기간은 3.5개월이 소요될 것으로 생각합니다. 이는 사전에 인허가 및 착공신고까지 모두 이루어졌다는 것을 가정한 기간입니다. 설계기간은 최소 2~3개월이 소요되므로 최소 공사 들어가기 6개월 전에는 스타트를 하셔야 합니다.^^


Q.마지막 총평을 한다면?

집을 지을 때는 최대한 깔끔하고 심플하게 짓는 것이 좋다고 생각합니다.^^

예전에는 벽 전체에 무언가를 붙이고자 하는 분들이 많았는데 젊은 건축주님들이 많아지면서 과도하게 무언가를 집에 입히기보다는 덜어내면서 간결하게 이미지를 계획하는 분들이 많아지셨습니다.

이 흐름에는 저도 동의하는 바입니다. 무언가 정갈하고 깔끔해 보이기 위해서는 조금은 포인트를 덜어내는 것이 좋습니다. 이로서 비용도 줄어들며, 디자인도 원하는 방향대로 흘러갈 수 있기 때문에 외관 디자인을 할때 너무 많은 욕심을 내시지 않으셔도 된답니다.^^


외관
DSC_7201.JPG
DSC_7204.JPG
DSC_7207.JPG
DSC_7209.JPG
DSC_7106.JPG
DSC_7108.JPG
DSC_7119.JPG
DSC_7197.JPG


현관
DSC_6939.JPG
크기변환_DSC_7190.JPG


거실
DSC_6749.JPG
DSC_6773.JPG
DSC_6779.JPG
DSC_6783.JPG
DSC_7155.JPG



주방
DSC_6769.JPG
DSC_7139.JPG
DSC_7143.JPG



다용도실
크기변환_DSC_7079.JPG
크기변환_DSC_7081.JPG
크기변환_DSC_7084.JPG
크기변환_DSC_7092.JPG


방1
DSC_6851.JPG


방2
DSC_6955.JPG


1층 화장실
DSC_6827.JPG
DSC_6834.JPG


계단
DSC_6789.JPG
DSC_6814.JPG
DSC_6818.JPG
DSC_6924.JPG


2층 화장실
DSC_7025.JPG
DSC_7031.JPG


다락방
크기변환_DSC_6891.JPG
크기변환_DSC_6898.JPG


2층 방
DSC_6974.JPG
DSC_6984.JPG


테라스
DSC_6861.JPG
DSC_6882.JPG


도착


오랜만에 50평이 넘는 평수의 전원주택을 소개시켜드렸네요.^^

한동안 25~30평 주택들이 주를 이루었는데 중대형 평수를 기다리고 계셨던 분들께는 좋은 사례가 되었을거라 생각합니다.

집을 지을때 많은 분들이 처음에 가졌던 목표성을 집을 짓기 시작했을 때 모두 잊어버리시고 맙니다.

집을 왜 지을려고 했는지? 그리고 어떠한 목적지를 가지고 갔었는지? 등이 중요합니다.

집은 힐링을 위해서 짓는 것이라 생각합니다.^^ 어느순간 무조건 저렴하게만 짓겠다라는 방향으로 많은 분들이 방향성을 잊어버리시고 혼란스러워 하시는데 여러분들이 처음에 가졌던 방향성과 마음이 맞는 경우가 대부분입니다. 집을 짓겠다고 생각한 첫 마음가짐 잊지 마시고 꿈을 짓는 과정인 내 집짓기. 모두들 행복한 드림하우스를 완공하시길 바라겠습니다.^^

감사합니다.

*읽고 난 다음에는 위의 하트모양 라이킷과 공유 꾹 눌러주세용~^^


3인방 프로필.jpg (좌측부터) 정다운 건축가, 임성재 건축가, 이동혁 건축가


총괄 건축가 : 이동혁, 임성재, 정다운

설계·시공 : 홈트리오(주) 1522-4279

Homepage : http://hometrio.kr

이동혁건축가TV : http://tv.naver.com/sunsutu1

[집이라는 본질적인 가치에 집중하다.]


글쓴이 : 이동혁 건축가

이메일 : sunsutu@hanmail.net

상담 및 자문 : 010-4567-8413



keyword