#25 '2억 전원주택 짓기' 여주 광대리에 앉혀지다.

#25 목조 모던 스타일 39평 전원주택 설계제안

by 이동혁 건축가

제목 : #25 '2억 전원주택의 짓기' 여주 광대리에 앉혀지다.

소제목 : #25 목조 모던 스타일 39평 전원주택 설계제안


출발


안녕하세요. 이동혁 건축가 입니다.^^

본격적인 휴가철... 극성수기의 시작인가 봅니다. 서울 시내에는 차가 한가하지만 외곽 도로들은 막히기 시작했네요. 지방으로 출장을 많이 다니는 저로서는 ㅠㅠ 흑...

하지만 여러분들이 일년 중 가장 기다린 휴가기간이니 저도 즐거운 마음으로 출장을 다닐려고 합니다.^^

오늘 이야기 드릴 설계사례는 여주 광대리에 기획되었던 설계모델입니다.

박스형의 모던형 외관에 징크로 포인트를 주어 세련됨과 유니크함을 더욱 부각시킨 전원주택 입니다. 타 설계안과 달리 1층에 공용공간을 주로 배치하고 모든 침실을 2층으로 계획한 부분이 이번 주택의 매력 포인트 일 것 같으며, 데드스페이스를 최소화 한 것 또한 특징 중의 하나라고 설명하고 싶습니다.^^

자 같이 집이 어떻게 설계되었는지 같이 확인해 보러 출발하시죠!

*읽고 난 다음에는 위의 하트모양 라이킷과 공유 꾹 눌러주세용~^^



여주-광대리-화이트.jpg

HOUSE PLAN

연면적 : 130.10㎡

1층 : 64.87㎡

2층 : 65.23㎡

총괄 건축가 : 이동혁, 임성재, 정다운

설계·시공 : 홈트리오(주) 1522-4279

Homepage : http://hometrio.kr

이동혁건축가TV : http://tv.naver.com/sunsutu1

예상 총 건축비 : 205,000,000원(부가세포함)

설계비 및 인허가비 : 10,000,000(부가세포함)

*건축비 외 부대비용 : 대지구입비, 가구(싱크대, 신발장, 붙박이장), 기반시설인입(수도,전기,가스 등), 토목공사, 조경비 등


SPEC

공법 : 기초-철근콘크리트 / 1층, 2층 구조-경량목구조

지붕마감재 : 아스팔트슁글

외벽마감재 : 테라코트

외벽포인트자재 : 적삼목사이딩, 파벽돌, 리얼징크

실내벽마감재 : 실크벽지

실내바닥마감재 : 강마루

창호재 : 융기 3중 시스템창호

단열재 : 외부벽체(Glasswool Insulation R21HD-15" 나등급)

▷크나우프社 ECOBATT (ECOSE® 특허)

▷HD:저에너지 하우스용 / 15인치(381mm) *동등 제품

: 내부벽체(Glasswool Insulation R19-15" 다등급)

: 천장(Glasswool Insulation R30-15" 다등급)

: 지붕(Glasswool Insulation R37-23" 가등급) ▷ISOVER社에너지세이버

*단열기준은 2016년 7월1일자로 변경되는 단열기준법을 적용하여 강화시켜 놓았습니다.


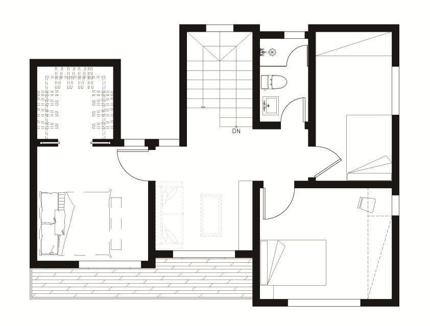
사본 -1층평면도.jpg 1층 평면도
사본 -2층평면도.jpg 2층 평면도

Q.설계 방향에 대해 설명해주세요.

이번 설계는 '공용공간과 개인공간의 분리' 입니다. 보통 제가 제안드리는 설계안을 보시면 1층에 침실이 주로 배치되어져 있는 것을 보실 수 있습니다. 그 이유는 1층 생활이 기본적인 생활패턴에 맞추어져 있기 때문입니다. 하지만 이번 설계에서는 공용공간과 개인공간을 철저히 분리시키는 과정을 거쳤습니다. 1층은 거실, 주방, 서재와 같이 공용공간으로서의 모습을 갖추고자 하였으며, 2층은 1층과 독립적으로 프라이버시를 유지할 수 있는 개인적인 공간으로 구성하였습니다. 두 분이서 거주하실 공간이기 때문에 게스트 공간을 작게 만들어 불피요한 면적을 줄였으며, 2층에 별도로 가족실을 구성하여 1층과 별개의 취미생활을 영위할 수 있게 하였습니다.


Q.면적은 얼마나 되는가요?

2층으로 구성하였으며 1층은 64.87㎡(19.6평), 2층은 65.23㎡(19.8평)으로 구성하였습니다. 총 39평의 공간으로 집을 계획하였으며, 전원주택 단지에 지어질 주택이니 만큼 주변의 주택들 보다 유니크한 디자인으로 설계하고자 하였습니다.


Q.비용은 얼마가 들었나요?

총 205,000,000원이 소요될 것으로 판단됩니다. 부가세가 포함 된 가격이며, 순수한 건축비 입니다. 설계비는 10,000,000원이 소요되어졌습니다. 이는 부가세 포함 가격이며, 인허가 및 사용승인 비용도 포함된 금액입니다.


Q.1층 평면이 독특한 것 같아요.

일반적으로 계획되는 평면구성은 아니라고 생각합니다. 공용공간과 개인공간을 층으로 분리하는 것이 가장 확실한 방법이기에 건축주님께 설계당시에 위와 같은 방법을 제안드렸으며, 건축주님께서도 원하시는 방향이라 흔쾌히 승낙해 주셨습니다.

최근들어 1층을 다목적 공간으로 사용하길 원하시는 분들이 많아지셨습니다. 그 이유는 주 생활공간으로 사용하시는 분들도 계시지만 세컨하우스로 다같이 휴식하러 오는 장소로도 많이 이용되기 때문입니다.

특히 세컨하우스의 경우 이번 모델처럼 1층을 공용공간 위주로 계획한다면 공간 활용면에서는 더 효과적이지 않을까 생각됩니다.^^


Q.화장실은 몇개까지 만들 수 있나요?

45평 미만의 주택의 경우 기본 2개가 시공되어집니다. 간혹 3개까지 필요하다고 하시는 분들이 계신데 화장실의 경우 1개실당 250만원 정도를 받고 시공해 드리고 있으니 원하시는 만큼 화장실을 추가하시면 되십니다. 다만 화장실이 많아질 수록 내부 타 공간들이 줄어들게 되므로 적절한 배치계획이 필요할 것으로 생각됩니다.^^


Q.외장 테라코트 마감색은 다양하게 선택할 수 있나요?

테라코트 외장마감의 색은 다양하게 구현이 가능합니다. 외장재를 별도로 붙여서 포인트를 주는 방식도 있지만 테라코트 자체가 외장 마감재이기 때문에 추가 외장재에 대한 비용을 늘리지 않으면서 입면적인 효과를 극대화 시킬 수 있도록 하였습니다.


Q.시공기간은 얼마나 걸릴까요?

시공기간은 5개월이 소요될 것으로 생각합니다. 이는 사전에 인허가 및 착공신고까지 모두 이루어졌다는 것을 가정한 기간입니다. 설계기간은 최소 2~3개월 정도 소요됩니다. 많은 분들이 시공계약하면 바로 공사가 이루어진다고 생각하시는데 절대로 그렇지 않습니다.^^; 설계 및 착공계를 내는 기간이 3달 정도 소요되니 꼭 집을 짓는다고 결정하셨으면, 3~6개월 전에는 설계 스타트를 하셔야 합니다.


Q.마지막 총평을 한다면?

저도 젊은 나이다보니 개인적으로 클래식한 느낌보다는 모던하면서 실용적인 디자인을 더 좋아하는 것 같습니다. 외부 디자인의 경우 개인적 취향이 많이 반영되다보니 무엇이 맞다 틀리다는 할 수 없을 것 같습니다.^^;

이번 주택은 여주 광대리에 지어질 예정이었습니다. 시공 시기가 조금 뒤로 미루어지게 되었는데요. 완공이 되면 꼭 실물사진으로도 여러분들께 소개시켜드리도록 하겠습니다.

공용공간과 개인공간을 분리하는 가장 좋은 방법은 무엇일까요?

아마 이번에 제안드린 설계안처럼 층을 분리하여 각 공간의 영역성을 확보해 주는 것이 좋은 방법 중 하나이지 않을까 생각합니다.

오늘의 이야기는 여기까지입니다. 다음 이야기에서 더 좋은 기획안으로 찾아뵙겠습니다.^^

사본 -정면도.jpg 정면도
사본 -우측면도.jpg 우측면도
사본 -좌측면도.jpg 좌측면도
사본 -배면도.jpg 배면도
여주-광대리-art1.jpg
여주-광대리-art2.jpg
여주-광대리-art3.jpg
여주-광대리-art4.jpg


도착


39평 목조 전원주택. 이번 설계기획안은 마음에 드셨나요?^^

위에 다양한 외장색상의 투시도를 올려드렸는데요. 테라코트 외장재의 경우 외장재의 색을 변형하여 다양한 분위기를 연출할 수 있으니 나에게 맞는 색이 어떤 것인지 한번 골라보면 좋을 것 같습니다.

모던형의 기본은 무엇일까요? 바로 박스형의 외관일 것입니다. 그럼 박스형의 외관의 단점을 무엇일까요? 그것은 바로 심심함일 것입니다. 일본주택들의 경우 화이트 톤의 외장재에 지붕. 포인트는 없는 깔끔한 스타일. 이러한 주택들이 빛날려면 주변환경이 이와 동일하게 유지되던지 아니면 자연환경이 빼어나야 할 것입니다.^^;

우리나라 전원주택 단지를 보면 통일성 있게 디자인 되는 곳도 있지만 현재까지는 디자인의 제약 없이 중구난방인 곳이 대부분입니다. 그래서 설계를 할 때에도 정면부분 한 곳 정도는 포인트를 넣어 입체감 및 건물의 아이덴티티 적인 부분을 입혀줄려고 한답니다.

이번 주택을 설계함에 있어 건축주님과의 많은 협의와 대지가 가지고 있는 한계점을 설계적으로 풀고자 많이 노력하였습니다.

최종 결과물이 서로 만족할만한 결과물이 나와 건축가로서 매우 뿌듯하며, 보람된 프로젝트였던 것 같습니다.

오늘의 이야기는 여기까지랍니다. 다음에 더 좋은 기획안으로 찾아뵙겠습니다.감사합니다.^^

*읽고 난 다음에는 위의 하트모양 라이킷과 공유 꾹 눌러주세용~^^


(좌측부터) 정다운 건축가, 임성재 건축가, 이동혁 건축가

총괄 건축가 : 이동혁, 임성재, 정다운

설계·시공 : 홈트리오(주) 1522-4279

Homepage : http://hometrio.kr

이동혁건축가TV : http://tv.naver.com/sunsutu1

[집이라는 본질적인 가치에 집중하다.]


글쓴이 : 이동혁 건축가

이메일 : sunsutu@hanmail.net


상담 및 자문

이동혁 건축가 : 010-4567-8413

정다운 건축가 : 010-8560-0477

임성재 건축가 : 010-9941-8899



keyword