#26 '넓은 마당의 매력' 강아지를 키우고픈 주택

#26 목조 모던 스타일 39평 전원주택 설계제안

by 이동혁 건축가

제목 : #26 '넓은 마당의 매력' 강아지를 키우고픈 전원주택

소제목 : #26 목조 모던 스타일 39평 전원주택 설계제안


출발


안녕하세요. 이동혁 건축가 입니다.^^

본격적인 휴가철이어서 그런지 시내가 한가하네요. 보통 출근시간이 1시간 정도 걸리는데 도로가 한산하다보니 30분만에 회사에 도착을 하였습니다.

요즘에는 박람회 준비때문에 정신이 없네요. 8월 25일부터 4일간 진행되는 일산 MBC건축 박람회 일정이 코앞으로 다가오다보니 이것저것 서둘러서 정리하고 있답니다.^^

그래도 8월 25일 건축주님들을 만날 생각을 하니 벌써부터 설레기 시작하네요.

오늘 소개 시켜드릴 주택은 넓은 마당을 확보하기 위해 일자형으로 길게 평면을 구상한 주택입니다. 모던적인 입면에 실용적인 공간구성, 그리고 합리적인 건축비까지!! ^^

정갈하면서 깔끔한 느낌의 주택을 찾고 계신 분들이라면 이번 주택사례가 많은 도움이 되실거라 생각됩니다.

자 같이 집이 어떻게 설계되었는지 같이 확인해 보러 출발하시죠!

*읽고 난 다음에는 위의 하트모양 라이킷과 공유 꾹 눌러주세용~^^


능포리주택 FIN-1 thumbnail.JPG

HOUSE PLAN

연면적 : 130.14㎡

1층 : 83.16㎡

2층 : 46.98㎡

총괄 건축가 : 이동혁, 임성재, 정다운

설계·시공 : 홈트리오(주) 1522-4279

Homepage : http://hometrio.kr

이동혁건축가TV : http://tv.naver.com/sunsutu1

예상 총 건축비 : 183,000,000원(부가세포함)

설계비 및 인허가비 : 9,750,000(부가세포함)

*건축비 외 부대비용 : 대지구입비, 가구(싱크대, 신발장, 붙박이장), 기반시설인입(수도,전기,가스 등), 토목공사, 조경비 등


SPEC

공법 : 기초-철근콘크리트 / 1층, 2층 구조-경량목구조

지붕마감재 : 아스팔트슁글

외벽마감재 : 스타코플렉스

외벽포인트자재 : 적삼목사이딩, 파벽돌, EPS몰딩

실내벽마감재 : 실크벽지

실내바닥마감재 : 강마루

창호재 : 융기 3중 시스템창호

단열재 : 외부벽체(Glasswool Insulation R21HD-15" 나등급)

▷크나우프社 ECOBATT (ECOSE® 특허)

▷HD:저에너지 하우스용 / 15인치(381mm) *동등 제품

: 내부벽체(Glasswool Insulation R19-15" 다등급)

: 천장(Glasswool Insulation R30-15" 다등급)

: 지붕(Glasswool Insulation R37-23" 가등급) ▷ISOVER社에너지세이버

*단열기준은 2016년 7월1일자로 변경되는 단열기준법을 적용하여 강화시켜 놓았습니다.


1층평면도.jpg 1층 평면도
2층평면도.jpg 2층 평면도

Q.설계 방향에 대해 설명해주세요.

이번 설계방향의 테마는 '마당'입니다. 최대한 많은 공간을 마당으로 활용하기 위해 직사각형으로 평면을 구성하였으며, 1, 2층을 합쳐 39평형대의 주택이지만 외관상 커보이게 하는 효과를 줄 수 있도록 계획하였습니다.

두 분이서 주로 생활하시는 공간이라고 생각한 후 설계를 진행하였으며, 방을 많이 만들기 보다는 거실과 주방, 식당을 넓게 가지고 가는 공간구성을 진행하였습니다.

1층 평면도를 보시면 주방, 식당, 다용도실의 공간을 거실 공간보다 크게 구성하여 주었으며, 답답한 공간이 아닌 오픈되면서 넓은 공간의 느낌을 부여하고자 하였습니다.^^


Q.면적은 얼마나 되는가요?

2층으로 구성하였으며, 1층 83.16㎡(25평), 2층 46.98㎡(14평)정도로 구성하여 총 39평 정도의 공간을 만들어 주었습니다.


Q.비용은 얼마가 들었나요?

총 183,000,000원이 소요될 것으로 판단됩니다. 부가세가 포함 된 가격이며, 순수한 건축비 입니다. 설계비는 9,750,000원이 소요되어졌습니다. 이는 부가세 포함 가격이며, 인허가 및 사용승인 비용도 포함된 금액입니다.


Q.지붕의 경사도는 꼭 있어야 하나요?

모던 주택을 생각하시는 건축주님들께서 오해하고 계신 부분이 "모던형 주택의 지붕은 모두 플랫하게 평평할 것이다." 일 것입니다. 목조주택의 경우 절대로 평평하게 지붕을 만들지 않습니다. 박스형의 매스라 할지라도 뒷쪽으로 외쪽 경사도가 존재를 합니다.

경사도는 아무리 없다 하더라도 30도 정도는 물매가 있어야 하며, 박공지붕의 경우 45도까지 진행하기도 합니다. 우리나라는 여름에 비가 많이 내리는 특성상 물이 고일 수 있는 평지붕은 시공하면 위험하며, 가급적이면 물매를 두어 물이 잘 배수될 수 있는 경사도를 만들어 주는 것이 좋습니다.^^


Q.39평인데 외관이 커 보여요.

이번 주택을 자세히 보시면 외관이 타 주택설계안보다 커 보이는 현상을 볼 수 있습니다. 실재로 정면부가 타 39평 설계보다 크게 계획되었습니다. 다만 북쪽으로 들어가는 부분을 줄이고 최대한 좌, 우 측으로 공간을 배치하여 직사각형의 평면으로 구성하되 입면적으로 오히려 커 보이는 효과를 주도록 설계하였습니다.


Q.외장 테라코트 마감색은 다양하게 선택할 수 있나요?

테라코트 외장마감의 색은 다양하게 구현이 가능합니다. 외장재를 별도로 붙여서 포인트를 주는 방식도 있지만 테라코트 자체가 외장 마감재이기 때문에 추가 외장재에 대한 비용을 늘리지 않으면서 입면적인 효과를 극대화 시킬 수 있도록 하였습니다.


Q.시공기간은 얼마나 걸릴까요?

시공기간은 5개월이 소요될 것으로 생각합니다. 이는 사전에 인허가 및 착공신고까지 모두 이루어졌다는 것을 가정한 기간입니다. 설계기간은 최소 2~3개월 정도 소요됩니다. 많은 분들이 시공계약하면 바로 공사가 이루어진다고 생각하시는데 절대로 그렇지 않습니다.^^; 설계 및 착공계를 내는 기간이 3달 정도 소요되니 꼭 집을 짓는다고 결정하셨으면, 3~6개월 전에는 설계 스타트를 하셔야 합니다.


Q.마지막 총평을 한다면?

요즘들어 지어진 집을 보고 싶다고 하시는 분들이 많습니다. 저희들도 보여드리면 회사 입장에서 훨씬 도움이 되겠지만 입주하여 살고 계신 건축주님들의 입장에서 생각하면 모르는 사람이 집에 들어와 구경하고 내 집을 평가한다는 것은 매우 불쾌하고 부담스러운 일일거라 생각합니다.

그래서 저희들은 완공된 집 사진을 모두 찍어서 홈페이지에 공개하고 있으며, 공사 진행 과정 또한 모두 투명하게 오픈시켜드리고 있습니다.

직접 현장에가서 보고싶으신 마음은 너무나도 잘 알겠지만 저희들은 저희를 믿고 계약해주신 건축주님분들의 프라이버시를 더 중요하게 생각해야 한다는 쪽으로 결론을 내렸습니다.^^

1. 완공된 집의 주소는 개인정보이므로 알려드릴 수 없습니다. 전화상으로 위치를 알려달라고 많은 분들이 요청하시는데 알려드릴 수 없는 점 양해부탁드립니다. 저희들은 절대로 건축주님의 개인 주소를 알려드리지 않습니다. 간혹 모르는 사람이 저희 소개로 보러왔다라고 하면 '거짓'이니 문열어주시면 안되십니다.^^ 방범과 관련된 부분이기도 하니 양해부탁드립니다.

2. 공사하는 중에 현장을 둘러보고 싶다고 하시는 분들이 계신데, 공사현장은 매우 위험한 공간입니다. 혹 다치실 수도 있기 때문에 공사진행 중인 현장에 대해서는 외부인 출입을 금지합니다.

항상 원칙을 지키면서 설계 및 공사를 진행하고자 합니다.^^ 여러가지 사항들로 인해 문제들도 있었지만 항상 원칙을 벗어나지 않을려고 합니다. 초심과 원칙을 지켜 나갈 수 있도록 여러분들께서도 이해와 양해 부탁드립니다.

정면도.jpg 정면도
좌측면도.jpg 좌측면도
우측면도.jpg 우측면도
배면도.jpg 배면도
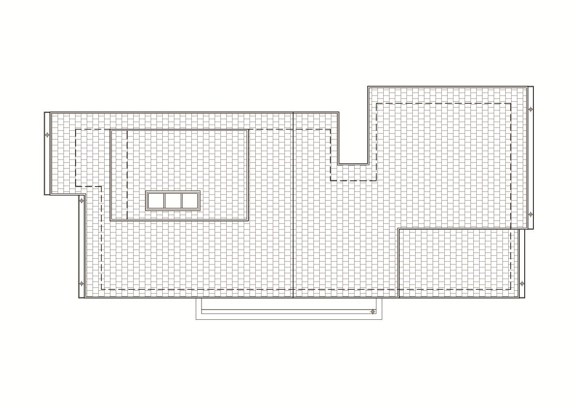
지붕평면도.jpg 지붕평면도
능포리주택 FIN-1.JPG 투시도 1안
능포리주택 FIN-2.jpg 투시도 2안
능포리주택 FIN-3.jpg 투시도 3안
능포리주택 FIN-4.JPG 투시도 4안

도착


39평 목조 전원주택. 이번 설계기획안은 마음에 드셨나요?^^

보통 설계를하고 3D투시도를 그려드리면 실사와 똑같은 느낌의 완성된 주택을 미리 보실 수가 있답니다. 예전에는 도면만으로 진행하다보니 시공때 수정되는 사항들이 많았는데요. 요즘에는 이렇게 360도 돌려볼 수 있는 3D모델링과 실사 투시도를 그려드리다보니 시공때 변경되는 사항 없이 처음 가지고 갔던 설계 방향 그대로 집이 지어지고 있답니다.

저희들의 설계기간은 총 3개월 입니다. 평균적으로 다른 건축사사무소보다 두 배 이상 긴 기간이라고 할 수 있습니다. 당연히 회사 입장에서는 인건비가 계속 소모되고 있는 것이니 싫어하기는 하는데요. 설계기간을 길게 가지고 가면 가지고 갈 수록 시공때 수정되는 사항이 적기 때문에 어찌보면 금액적으로 더 이득일 수 있다고 생각합니다.

설계때 많은 고민을 하고 많은 수정을 거치셔야지만이 추후 시공에 들어갔을 때 마음 편이 공사를 지켜 볼 수 있으며, 한번쯤 고민한 부분들은 그나마 나중에 후회가 적기 때문에 집을 준비하고 계신 예비 건축주님이시라면 설계기간을 너무 짧게 가져가시지 마시고 조금은 여유롭고 길게 가지고 가시길 바라겠습니다.^^

에고고 이 말을 적으면 또 동종 업계에서 뭐라고 하겠네요. ㅠㅠ 그래도 설계는 최소 3개월 정도는 가지고 가는 것이 맞다고 생각합니다.

오늘의 이야기는 여기까지 입니다. 집을 설계하면 할 수록 점점 재미있는 공간구성이 많이 나오는 것 같습니다. 다음에 더 좋은 기획안으로 찾아뵙도록 하겠습니다.

감사합니다.^^

*읽고 난 다음에는 위의 하트모양 라이킷과 공유 꾹 눌러주세용~^^


(좌측부터) 정다운 건축가, 임성재 건축가, 이동혁 건축가

총괄 건축가 : 이동혁, 임성재, 정다운

설계·시공 : 홈트리오(주) 1522-4279

Homepage : http://hometrio.kr

이동혁건축가TV : http://tv.naver.com/sunsutu1

[집이라는 본질적인 가치에 집중하다.]


글쓴이 : 이동혁 건축가

이메일 : sunsutu@hanmail.net


상담 및 자문

이동혁 건축가 : 010-4567-8413

정다운 건축가 : 010-8560-0477

임성재 건축가 : 010-9941-8899



keyword