#16 '자연과의 동화' 경북 청도 모던주택을 말하다.

#16 경북 청도 모던 스타일 목조 45평 전원주택 완공사례

by 이동혁 건축가

제목 : #16 '자연과의 동화' 경북 청도 모던 주택을 말하다.

소제목 : #16 경북 청도 모던 스타일 목조 45평 전원주택 완공사례


출발


안녕하세요 이동혁 건축가 입니다.^^

역시 완공시즌이어서 그런지 완공주택 사례를 많이 올려드리고 있네요. 본격적인 휴가철입니다. 우리 구독자 여러분들도 휴가 다녀오셨는지요?^^

저도 휴가를 가야 하는데 언제 갈 수 있을 지... ㅠㅠ 걱정입니다.

일단 우리 건축주님들 집을 잘 지어드리고 그 다음 휴가를 갈 예정이랍니다.^^;

오늘은 경북 청도에 완공된 주택을 이야기 드려볼까 합니다. 사진을 최대한 많이 다각도로 찍을려고 노력하지만 건축주님 프라이버시적인 공간 등은 사진을 찍지 못하다보니 올려드리는 사진등에 빠져있는 공간들이 존재한답니다.ㅠㅠ 구독자 여러분들께서 빠져있는 사진들이 있다고 말해주시는데 위와같은 사정이 있는 공간은 올려드리지 못하니 양해 부탁드립니다.

경북 청도에 지어진 45평 모던주택. 모던의 정석이라고 말할 수 있는 디자인으로 주택이 완공되었는데요.

궁금하시죠? 자 그럼 출발합니다.^^

*읽고 난 다음에는 위의 하트모양 라이킷과 공유 꾹 눌러주세용~^^


1.jpg

HOUSE PLAN

연면적 : 148.40㎡(1층+2층)

1층 : 96.22㎡

2층 : 58.18㎡

총괄 건축가 : 이동혁, 임성재, 정다운

설계·시공 : 홈트리오(주) 1522-4279

Homepage : http://hometrio.kr

이동혁건축가TV : http://tv.naver.com/sunsutu1

크기변환_KakaoTalk_20160706_162914492.jpg

예상 총 건축비 : 270,000,000원(부가세포함)

설계비 및 인허가비 : 11,250,000(부가세포함)

*건축비 외 부대비용 : 대지구입비, 가구(싱크대, 신발장, 붙박이장), 기반시설인입(수도,전기,가스 등), 토목공사, 조경비, 감리비 등(https://brunch.co.kr/@sunsutu/96 참고)


SPEC

공법 : 기초-철근콘크리트 / 1층, 2층구조-경량목구조

구조재 : 1층, 2층 :벽-2*6 SPF, 지붕-2*10 SPF

지붕마감재 : 리얼징크

외벽마감재 : 테라코트

외벽포인트자재 : 파벽돌, 리얼징크

실내벽마감재 : 실크벽지

실내바닥마감재 : 강마루

창호재 : 융기 3중 시스템창호

단열재 : 외부벽체(Glasswool Insulation R21HD-15" 나등급)

▷크나우프社 ECOBATT (ECOSE® 특허)

▷HD:저에너지 하우스용 / 15인치(381mm) *동등 제품

: 내부벽체(Glasswool Insulation R19-15" 다등급)

: 천장(Glasswool Insulation R30-15" 다등급)

: 지붕(Glasswool Insulation R37-23" 가등급) ▷ISOVER社에너지세이버

*단열기준은 2016년 7월1일자로 변경되는 단열기준법을 적용하여 강화시켜 놓았습니다.



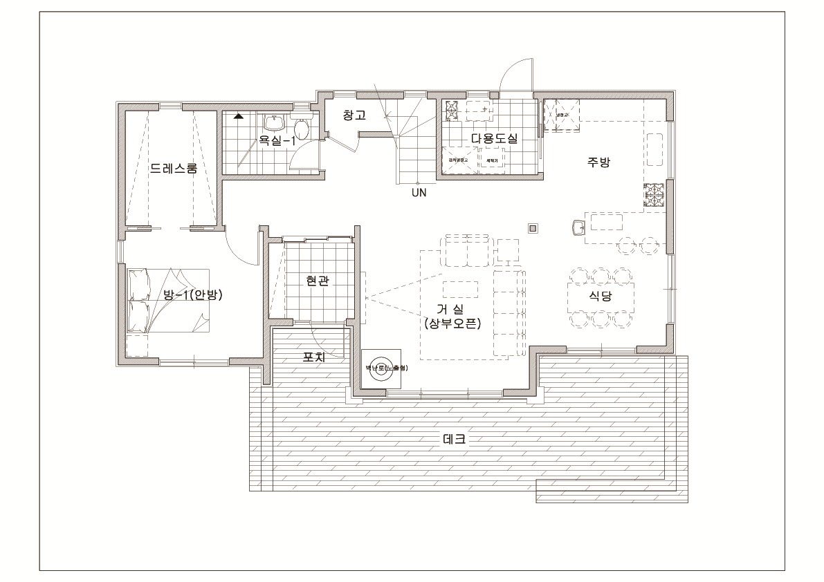
1층.jpg 1층 평면도
2층.jpg 2층 평면도


Q.설계 방향에 대해 설명해주세요.

이번 주택의 설계방향은 '모던과 오픈'입니다. 다시말해 외관은 모던한 느낌으로 가지고 가되, 내부 공간은 최대한 오픈된 공간으로 개방감을 극대화 하였습니다.

거실을 2층 오픈으로 수직적인 개방감을 극대화 시켜주었으며, 주방에서 식당에서 이르기까지 일체화된 공간으로 구성해 주었습니다. 이에 더해 외부로 확장되는 석재데크까지 공간적인 흐름을 연결시켜주어 집 어디에서든 탁 트여있는 개방감을 느낄 수 있도록 하였습니다.

모던한 입면으로 설계를 진행하여 자연스럽게 데드스페이스가 없는 공간으로 평면계획을 잡을 수 있었으며, 징크와 파벽돌을 조화시켜 모던하면서도 세련된 젊은 느낌을 집에 입히고자 하였습니다.


Q.면적은 얼마나 되는가요?

1층과 2층을 합하여 110.89㎡(34평)으로 구성하였습니다.


Q.비용은 얼마가 들었나요?

총 공사비용은 27,000만원이 소요되어졌으며, 설계비는 1,125만원으로 진행되어졌습니다. 모든 금액은 부가세 포함 금액이며, 별도비용은 위의 개요부분에서 정리해 놓았습니다.^^


Q.기간은 얼마나 걸렸나요?

설계기간은 3개월(인허가기간 포함)이 소요되었으며, 시공기간은 3.5개월이 소요되어졌습니다. 준공기간이 15일 정도 소요되어 총 설계 및 공사기간은 7개월이 소요되어졌습니다.


Q.AS는 몇년인가요?

건설회사를 선정할 때 가장 많이 고려하시는 부분이 AS 일 것입니다.^^ 저희 회사는 기본 2년을 보증해 드리며, 2년 후 진행되는 AS건에 대해서는 실비를 받고 문제를 해결해 드리고 있습니다. 별도의 AS팀을 보유하고 있어 빠른 서비스를 받을 수 있는 점이 가장 큰 장점이라 생각합니다.^^


Q.징크를 많이 쓰던데 쓰는 이유가 있나요?

징크를 쓰는 이유는 여러가지가 있겠지만 그 중 가장 큰 이유는 디자인 입니다.^^ 모던한 느낌을 내기위한 최고의 마감자재이며, 차가우면서도 젊은 느낌을 좋아하시는 분들은 대부분 징크를 포인트로 많이 사용하십니다. 다만 시공비가 비싸다는 단점이 있어 너무 많이 사용하기 보다는 부분적으로 꼭 필요한 부분만 사용하시길 권해드립니다.


Q.마지막 총평을 한다면?

이번 주택은 모던 스타일 전원주택의 정석을 보여주는 모델이라고 할 수 있습니다. 개방감의 극대화와 데드스페이스의 최소화. 그리고 젊고 세련된 외관 디자인. 아마 내 집을 짓고자 하시는 분들은 이번 주택이 좋은 사례가 되지 않을까 생각됩니다.^^

전화로 건축상담을 하시는 분들중에 대부분은 건축주님들이 주택을 상, 중, 하로 나누어 설명해 달라고 하십니다. 하지만 집에는 상, 중, 하 라는 개념 자체가 없답니다. 지역의 개인업자들이 세부 옵션을 만들 수 없다보니 상, 중, 하 라는 개념으로 집을 구분하는데 이는 맞지 않습니다.

기본적으로 골조, 창호, 단열 적인 부분은 건축법규에 맞추어 구성을 해 놓았으며, 이는 이미 최고로 구성되어져 있어 추가하거나 빼거나 하는 부분이 아닙니다. 다시말해 모든 집들의 기본 뼈대는 동일하다고 보는 것이 맞습니다. 다만 인테리어 수준이나 가구수준, 그리고 외장재 스타일에 따라 취향적인 부분이 달라지는 것이지 비싼 자재를 붙인다고 하여 집의 등급이 높아지는 것은 아니랍니다.

내가 가진 예산안에서 원하는 요소들을 적용시켜 지은 집이 최고의 집이라고 말씀드리고 싶으며, 너무 무리하게 보여주기식 집은 짓지 않으셨으면 합니다.^^


외관
1.jpg
2.jpg
3.jpg
4.jpg
7.jpg
11.jpg


현관
DSC_8729.jpg


거실
DSC_8676.jpg
DSC_8681.jpg
DSC_8698.jpg
DSC_8700.jpg
DSC_8701.jpg
DSC_8721.jpg
DSC_8722.jpg
DSC_8725.jpg
DSC_8736.jpg


주방
DSC_8705.jpg
DSC_8708.jpg
DSC_8712.jpg
DSC_8715.jpg
DSC_8716.jpg


화장실
DSC_8650.jpg
DSC_8651.jpg
DSC_8652.jpg
DSC_8649.jpg


계단
DSC_8621.jpg
DSC_8622.jpg
DSC_8625.jpg
DSC_8641.jpg
DSC_8690.jpg
DSC_8693.jpg


DSC_8630.jpg
DSC_8638.jpg
DSC_8656.jpg


테라스
DSC_8648.jpg


도착


이번 경북 청도 완공사례 어떠셨나요?^^

45평 규모의 모던 스타일 전원주택을 짓고자 하셨던 분들은 이번 주택이 많은 도움이 될 사례라고 생각합니다. 저희들은 서울부터 제주도까지 전 지역을 건축하고 있는데요. 아무리 멀더라도 기본적인 상담 및 계약은 판교에 있는 본사에서 진행을 하고 있습니다. 그 이유는 '억' 단위 계약을 진행하는데 회사를 안 보시고 계약한다는 것은 있을 수 없는 일이기 때문입니다. 저희들을 믿어주시고 신뢰해 주시는 것은 감사한 일이지만 계약은 꼭 판교 본사에서 진행한다는 원칙은 바뀌지 않을 예정입니다.

수 많은 상담 중 1/3 가량이 땅에 무조건 내려와서 설계해 달라고 하시는데 저희들은 계약 전 가설계는 진행하지 않는답니다. ㅠㅠ

저희들은 계약 전

1. 회사를 무조건 보여드릴 것.

2. 첫 번째 미팅은 3시간에 걸쳐 기본적인 사항을 모두 분석해드릴 것.

3. 충분한 검토를 한 뒤 계약을 하게 할 것.

4. 세 곳 이상의 건축업체에서 상담받게 할 것.

이 네 가지를 철저하게 지키고 있습니다.

집이란 서로에 대한 확신과 신뢰가 100%가 되어야 지을 수 있는 것입니다.

절대로 서둘러서 결정하시면 안되며, 꼼꼼히 체크하여 검토한 후 최종 결정을 내리셔야 합니다.

요즘 저희들이 너무나도 많은 사랑과 관심을 받고 있습니다.

그만큼 초심 잃지 않고 더 꼼꼼하게 집을 지어드리고자 노력합니다.

'많이 짓는 것이 목표가 아닌 적게 짓더라도 최고의 품질의 집을 지어드릴 것.'

그것이 저희가 가고자 하는 목표점이니 예비건축주님들께서는 저희들을 끝까지 사랑과 관심으로 지켜보아주셨으면 합니다.

감사합니다.^^

*읽고 난 다음에는 위의 하트모양 라이킷과 공유 꾹 눌러주세용~^^


3인방 프로필.jpg (좌측부터) 정다운 건축가, 임성재 건축가, 이동혁 건축가

총괄 건축가 : 이동혁, 임성재, 정다운

설계·시공 : 홈트리오(주) 1522-4279

Homepage : http://hometrio.kr

이동혁건축가TV : http://tv.naver.com/sunsutu1

[집이라는 본질적인 가치에 집중하다.]


글쓴이 : 이동혁 건축가

이메일 : sunsutu@hanmail.net

상담 및 자문 : 010-4567-8413



keyword
작가의 이전글#26 '넓은 마당의 매력' 강아지를 키우고픈 주택