#37 '젊은 귀농인을 위한 농가주택' 2타입 설계안

by 이동혁 건축가

제목 : #37 '젊은 귀농인을 위한 농가주택' 2타입 설계안

소제목 : #37 목조 농가주택 2타입 설계제안


출발


안녕하세요. 이동혁 건축가 입니다.^^

약 두 달간에 걸친 기획설계안이 드디어 완성되어 이렇게 선보이게 되었습니다.

기획모델의 두 번째 테마는 '젊은 귀농인을 위한 농가주택' 입니다.

키워드가 조금 새롭나요?^^;

제가 설계를 하면서 고정관념에 사로잡혀 있던 부분이 있었는데요.

그것은 바로 농가주택은 무조건 클래식한 분위기로 저렴하게 지어야 한다는 것이었습니다. 하지만 실상 상담문의 들어오는 것을 살펴보면 모던하면서 심플하고 유니크 한 모양을 더 선호한 다는 것을 알았습니다.

농가주택이라고 허름한 주택을 생각하셨다면 이번 기획안을 통해 생각이 바뀌시는 것을 경험하시게 될 것입니다.

자 두 가지 타입으로 기획된 농가주택 설계안. 지금 출발해 보겠습니다.^^

*읽고 난 다음에는 위의 하트모양 라이킷과 공유 꾹 눌러주세용~^^


dlovehouse_com_20160906_170130.jpg

[타입 1. 건축면적45py+주차장6py]

기획설계 A.jpg

HOUSE PLAN

dlovehouse_com_20160906_182754.jpg

총괄 건축가 : 이동혁, 임성재, 정다운

설계·시공 : 홈트리오(주) 1522-4279

Homepage : http://hometrio.kr

이동혁건축가TV : http://tv.naver.com/sunsutu1

예상 총 건축비 : 243,000,000원(부가세포함)

설계비 및 인허가비 : 10,000,000(부가세포함)

*건축비 외 부대비용 : 대지구입비, 가구(싱크대, 신발장, 붙박이장), 기반시설인입(수도,전기,가스 등), 토목공사, 조경비 등

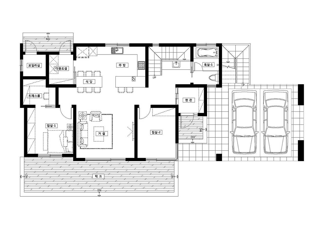
1층평면도.jpg 1층 평면도
2층평면도.jpg 2층 평면도
다락평면도.jpg 다락 평면도

SPEC

공법 : 기초-철근콘크리트 / 1층, 2층 구조-목조

지붕마감재 : 아스팔트슁글

외벽마감재 : 스타코플렉스

외벽포인트자재 : 인조석, 파벽돌, 적삼목사이딩

실내벽마감재 : 실크벽지

실내바닥마감재 : 강마루

창호재 : 융기 3중 시스템창호

단열재 : 외부벽체(Glasswool Insulation R21HD-15" 나등급)

▷크나우프社 ECOBATT (ECOSE® 특허)

▷HD:저에너지 하우스용 / 15인치(381mm) *동등 제품

: 내부벽체(Glasswool Insulation R19-15" 다등급)

: 천장(Glasswool Insulation R30-15" 다등급)

: 지붕(Glasswool Insulation R37-23" 가등급) ▷ISOVER社에너지세이버

*단열기준은 2016년 7월1일자로 변경되는 단열기준법을 적용하여 강화시켜 놓았습니다.

기획설계 A 입면전체.jpg
기획설계 A 투시 1.jpg
기획설계 A 투시 2.jpg
기획설계 A 투시 3.jpg


[타입 2. 건축면적64py+주차장12py]

기획설계 B.jpg

HOUSE PLAN

2.jpg

총괄 건축매니저 : 이동혁, 임성재, 정다운

설계·시공 : 꿈애하우징

Architecture Team : Dream&Love housing 'HOMETRIO'

홈페이지 : http://hometrio.modoo.at/

예상 총 건축비 : 355,500,000원(부가세포함, 수영장별도)

설계비 및 인허가비 : 15,500,000(부가세포함)

*건축비 외 부대비용 : 대지구입비, 가구(싱크대, 신발장, 붙박이장), 기반시설인입(수도,전기,가스 등), 토목공사, 조경비 등

1층평면도.jpg 1층 평면도
2층평면도.jpg 2층 평면도
다락평면도.jpg 다락 평면도

SPEC

공법 : 기초-철근콘크리트 / 1층, 2층 구조-목조

지붕마감재 : 아스팔트슁글

외벽마감재 : 스타코플렉스

외벽포인트자재 : 인조석, 파벽돌, 적삼목 사이딩

실내벽마감재 : 실크벽지

실내바닥마감재 : 강마루

창호재 : 융기 3중 시스템창호

단열재 : 외부벽체(Glasswool Insulation R21HD-15" 나등급)

▷크나우프社 ECOBATT (ECOSE® 특허)

▷HD:저에너지 하우스용 / 15인치(381mm) *동등 제품

: 내부벽체(Glasswool Insulation R19-15" 다등급)

: 천장(Glasswool Insulation R30-15" 다등급)

: 지붕(Glasswool Insulation R37-23" 가등급) ▷ISOVER社에너지세이버

*단열기준은 2016년 7월1일자로 변경되는 단열기준법을 적용하여 강화시켜 놓았습니다.

기획설계 B 입면전체.jpg
기획설계 B 투시 1.jpg
기획설계 B 투시 2.jpg
기획설계 B 투시 3.jpg

도착


'젊은 귀농인을 위한 농가주택' 기획안 어떠셨나요?

생각했던 주택 이미지가 아니어서 놀라셨나요?^^; 집이라는 것이 어찌보면 답이 없는 분야임에도 불구하고 우리들 스스로 한계점과 틀을 만들어 놓았던 것 같습니다.

귀농을 한다고 하여 시골집에 살고싶은 것은 아닙니다.

유니크하면서 모던하고 우리 가족의 생활을 고스란이 담아낼 수 있는 그런 집.

그리고 주차장이 있어 차량 관리에도 용이한 집.

이번 주택 설계 기획을 하면서 많은 생각을 하게 되었습니다. 스스로의 틀에 얽메이지 말자. 그리고 고정관념에 사로잡히지 말자. ^^

여러분들도 집을 지으실 때 너무 남이 지은 집들을 보지마시고 여러분 가족의 라이프스타일을 온전히 담아낼 수 있는 그런 집을 짓길 바라겠습니다.^^

감사합니다.^^

*읽고 난 다음에는 위의 하트모양 라이킷과 공유 꾹 눌러주세용~^^


클로즈업.jpg (좌측부터) 이동혁 건축가, 임성재 건축가, 정다운 건축가

총괄 건축가 : 이동혁, 임성재, 정다운

설계·시공 : 홈트리오(주) 1522-4279

Homepage : http://hometrio.kr

이동혁건축가TV : http://tv.naver.com/sunsutu1

[집이라는 본질적인 가치에 집중하다.]


글쓴이 : 이동혁 건축가

이메일 : sunsutu@hanmail.net


상담 및 자문

이동혁 건축가 : 010-4567-8413

정다운 건축가 : 010-8560-0477

임성재 건축가 : 010-9941-8899