#42 '지하를 활용한 모던주택'48평 양평 문호리주택

#42 목조 모던스타일 경기 양평 문호리 48평 전원주택 설계제안

by 이동혁 건축가

제목 : #42 '지하를 활용한 모던주택' 48평 양평 문호리 주택

소제목 : #42 목조 모던스타일 경기 양평 문호리 48평 전원주택 설계제안


출발


안녕하세요. 이동혁 건축가 입니다.^^

한동안 정신없이 돌아다니다보니 오랜만에 글을 연재하네요.

원래 주말동안 많은 글들을 적었었는데 이제는 주말에 강연들이 잡히다보니... ㅠㅠ 이리저리 돌아다니느라 시간을 다 써버렸네요.

그래도 마음 다잡고 자리에 앉아 글을 연재하고자 합니다.^^;

오늘 이야기 드릴 주택은 모던과 클래식이 공존하는 고급스러운 느낌의 주택설계안 입니다.

목조의 장점을 그대로 안고 설계기획된 이번 모델은 지하공간이 필요하신 분과 가성비 대비 따뜻하고 모던한 주택을 원하시는 분들께는 좋은 사례가 될거라 생각합니다.^^

자 그럼 오늘도 출발해 보겠습니다.

*읽고 난 다음에는 위의 하트 모양 라이킷과 공유 꾹 눌러주세용~^^


thumbnail.jpg 메인투시도

HOUSE PLAN

연면적 : 160.28㎡

지하 1층 : 104.56㎡

1층 : 107.38㎡

2층 : 52.90㎡

총괄 건축가 : 이동혁, 임성재, 정다운

설계·시공 : 홈트리오(주) 1522-4279

Homepage : http://hometrio.kr

이동혁건축가TV : http://tv.naver.com/sunsutu1

예상 총 건축비 : 지상-256,600,000원(부가세포함), 지하-160,000,000원(부가세포함)

설계비 및 인허가비 : 13,000,000(부가세포함)

*건축비 외 부대비용 : 대지구입비, 가구(싱크대, 신발장, 붙박이장), 기반시설인입(수도,전기,가스 등), 토목공사, 조경비 등


SPEC

공법 : 기초, 지하1층-철근콘크리트 / 1층, 2층 구조-목조

지붕마감재 : 아스팔트슁글

외벽마감재 : 스타코플렉스

외벽포인트자재 : 세라믹사이딩, 파벽돌

실내벽마감재 : 실크벽지

실내바닥마감재 : 강마루

창호재 : 융기 3중 시스템창호

단열재 : 외부벽체(Glasswool Insulation R21HD-15" 나등급)

▷크나우프社 ECOBATT (ECOSE® 특허)

▷HD:저에너지 하우스용 / 15인치(381mm) *동등 제품

: 내부벽체(Glasswool Insulation R19-15" 다등급)

: 천장(Glasswool Insulation R30-15" 다등급)

: 지붕(Glasswool Insulation R37-23" 가등급) ▷ISOVER社에너지세이버

*단열기준은 2016년 7월1일자로 변경되는 단열기준법을 적용하여 강화시켜 놓았습니다.


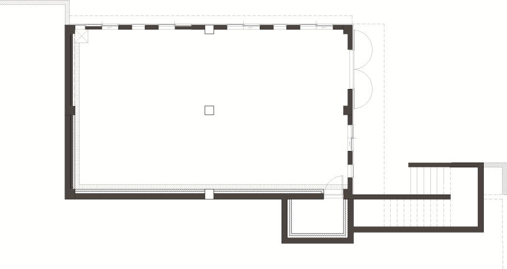
지하1층.jpg 지하1층 평면도
1층평면도.jpg 1층 평면도
2층평면도.jpg 2층 평면도


Q.설계 방향에 대해 설명해주세요.

이번 설계방향의 테마는 '지하공간 활용과 가성비'입니다. 지하공간을 설계한 아마 저희 팀의 첫번째 설계안일 것 같습니다. 정확한 목적과 이유가 없으면 지하공간은 잘 설치를 안하다보니 건축일을 하면서 거의 첫번째 지하공간 기획안이 나온 것 같습니다.

집을 지을 때 제가 가장 강조하는 것은 '외장재의 덜어냄.' 입니다. 이상한 문장인가요?^^;

기본 외장재로 마감하여 공사비를 줄이는 것을 좋아하는 저로서는 비싼 외장재와 지붕재로 설계하는 것을 가급적이면 피할려고 많이 노력한답니다.

항상 말씀드리지만 외장은 심플하고 정갈하게!! 잊지마세요^^


Q.면적은 얼마나 되는가요?

총 48평으로 계획되어졌으며, 1층은 107.38㎡(32평), 2층은 52.90㎡(16평)으로 지어졌습니다. 평수대가 크기 때문에 넓고 개방감이 큰 공간의 느낌을 받을 수 있도록 설계 및 기획하였습니다.^^


Q.비용은 얼마가 들었나요?

총 256,600,000원(지상), 160,000,000원(지하)이 소요될 것으로 판단됩니다. 부가세가 포함된 가격이며, 순수한 건축비입니다. 설계비는 13,000,000원이 소요되어졌습니다. 이는 부가세 포함 가격이며, 인허가 및 사용승인 비용도 포함된 금액입니다.


Q.1층과 2층의 층고가 어떻게 되나요?

저희가 진행하는 모든 주택의 기본 층고는 1층은 2.7m, 2층은 2.4m로 계획하고 있습니다. 1층의 경우 개방감을 조금 더 중요시하기 때문에 기존 층고보다 30cm이상 올려놓았으며, 2층은 개방감 보다는 안정감과 단열 적인 부분을 더 중요시 하기 때문에 2.4m로 계획하고 있습니다.


Q.지하부분의 공사비가 만만치 않네요?

지하를 만든다는게 생각보다 쉽지 않습니다. 가장 중요한 문제는 공사비일 것인데요. 보통 지하를 파기 위해서는 장비가 들어와야 하고 땅을 판 후 그냥 놔 두는 것이 아니라 토압을 견디기 위해 벽을 보강한 후 습을 막기 위해 이중벽구조를 시공합니다. 또한 위에 집이 올라가기 때문에 기초역할을 동시에 할 수 있도록 공사가 되며, 내부 마감까지 들어간다면 아마 일반 지상에 건축하는 것보다 더 많은 공사비가 들어가게 될 것입니다.


Q.주차장 계획은 꼭 해야 하나요?

주차장의 경우 인허가 단계에서 필수로 들어가야 하는 건축 사항입니다.

많은분들이 준공단계에서 주차장을 만들어 놓았다가 추후 마당으로 그냥 쓰시는데 사용 자체에는 문제가 없지만 추후 민원이 들어갔을 때에 벌금 및 원상복구 명령이 떨어질 수 있으므로 남의 집에서 주차장을 안했다고 하여 내 집에도 안하는 일은 없으셔야 합니다.^^


Q.설계기간 및 시공기간은 얼마나 걸릴까요?

설계기간은 인허가 포함 3달 정도를 잡는 것이 여유로우며, 시공기간은 착공일로부터 3.5개월을 잡는 것이 좋습니다. 사용승인(준공)까지 포함된 기간입니다. 요즘 건축 문의가 많아지면서 계약에 관련된 내용을 많이 물으시는데요. 오늘 계약했다고 해서 내일 당장 집을 지을 수 있는 것은 아니랍니다.^^; 저희의 경우에는 최소 착공일 6개월 전에 계약이 진행되어야 원하는 공사 날짜에 스타트가 가능합니다. 아마 이 부분은 컨테이너가 아닌 이상 타 업체들도 동일한 일정이라고 생각합니다.


Q.마지막 총평을 한다면?

집을 지을 때 제가 가장 강조하는 것은 처음 예산잡은 그 범위안에서만 움직이라는 것입니다. 물론 인터넷에 좋다고 하는 여러가지 자재들을 다 사용한다면 매우 좋겠지만 좋은 자재일 수록 가격이 비싸다는 문제점이 있습니다.

'가성비'라는 용어가 있는데요. 너무 최고만을 찾지 마시고 적절한 가격대비 성능을 맞춰줄 수 있는 자재에서 결정하신 후 돈을 아꼈다가 정말로 돈을 투자해야만 하는 곳에 집중적으로 투자하시길 권해드립니다.

집을 짓는 다는 것이 왜 이리 힘든지... 집을 준비하시는 분들 모두 걱정이 많으시죠?

모두들 힘내시고 최근 용인 단지건을 저희 회사에서 전담하여 상담드리고 있는데 한분 한분 상담드릴 때마다 그안고 계신 걱정들이 많이 느껴진답니다.

최선을 다해 컨설팅 해 드릴테니 너무 걱정마시고 좋은 추억과 기억만을 가지고 가면서 집을 완성시키시길 바라겠습니다.

감사합니다.^^

정면도.jpg 정면도
배면도.jpg 배면도
좌측면도.jpg 좌측면도
우측면도.jpg 우측면도
지붕평면도.jpg 지붕평면도
양평 유근정님.jpg
양평-유근정님-art2.jpg
양평-유근정님-art3.jpg
양평-유근정님-art4.jpg

도착


48평 지하층이 있는 모던 스타일 전원주택 설계안. 어떠셨나요?

위와 같은 주택 아래에 지하층이 있을거라고는 생각 못하셨죠?^^;

이 주택의 매력은 지하층 뿐만 아니라 지상층의 가성비와 디자인에도 있을 것 같습니다.

최근 저희들이 디자인하는 주택들을 보면 많은 부분 덜어내고 정말 실용적인 디자인으로 주택을 설계하고자 노력합니다.

내가 가장 중요시 하는 정면분에서는 원하는 느낌을 줄 수 있도록 포인트를 배치하고 반대로 좌, 우측과 배면에는 포인트 적인 부분의 힘을 빼내어 과하지 않고 절제된 듯한 느낌의 주택을 완성시킵니다.

모던스타일이라고 하면 꼭 징크를 써야된다는 고정관념이 있는데요. 비싼 추가 비용이 들어가는 리얼징크재를 쓰지 않더라도 모던한 느낌을 가지고 갈 수 있으니 외장재를 선택할 때 너무 욕심을 부리지 마세요~^^

오늘은 여기까지 입니다. 좀 더 자주 설계기획안을 올리고 글을 열심히 연재하도록 하겠습니다.

일주일 정도 연재를 안하니 바로 구독자분들께서 언제 글 올라오냐고 메일로 문의주시네요. ㅠㅠ

좀 더 분발하겠습니다. ㅎ

감사합니다.^^

*읽고 난 다음에는 위의 하트모양 라이킷과 공유 꾹 눌러주세용~^^


클로즈업.jpg (좌측부터) 이동혁 건축가, 임성재 건축가, 정다운 건축가


총괄 건축가 : 이동혁, 임성재, 정다운

설계·시공 : 홈트리오(주) 1522-4279

Homepage : http://hometrio.kr

이동혁건축가TV : http://tv.naver.com/sunsutu1

[집이라는 본질적인 가치에 집중하다.]


글쓴이 : 이동혁 건축가

이메일 : sunsutu@hanmail.net


상담 및 자문

이동혁 건축가 : 010-4567-8413

정다운 건축가 : 010-8560-0477

임성재 건축가 : 010-9941-8899