#43 '자연과의 호흡' 제주시 조천읍 32평 전원주택

#43 목조 모던스타일 제주시 조천읍 32평 전원주택 설계제안

by 이동혁 건축가

제목 : #43 '자연과의 호흡' 제주시 조천읍 32평 전원주택

소제목 : #43 목조 모던스타일 제주시 조천읍 32평 전원주택 설계제안


출발


안녕하세요. 이동혁 건축가 입니다.^^

본격적인 착공시즌이 다시 도래했네요. 이곳 저곳 돌아다니느라 정신없지만 설계와 인허가를 무사히 마치고 터파기와 기초공사가 진행되는 현장을 보고 있노라면 마음 한켠에서 뭉클한 감정이 이상하게 올라온답니다.

집을 짓는 것이 쉽지 않듯이 전문가인 저희들도 매 현장마다 생각지도 못했던 문제들과 여러가지 민원들로 항상 고민과 걱정을 하는데요. 이러한 고민들과 걱정들은 공사가 시작되면 한순간에 씻겨져 내려가는 것 같습니다.^^

오늘 이야기 드릴 주택은 제주도에 착공예정인 32평 주택입니다. 'ㄱ'자형 평면과 모던한 느낌은 제주도의 자연경관과 잘 동화될 수 있고 화려한 색을 사용한 것이 아닌 모노톤의 포인트 색상으로 디자인하여 고즈넉하면서 정갈한 느낌을 주는 주택 설계기획안이라 할 수 있습니다.^^

자 그럼 오늘도 출발해 보겠습니다.

*읽고 난 다음에는 위의 하트 모양 라이킷과 공유 꾹 눌러주세용~^^


HOUSE PLAN

연면적 : 106.39㎡

1층 : 70.46㎡

2층 : 35.93㎡

총괄 건축가 : 이동혁, 임성재, 정다운

설계·시공 : 홈트리오(주) 1522-4279

Homepage : http://hometrio.kr

이동혁건축가TV : http://tv.naver.com/sunsutu1

예상 총 건축비 : 174,400,000원(부가세포함, 제주도 10% 할증 포함)

설계비 및 인허가비 : 8,800,000(부가세포함, 제주도 10% 할증 포함)

*건축비 외 부대비용 : 대지구입비, 가구(싱크대, 신발장, 붙박이장), 기반시설인입(수도,전기,가스 등), 토목공사, 조경비 등


SPEC

공법 : 기초-철근콘크리트 / 1층, 2층 구조-목조

지붕마감재 : 아스팔트슁글

외벽마감재 : 스타코플렉스

외벽포인트자재 : 세라믹사이딩, 파벽돌

실내벽마감재 : 실크벽지

실내바닥마감재 : 강마루

창호재 : 융기 3중 시스템창호

단열재 : 외부벽체(Glasswool Insulation R21HD-15" 나등급)

▷크나우프社 ECOBATT (ECOSE® 특허)

▷HD:저에너지 하우스용 / 15인치(381mm) *동등 제품

: 내부벽체(Glasswool Insulation R19-15" 다등급)

: 천장(Glasswool Insulation R30-15" 다등급)

: 지붕(Glasswool Insulation R37-23" 가등급) ▷ISOVER社에너지세이버

*단열기준은 2016년 7월1일자로 변경되는 단열기준법을 적용하여 강화시켜 놓았습니다.

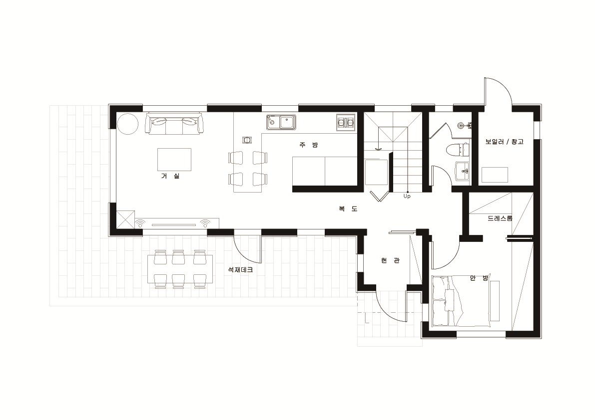
1층 평면도
2층 평면도

Q.설계 방향에 대해 설명해주세요.

이번 설계방향의 테마는 '주변 자연과의 동화' 입니다. 최대한 색을 제한하고 무채색 계열로 포인트를 사용해 주변 녹림에 동화될 수 있게 하였습니다.

제주도의 경우 워낙 천혜의 자연환경을 가지고 있고 건축주님의 대지도 이미 나무들에 둘러쌓여 있어 그 자연환경을 집에 고스란히 담아내고 싶었습니다.

밝은 톤의 외벽과 회색톤의 지붕을 조합하여 주변환경과 조화되도 튀거나 어색하지 않게 디자인하였으며, 모든 실의 창을 남향배치하여 자연을 그대로 실내로 유입될 수 있는 효과를 주었습니다.^^


Q.면적은 얼마나 되는가요?

총 32평으로 계획되어졌으며, 1층은 70.46㎡(21평), 2층은 35.93㎡(11평)으로 지어졌습니다.

조망권과 공간 활용을 위해 'ㄱ'자형 배치를 하여 설계하였으며, 모든 실이 채광에 유리할 수 있도록 남향배치 하였습니다.


Q.비용은 얼마가 들었나요?

총 174,400,000원이 소요될 것으로 판단됩니다. 부가세가 포함된 가격이며, 순수한 건축비입니다. 설계비는 8,800,000원이 소요되어졌습니다. 이는 부가세 포함 가격이며, 인허가 및 사용승인 비용도 포함된 금액입니다.


Q.1층과 2층의 층고가 어떻게 되나요?

저희가 진행하는 모든 주택의 기본 층고는 1층은 2.7m, 2층은 2.4m로 계획하고 있습니다. 1층의 경우 개방감을 조금 더 중요시하기 때문에 기존 층고보다 30cm이상 올려놓았으며, 2층은 개방감 보다는 안정감과 단열 적인 부분을 더 중요시 하기 때문에 2.4m로 계획하고 있습니다.


Q.눈물자국이 생기지 않게 하려면 어떻게 해야하나요?

저희들이 지은 주택들을 보면 그나마 눈물자국이 많이 없는 것을 보실 수 있습니다. 이는 간단한 설계적 기법으로 해결할 수 있는데요.

첫번째는, 처마입니다. 저희들은 모던하게 보여도 처마가 20cm이상 무조건 튀어나오게 설계합니다. 지붕의 먼지가 이 처마를 통해 1차적으로 물끊기를 해 주기 때문에 벽이 오염되는 것을 방지해줍니다.

두번째는, 창문 주위의 EPS몰딩 설치 입니다. 투시도 상에는 잘 드러나지 않지만 실제 시공시에는 창문 주변으로 10cm정도 벽을 튀어나오게 하여 창문에서 나오는 먼지빗물을 미연에 방지해 줍니다.

이 두 가지만 잘 지키셔도 눈물자국은 미연에 방지하실 수 있으실꺼에요.^^


Q.제주도의 경우 인허가가 어렵지 않나요?

제주도의 경우 인허가 및 사용승인이 매우 까다로운 편입니다. 그렇기 때문에 첫 계약 시 많은 검토를 진행한 후에 스타트를 합니다. 문화재 및 심의에 대한 부분, 그리고 개발제한이라는 부분등이 산재해 있어 최소 2달정도의 인허가 기간을 잡아 놓으시는 것이 좋습니다.^^


Q.설계기간 및 시공기간은 얼마나 걸릴까요?

설계기간은 인허가 포함 3달 정도를 잡는 것이 여유로우며, 시공기간은 착공일로부터 3.5개월을 잡는 것이 좋습니다. 사용승인(준공)까지 포함된 기간입니다. 요즘 건축 문의가 많아지면서 계약에 관련된 내용을 많이 물으시는데요. 오늘 계약했다고 해서 내일 당장 집을 지을 수 있는 것은 아니랍니다.^^; 저희의 경우에는 최소 착공일 6개월 전에 계약이 진행되어야 원하는 공사 날짜에 스타트가 가능합니다. 아마 이 부분은 컨테이너가 아닌 이상 타 업체들도 동일한 일정이라고 생각합니다.


Q.마지막 총평을 한다면?

집을 설계할 때 항상 '덜어냄'이라는 단어를 많이 떠올립니다. 건축주님께서 요구하시는 것을 모두 집 안에 넣을 것이 아니라 하나씩 덜어내어 공사비 부담을 줄이고 정말 초기에 원했던 가장 중요한 요소들을 부각시켜 집의 근본적인 목적을 담아내고자 노력합니다.^^

이번 주택은 개인적으로 저의 생각이 많이 담겨진 주택입니다. 과하지도 모자르지도 않게 입면을 구성하고 데드스페이스 없는 동선구성을 하여 건축주님과 제가 모두 만족할 만한 결과가 나온 것 같습니다.

평균 설계기간 3개월... 긴 시간이지만 이렇게 설계안이 나오고나면 그 무엇과도 비교할 수 없는 기쁨이 있는 것 같습니다.^^

도착


32평 제주도 자연과 동화되는 모던 스타일 전원주택 설계안. 어떠셨나요?

최근들어 제주도에 전원주택 열풍이 분 것 같습니다. 현재 저희 회사도 20채가 넘는 현장이 진행중에 있네요.

제주도의 경우 생각보다 인허가 기간이 길게 걸리는 편입니다. 토목 인허가의 경우도 내륙지역보다 더 길게 걸리오니 이사날짜나 준공날짜를 대략적으로 잡을 때에 넉넉하게 잡아두시는 것이 좋습니다.


어제 판교역 부근에 카페 하나를 통째로 빌려 20분만을 모셔놓고 강연을 진행하였습니다.^^

대강당이나 많은 인원을 모아놓고 하는 것이 아닌 바로 앞에서 여러분들의 표정과 숨소리를 들어며 소통하는 시간이 되었던 것 같습니다.

강연을 하다보면 어느순간 이것은 하면안되고 저것도 하면안되고... 어찌보면 걱정거리를 한가득 안겨드리고 있는 듯한 착각을 한답니다.^^; 하지만 집을 지을 때에는 한두가지 사항이 아닌 1,000가지가 넘는 사항이 체크되어야 하는 만큼 저희가 드리는 이야기를 꼼꼼히 살펴보아야 합니다.


이제는 저녁에 이불을 덮지 않으면 추운 계절이 와 버렸네요.^^; 엊그제 봄 공사 착공했던 것 같은데 이제는 가을공사가 시작되고 있으니 올해도 얼마 안 남은 것 같습니다.

내년도 봄 공사 준비하시는 분들은 서서히 준비를 하시고 좋은 설계안 만들어 내시길 바라겠습니다.

오늘은 여기까지 입니다.

꾸준히 그리고 성실하게 연재 이어갈테니 글 너무 늦게 올린다고 뭐라고 하지 말아주세요.ㅠㅠ

감사합니다.^^

*읽고 난 다음에는 위의 하트모양 라이킷과 공유 꾹 눌러주세용~^^


(좌측부터) 이동혁 건축가, 임성재 건축가, 정다운 건축가


총괄 건축가 : 이동혁, 임성재, 정다운

설계·시공 : 홈트리오(주) 1522-4279

Homepage : http://hometrio.kr

이동혁건축가TV : http://tv.naver.com/sunsutu1

[집이라는 본질적인 가치에 집중하다.]


글쓴이 : 이동혁 건축가

이메일 : sunsutu@hanmail.net


상담 및 자문

이동혁 건축가 : 010-4567-8413

정다운 건축가 : 010-8560-0477

임성재 건축가 : 010-9941-8899