#44 '카페와 주거를 한번에' 64평 상가주택 설계안

#44 목조 모던스타일 제주 서귀포 64평 상가주택 설계제안

by 이동혁 건축가

제목 : #44 '카페와 주거를 한번에' 64평 상가주택 설계안

소제목 : #44 목조 모던스타일 제주 서귀포 64평 상가주택 설계제안


출발


안녕하세요. 이동혁 건축가 입니다.^^

오늘은 가을비가 예정되어 있는 날이네요. 서울에도 한두방울씩 비가 내리기 시작했는데요. 이번 비가 내린 후에는 날씨가 쌀쌀해 지지 않을까 생각됩니다.

엊그제 착공한다고 떠들썩 했는데 가을공사 들어간 현장들도 벌써 골조가 올라가고 있네요.

어! 하는 순간 집이 지어지다보니 길게만 느껴졌던 건축기간들이 이제는 짧게만 느껴지실 겁니다.^^;

오늘은 제주도 서귀포에 지어질 64평 상가주택을 소개해 드릴까합니다.

제주도의 특성상 유니크하면서 모던한 느낌으로 주변환경과 잘 어울릴 수 있는 외형으로 디자인하였으며, 1층 카페를 운영하시는 계획을 가지고 계시기 때문에 건물이 작게 보이기 보다는 최대한 큰 매스로 보여질 수 있도록 하였습니다.

제주도에 상가주택 계획을 가지고 계신 분들은 이번 설계기획안을 보신다면 많은 도움이 되시지 않을까 생각됩니다.^^

자 그럼 오늘도 출발해 보겠습니다.

*읽고 난 다음에는 위의 하트 모양 라이킷과 공유 꾹 눌러주세용~^^


제주 회수동 주택.jpg

HOUSE PLAN

연면적 : 211.33㎡

1층 : 104.51㎡

2층 : 106.82㎡

총괄 건축가 : 이동혁, 임성재, 정다운

설계·시공 : 홈트리오(주) 1522-4279

Homepage : http://hometrio.kr

이동혁건축가TV : http://tv.naver.com/sunsutu1

예상 총 건축비 : 345,400,000원(부가세포함, 제주도 10% 할증 포함)

설계비 및 인허가비 : 17,600,000(부가세포함, 제주도 10% 할증 포함)

*건축비 외 부대비용 : 대지구입비, 가구(싱크대, 신발장, 붙박이장), 기반시설인입(수도,전기,가스 등), 토목공사, 조경비 등


SPEC

공법 : 기초-철근콘크리트 / 1층, 2층 구조-목조

지붕마감재 : 아스팔트슁글

외벽마감재 : 스타코플렉스

외벽포인트자재 : 리얼징크, 파벽돌, 적삼목사이딩

실내벽마감재 : 실크벽지

실내바닥마감재 : 강마루

창호재 : 융기 3중 시스템창호

단열재 : 외부벽체(Glasswool Insulation R21HD-15" 나등급)

▷크나우프社 ECOBATT (ECOSE® 특허)

▷HD:저에너지 하우스용 / 15인치(381mm) *동등 제품

: 내부벽체(Glasswool Insulation R19-15" 다등급)

: 천장(Glasswool Insulation R30-15" 다등급)

: 지붕(Glasswool Insulation R37-23" 가등급) ▷ISOVER社에너지세이버

*단열기준은 2016년 7월1일자로 변경되는 단열기준법을 적용하여 강화시켜 놓았습니다.

1층평면도.jpg 1층 평면도
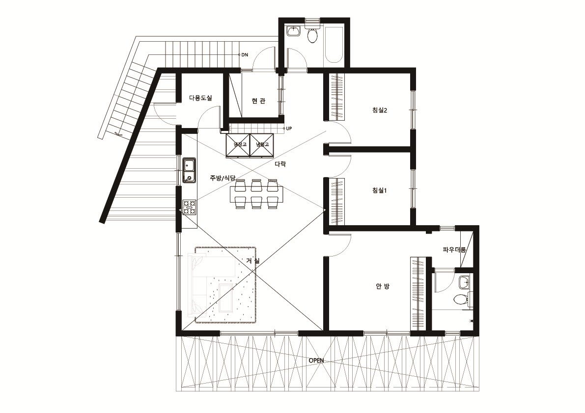
2층평면도.jpg 2층 평면도

Q.설계 방향에 대해 설명해주세요.

이번 설계방향의 테마는 '주거와 카페를 한번에 해결할 수 있는 상가주택' 입니다. 보통 상가주택하면 획일화 되어있는 박스형의 건물을 생각하시는데요. 최근에는 그러한 입면을 탈피하고 전원주택의 느낌을 담아낸 상가주택이 인기를 끌고 있답니다.

저희들도 제주도의 지역적 특성을 고려하여 획일화 된 입면을 피하고 외관에서 보았을 때 이국적인 전원주택 느낌이 날 수 있도록 요소요소 신경써서 디자인하였습니다.

1층은 넓은 공간을 확보하여 카페를 다양한 활동공간으로 이용 가능하게 하였으며, 2층은 주거용으로 공간을 계획하여 주거와 카페 모두를 만족시킬 수 있는 건물로 설계하였습니다.


Q.면적은 얼마나 되는가요?

총 64평으로 계획되어졌으며, 1층은 104.51㎡(31.6평), 2층은 106.82㎡(32.4평)으로 지어졌습니다.
1층 카페를 운영할 근린생활시설은 최대한 넓은 공간을 확보할 수 있도록 하였으며, 전면 데크 시공과 폴딩도어 계획으로 외부로의 공간 확장성을 확보하였습니다.


Q.비용은 얼마가 들었나요?

총 345,400,000원이 소요될 것으로 판단됩니다. 부가세가 포함된 가격이며, 순수한 건축비입니다. 설계비는 17,600,000원이 소요되어졌습니다. 이는 부가세 포함 가격이며, 인허가 및 사용승인 비용도 포함된 금액입니다.


Q.1층과 2층의 층고가 어떻게 되나요?

저희가 진행하는 모든 주택의 기본 층고는 1층은 2.7m, 2층은 2.4m로 계획하고 있습니다. 1층의 경우 개방감을 조금 더 중요시하기 때문에 기존 층고보다 30cm이상 올려놓았으며, 2층은 개방감 보다는 안정감과 단열 적인 부분을 더 중요시 하기 때문에 2.4m로 계획하고 있습니다.


Q.카페를 구성할 때 인테리어 협의를 해 주시나요?

시공계약 시 실내 인테리어 미팅 비용이 포함되어져 있습니다.^^ 카페 및 주거생활에 들어가는 기본 인테리어 협의는 시공비에 포함되어져 있으므로 별도의 인테리어 업체를 선정하시지 않으셔도 된답니다.


Q.주차장 계획은 꼭 해야 하나요?

주차장의 경우 인허가 단계에서 필수로 들어가야 하는 건축 사항입니다.

많은분들이 준공단계에서 주차장을 만들어 놓았다가 추후 마당으로 그냥 쓰시는데 사용 자체에는 문제가 없지만 추후 민원이 들어갔을 때에 벌금 및 원상복구 명령이 떨어질 수 있으므로 남의 집에서 주차장을 안했다고 하여 내 집에도 안하는 일은 없으셔야 합니다.^^


Q.설계기간 및 시공기간은 얼마나 걸릴까요?

설계기간은 인허가 포함 3달 정도를 잡는 것이 여유로우며, 시공기간은 착공일로부터 3.5개월을 잡는 것이 좋습니다. 사용승인(준공)까지 포함된 기간입니다. 요즘 건축 문의가 많아지면서 계약에 관련된 내용을 많이 물으시는데요. 오늘 계약했다고 해서 내일 당장 집을 지을 수 있는 것은 아니랍니다.^^; 저희의 경우에는 최소 착공일 6개월 전에 계약이 진행되어야 원하는 공사 날짜에 스타트가 가능합니다. 아마 이 부분은 컨테이너가 아닌 이상 타 업체들도 동일한 일정이라고 생각합니다.


Q.마지막 총평을 한다면?

카페와 주거를 결합한 상가주택의 경우 어떠한 이미지와 인테리어를 만들어 낼건지에 따라 결과물의 품질 차이가 커집니다.

단순히 공간만 배치하는 것이 아닌 공간의 확장성과 외관의 랜드마크적인 느낌. 여러가지 등을 고려한 후 설계해야지만이 서로가 만족할 만한 결과가 나오는 것 같습니다.

카페와 주거가 결합한 상가주택이라고 해서 꼭 획일적인 디자인이 될 필요는 없답니다.^^

이번 설계기획안이 제주도 및 내륙지역에 상가주택을 계획하고 계신 분들께 많은 도움일 될 수 있는 기획안이지 않을까 생각합니다.

감사합니다.^^

입면 전체.jpg
투시 1.jpg
투시 2.jpg
투시 3.jpg

도착


64평 제주도 서귀포의 상가주택 설계안. 어떠셨나요?

특히 올해 저희 회사에 제주도 설계건이 많이 계약된 것 같습니다.

현재 저희 본사 직영 시공팀도 7팀이나 내려가 있어 제주도 시공이 얼마나 많이 이루어지고 있는지가 느껴집니다.^^

11월 초에 열리는 제주도 건축박람회에 저희도 첫 참가를 하는데요. 건축박람회 2일전에 저희 '스타건축매니저의 내집짓기 특강'을 제주도에서 첫 개최할 예정이니 집 짓고싶어하시는 분들의 많은 참여 바랍니다.

이번 강연도 20분만 모시고 할 예정이니 공지 올라오면 바로 신청해주세요^^

제주도를 내려 갈 때마다 이국적인 풍경과 바닷내음으로 가슴설레임을 느낀답니다. 언젠가는 저도 제주도에 집을 짓고 살 날이 오겠죠?

오늘은 여기까지 입니다. 비도내리고 하니 파전에 막걸리 한잔~~

감사합니다.^^

*읽고 난 다음에는 위의 하트모양 라이킷과 공유 꾹 눌러주세용~^^


클로즈업.jpg (좌측부터) 이동혁 건축가, 임성재 건축가, 정다운 건축가


총괄 건축가 : 이동혁, 임성재, 정다운

설계·시공 : 홈트리오(주) 1522-4279

Homepage : http://hometrio.kr

이동혁건축가TV : http://tv.naver.com/sunsutu1

[집이라는 본질적인 가치에 집중하다.]


글쓴이 : 이동혁 건축가

이메일 : sunsutu@hanmail.net


상담 및 자문

이동혁 건축가 : 010-4567-8413

정다운 건축가 : 010-8560-0477

임성재 건축가 : 010-9941-8899