#52 '추억을 그리다.' 제주 한경면 86평 펜션설계

#52 목조 모던스타일 86평 펜션 설계제안

by 이동혁 건축가

제목 : #52 '추억을 그리다.' 제주 한경면 86평 펜션설계

소제목 : #52 목조 모던스타일 86평 펜션 설계제안


출발


안녕하세요. 이동혁 건축가 입니다.^^

가을날씨가 너무 좋네요.^^ 딱 놀러가기 좋은 날씨인 것 같습니다. 최근 제가 독서에 푹 빠져있는데요. 서정적인 글귀들이 계속 마음을 움직여주네요.

여러분들도 따뜻한 글귀가 있는 책 한 권 읽으시면서 마음의 힐링을 하시길 바라겠습니다.

오늘 소개시켜 드릴 설계안은 제주도 한경면에 지어질 펜션설계 안 입니다.

모던한 느낌과 유니크한 느낌이 공존하는 입면에 현대적인 느낌을 잘 녹여낸 내부 공간은 아마 펜션을 계획하고 계신 분들께는 많은 도움이 되지 않을까 생각됩니다.^^

자 그럼 오늘도 출발해 보겠습니다.

*읽고 난 다음에는 위의 하트 모양 라이킷과 공유 꾹 눌러주세용~^^


thumbnail.JPG

HOUSE PLAN

연면적 : 285.75㎡

연면적A/B : 199.35㎡ / 86.40㎡

1층A : 107.06㎡

1층B : 57.60㎡

2층A : 92.29㎡

2층B : 58.80㎡

규모 : 지상 2층

총괄 건축가 : 이동혁, 임성재, 정다운

설계·시공 : 홈트리오(주) 1522-4279

Homepage : http://hometrio.kr

이동혁건축가TV : http://tv.naver.com/sunsutu1

예상 총 건축비 : 750,000,000원(부가세포함)

설계비 및 인허가비 : 24,000,000(부가세포함)

*건축비 외 부대비용 : 대지구입비, 가구(싱크대, 신발장, 붙박이장), 기반시설인입(수도,전기,가스 등), 토목공사, 조경비 등


SPEC

공법 : 기초-철근콘크리트 / 1층, 2층 구조-목조

지붕마감재 : 아스팔트슁글

외벽마감재 : 스타코플렉스

외벽포인트자재 : 파벽돌, 리얼징크

실내벽마감재 : 실크벽지

실내바닥마감재 : 강마루

창호재 : 융기 3중 시스템창호

단열재 : 외부벽체(Glasswool Insulation R21HD-15" 나등급)

▷크나우프社 ECOBATT (ECOSE® 특허)

▷HD:저에너지 하우스용 / 15인치(381mm) *동등 제품

: 내부벽체(Glasswool Insulation R19-15" 다등급)

: 천장(Glasswool Insulation R30-15" 다등급)

: 지붕(Glasswool Insulation R37-23" 가등급) ▷ISOVER社에너지세이버

*단열기준은 2016년 7월1일자로 변경되는 단열기준법을 적용하여 강화시켜 놓았습니다.

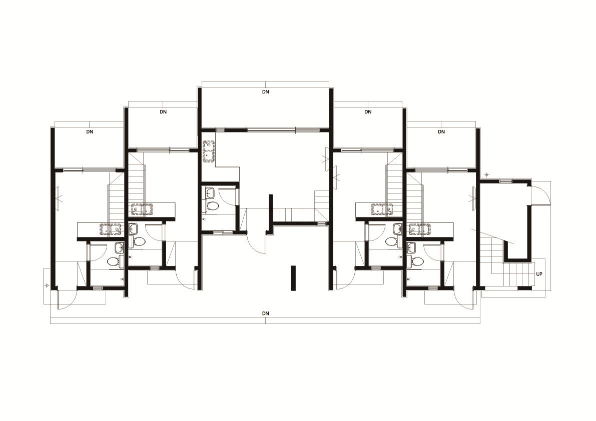
1층평면도.jpg 1층 평면도
1층다락평면도.jpg 1층 다락평면도
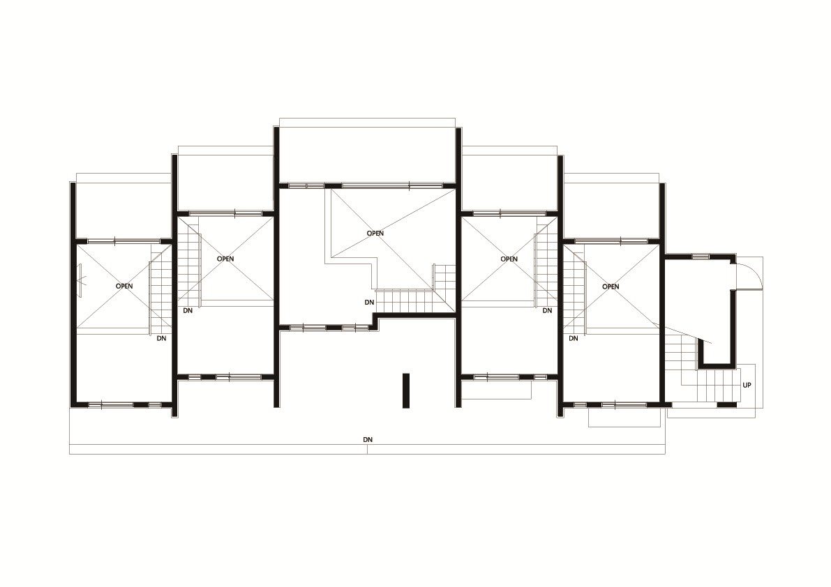
2층평면도.jpg 2층 평면도
2층다락평면도.jpg 2층 다락평면도

Q.설계 방향에 대해 설명해주세요.

이번 설계방향의 테마는 '추억을 그리다.' 입니다. 너무 테마가 추상적인가요?^^;

제주도에 여행을 가게되면 푸르른 하늘과 이국적인 분위기... 그리고 무언가 포근한 느낌. 아무곳에서나 사진을 찍어도 이쁘게 나오고 마치 한국이 아닌 해외에 나와있는 듯한 느낌을 받을때가 많답니다.

이러한 여행의 추억을 온전히 담고 행복한 기억만을 남길 수 있도록 이번 설계를 진행할때 공간 요소요소 재미있는 요소들을 많이 담아내었답니다.^^


Q.면적은 얼마나 되는가요?

총 86평 2층(285.75㎡)으로 계획되어졌으며, 1층 164.66㎡(50평), 2층 121.09㎡(36평)으로 설계되어졌습니다. 각 공간별로 프라이빗한 공간을 만들어 낼 수 있도록 동선을 계획하였으며, 외부 발코니를 통해 공간의 개방성을 확보할 수 있도록 하였습니다.^^


Q.비용은 얼마가 들었나요?

총 750,000,000원이 소요될 것으로 판단됩니다. 부가세가 포함된 가격이며, 순수한 건축비입니다. 설계비는 24,000,000원이 소요되어졌습니다. 이는 부가세 포함 가격이며, 인허가 및 사용승인 비용도 포함된 금액입니다.


Q.제주도도 건축비가 같나요?

제주도의 경우 인건비 및 장비대, 그리고 물류 이동비 상승으로 인해 10%의 할증이 있습니다. ㅠㅠ

양해 부탁드립니다.


Q.지붕형 발코니의 경우 건축비가 어떻게 되나요?

목조주택에 발코니를 설치할 때에는 필수적으로 지붕을 씌워줘야 합니다. 직사광선을 피하셔야 하며, 발코니 위에 지붕을 시공하여 혹시모를 누수에 대비하셔야 합니다. 간혹 지붕이 없는 것이 이쁘다고 무조건 해 달라고 하시는 분들이 계신데 이는 위험한 행동입니다. ^^;

건축가가 지붕을 없애도 된다고 하여도 우리 구독자 여러분들은 꼭 지붕을 씌워 달라고 요청하셔야 합니다.^^

지붕형 발코니의 경우 평당단가로 따졌을 때 260만원(부가세포함)으로 진행되며, 내부 마감까지 포함된 금액입니다.


Q.주차장 계획은 꼭 해야 하나요?

주차장의 경우 인허가 단계에서 필수로 들어가야 하는 건축 사항입니다.

많은분들이 준공단계에서 주차장을 만들어 놓았다가 추후 마당으로 그냥 쓰시는데 사용 자체에는 문제가 없지만 추후 민원이 들어갔을 때에 벌금 및 원상복구 명령이 떨어질 수 있으므로 남의 집에서 주차장을 안했다고 하여 내 집에도 안하는 일은 없으셔야 합니다.^^


Q.설계기간 및 시공기간은 얼마나 걸릴까요?

설계기간은 인허가 포함 3달 정도를 잡는 것이 여유로우며, 시공기간은 착공일로부터 3.5개월을 잡는 것이 좋습니다. 사용승인(준공)까지 포함된 기간입니다. 제주도의 경우 인허가 당시 심의를 필수적으로 받아야 하므로 설계 및 인허가기 기간을 5개월 정도로 충분히 잡은 후 착공일자를 잡으시는 것이 유리합니다.^^

제주도 인허가가 전국에서 가장 힘든 지역 1위 입니다. 한번 심의가 보류되면 2주라는 시간이 소비되므로 꼭 설계기간을 넉넉히 잡고 움직이세요.


Q.마지막 총평을 한다면?

펜션을 설계 할 때 가장 중점적으로 생각하는 것이 프라이버시 입니다. 여러 사람이 함께 사용하는 공간인 만큼 공간 및 동선을 얽히지 않게 배치해야 합니다.

또한 개방감도 매우 중요합니다. 실재로 조망권에 따라 객실 임대 비용이 다른 만큼 최대한 많은 방들의 조망권을 확보하도록 해야합니다.^^

펜션을 구상하시는 분들께서 저희에게 상담받으러 오시면 정말 다양한 아이디어와 생각들로 건축을 구상하십니다. 또한 유행하는 여러 자재와 좋다라고 하는 자재들은 모두 투입을 하길 원하십니다.

펜션을 지을 때는 좋은 자재들로 훌륭하게 짓는 것도 좋지만 제 생각에는 현재 가진 예산안에서 적은 대출금으로 짓는 것이 가장 좋다고 생각합니다.

그렇다보니 펜션을 설계할 때는 무언가를 더하기 보다는 생각하시는 아이디어들을 줄이는 일부터 시작한답니다. 생각을 정리한 후 설계가 진행되어야 너무 많은 낭비를 줄일 수 있기 때문입니다.^^

정면도.jpg 정면도
좌측면도.jpg 좌측면도
우측면도.jpg 우측면도
배면도.jpg 배면도
지붕평면도.jpg 지붕평면도
제주-청수리투시도-ART2.jpg
제주-청수리투시도-ART3.jpg
제주-청수리투시도-ART4.JPG

도착


86평 제주도 한경면에 지어질 펜션 설계안. 어떠셨나요?

최근들어 제주도 지역 건축문의가 많이 들어오고 있습니다. 그만큼 건축에 대한 열기가 뜨겁다는 것을 말해주는 것이겠지요.

특히 전원주택보다 펜션이나 리조트같은 숙박과 관련된 문의가 주를 이루고 있습니다.

제주도의 경우 섬이라는 특수성과 내륙지방보다 따뜻한 기후때문에 일반적인 건축물 형태보다는 조금은 유니크하면서 개방감을 극대화 하는 형태의 입면을 많이 디자인하고 있습니다.

이번 펜션 설계의 경우 조망권을 최대한 확보 할 수 있도록 전면부 쪽을 최대한 개방할 수 있도록 창을 배치하였으며, 복층 구조 및 발코니 등을 다각도로 확용하여 매스의 입체감을 극대화 할 수 있도록 하였습니다.^^

제주도의 경우 인허가가 생각보다 길게 걸립니다. 심의기간이 생각보다 길게 소요될 수 있으므로 혹 제주도에 집이나 펜션을 생각하시는 분들은 인허가 기간을 조금 길게 잡고 진행하시는 것이 좋을듯 합니다.^^

오늘은 여기까지 입니다.^^

다음 시간에 더 좋은 설계기획안으로 찾아뵙겠습니다.

감사합니다.^^

*읽고 난 다음에는 위의 하트모양 라이킷과 공유 꾹 눌러주세용~^^


클로즈업.jpg (좌측부터) 이동혁 건축가, 임성재 건축가, 정다운 건축가


총괄 건축가 : 이동혁, 임성재, 정다운

설계·시공 : 홈트리오(주) 1522-4279

Homepage : http://hometrio.kr

이동혁건축가TV : http://tv.naver.com/sunsutu1

[집이라는 본질적인 가치에 집중하다.]


글쓴이 : 이동혁 건축가

이메일 : sunsutu@hanmail.net


상담 및 자문(홈트리오(주) 대표)

이동혁 건축가 : 010-4567-8413

정다운 건축가 : 010-8560-0477

임성재 건축가 : 010-9941-8899



keyword