#53 '가성비+디자인'여주 굴암리 43평 전원주택

#53 목조 모던스타일 43평 전원주택 설계제안

by 이동혁 건축가

제목 : #53 '가성비+디자인' 여주 굴암리 43평 전원주택

소제목 : #53 목조 모던스타일 43평 전원주택 설계제안


출발


안녕하세요. 이동혁 건축가 입니다.^^

날씨가... 날씨가 너무 좋습니다. ㅠㅠ 정말 일하던 것을 다 던져놓고 나가 놀고 싶은 마음이네요. 이런날은 운동장에서 뛰어놀아도 땀이 금방 식어 최고의 컨디션을 유지할 수 있을 것만 같습니다.^^;

이미 가을 착공을 들어가셨던 분들은 기초가 완료되고 골조가 한참 시공되고 있습니다. 엇! 하는 순간 집이 쭉쭉 올라가는데요. 다음달 말정도에는 집이 하나씩 완공될 것 같습니다.^^

오늘 소개시켜드릴 주택은 경기도 여주시 굴암리에 지어질 주택입니다. 모던함과 고즈넉함이 같이 공존하는 전원주택 모델로 가성비와 디자인을 모두 잡은 주택이라 할 수 있습니다.

청명한 가을하늘... 왠지 모를 가슴 두근거림을 안고 이번 주택설계안을 소개시켜드리겠습니다.^^

자 그럼 오늘도 출발해 보겠습니다.

*읽고 난 다음에는 위의 하트 모양 라이킷과 공유 꾹 눌러주세용~^^


thumbnail.jpg

HOUSE PLAN

연면적 : 143.94㎡

1층 : 82.84㎡

2층 : 61.10㎡

규모 : 지상 2층

총괄 건축가 : 이동혁, 임성재, 정다운

설계·시공 : 홈트리오(주) 1522-4279

Homepage : http://hometrio.kr

이동혁건축가TV : http://tv.naver.com/sunsutu1

예상 총 건축비 : 221,400,000원(부가세포함)

설계비 및 인허가비 : 10,750,000(부가세포함)

*건축비 외 부대비용 : 대지구입비, 가구(싱크대, 신발장, 붙박이장), 기반시설인입(수도,전기,가스 등), 토목공사, 조경비 등


SPEC

공법 : 기초-철근콘크리트 / 1층, 2층 구조-목조

지붕마감재 : 아스팔트슁글

외벽마감재 : 스타코플렉스

외벽포인트자재 : 파벽돌, 리얼징크, EPS몰딩

실내벽마감재 : 실크벽지

실내바닥마감재 : 강마루

창호재 : 융기 3중 시스템창호

단열재 : 외부벽체(Glasswool Insulation R21HD-15" 나등급)

▷크나우프社 ECOBATT (ECOSE® 특허)

▷HD:저에너지 하우스용 / 15인치(381mm) *동등 제품

: 내부벽체(Glasswool Insulation R19-15" 다등급)

: 천장(Glasswool Insulation R30-15" 다등급)

: 지붕(Glasswool Insulation R37-23" 가등급) ▷ISOVER社에너지세이버

*단열기준은 2016년 7월1일자로 변경되는 단열기준법을 적용하여 강화시켜 놓았습니다.

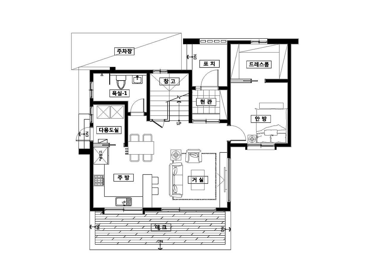
01-1층평면도.jpg 1층 평면도
02-2층평면도.jpg 2층 평면도

Q.설계 방향에 대해 설명해주세요.

이번 설계방향의 테마는 '가성비+디자인'입니다.^^ 모던한 입면에 전면 포인트를 리얼징크로 주어 마치 지붕이 리얼징크로 마감된 듯한 느낌을 줍니다.

하지만 이번 모델은 전면부 포인트만 리얼징크로 마감되었으며, 지붕은 같은색 계열의 아스팔트 슁글로 시공되어졌습니다. 많은분들이 유지관리 측면때문에 징크로 지붕을 많이 마감하시는데 솔직히 지붕재 다 날라가도 아래에 방수층이 따로 있어 누수에는 큰 영향을 끼치지는 않습니다.^^; 물론 시공이 FM대로 이루어졌다라는 가정이 기본으로 깔려야 합니다.

거실의 1층 부분은 무게감을 주기위해 고벽돌 스타일의 파벽돌을 선택하였는데요. 무게감 있는 포인트와 차가운 느낌의 징크가 만나 오묘한 느낌을 주는 전원주택이 탄생한 것 같습니다.^^


Q.면적은 얼마나 되는가요?

총 43평 2층(143.94㎡)으로 계획되어졌으며, 1층 82.84㎡(25평), 2층 61.10㎡(18평)으로 설계되어졌습니다. 거실과 주방을 한 섹터안에 두어 최대한 넓은 공간으로 보일 수 있도록 설계하였으며, 현관을 위쪽으로 두어 주차장에서 바로 차를 세우고 집 안으로 들어올 수 있도록 하였습니다.

거실 앞에는 전창을 두어 바로 데크와 앞 마당으로 뛰어나갈 수 있도록 공간 확장성을 확보해 주었으며, 2층 발코니를 별도로 계획하여 2층에서 1층으로 내려오지 않더라도 밤하늘의 별을 보며 차 한잔의 여유를 즐길 수 있도록 하였습니다.^^


Q.비용은 얼마가 들었나요?

총 221,400,000원이 소요될 것으로 판단됩니다. 부가세가 포함된 가격이며, 순수한 건축비입니다. 설계비는 10,750,000원이 소요되어졌습니다. 이는 부가세 포함 가격이며, 인허가 및 사용승인 비용도 포함된 금액입니다.


Q.리얼징크의 두께는 어떻게 되나요?

저희가 사용하고 있는 리얼징크의 경우 0.5T를 사용하고 있습니다. 0.7T도 있지만 시공비가 올라가고 생각보다 마감이 잘 떨어지지 않는 문제가 있어 가장 하자가 적은 0.5T를 사용하고 있습니다. 0.3T의 경우 너무 얇아 꿀렁거리는 휘어짐이 눈에 잘 보이므로 가급적이면 저희들처럼 0.5T이상을 사용하시는 것이 좋습니다.^^


Q.지붕형 발코니의 경우 건축비가 어떻게 되나요?

목조주택에 발코니를 설치할 때에는 필수적으로 지붕을 씌워줘야 합니다. 직사광선을 피하셔야 하며, 발코니 위에 지붕을 시공하여 혹시모를 누수에 대비하셔야 합니다. 간혹 지붕이 없는 것이 이쁘다고 무조건 해 달라고 하시는 분들이 계신데 이는 위험한 행동입니다. ^^;

건축가가 지붕을 없애도 된다고 하여도 우리 구독자 여러분들은 꼭 지붕을 씌워 달라고 요청하셔야 합니다.^^

지붕형 발코니의 경우 평당단가로 따졌을 때 260만원(부가세포함)으로 진행되며, 내부 마감까지 포함된 금액입니다.


Q.주차장 계획은 꼭 해야 하나요?

주차장의 경우 인허가 단계에서 필수로 들어가야 하는 건축 사항입니다.

많은분들이 준공단계에서 주차장을 만들어 놓았다가 추후 마당으로 그냥 쓰시는데 사용 자체에는 문제가 없지만 추후 민원이 들어갔을 때에 벌금 및 원상복구 명령이 떨어질 수 있으므로 남의 집에서 주차장을 안했다고 하여 내 집에도 안하는 일은 없으셔야 합니다.^^


Q.설계기간 및 시공기간은 얼마나 걸릴까요?

설계기간은 인허가 포함 3달 정도를 잡는 것이 여유로우며, 시공기간은 착공일로부터 3.5개월을 잡는 것이 좋습니다. 사용승인(준공)까지 포함된 기간입니다. 제주도의 경우 인허가 당시 심의를 필수적으로 받아야 하므로 설계 및 인허가기 기간을 5개월 정도로 충분히 잡은 후 착공일자를 잡으시는 것이 유리합니다.^^

제주도 인허가가 전국에서 가장 힘든 지역 1위 입니다. 한번 심의가 보류되면 2주라는 시간이 소비되므로 꼭 설계기간을 넉넉히 잡고 움직이세요.


Q.마지막 총평을 한다면?

박스형 주택의 장점이 무엇일까요? 제가 생각하기에는 디자인적인 면도 있겠지만 더 큰 장점은 데드스페이스 없이 최대한 많은 면적을 사용할 수 있다라는 것일 겁니다.

'ㄱ'자형이나 'ㄷ'자형의 갤러리 타입의 평면의 경우 실과 실을 연결하는 복도라는 공간이 필수적으로 필요하여 생각보다 이동공간만으로 소요되는 공간이 많습니다.

대신 개방감이나 확장성면에서는 박스형 평면보다는 이점이 클 것입니다.^^

박스형이라고 무조건 기피할 것이 아니라 내가 가진 대지의 면적과 마당을 얼마만큼 확보할 것인지에 따라 설계를 진행하시기 바라겠습니다.^^

감사합니다.

04-정면도.jpg 정면도
07-좌측면도.jpg 좌측면도
05-우측면도.jpg 우측면도
06-배면도.jpg 배면도
03-지붕평면도.jpg 지붕평면도
투시 1.jpg
투시 2.jpg
투시 3.jpg

도착


43평 여주 강천면 굴암리에 지어질 전원주택 설계안. 어떠셨나요?

모던한 느낌의 이번 주택은 젊은 건축주님의 라이프스타일이 잘 녹아든 모델이라 생각합니다. 최근들어 심플하면서 단조로운 입면이 트렌드로 자리잡아 가고 있는데요. 개인적으로 저도 젊다보니 군더더기 없는 스타일이 더 끌리는 것 같습니다.^^

이번 모델은 리얼징크와 고벽돌 스타일의 파벽돌을 믹스&매치 시켜 고급스러우면서도 차가운 모던 감성을 같이 느낄 수 있도록 설계하였습니다.

집이란 항상 말씀드리지만 남의 눈치를 보고 짓는 것이 아니라 내가 원하는 요소를 담고 현재 가진 예산안에서 짓는 것이 가장 좋다고 이야기드립니다.

인터넷에 보면 참 좋은 자재들도 많고 이쁜 집들도 많죠? 좋은 것을 다 하기 보다는 가성비가 높은 자재를 선택하고 돈을 들여야 할 곳과 줄여야 할 곳을 파악하여 균등하게 비용을 배분하는 것이 가장 효과적입니다.^^

벌써 내년 봄 공사를 준비하시는 분들이 설계를 스타트하였습니다. 아직 스타트를 못 끊으신 분들은 어서 설계부터 시작하시길 바랍니다. 3개월 정도의 설계와 인허가 기간이 필요하므로 내년 2월 중순에 착공에 들어가실려면 스케줄을 잘 잡고 움직이시길 바라겠습니다.

날씨가 요즘 너무 좋습니다.^^

너무 집 짓는 것 때문에 스트레스 받지 마시고 가족분들과 같이 주변 산책을 나가는 여유정도는 가지시면서 집 짓기 준비를 하길 바라겠습니다.

감사합니다.^^

*읽고 난 다음에는 위의 하트모양 라이킷과 공유 꾹 눌러주세용~^^


11.jpg (좌측부터) 정다운 건축가, 임성재 건축가, 이동혁 건축가

총괄 건축가 : 이동혁, 임성재, 정다운

설계·시공 : 홈트리오(주) 1522-4279

Homepage : http://hometrio.kr

이동혁건축가TV : http://tv.naver.com/sunsutu1


글쓴이 : 이동혁 건축가

이메일 : sunsutu@hanmail.net


상담 및 자문(홈트리오 대표)

이동혁 건축가 : 010-4567-8413

정다운 건축가 : 010-8560-0477

임성재 건축가 : 010-9941-8899



keyword