#58 '3세대가 웃는 집'116평 전원주택 설계 제안

#58 목조 클래식 스타일 116평 전원주택 설계 제안

by 이동혁 건축가

제목 : #58 '3세대가 웃는 집' 116평 전원주택 설계 제안

소제목 : #58 목조 클래식 스타일 116평 전원주택 설계 제안


출발


안녕하세요. 이동혁 건축가 입니다.^^

오늘 이야기 드릴 주택은 쪼~금은 큰 평수대의 주택입니다. 저희가 설계할 때에도 일반적으로 보기가 힘든 평면으로 설계가 완성되었답니다.^^;

평수는 바로 1층과 2층을 합친 총면적 116평으로 설계가 되었습니다. 3세대가 같이 거주 가능한 공간 구성으로 진행되었으며, 클래식하지만 따뜻한 느낌으로 통일성 있게 설계가 되었습니다.

외관에서 볼 때는 일체화된 단층처럼 보이지만 실 내부 구성은 2층으로 알차게 구성되었습니다.^^

자 그럼 오늘도 출발해 보겠습니다.

*읽고 난 다음에는 위의 하트 모양 라이킷과 공유 꾹 눌러주세용~^^


thumbnail.jpg


HOUSE PLAN

연면적 : 382.35㎡

1층 : 277.26㎡

2층 : 105.09㎡

규모 : 지상 2층

설계·시공 : 홈트리오(주) 1522-4279

Homepage : http://hometrio.kr

이동혁건축가TV : http://tv.naver.com/sunsutu1

예상 총 건축비 : 570,000,000원(부가세포함)

설계비 및 인허가비 : 29,000,000(부가세포함)

*건축비 외 부대비용 : 대지구입비, 가구(싱크대, 신발장, 붙박이장), 기반시설인입(수도,전기,가스 등), 토목공사, 조경비 등


SPEC

공법 : 기초-철근콘크리트 / 1층, 2층 구조-목조

지붕마감재 : 아스팔트슁글

외벽마감재 : 스타코플렉스

외벽포인트자재 : 파벽돌, 적삼목사이딩

실내벽마감재 : 실크벽지

실내바닥마감재 : 강마루

창호재 : 융기 3중 시스템창호

단열재 : 외부벽체(Glasswool Insulation R21HD-15" 나등급)

▷크나우프社 ECOBATT (ECOSE® 특허)

▷HD:저에너지 하우스용 / 15인치(381mm) *동등 제품

: 내부벽체(Glasswool Insulation R19-15" 다등급)

: 천장(Glasswool Insulation R30-15" 다등급)

: 지붕(Glasswool Insulation R37-23" 가등급) ▷ISOVER社에너지세이버

*단열기준은 2016년 7월1일자로 변경되는 단열기준법을 적용하여 강화시켜 놓았습니다.

1층평면도.jpg 1층 평면도
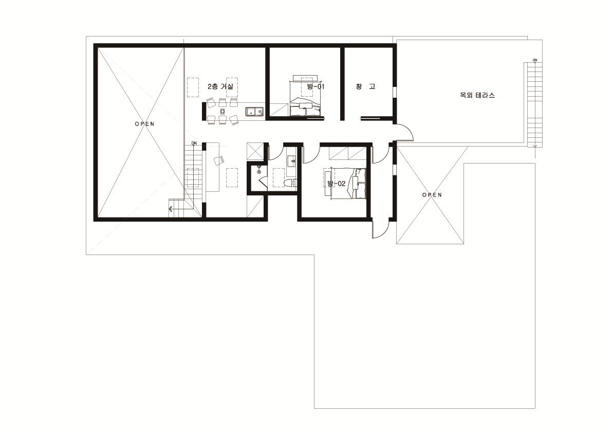
2층평면도.jpg 2층 평면도


Q.설계 방향에 대해 설명해주세요.

이번 설계 방향의 테마는 '3세대가 웃는 집'입니다. 외관상으로는 한 집처럼 보이지만 총 3세대가 거주 가능하도록 실 내부를 구성하였습니다.

클래식한 느낌으로 기본 외관을 구성하고 현대적인 느낌으로 내부를 완성하여 전원주택에 대한 감성과 현대적인 편리함을 모두 가지고 갈 수 있게 하였습니다.

거실 부분은 오픈 천장을 통해 개방감을 극대화할 수 있게 하였으며, 각 세대 공간별로 거실을 별도로 배정하여 개인적인 휴식을 취할 수 있도록 배려하였습니다.


Q.면적은 얼마나 되는가요?

총 116평 2층(382.35㎡)으로 계획되어졌으며, 1층 277.26㎡(84평), 2층 105.09㎡(32평)으로 설계되어졌습니다.


Q.비용은 얼마가 들었나요?

총 570,000,000원이 소요될 것으로 판단됩니다. 부가세가 포함된 가격이며, 순수한 건축비입니다. 설계비는 29,000,000원이 소요되어졌습니다. 이는 부가세 포함 가격이며, 인허가 및 사용승인 비용도 포함된 금액입니다.


Q.외벽 스타코플렉스의 색깔을 변경할 때 비용이 추가되나요?

그렇지는 않습니다. 외벽 스타코플렉스 색깔은 다양하게 변경 가능하며, 색을 변경한다고 해서 추가가 되는 것이 아니니 이번 주택처럼 외벽의 색 변화만으로도 다양한 이미지가 연출 가능하답니다.^^


Q.지붕형 발코니의 경우 건축비가 어떻게 되나요?

목조주택에 발코니를 설치할 때에는 필수적으로 지붕을 씌워줘야 합니다. 직사광선을 피하셔야 하며, 발코니 위에 지붕을 시공하여 혹시 모를 누수에 대비하셔야 합니다. 간혹 지붕이 없는 것이 이쁘다고 무조건 해 달라고 하시는 분들이 계신데 이는 위험한 행동입니다. ^^;

건축가가 지붕을 없애도 된다고 하여도 우리 구독자 여러분들은 꼭 지붕을 씌워 달라고 요청하셔야 합니다.^^

지붕형 발코니의 경우 평당 단가로 따졌을 때 260만 원(부가세 포함)으로 진행되며, 내부 마감까지 포함된 금액입니다.


Q.주차장 계획은 꼭 해야 하나요?

주차장의 경우 인허가 단계에서 필수로 들어가야 하는 건축 사항입니다.

많은 분들이 준공단계에서 주차장을 만들어 놓았다가 추후 마당으로 그냥 쓰시는 데 사용 자체에는 문제가 없지만 추후 민원이 들어갔을 때에 벌금 및 원상복구 명령이 떨어질 수 있으므로 남의 집에서 주차장을 안 했다고 하여 내 집에도 안 하는 일은 없으셔야 합니다.^^


Q.설계기간 및 시공기간은 얼마나 걸릴까요?

설계기간은 인허가 포함 3달 정도를 잡는 것이 여유로우며, 시공기간은 착공일로부터 3.5개월을 잡는 것이 좋습니다. 사용승인(준공)까지 포함된 기간입니다. 제주도의 경우 인허가 당시 심의를 필수적으로 받아야 하므로 설계 및 인허가기 기간을 5개월 정도로 충분히 잡은 후 착공일자를 잡으시는 것이 유리합니다.^^

제주도 인허가가 전국에서 가장 힘든 지역 1위입니다. 한번 심의가 보류되면 2주라는 시간이 소비되므로 꼭 설계기간을 넉넉히 잡고 움직이세요.


Q.마지막 총평을 한다면?

이번주택은 제가 기획했던 단일 설계 안 중 가장 큰 평수에 속하지 않을까 생각됩니다. 보통 100평이 넘어가는 주택의 경우 매스 분절과 모던한 느낌으로 많이 디자인되는데 이번 주택 설계안은 이러한 고정관념에서 벗어나 통일성과 일체화라는 테마 아래 기획이 되었습니다.

한 집처럼 보이지만 공간적으로 분할되어 가족들과 같이 생활하기에 적합하게 설계하였으며, 혹 세를 줄 수도 있기 때문에 3세대 중 1세대는 현관 자체를 분리하여 독립적인 생활이 가능하도록 하였습니다.

정면도.jpg 정면도
좌측면도.jpg 좌측면도
우측면도.jpg 우측면도
배면도.jpg 배면도
지붕평면도


도연주님-투시도-2.jpg
도연주님-투시도-3.jpg
도연주님-투시도-4.jpg


도착


116평 '3세대가 거주 가능한 전원주택' 설계안. 어떠셨나요?

외관에서 보았을 때는 단층 주택일 거라 생각했는데 실제 평면을 보니 넓은 공간이어서 놀라시지는 않았나요?^^; 이번 주택은 하나의 주택처럼 통일감 있게 보이되 내부 구성을 짜임새 있게 하여 다양한 공간적 아이디어를 넣는 것에 초점을 맞추어 설계가 진행되었답니다.

각 세대별로 프라이버시가 보존되고 유지될 수 있도록 동선을 얽히지 않게 배치하였으며, 1 세대의 경우 현관 자체를 분리하여 완전한 독립을 유지할 수 있게 하였습니다.

집이란 참 재미있는 것 같습니다. 매번 새로운 아이디어가 나오고 독특한 디자인이 만들어진답니다.

이제 9년 차가 된 저희로서는 앞으로 해 나가야 할 일이 많다고 생각합니다.

현재에 안주하지 않고 조금씩 조금씩 한 발짝 정직하게 전진해 나가도록 하겠습니다.

감사합니다.^^

*읽고 난 다음에는 위의 하트모양 라이킷과 공유 꾹 눌러주세용~^^


KakaoTalk_20161025_150013244.jpg (좌측부터) 정다운 건축가, 임성재 건축가, 이동혁 건축가


설계·시공 : 홈트리오(주) 1522-4279

Homepage : http://hometrio.kr

이동혁건축가TV : http://tv.naver.com/sunsutu1

[집이라는 본질적인 가치에 집중하다.]


글쓴이 : 이동혁 건축가

이메일 : sunsutu@hanmail.net


상담 및 자문(홈트리오(주) 대표)

이동혁 건축가 : 010-4567-8413

정다운 건축가 : 010-8560-0477

임성재 건축가 : 010-9941-8899



keyword