#59 '절제된 모던함' 나주 30평 전원주택 설계

#59 전남 나주 목조 모던스타일 30평 전원주택 설계 제안

by 이동혁 건축가

제목 : #59 '절제된 모던함' 나주 30평 전원주택 설계

소제목 : #59 전남 나주 목조 모던스타일 30평 전원주택 설계제안


출발


안녕하세요. 이동혁 건축가 입니다.^^

오늘 아침 뉴스를 보니 서울에 한파주의보가 내렸더군요. 아침 출근할 때 차를 끌고 오는데 차도 추운지 덜덜거림이 유달리 심해진 듯한 느낌을 받네요. ㅠㅠ

본격적으로 길도 빙판이 되는 시점인 만큼 우리 구독자 여러분들도 운전하실 때 항상 조심히 운전하시길 바라겠습니다.^^

오늘은 절제된 디자인의 모던 주택을 소개하여 드릴까 합니다. 전남 나주 빛가람동에 2017년 건축 예정인 주택이며, 주변의 환경과 자연스럽게 녹아들면서 높은 가성비를 가지고 간 주택입니다.

모던 주택 하면 징크나 다양한 마감재를 사용하여 박스형으로 짓는 것을 뜻하는데 최근 들어 클래식과 여러 가지를 혼합한 디자인을 모던 스타일에 접목시켜 획일적인 디자인이 아닌 다양한 느낌의 모던 스타일 주택이 탄생시키고 있습니다.

외관 이미지만 보더라도 마음이 뿌듯해지는 이번 주택. 어떻게 공간이 구성되었는지 궁금하시죠?

자 그럼 오늘도 출발해 보겠습니다.

*읽고 난 다음에는 위의 하트 모양 라이킷과 공유 꾹 눌러주세용~^^


thumbnail.jpg

HOUSE PLAN

연면적 : 99.87㎡

1층 : 73.17㎡

2층 : 26.70㎡

규모 : 지상 2층

총괄 건축가 : 이동혁, 임성재, 정다운

설계·시공 : 홈트리오(주) 1522-4279

Homepage : http://hometrio.kr

이동혁건축가TV : http://tv.naver.com/sunsutu1

예상 총 건축비 : 168,000,000원(부가세포함)

설계비 및 인허가비 : 7,500,000(부가세포함)

*건축비 외 부대비용 : 대지구입비, 가구(싱크대, 신발장, 붙박이장), 기반시설인입(수도,전기,가스 등), 토목공사, 조경비 등


SPEC

공법 : 기초-철근콘크리트 / 1층, 2층 구조-목조

지붕마감재 : 아스팔트슁글

외벽마감재 : 스타코플렉스

외벽포인트자재 : 파벽돌, 리얼징크, 적삼목사이딩

실내벽마감재 : 실크벽지

실내바닥마감재 : 강마루

창호재 : 융기 3중 시스템창호

단열재 : 외부벽체(Glasswool Insulation R21HD-15" 나등급)

▷크나우프社 ECOBATT (ECOSE® 특허)

▷HD:저에너지 하우스용 / 15인치(381mm) *동등 제품

: 내부벽체(Glasswool Insulation R19-15" 다등급)

: 천장(Glasswool Insulation R30-15" 다등급)

: 지붕(Glasswool Insulation R37-23" 가등급) ▷ISOVER社에너지세이버

*단열기준은 2016년 7월1일자로 변경되는 단열기준법을 적용하여 강화시켜 놓았습니다.

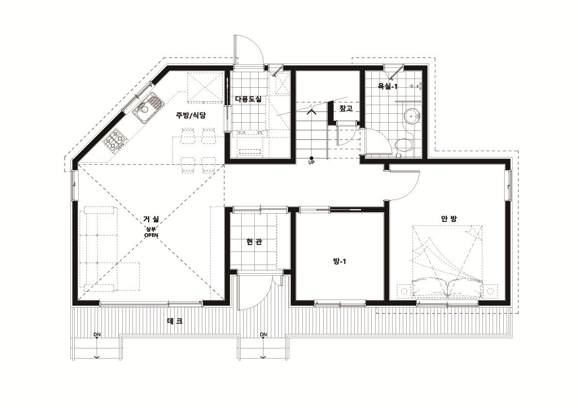
1층평면도.jpg 1층 평면도
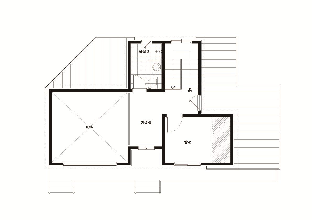
2층평면도.jpg 2층 평면도


Q.설계 방향에 대해 설명해주세요.

이번 설계 방향의 테마는 '절제된 모던함'입니다.^^ 외장 포인트를 최대한 자재하면서 지붕에 리얼징크로 포인트를 주어 절제된 듯한 느낌의 모던 스타일 전원주택을 탄생시킬 수 있었습니다.

외장재를 화이트톤의 깔끔한 스타코플렉스 마감으로 집의 안정감과 차분히 가라앉는 고즈넉함을 동시에 입혀주었으며, 무게감 있는 블랙톤의 리얼징크 지붕 마감으로 집의 전반적인 밸런스를 잡아주어 심플하면서 유니크한 모던 스타일 전원주택으로 설계를 유도하였습니다.^^


Q.면적은 얼마나 되는가요?

총 30평 2층(99.87㎡)으로 계획되어졌으며, 1층 73.17㎡(22평), 2층 26.70㎡(8평)으로 설계되어졌습니다.


Q.비용은 얼마가 들었나요?

총 168,000,000원이 소요될 것으로 판단됩니다. 부가세가 포함된 가격이며, 순수한 건축비입니다. 설계비는 7,500,000원이 소요되어졌습니다. 이는 부가세 포함 가격이며, 인허가 및 사용승인 비용도 포함된 금액입니다.


Q.외벽 스타코플렉스의 색깔을 변경할 때 비용이 추가되나요?

그렇지는 않습니다. 외벽 스타코플렉스 색깔은 다양하게 변경 가능하며, 색을 변경한다고 해서 추가가 되는 것이 아니니 이번 주택처럼 외벽의 색 변화만으로도 다양한 이미지가 연출 가능하답니다.^^


Q.지붕형 발코니의 경우 건축비가 어떻게 되나요?

목조주택에 발코니를 설치할 때에는 필수적으로 지붕을 씌워줘야 합니다. 직사광선을 피하셔야 하며, 발코니 위에 지붕을 시공하여 혹시 모를 누수에 대비하셔야 합니다. 간혹 지붕이 없는 것이 이쁘다고 무조건 해 달라고 하시는 분들이 계신데 이는 위험한 행동입니다. ^^;

건축가가 지붕을 없애도 된다고 하여도 우리 구독자 여러분들은 꼭 지붕을 씌워 달라고 요청하셔야 합니다.^^

지붕형 발코니의 경우 평당 단가로 따졌을 때 260만 원(부가세 포함)으로 진행되며, 내부 마감까지 포함된 금액입니다.


Q.주차장 계획은 꼭 해야 하나요?

주차장의 경우 인허가 단계에서 필수로 들어가야 하는 건축 사항입니다.

많은 분들이 준공단계에서 주차장을 만들어 놓았다가 추후 마당으로 그냥 쓰시는 데 사용 자체에는 문제가 없지만 추후 민원이 들어갔을 때에 벌금 및 원상복구 명령이 떨어질 수 있으므로 남의 집에서 주차장을 안 했다고 하여 내 집에도 안 하는 일은 없으셔야 합니다.^^


Q.설계기간 및 시공기간은 얼마나 걸릴까요?

설계기간은 인허가 포함 3달 정도를 잡는 것이 여유로우며, 시공기간은 착공일로부터 3.5개월을 잡는 것이 좋습니다. 사용승인(준공)까지 포함된 기간입니다. 제주도의 경우 인허가 당시 심의를 필수적으로 받아야 하므로 설계 및 인허가기 기간을 5개월 정도로 충분히 잡은 후 착공일자를 잡으시는 것이 유리합니다.^^

제주도 인허가가 전국에서 가장 힘든 지역 1위입니다. 한번 심의가 보류되면 2주라는 시간이 소비되므로 꼭 설계기간을 넉넉히 잡고 움직이세요.


Q.마지막 총평을 한다면?

무게감과 모던한 느낌을 주기 위해 다양한 외장재를 적용하시는데요. 실질적으로 모던한 느낌을 배가 시켜주는 것은 전체적인 입면의 밸런스이지 고급 자재의 사용 유무는 아니랍니다.^^

이번 주택처럼 외장재를 화이트톤의 스타코플렉스로만 마감하고 지붕 쪽에서 무게감 있는 리얼징크로 마감하여 디자인한다면 큰 비용 지출 없이 가성비 높은 모던 주택을 탄생시킬 수 있답니다.

많은 분들이 스타코플렉스를 자주 보이는 자재이기 때문에 저렴한 자재라고 생각하시는데 스타코플렉스는 저렴한 자재는 아니랍니다.^^; 목조주택에 있어 크랙을 방지하고 누수 및 단열성능을 지속적으로 유지시켜 주는 역할을 하는 자재이니 만큼 안 이쁘다고 처음부터 비싼 마감재로 넘어가시지 말고 왜 이것을 사용하는지에 대한 부분부터 차근차근 검토해 나가시길 바라겠습니다.

감사합니다.^^


정면도.jpg 정면도
좌측면도.jpg 좌측면도
우측면도.jpg 우측면도
배면도.jpg 배면도
지붕평면도.jpg 지붕평면도
나주-빛가람동투시도-2.jpg 투시도-1
나주-빛가람동투시도-3.jpg 투시도-2
나주-빛가람동투시도-4.jpg 투시도-3


도착


30평 전남 나주 빛가람동에 지어질 전원주택 설계안. 어떠셨나요?

요즘 투시도를 그려드릴 때 다양한 외장재 색상을 적용하여 보여드리는데요. 자동차도 다양한 색상을 구비한 만큼 전원주택도 다양한 색감을 보여드려야 선택에 있어 더 편할 것 같다는 느낌이 들어서입니다.^^

최근 '집을 쇼핑하다.'라는 콘셉트로 [디엘건축디자인연구소] http://dldesignlab.com/ 를 오픈했는데요. 오픈하자마자 폭발적인 상담문의가 이루어지고 있네요. ^^ 많은 관심과 사랑 주신 모든 분들께 감사인사를 전합니다.

다음 달에는 새로운 모델 15개를 기획 중이며, 더 다양한 주택과 높은 가성비로 여러분들께 많은 혜택을 돌려 드릴 수 있도록 노력하겠습니다.

아! 최근 들어 '가설계' 문의가 많은데요. 저희들은 가설계는 별도로 진행하지 않습니다. 정말로 100% 신뢰가 있을 때 집을 지어야 서로 웃으면서 갈 수 있으며, 어설픈 목적하에 가설계를 그려드린다는 것은 결국 돈을 목적으로 가는 것 밖에 안 되기 때문에 가설계는 정중히 거절합니다.^^(저희 그렇게 가난하지 않아요. 정말 저희를 100% 믿지 못한다면 저희 쪽에서 먼저 계약을 거절하니 충분히 검토해보신 후에 저희에게 집을 맡기시길 바라겠습니다.^^)

오늘은 여기까지 입니다. 책 출간을 준비 중에 있다 보니 생각보다 브런치에 많은 시간을 못 쏟고 있네요. 좀 더 노력할 테니 미워하지 말아주세요. ㅠㅠ

감사합니다.^^

*읽고 난 다음에는 위의 하트모양 라이킷과 공유 꾹 눌러주세용~^^


KakaoTalk_20161025_150013244.jpg (좌측부터) 정다운 건축가, 임성재 건축가, 이동혁 건축가


설계·시공 : 홈트리오(주) 1522-4279

Homepage : http://hometrio.kr

이동혁건축가TV : http://tv.naver.com/sunsutu1

[집이라는 본질적인 가치에 집중하다.]


글쓴이 : 이동혁 건축가

이메일 : sunsutu@hanmail.net

이동혁건축가TV : http://tv.naver.com/sunsutu1


상담 및 자문(홈트리오(주) 대표)

이동혁 건축가 : 010-4567-8413

정다운 건축가 : 010-8560-0477

임성재 건축가 : 010-9941-8899



keyword