brunch

'금산에 핀 꽃 한송이' 53평 금산 전원주택 완공

#62 홈트리오 시공사례 - 건축비 : 40,400만 원

by 이동혁 건축가

*구독 버튼은 필수인 것 다들 아시죠^^

HC071-drone-0244(h).jpg

제목 : '금산에 핀 꽃 한송이' 53평 금산 전원주택 완공

소제목 : #62 홈트리오 시공사례 - 건축비 : 40,400만원


STORY

: 사랑하는 아내를 위한 선물.

여유롭고 넉넉한 공간의 내부를 구성하고 안정감 있는 외부 디자인을 더해 건축주님만을 위한 유니크한 주택을 탄생시켰습니다.


금산에 지어질 이번 주택은 꽃 한 송이가 예쁘게 피어나는 듯한 느낌으로 전체적인 설계 방향성을 잡아나갔으며, 유지관리적인 측면이 유리할 수 있도록 홈트리오만의 노하우를 곳곳에 녹여 적용하였습니다.


파벽돌과 징크의 조화. 그리고 박공지붕과 모임지붕의 믹스매치. 단순히 정면만 예쁜 것이 아닌 4면 어디에서 보아도 모든 모습이 예뻐 보일 수 있는 그러한 집으로 설계하였습니다.


하나씩 좀 뜯어볼게요. 일단 창문은 모든 창을 이건창호의 알루미늄 3중 시스템창호로 구성하였습니다.

이유요? 무조건 단열 때문에. 창호 브랜드에 대해서는 이미 다른 채널을 통해 충분히 이야기했으니 이곳에서는 이 정도로만 정리하겠습니다. 그냥 단열 부분은 최고의 브랜드와 최고의 자재를 빵빵하게 채워 넣어야 한다는 것만 기억하고 계시면 되세요. 단열 부분에서는 양보 없음. 많은 분들이 벽체 단열 때문에 춥다고 생각하시는데 생각보다 창문 잘못 달아서 추운 경우가 더 많다는 것을 알고 진행하셔야 합니다.


창문에 더해서 요즘에는 단열 블라인드까지 기본 적용하고 있어요. 보통 북쪽 창이나 작은 창에는 하지 않는데 거실 통창이나 주방창, 안방 창호 정도는 단열 블라인드(데어슈츠)를 적용하고 있습니다.


해외 주택 사진들을 보면 프레임 없는 유리가 거실과 주방으로 크게 구성되어 채광과 개방감이 극대화된 모습들을 많이 보는데요. 일단 목조 공법에서는 이러한 형태가 불가능합니다. 구조상으로 버틸 수 없거든요. 대부분 그렇게 디자인되는 집들은 철근콘크리트 공법입니다.


문제는 한국에는 해외와는 다르게 단열기준법이 워낙 강하게 되어있어 그러한 형태로 창문을 설계 시 열관류율 값을 못 맞추는 사태가 발생합니다. 또한 가장 중요한 부분이 남아있죠. 기성 사이즈 제품이 아니니 모두 주문제작을 넣어야 하는데 여러분들이 생각하는 금액 한도를 한참 넘어설 것입니다.


현실과 이상은 분명 다르다고 설명드리고 싶어요. 저희들도 정말 기업의 회장님들 집을 지어드릴 때가 있는데요. 그러한 집을 평당 단가로 환산한다면 대부분 평당 1900~2000만 원에 도달합니다. 그래야 여러분들이 생각하는 그런 해외주택의 느낌과 유니크한 느낌이 탄생하게 됩니다. 평당 1000만 원을 넘어가는 집은 일반인들이 지을 수 있는 범주는 분명 아니라고 생각합니다. 현실성 있는 금액대의 주택이라 말할 수 없거든요.


저희들은 설계와 시공을 모두 겸비하고 있다 보니 너무 잘 알아요. 단순 설계만 해서 시공에 넘기는 회사들은 건축비에 대한 책임이 없으니 건축비 상관없이 도면을 그릴 수 있겠지만 시공까지 책임을 져야 하는 저희들은 건축주님의 예산을 무시할 수 없거든요.


현실성 있게 지으세요. 그리고 현실을 빨리 인지하세요. 그래야 돈 때문에 덜 고생합니다.


이번 주택은 포치와 발코니가 유독 눈에 띄는 집입니다. 1층의 거실 앞 포치와, 2층의 지붕형 발코니는 비가 올 때 그 장점을 극대화하는 공간이라 할 수 있으며, 전원주택의 정취를 마음껏 즐길 수 있는 공간이라 평 하고 싶습니다.


목조주택은 옥상이 안되는 거 다들 알고 계시죠? 절대 안 됩니다. 비 새고 싶으신 분들만 옥상 만드세요.


2층 발코니도 똑같습니다. 일단 비가 바로 들어오지 못하게 지붕으로 덮어야 하며, 금액적 여유가 된다고 하면 창문을 설치하는 것이 좋습니다. 비는 원천적으로 차단해 버리는 것이 제일 좋거든요.


마지막으로 외장재에 목재는 아예 사용을 안 하고 있습니다. 2년 전까지만 해도 루나우드 정도는 사용을 했었는데 결국 외부에 곰팡이가 피는 문제가 발생하여 현재는 아예 사용을 안 하고 있습니다.


루나우드나 방부목은 물에 강한 자재입니다. 문제는 안에서 곰팡이가 피는 게 아니라 표면에 핀다는 게 문제죠. 오일스텐이나 기름칠을 주기적으로 하면서 관리를 해 줘야 하는데 이게 쉽지 않죠.


결국 곰팡이 피니 시공사 잘못이라 이야기가 나옵니다. 이 문제는 유튜브나 네이버 카페에서 너무 많이 회자되었던 이야기인 것 같아요. 결론은 그냥 안 쓰는 게 답이다.


저희들처럼 보수적으로 집을 설계하는 것이 무조건 정답이라고 생각하지 않습니다. 그러니 저희들의 설계 사례도 검토하시고 다른 회사의 사례들도 같이 검토하면서 장단점을 정확히 인지하신 뒤 여러분들의 집을 짓길 바라겠습니다.


SPEC

공법 : 경량목구조

설계, 시공 : 홈트리오(주) / 상담문의 : 1522-4279

ARTIST : 건축가 정다운, 임성재, 이동혁

홈페이지 : http://hometrio.kr/

지붕마감재 : 아스팔트슁글 / 외벽 마감재 : 스타코플렉스 / 포인트자재 : 파벽돌

실내벽마감재 : 실크벽지 / 실내바닥마감재 : 이건 강마루

창호재 : 이건 알루미늄 3중 시스템창호

건축면적 : 174.99㎡(1층 : 104.37㎡, 2층 : 70.62㎡)

예상 총 건축비 : 404,000,000원(부가세 포함, 산재보험료 포함 / 설계비, 인허가비, 구조계산 설계비 별도)

설계비 : 10,600,000원(부가세 포함) / 인허가비 : 5,300,000원(부가세 포함)

구조계산 설계비 : 5,300,000원(부가세 포함) / 인테리어 설계비 : 5,300,000원(부가세 포함)

*건축비 외 부대비용 : 대지구입비, 가구(싱크대, 신발장, 붙박이장), 기반시설 인입(수도, 전기, 가스 등), 토목공사, 조경비 등


HC071-대표님수정(로고).jpg (좌측부터) 이동혁 건축가, 임성재 건축가, 정다운 건축가

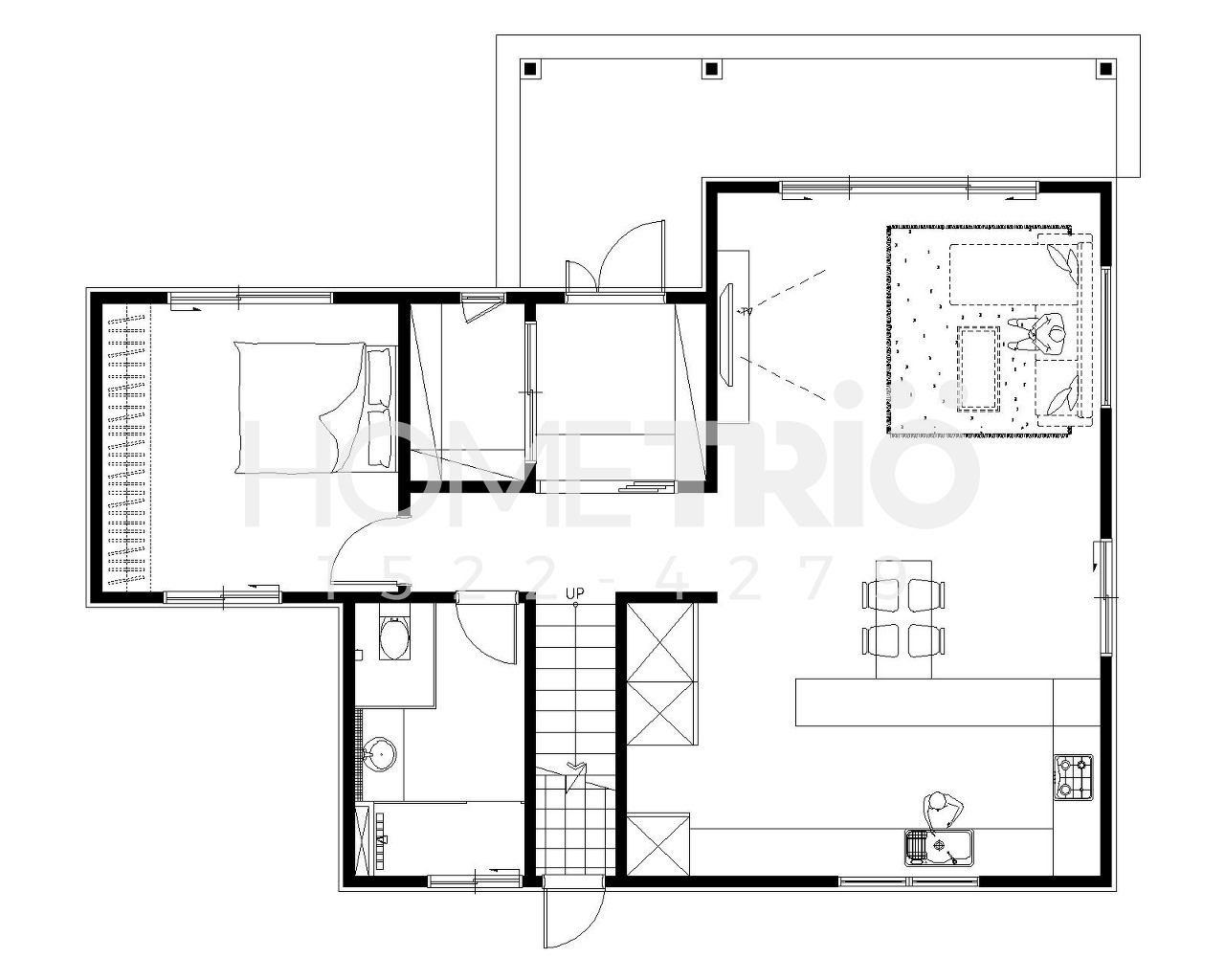
Floor Plan

1f.jpg 1층 평면도
2f.jpg 2층 평면도

이동혁 건축가 : 포치와 발코니가 확실한 포지션을 가지고 구성되었습니다. 단순 현관 진입이나 2층 바람 쐬기용이 아닌 앉아서 차를 마실 수 있고 활동을 영위할 수 있는 공간으로 설계를 진행하였습니다. 일반적으로 이러한 포치나 발코니를 잘 구성하지 않는 이유는 딱 하나입니다. 바로 '돈'인데요. 공짜가 아닌 건축비가 들어가는 공간이다 보니 초기 기획안에서는 많이 적용하지만 최종 마무리 단계에서는 많이 사라지는 것이 현실입니다. 이번 주택에서는 많은 협의 끝에 이 공간을 죽이지 않고 살렸는데요. 이 공간은 비가 올 때 특히 빛을 발하는 공간이 될 거라 의심치 않습니다.

정다운 건축가 : 지붕을 박공지붕과 모임지붕 두 가지 타입을 혼합 사용하였습니다. 1층에서는 안정감 있는 디자인을, 그리고 2층에서는 깔끔하면서 모던한 느낌을 동시에 느길 수 있게 디자인한 것입니다. 또한 스타코플렉스 톤 변화와 포인트 파벽돌 색상을 두 가지 혼합 사용하면서 건축주님의 취향과 디자인적인 저희들의 의견을 잘 일치시킨 모델이라 할 수 있습니다. 일반적인 집의 느낌이 아니라 유니크함을 만들어내고자 한 설계라 생각해 주시면 될 것 같습니다.

임성재 건축가 : 평면구성을 할 때 답답한 것을 싫어하시는 건축주님의 니즈에 따라 일반 스케일보다 크게 구성을 진행하였습니다. 53평이라는 넓은 실내면적에 비해 평면구성이 단순해 보인다 생각하실 텐데요. 그 이유는 공간 스케일 자체가 크게 크게 구성되었기 때문입니다. 거실과 주방에 사람의 인체 스케일을 배치해 놓았으니 그 기준으로 공간을 보신다면 이 공간이 얼마나 크게 구성되었는지를 쉽게 인지할 수 있을 거예요. 가족들이 모이는 집이기 때문에 거실을 2개 구성했습니다. 가족실이라는 명칭으로 많이 불리는데 이 공간이 있어야 자녀들이 편히 쉬다갈 수 있다는 것은 안 비밀입니다.


<외관>

HC071-drone-0244(h).jpg
HC071-7216(h).jpg
HC071-7219(h).jpg
HC071-7221(h).jpg
HC071-7222(h).jpg
HC071-7224(h).jpg
HC071-7226(h).jpg
HC071-7231(h).jpg
HC071-7233(h).jpg
HC071-7236(h).jpg
HC071-7240(h).jpg
HC071-7242(h).jpg
HC071-7244(h).jpg
HC071-7248(h).jpg
HC071-7250(h).jpg
HC071-7252(h).jpg
HC071-drone-0243(h).jpg
HC071-drone-0244(h).jpg
HC071-drone-0245(h).jpg
HC071-drone-0248(h).jpg

<현관>

HC071-7153(h).jpg
HC071-7155(h).jpg
HC071-7203(h).jpg
HC071-7208(h).jpg
HC071-7209(h).jpg
HC071-7213(h).jpg

<거실>

HC071-7148(h).jpg
HC071-7149(h).jpg
HC071-7152(h).jpg
HC071-7166(h).jpg
HC071-7168(h).jpg
HC071-7171(h).jpg
HC071-7172(h).jpg
HC071-7174(h).jpg
HC071-7177(h).jpg
HC071-7179.jpg
HC071-7181(h).jpg
HC071-7185(h).jpg

<주방>

HC071-7183(h).jpg
HC071-7188(h).jpg
HC071-7190(h).jpg
HC071-7192(h).jpg
HC071-7199(h).jpg
HC071-7202(h).jpg

<1층 화장실>

HC071-7159(h).jpg
HC071-7160(h).jpg
HC071-7163(h).jpg
HC071-7164(h).jpg

<1층 방>

HC071-7131(h).jpg
HC071-7134(h).jpg
HC071-7136(h).jpg
HC071-7137(h).jpg
HC071-7140(h).jpg
HC071-7141(h).jpg
HC071-7143(h).jpg
HC071-7145(h).jpg

<계단실>

HC071-7113(h).jpg
HC071-7115(h).jpg
HC071-7116(h).jpg
HC071-7119(h).jpg
HC071-7122(h).jpg
HC071-7123(h).jpg
HC071-7130(h).jpg

<2층 거실>

HC071-7022(h).jpg
HC071-7025(h).jpg
HC071-7027(h).jpg
HC071-7029(h).jpg
HC071-7032(h).jpg
HC071-7034(h).jpg
HC071-7036(h).jpg
HC071-7038(h).jpg
HC071-7039(h).jpg
HC071-7043(h).jpg
HC071-7061(h).jpg

<2층 취미방>

HC071-7046(h).jpg
HC071-7048(h).jpg
HC071-7049(h).jpg
HC071-7051(h).jpg
HC071-7053(h).jpg
HC071-7055(h).jpg
HC071-7058(h).jpg
HC071-7059(h).jpg

<2층 작은방>

HC071-7063(h).jpg
HC071-7066(h).jpg
HC071-7067(h).jpg
HC071-7069(h).jpg
HC071-7071(h).jpg
HC071-7074(h).jpg
HC071-7075(h).jpg
HC071-7078(h).jpg

<2층 베란다>

HC071-7080(h).jpg
HC071-7082(h).jpg
HC071-7083(h).jpg
HC071-7086(h).jpg
HC071-7089(b).jpg
HC071-7091(h).jpg
HC071-7094(h).jpg
HC071-7095(h).jpg
HC071-7098(h).jpg

<2층 화장실>

HC071-7100(h).jpg
HC071-7101(h).jpg
HC071-7104(h).jpg
HC071-7107(h).jpg
HC071-7108(h).jpg
HC071-7110(h).jpg



홈트리오 조직 계열도.jpg
프로필 통합본.jpg

[집이라는 본질적인 가치에 집중하다.]

Architecture Team : 홈트리오(주)

대표번호 : 1522-4279

홈페이지 : http://hometrio.kr/

KakaoTalk_20191210_164551850.jpg
KakaoTalk_20200521_090546896.jpg
img.jpg


keyword