1.5 42평 세종 고운동 행복하우스/세종

PART1. 기본을 지켜 집을 짓다

by 이동혁 건축가
KakaoTalk_20200521_090546896.jpg

제목 : 우리는 전원주택을 짓습니다

-홈트리오 완공 주택 30채의 이야기-


저자 : 이동혁, 임성재, 정다운


HC051-2588r.jpg

제목 : 우리는 전원주택을 짓습니다

부제 : 홈트리오 완공 주택 30채의 이야기


PART 1. 기본을 지켜 집을 짓다

1.5 42평 세종 고운동 행복하우스/세종

0.메인 HC041-8494.jpg

POINT.1

기본기를 잘 지킨 집이라 이야기드리고 싶어요. 홈트리오의 색깔이 가장 잘 묻어난 집. 목조 공법으로 단열을 잡고, 시스템창호를 사용하고, 외장재에 큰 비용을 들이지 않으면서 마감해 가성비까지 잡은 집. 돈이 많으면 하고 싶으신 거 다 하셔도 무방하세요. 하지만 우리의 예산은 넉넉하지 않거든요. 현실에 맞춰서 집을 지어야 합니다. 목조주택이 약해 보인다고 가끔 말씀해주시는 분들이 계세요. 이렇게 말하는 것은 본인이 아무것도 모른다고 이야기하는 것과 같습니다. 철근콘크리트나 목조나 내, 외장 마감이 동일하게 들어갑니다. 외벽에 붙이는 벽돌을 보고 튼튼하다고 생각하시는 것이지, 뼈대가 되는 공법으로 약하다 튼튼하다를 구분 지을 수 없습니다. 주변에서 저렇게 이야기하시는 분들이 계시다면 멀리하세요. 어설프게 알고 자문하는 게 가장 위험한 것입니다.


POINT.2

북쪽에 도로가 위치한 땅의 경우 현관을 무리하게 앞으로 가져올 이유가 없습니다. 동선만 길어지는 단점이 생기거든요. 북쪽으로 현관을 내고 거실로 들어오는 동선을 최대한 짧게 해야 낭비되는 면적을 줄일 수 있습니다. 집을 설계할 때 복도 공간을 얼마나 줄일 수 있느냐에 따라 내부 여유공간의 면적이 결정됩니다. 이동 공간으로 많이 평수를 잡아먹어버리면 정해진 면적 공간에서 그만큼 실내를 좁게 사용할 수밖에 없는 것이거든요.


POINT.3

추우니까 창을 작게 내어야 한다고 주장하는 사람들이 가끔 있습니다. 원론적으로 본다면 틀린 말은 아니죠. 문제는 창을 작게 내서 살 것 같으면 그냥 아파트 사는 게 편하지 뭐하러 단독주택을 지어 살겠습니까. 단독주택은 단독주택만의 매력이 있습니다. 그 매력을 가리면서까지 집을 지어 산다는 것은 저희들은 아니라고 봅니다. 일단 집은 밝아야 합니다. 창을 작게 내는 순간 자연 채광량이 줄어들기 때문에 집 안이 항상 어두울 수밖에 없습니다. 10년 전에는 창문의 단열 기술이 높지 않아서 조금은 그런 말들이 공감을 얻을 수 있었겠지만, 현재는 모든 창호를 시스템창호로 시공하기 때문에 단열성이 매우 높아 창을 작게 해야 한다는 이유에 공감을 얻지 못합니다. 북쪽의 창문은 작게 하되, 남쪽의 창문은 크게 하셔도 무방합니다. 자연채광과 따뜻한 햇살을 집안에 받게 해 주세요. 그 자체만으로도 긍정적인 기운을 받게 한답니다.


SPEC

공법 : 경량목구조

설계, 시공 : 홈트리오(주) / 상담문의 : 1522-4279

ARTIST : 건축가 정다운, 임성재, 이동혁

홈페이지 : http://hometrio.kr/

지붕마감재 : 아스팔트슁글 / 외벽 마감재 : 스타코플렉스 / 포인트자재 : 파벽돌

실내벽마감재 : 실크벽지 / 실내바닥마감재 : 이건 강마루

창호재 : 이건 알루미늄 3중 시스템창호

건축면적 : 139.74㎡(1층 : 88.10㎡, 2층 : 51.64㎡)

예상 총 건축비 : 316,200,000원(부가세 포함, 산재보험료 포함 / 설계비, 인허가비, 구조계산 설계비 별도)

설계비 : 6,300,000원(부가세 포함) / 인허가비 : 4,200,000원(부가세 포함)

구조계산 설계비 : 4,200,000원(부가세 포함) / 인테리어 설계비 : 6,300,000원(부가세 포함)

*건축비 외 부대비용 : 대지구입비, 가구(싱크대, 신발장, 붙박이장), 기반시설 인입(수도, 전기, 가스 등), 토목공사, 조경비 등


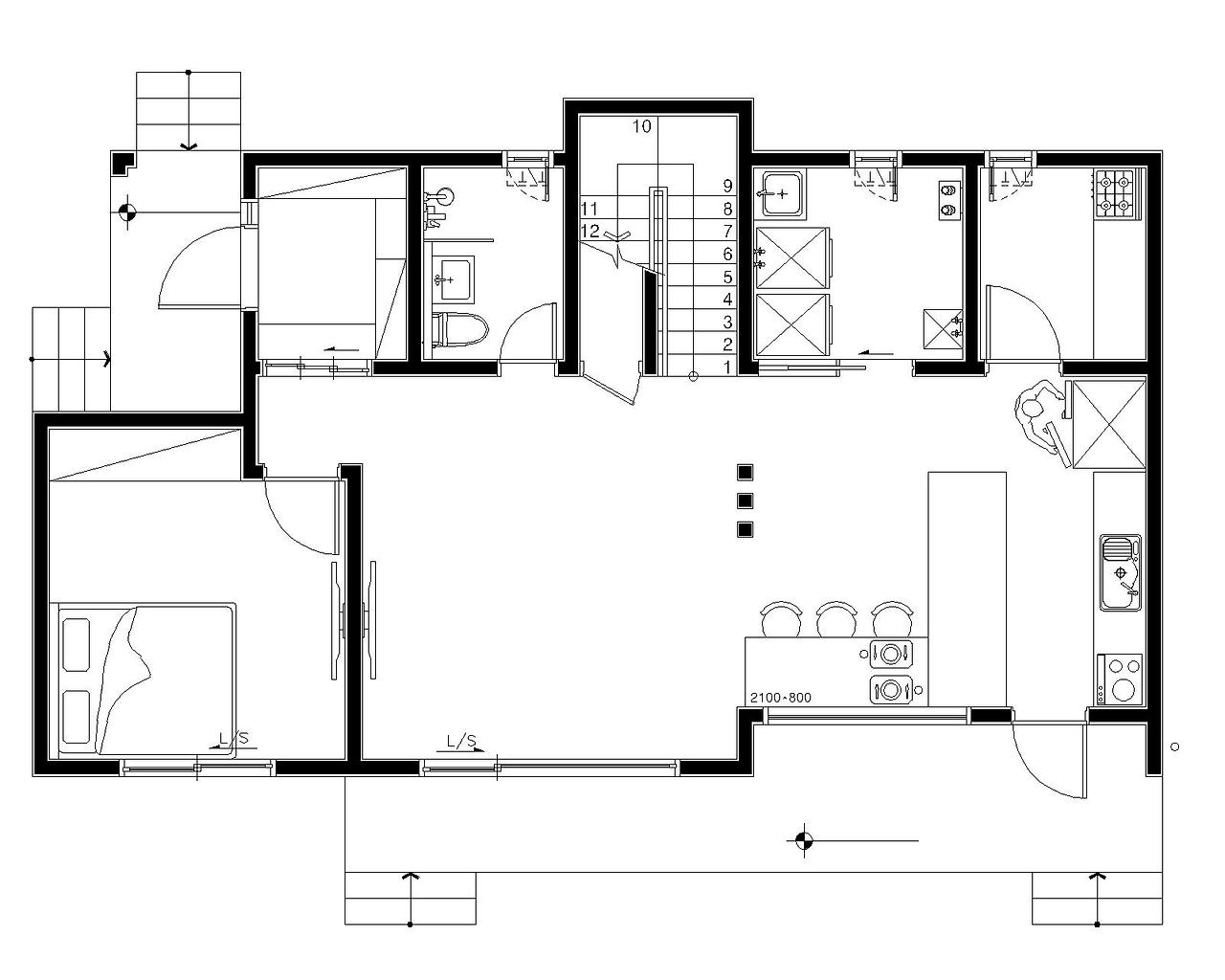
Floor Plan

1층.jpg 1층 평면도
2층.jpg 2층 평면도

<외관>

0.메인 HC041-8494.jpg
HC041-8453.jpg
HC041-8462.jpg
HC041-8469.jpg
HC041-8470.jpg
HC041-8472.jpg
HC041-8474.jpg
HC041-8476.jpg
HC041-8481.jpg
HC041-8483.jpg
HC041-8490.jpg
HC041-8491.jpg

<현관>

HC041-8270.jpg
HC041-8272.jpg
HC041-8273.jpg
HC041-8274.jpg
HC041-8445.jpg

<거실>

HC041-8275.jpg
HC041-8276.jpg
HC041-8280.jpg
HC041-8284.jpg
HC041-8286.jpg
HC041-8287.jpg
HC041-8442.jpg
HC041-8443.jpg

<주방>

HC041-8294.jpg
HC041-8295.jpg
HC041-8301.jpg
HC041-8303.jpg
HC041-8305.jpg
HC041-8308.jpg
HC041-8310.jpg
HC041-8343.jpg

<다용도실>

HC041-8313.jpg

<세탁실>

HC041-8317.jpg
HC041-8318.jpg
HC041-8320.jpg
HC041-8323.jpg

<1층 화장실>

HC041-8331.jpg
HC041-8333.jpg
HC041-8335.jpg
HC041-8338.jpg

<1층 방>

HC041-8368.jpg
HC041-8373.jpg
HC041-8377.jpg
HC041-8382.jpg
HC041-8384.jpg

<계단실>

HC041-8326.jpg
HC041-8347.jpg
HC041-8348.jpg
HC041-8351.jpg
HC041-8354.jpg
HC041-8356.jpg
HC041-8361.jpg
HC041-8365.jpg
HC041-8440.jpg

<2층 복도>

HC041-8387.jpg
HC041-8402.jpg
HC041-8404.jpg
HC041-8439.jpg

<2층 욕실>

HC041-8392.jpg
HC041-8395.jpg
HC041-8397.jpg

<2층 방>

HC041-8405.jpg
HC041-8414.jpg
HC041-8416.jpg
HC041-8420.jpg
HC041-8424.jpg

<2층 드레스룸>

HC041-8426.jpg
HC041-8427.jpg
HC041-8430.jpg
HC041-8436.jpg

<건축가 사진>

HC041-8257.jpg (좌측부터)정다운 건축가, 임성재 건축가, 이동혁 건축가

이동혁 건축가 : 북쪽으로 도로가 나 있는 경우 무리하게 현관을 중앙으로 가져오지 않아도 됩니다. 이번 주택처럼 남향을 앞마당으로 두고 도로를 북쪽으로 둔 땅이라면 뒤편 주차장 라인에서 바로 진입할 수 있는 측면 현관을 고려하는 것이 좋습니다. 현관 진입 후 거실과 주방까지 이어지는 탁 트인 공간에서 압도적인 개방감을 느낄 수 있으며, 크지 않은 평수 대지만 거실이라는 공간과 주방, 식당이라는 공간을 하나의 공간으로 인지되게 설계해 준다면 답답함 없는 내부 공간을 완성시킬 수 있습니다.


정다운 건축가 : 현관을 기본 사이즈보다 0.5평 정도 더 할애해 줄 수 있다면 좀 더 쾌적한 현관 공간을 만날 수 있습니다. 생각보다 많은 분들이 현관은 좁게 해도 된다고 생각하지만 어찌 보면 이 집을 들어올 때 가장 먼저 만나는 공간입니다. 다시 말해 집의 분위기를 충분히 좌지우지할 수 있는 공간인 것이죠. 조금 더 공간을 할애해 주고 간접 조명 및 가구 등으로 포인트를 준다면 현관이라는 공간이 단순히 지나가는 공간이 아닌 집의 첫인상을 결정하는 중요한 공간으로 변모할 수 있답니다.


임성재 건축가 : 지붕에 대한 논란이 많은 것으로 알고 있습니다. 목조주택은 옥상은 절대 불가. 그리고 경사 지붕을 통한 물매 구간 확실히 주고, 처마 공간을 확실히 만들어 집이 숨을 쉴 수 있는 벤트 공간을 만들어야 한다는 것. 디자인 이전에 집에 문제가 발생될 수 있는 요지들은 시공에서 잡을 것이 아니라 애초에 설계 때부터 잘해야 합니다. 시공 백날 잘해봤자 설계가 엉망이면 시공자의 기술이 아무리 뛰어나도 집 엉망으로 지어집니다. 너무 디자인적 방향으로 갈 것이 아니라 집의 기본을 지키면서 설계를 하고 디자인을 만들어 나가길 바라겠습니다.


※모든 저작권은 홈트리오(주)에게 있습니다. 최근 무단으로 디자인과 설계 평면도를 복제해 마치 본인들이 한 것인 듯 홍보하는 업체들이 있는데 법적 책임을 물을 수 있다는 점 고지드립니다.

홈트리오 조직 계열도.jpg
프로필 통합본.jpg (좌측부터) 이동혁 건축가, 정다운 건축가, 임성재 건축가

[집이라는 본질적인 가치에 집중하다.]

Architecture Team : 홈트리오(주)

대표번호 : 1522-4279

홈페이지 : http://hometrio.kr/

KakaoTalk_20191210_164551850.jpg
KakaoTalk_20200521_090546896.jpg
img.jpg


keyword