1.4 42평 어쩌다 발견한 하루/강화

PART1. 기본을 지켜 집을 짓다

by 이동혁 건축가
KakaoTalk_20200521_090546896.jpg

제목 : 우리는 전원주택을 짓습니다

-홈트리오 완공 주택 30채의 이야기-


저자 : 이동혁, 임성재, 정다운


HC051-2588r.jpg

제목 : 우리는 전원주택을 짓습니다

부제 : 홈트리오 완공 주택 30채의 이야기


PART 1. 기본을 지켜 집을 짓다

1.4 42평 어쩌다 발견한 하루/강화

0. 메인 HC058-5263.jpg

POINT.1

땅이 넓고 건폐율이 충분하다면 꼭 복층으로 집을 올릴 필요는 없습니다. 활용 공간만 본다면 계단실로 공간을 낭비하지 않기 때문에 단층으로 설계하는 것이 사용상에 있어 더 유리합니다. 평형에 대한 고민이 많으실 거라 생각합니다. 30평 형대는 세컨드 하우스에 더 특화되어 있습니다. 옛날에는 20평형대도 가능했지만 요즘 트렌드가 좁게 사는 형태가 아니어서 4인 가족이 넉넉하게 살려면 꼭 40평 이상을 설계하여지으셔야 합니다. 이상하게 전문가인 저희말 안 들으시고 인터넷 블로그 등에서 본 글만 믿고 지었다가 낭폐를 보는 사례를 많이 보았습니다. 좁아요! 진짜 좁아서 이 돈 주고 지었나 싶은 집들이 종종 만들어져요. 건축가 욕 할 필요 없어요. 고집부린 건축주님의 잘못이 더 큽니다. 저희말을 믿으세요. 그리고 저희가 발표하는 주택들의 평면도를 검토하세요. 그것만 해도 설계를 잘못하는 일은 없을 것입니다.


POINT.2

경사지의 땅에는 기본적인 토목공사가 필요합니다. 일단 흙이 무너지지 않아야 하니 흙막이를 해야겠지요. 공짜가 아닙니다. 이상하리만큼 토목공사가 공짜라는 인식들을 가지고 계시더라고요. 특히 단순 흙을 채워 평탄하게 만드는 것이 아닌 이번 주택처럼 창고나 공간을 만든다면(?). 당연히 공사비가 더 들겠지요. 어떠한 집이던 기초는 평지에 구성되어야 합니다. 경사지라고 해서 기초가 꺾이거나 기하학적으로 구성되지는 않습니다. 집의 기초가 놓일 부분을 어떻게 평탄화 시킬 건지에 따라 토목공사비가 책정되며, 이는 무엇이 정답이다라고 하기보다는 현재 가지고 계신 예산에 맞추어서 지하 공간을 만들 것인지 아니면 흙으로 채우고 옹벽을 쌓을 것인지를 결정하시면 됩니다.


POINT.3

창문은 3중 시스템창호가 기본입니다. 아직도 아파트에 사용하는 발코니창호를 고집 부리는 분들이 계신데요. 옛날에는 뜯어말렸지만 이제는 말리지 않습니다. 왜냐고요? 어차피 저희말 안 들을 거 뻔하니까요. 창호는 단열에 가장 중요한 부분이기 때문에 제일 돈을 많이 들여야 하는 부분 중의 하나입니다. 대부분 창호 브랜드 없는 거 사용하거나 발코니 창호를 설치하고자 하시는 분들은 이상한 이유를 달기는 하지만 결론은 '돈'을 아끼려고 하는 목적이 대부분입니다. 반론 못하실 거예요. 검증된 브랜드와 좋은 제품을 쓰면 단열이 좋아진다는 것은 다 알고 있을 거니까요. 차라리 솔직히 건축가에게 말하세요. 그러면 다양한 브랜드를 검토라도 해드리지, 고집만 부린다고 제품이 갑자기 저렴해진다거나 하지 않습니다.


SPEC

공법 : 경량목구조

설계, 시공 : 홈트리오(주) / 상담문의 : 1522-4279

ARTIST : 건축가 정다운, 임성재, 이동혁

홈페이지 : http://hometrio.kr/

지붕마감재 : 리얼징크 / 외벽 마감재 : 스타코플렉스 / 포인트자재 : 파벽돌

실내벽마감재 : 실크벽지 / 실내바닥마감재 : 이건 강마루

창호재 : 이건 알루미늄 3중 시스템창호

건축면적 : 138.39㎡(1층 : 138.39㎡)

예상 총 건축비 : 362,000,000원(부가세 포함, 산재보험료 포함 / 설계비, 인허가비, 구조계산 설계비 별도)

설계비 : 10,500,000원(부가세 포함) / 인허가비 : 4,200,000원(부가세 포함)

구조계산 설계비 : 4,200,000원(부가세 포함) / 인테리어 설계비 : 6,300,000원(부가세 포함)

*건축비 외 부대비용 : 대지구입비, 가구(싱크대, 신발장, 붙박이장), 기반시설 인입(수도, 전기, 가스 등), 토목공사, 조경비 등


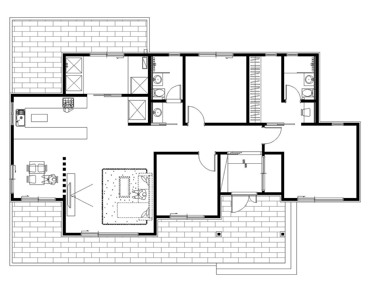
Floor Plan

1층 평면도.jpg 1층 평면도


<외관>

0. 메인 HC058-5263.jpg
HC058-4998.jpg
HC058-5002.jpg
HC058-5023.jpg
HC058-5033.jpg
HC058-5072.jpg

<현관>

HC058-5178.jpg
HC058-5180.jpg

<거실>

HC058-5096.jpg
HC058-5101.jpg
HC058-5106.jpg
HC058-5112.jpg
HC058-5119.jpg
HC058-5123.jpg
HC058-5127.jpg

<주방>

HC058-5092.jpg
HC058-5100.jpg
HC058-5103.jpg
HC058-5108.jpg
HC058-5109.jpg
HC058-5199.jpg
HC058-5200.jpg

<다용도실>

HC058-5130.jpg
HC058-5133.jpg

<화장실>

HC058-5159.jpg
HC058-5161.jpg
HC058-5164.jpg
HC058-5166.jpg
HC058-5174.jpg
HC058-5175.jpg

<안방>

HC058-5141.jpg
HC058-5142.jpg
HC058-5146.jpg

<안방 드레스룸>

HC058-5153.jpg
HC058-5154.jpg
HC058-5157.jpg

<방1>

HC058-5137.jpg
HC058-5138.jpg
HC058-5139.jpg

<방2>

HC058-5184.jpg
HC058-5185.jpg

<건축가 사진>

HC058-5089.jpg (좌측부터) 정다운 건축가, 임성재 건축가, 이동혁 건축가


이동혁 건축가 : 클래식한 분위기의 디자인이 주는 감성이 있습니다. 너무 화려하거나 독특한 주택 디자인은 유니크한 느낌을 줄 수는 있지만 반대로 어수선하고 애매한 느낌을 줄 때가 간혹 있거든요. 7년 전쯤에 정말 기하학적으로 디자인하는 것이 유행인 때도 있었는데, 현재는 그 시기를 지나 모던하면서 차분한 느낌의 집으로 디자인하는 것이 트렌드로 자리를 잡아버렸습니다. 유행은 돌고 돈다고 합니다. 옷만 그런 것이 아니라 집도 마찬가지인데요. 과도기적 주택 디자인 시기를 지나 다시 클래식하면서 심플한 주택을 찾는 건축주님들이 늘어나기 시작했습니다. 이번 주택은 미국 스타일의 클래식한 느낌을 담아낸 주택입니다. 어찌 보면 해외에서는 스테디셀러라 할 만큼 많은 분들이 지은 주택 스타일인데요. 가성비 높은 건축비와 유지관리적인 측면에서 특별히 손을 댈 일이 없는 디자인이기 때문에 지어놓고 10년 동안 손 안 대고 살고 싶다 하시는 분들에게 강력 추천하는 집이라 설명드리고 싶습니다.


정다운 건축가 : 단층으로 46평의 면적을 설계했기 때문에 실내 공간은 엄청 넓습니다. 아마 2층 60평 주택보다 현관에 진입했을 때의 느낌을 훨씬 크다고 인식될 거예요. 우리가 공간을 인지하는 부분은 시각적인 부분밖에 없습니다. 특히 집을 처음 마주하는 현관 집입 라인에서 이 집의 공간감이 거의 결정되는대요. 2층은 평수가 넓어도 공간이 분리되어 있다 보니 크게 느껴지는 부분이 분명 한계성이 존재해요. 하지만 단층으로 구성하게 되면 그러한 제약조건이 아예 없기 때문에 모든 공간을 실 면적으로 인지하게 됩니다. 46평의 공간에 방은 3개만 구성하고, 나머지 공간은 공용공간 및 부대 공간들로 설계를 진행하였기 때문에 전원주택에서만 느낄 수 있는 여유로운 생활을 만끽할 수 있으실 거예요. 아파트요? 죄송하지만 비교대상이 아니라고 말하고 싶네요.


임성재 건축가 : 주방 공간과 식당 공간을 간혹 같은 공간이라고 착각하시는 분들이 계세요. 주방과 식당은 다른 공간입니다. 그동안 아파트 평면에 익숙해져 있다 보니 당연히 같은 공간에서 활동이 이루어진다 생각하시는데요. 영역성이 다른 공간인만큼 전원주택에서는 각각의 공간을 설계해 놓으셔야 합니다. 이번 주택에서는 주방과 식당의 공간이 거실보다 넓게 구성되었습니다. 집의 중심이 거실에서 주방 및 식당으로 넘어간 지 오래입니다. 전원주택은 아버님 위주의 구성보다는 어머님 위주의 구성으로 주로 설계되는데요. 어머님이 가장 오래 머무는 공간 위주로 공간 설계가 우선 진행되며, 모든 동선도 특별히 요구하는 부분이 없으면 어머님 위주로 짜이게 됩니다. 아버님들은 서운하시겠죠? 죄송해요. 전원주택만큼은 어머님 위주로 지어주세요.^^


※모든 저작권은 홈트리오(주)에게 있습니다. 최근 무단으로 디자인과 설계 평면도를 복제해 마치 본인들이 한 것인 듯 홍보하는 업체들이 있는데 법적 책임을 물을 수 있다는 점 고지드립니다.

홈트리오 조직 계열도.jpg
프로필 통합본.jpg (좌측부터) 이동혁 건축가, 정다운 건축가, 임성재 건축가

[집이라는 본질적인 가치에 집중하다.]

Architecture Team : 홈트리오(주)

대표번호 : 1522-4279

홈페이지 : http://hometrio.kr/

KakaoTalk_20191210_164551850.jpg
KakaoTalk_20200521_090546896.jpg
img.jpg


keyword