brunch

2.2 44평 아이에게 다락방을 선물하다/용인

PART 2. 나만의 개성을 담아 집을 짓다

by 이동혁 건축가
KakaoTalk_20200521_090546896.jpg

제목 : 우리는 전원주택을 짓습니다

-홈트리오 완공 주택 30채의 이야기-


저자 : 이동혁, 임성재, 정다운


HC051-2588r.jpg

제목 : 우리는 전원주택을 짓습니다

부제 : 홈트리오 완공 주택 30채의 이야기


PART 2. 나만의 개성을 담아 집을 짓다

2.2 44평 아이에게 다락방을 선물하다/용인

[크기변환]0.메인 HC006-0116.jpg

POINT.1

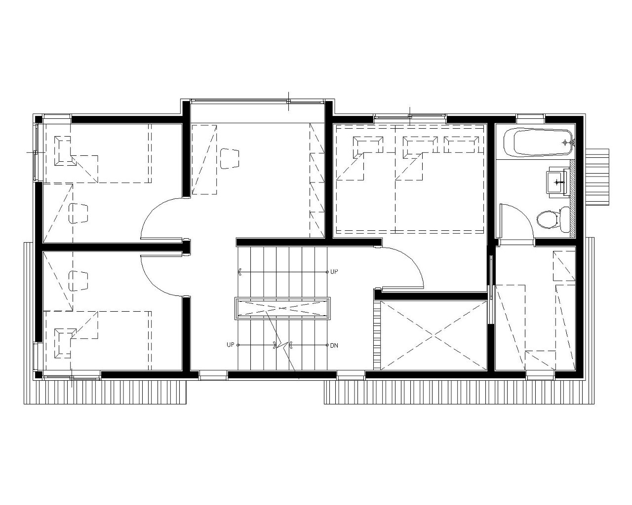
집 바닥면적 17평의 마법이라고 이야기드리고 싶어요. 17평의 건축면적은 결코 큰 면적이 아닙니다. 어설프게 공간을 배치해버리면 이도 저도 아닌 좁은 공간들이 탄생합니다. 그래서 이 집을 설계할 때 다양한 설계기법 검토와 공간에 대한 이해를 건축주님께 먼저 설명드리는 시간을 가졌습니다. 스킵플로어를 적용해 반층씩 공간을 구성하는 방법을 사용하였으며, 목조주택의 한계성인 2층 이상을 올리기 위해 공학용 목재를 사용하는 등 정말 안전한 집을 짓기 위해 많은 노력을 한 주택이랍니다.


POINT.2

모던하면서 심플한 매력적인 외관이 바로 눈에 띄죠. 모던 스타일을 잘못 디자인하면 창고처럼 보일 수 있어서 그렇게 안 하기 위해서 무던히 노력했습니다. 지붕도 평지붕이 아니라 언밸러스한 꺾인 지붕을 만들어 주었고, 대칭으로 디자인하기보다는 각 공간들이 자유로운 느낌으로 분배되는 형태로 설계를 진행했습니다. 단열에 대한 부분을 특히 많이 신경 썼어요. 3중 시스템창호와 벽체에도 2중 단열을 하는 등 따뜻한 집을 만들기 위해 엄청 공부했답니다.


POINT.3

가구에 대한 고민을 같이 했습니다. 좁은 공간에서 어설프게 기성 사이즈 가구가 들어와 버리면 낭비되는 면적이 발생될 수 있는 여건이었거든요. 거실 등의 공용공간은 가구를 최소화하고 가급적 넓게 공간을 사용하는 쪽으로 이야기를 드렸어요. 아이들 방과 다락 등은 주문제작 가구로 딱 맞춤으로 가구를 껴넣었고, 작은 틈들도 남지 않도록 인테리어를 진행했습니다. 설계단계에서는 원래 가구의 배치 정도만 그려놓지 어떻게 디테일하게 구성되는지 까지는 그려 넣지 않습니다. 하지만 이번 주택처럼 소형평수에서는 설계단계에서부터 어떻게 가구를 놓고, 어떻게 사용할 건지에 대한 부분까지 논의한 것 같아요.


SPEC

공법 : 경량목구조

설계, 시공 : 홈트리오(주) / 상담문의 : 1522-4279

ARTIST : 건축가 정다운, 임성재, 이동혁

홈페이지 : http://hometrio.kr/

지붕마감재 : 리얼징크 / 외벽 마감재 : 스타코플렉스 / 포인트자재 : 세라믹사이딩, 루나우드

실내벽마감재 : 실크벽지 / 실내바닥마감재 : 이건 강마루, 포세린타일

창호재 : PVC 3중 시스템창호

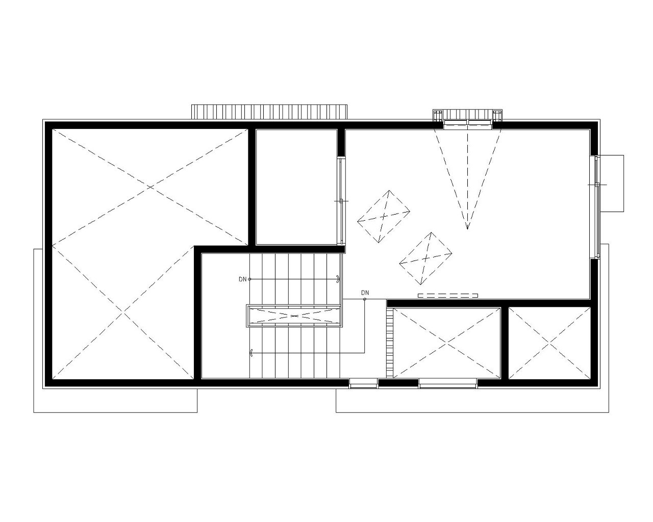
건축면적 : 144.85㎡(1층 : 57.20㎡, 2층 : 53.52㎡, 다락 : 34.13㎡)

예상 총 건축비 : 347,600,000원(부가세 포함, 산재보험료 포함 / 설계비, 인허가비, 구조계산 설계비 별도)

설계비 : 11,000,000원(부가세 포함) / 인허가비 : 4,400,000원(부가세 포함)

구조계산 설계비 : 4,400,000원(부가세 포함) / 인테리어 설계비 : 6,600,000원(부가세 포함)

*건축비 외 부대비용 : 대지구입비, 가구(싱크대, 신발장, 붙박이장), 기반시설 인입(수도, 전기, 가스 등), 토목공사, 조경비 등


Floor Plan

1f.jpg 1층 평면도
2f.jpg 2층 평면도
3f.jpg 다락 평면도

<외관>

[크기변환]0.메인 HC006-0116.jpg


HC006-0093.jpg
HC006-0095.jpg
HC006-0101.jpg
HC006-0104.jpg
HC006-0112.jpg
HC006-6256.jpg
HC006-6267.jpg
HC006-6269.jpg
HC006-6270.jpg
HC006-6276.jpg
HC006-6277.jpg
HC006-6446.jpg
HC006-6448.jpg
HC006-6460.jpg


<현관>

HC006-6243.jpg
HC006-6245.jpg
HC006-6246.jpg
HC006-6248.jpg
HC006-6329.jpg
HC006-6330.jpg
HC006-6331.jpg
HC006-6332.jpg
HC006-6333.jpg
HC006-6335.jpg

<거실>

HC006-6273.jpg
HC006-6367.jpg
HC006-6274.jpg
HC006-6369.jpg
HC006-6370.jpg
HC006-6371.jpg
HC006-6373.jpg
HC006-6374.jpg
HC006-6377.jpg
HC006-6404.jpg

<주방>

HC006-6336.jpg
HC006-6337.jpg
HC006-6338.jpg
HC006-6339.jpg
HC006-6340.jpg
HC006-6341.jpg
HC006-6342.jpg
HC006-6343.jpg
HC006-6344.jpg
HC006-6345.jpg
HC006-6347.jpg
HC006-6350.jpg
HC006-6351.jpg
HC006-6352.jpg
HC006-6353.jpg
HC006-6354.jpg
HC006-6355.jpg
HC006-6356.jpg
HC006-6359.jpg
HC006-6360.jpg
HC006-6437.jpg
HC006-6438.jpg
HC006-6439.jpg
HC006-6442.jpg

<1층 화장실>

HC006-6361.jpg
HC006-6363.jpg
HC006-6364.jpg
HC006-6365.jpg
HC006-6366.jpg

<안방>

HC006-6388.jpg
HC006-6392.jpg
HC006-6395.jpg
HC006-6396.jpg
HC006-6397.jpg
HC006-6398.jpg

<안방 화장실>

HC006-6399.jpg
HC006-6400.jpg
HC006-6402.jpg
HC006-6403.jpg

<방1>

HC006-6406.jpg
HC006-6408.jpg
HC006-6409.jpg
HC006-6410.jpg
HC006-6412.jpg

<방2>

HC006-6414.jpg
HC006-6416.jpg
HC006-6417.jpg
HC006-6418.jpg
HC006-6420.jpg

<계단실>

HC006-6379.jpg
HC006-6381.jpg
HC006-6383.jpg
HC006-6385.jpg
HC006-6387.jpg
HC006-6405.jpg
HC006-6421.jpg

<다락>

HC006-6423.jpg
HC006-6425.jpg
HC006-6426.jpg
HC006-6428.jpg
HC006-6429.jpg
HC006-6430.jpg
HC006-6431.jpg
HC006-6433.jpg
HC006-6434.jpg
HC006-6435.jpg

<건축가사진>

HC006-6318.jpg (좌측부터) 이동혁 건축가, 임성재 건축가, 정다운 건축가


이동혁 건축가 : 모던 스타일을 추구하시는 분들이라면 이 집을 잘 검토해보시는 것이 좋습니다. 정말로 박스 형태로 지었거든요. 모던 스타일의 특징은 선과 면의 정리에 있습니다. 잘못 디자인했다가는 창고처럼 보이기 때문에 그 경계점을 잘 밸런스 있게 구성해 디자인하는 것이 중요합니다. 정면부의 매스가 커 보이는 이유는 창문에 있습니다. 지금 보이는 메인 사진은 남향이 아닙니다. 그렇기 때문에 계단실 및 복도 등이 자연스럽게 배치되면서 창을 적게 배치할 수 있었습니다. 결과적으로는 오히려 유니크한 입면 디자인이 나오게 된 것 같아요. 깔끔한 면과 정돈된 느낌의 마감선의 조합. 목조주택에서 나올 수 있는 최고의 모던 스타일 소형 주택이지 않을까 싶습니다.


정다운 건축가 : 스킵플로어는 반층씩 올라가면서 공간을 만들어 내는 설계 기법입니다. 벽으로서 공간을 구분하는 것이 아닌 층으로서 공간을 구분하는 거죠. 아파트와는 완전히 다른 실내 공간을 만날 수 있으며, 독특한 느낌과 유니크한 느낌을 이 집에 부여할 수 있다는 장점이 있습니다. 다만 그동안 아파트에 익숙해져 있으셨던 분들은 조금 불편함도 느끼실 수 있을 거예요. 그래서 무조건 따라 하기보다는 건축주님들의 라이프스타일에 맞추어 이러한 설계기법들을 적용하시는 것이 좋습니다.


임성재 건축가 : 다락방이 매력적으로 나왔어요. 다락방은 건축법적 가중평균 1.8m 이내로 만들어야 합니다. 불법으로 하시려고 하시는 분들이 계신데요. 특검에서 다 걸리니 가급적 허가 조건에 맞추어서 하시길 권해드립니다. 매스를 보면 지붕이 한쪽으로 치우쳐져 있는 것을 볼 수 있을 거예요. 다락의 층고를 높여주기 위해 한쪽을 다운시키고 그 남은 면적을 다른 한쪽으로 할애해 준거예요. 아이들이 생활하기에는 딱 맞는 높이이지만 어른이 사용하기에는 조금 낮은 감이 있습니다. 하지만 다락은 원래 그런 곳이라는 것.


※모든 저작권은 홈트리오(주)에게 있습니다. 최근 무단으로 디자인과 설계 평면도를 복제해 마치 본인들이 한 것인 듯 홍보하는 업체들이 있는데 법적 책임을 물을 수 있다는 점 고지드립니다.

홈트리오 조직 계열도.jpg
프로필 통합본.jpg (좌측부터) 이동혁 건축가, 정다운 건축가, 임성재 건축가

[집이라는 본질적인 가치에 집중하다.]

Architecture Team : 홈트리오(주)

대표번호 : 1522-4279

홈페이지 : http://hometrio.kr/

KakaoTalk_20191210_164551850.jpg
KakaoTalk_20200521_090546896.jpg
img.jpg


keyword