brunch

2.4 47평 햇살 따스한 집/양산

PART 2. 나만의 개성을 담아 집을 짓다

by 이동혁 건축가
KakaoTalk_20200521_090546896.jpg

제목 : 우리는 전원주택을 짓습니다

-홈트리오 완공 주택 30채의 이야기-


저자 : 이동혁, 임성재, 정다운


HC051-2588r.jpg

제목 : 우리는 전원주택을 짓습니다

부제 : 홈트리오 완공 주택 30채의 이야기


PART 2. 나만의 개성을 담아 집을 짓다

2.4 47평 햇살 따스한 집/양산

0.메인 HC029-0118.jpg

POINT.1

과하지 않고 정돈된 느낌의 가성비 주택을 지으려면 이 집처럼 짓는 것이 좋습니다. 디자인, 단열, 인테리어 등 모든 것을 가지고 탄생했지만 합리적인 가격에서 시공이 완료되었거든요. 물론 사람의 취향이 모두 다르기 때문에 이것이 정답이라고 하기는 어렵지만 저희 건축가들의 시선에서 보았을 때는 딱 이 정도의 금액대로 집을 짓는 것이 가장 합리적인 선택이라고 생각합니다. 건축주님이 저희 홈트리오의 집 짓는 방향성과 색깔을 잘 이해해 주셔서 이렇게 저희 색이 잘 묻어나는 집이 탄생한 것 같습니다.


POINT.2

다른 곳에 돈을 안 써도 창문에는 돈을 좀 쓰셔야 합니다. 조금이 아니네요. 제일 많은 돈을 투자하세요. 그래도 후회 안 해요. 좋은 가구들은 사시면서 이상하리만큼 창문에는 대부분의 건축주님들이 냉소적이더라고요. 창을 좋은 브랜드와 3중 시스템창호로 하면 단열에 대해서는 더 이상 걱정 안 해도 되는데, 싼 거를 시공해 놓고 단열을 걱정하는 상황이라니. 건축가로서는 잘 이해가 안 되는 부분입니다. 저희들은 어차피 이건창호 밖에 사용 안 하니 문제가 없지만 아직도 지방에서는 브랜드 없는 제품들을 시공하더라고요. 심지어 시스템창호도 아닌 발코니 창호를 쓰는 집도... 더 이상 말 안 할래요. 창호 꼭 좋은 거 쓰세요. 그래야 집 짓고 후회 안 합니다.


POINT.3

넓은 공간이 좋다면 공간을 많이 분리하고 벽을 세우는 것보다는 거실과 주방을 하나의 공간으로 합치는 것이 좋습니다. 주방이 무조건 거실과 분리되어야 한다는 분들이 아니라면 40평형대에서 이 집의 공용공간을 가장 넓게 사용할 수 있는 설계 기법이라 설명드리고 싶습니다. 일단 현관을 들어왔을 때 내 시각에 담기는 첫 번째 공간 이미지가 이 집의 전체 공간감을 좌지우지합니다. 현관에서 마주하는 거실과 주방 공간이 좁아버리면 2층이 아무리 넓다 하더라도 이 집은 좁은 집으로 인식됩니다. 그래서 첫 메인 공용공간은 가급적 콤팩트하게 구성하기보다는 내가 생각하는 공간보다 좀 더 넓게 구성해 놓는 것이 좋습니다. 좁게 살려고 전원주택 온 거 아니잖아요. 넓게 넓게 사세요.


SPEC

공법 : 경량 목구조

설계, 시공 : 홈트리오(주) / 상담문의 : 1522-4279

ARTIST : 건축가 정다운, 임성재, 이동혁

홈페이지 : http://hometrio.kr/

지붕마감재 : 아스팔트 슁글 / 외벽 마감재 : 스타코플렉스 / 포인트 자재 : 파벽돌

실내 벽 마감재 : 실크벽지/ 실내 바닥마감재 : 강마루

창호재 : 이건 알루미늄 3중 시스템창호

건축면적 : 154.63㎡(1층 : 89.76㎡, 2층 : 64.87㎡)

예상 총 건축비 : 366,200,000원(부가세 포함, 산재보험료 포함 / 설계비, 인허가비, 구조계산 설계비 별도)

설계비 : 11,750,000원(부가세 포함) / 인허가비 : 4,700,000원(부가세 포함)

구조계산 설계비 : 4,700,000원(부가세 포함) / 인테리어 설계비 : 7,050,000원(부가세 포함)

*건축비 외 부대비용 : 대지구입비, 가구(싱크대, 신발장, 붙박이장), 기반시설 인입(수도, 전기, 가스 등), 토목공사, 조경비 등


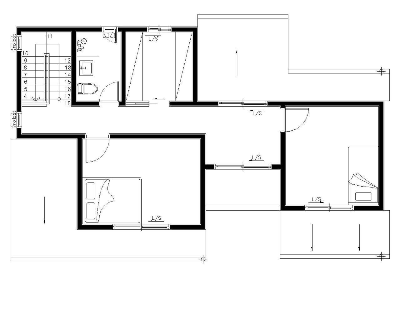
Floor Plan

1f.jpg 1층 평면도
2f.jpg 2층 평면도

<외관>

0.메인 HC029-0118.jpg
HC029-4742.jpg
HC029-4746.jpg
HC029-4755.jpg
HC029-4760.jpg
HC029-4764.jpg
HC029-4767.jpg
HC029-4775.jpg
HC029-4837.jpg
HC029-DJI0115-0524824.png
HC029-DJI0116-0031031.png

<현관>

HC029-4778.jpg
HC029-4779.jpg
HC029-4780.jpg
HC029-4781.jpg
HC029-4913.jpg
HC029-4914.jpg
HC029-4930.jpg

<거실>

HC029-4784.jpg
HC029-4785.jpg
HC029-4786.jpg
HC029-4787.jpg
HC029-4790.jpg
HC029-4792.jpg
HC029-4793.jpg
HC029-4795.jpg
HC029-4819.jpg
HC029-4821.jpg
HC029-4824.jpg
HC029-4922.jpg
HC029-4923.jpg
HC029-4925.jpg
HC029-4926.jpg
HC029-4936.jpg

<주방>

HC029-4796.jpg
HC029-4797.jpg
HC029-4798.jpg
HC029-4799.jpg
HC029-4802.jpg
HC029-4804.jpg
HC029-4805.jpg
HC029-4807.jpg
HC029-4808.jpg
HC029-4815.jpg
HC029-4817.jpg
HC029-4917.jpg
HC029-4919.jpg
HC029-4921.jpg

<다용도실>

HC029-4810.jpg
HC029-4812.jpg
HC029-4933.jpg

<1층 방>

HC029-4938.jpg
HC029-4943.jpg
HC029-4945.jpg
HC029-4946.jpg
HC029-4948.jpg
HC029-4950.jpg

<화장실1>

HC029-4826.jpg
HC029-4830.jpg
HC029-4831.jpg
HC029-4832.jpg
HC029-4836.jpg

<화장실2>

HC029-4860.jpg
HC029-4861.jpg
HC029-4862.jpg
HC029-4864.jpg
HC029-4865.jpg
HC029-4868.jpg

<계단실>

HC029-4840.jpg
HC029-4842.jpg
HC029-4845.jpg
HC029-4848.jpg
HC029-4854.jpg
HC029-4857.jpg
HC029-4858.jpg
HC029-4906.jpg
HC029-4910.jpg
HC029-4911.jpg
HC029-4912.jpg

<2층 거실>

HC029-4879.jpg
HC029-4888.jpg
HC029-4894.jpg
HC029-4896.jpg

<2층 방1>

HC029-4869.jpg
HC029-4872.jpg
HC029-4873.jpg
HC029-4875.jpg
HC029-4877.jpg

<2층 방2>

HC029-4902.jpg
HC029-4903.jpg
HC029-4905.jpg

<2층 방3>

HC029-4880.jpg
HC029-4883.jpg
HC029-4885.jpg
HC029-4886.jpg
HC029-4887.jpg

<베란다>

HC029-4891.jpg
HC029-4898.jpg
HC029-4899.jpg

<건축가 사진>

HC029-4998.jpg (좌측부터) 이동혁 건축가, 임성재 건축가, 정다운 건축가



이동혁 건축가 : 4인 가족이 생활하기에 최적화된 평면으로 구성하였습니다. 전원주택 택지 및 도심형 단독주택 필지에도 모두 어울릴만한 느낌으로 디자인을 완료하였습니다. 스타코플렉스 베이스에 파벽돌 포인트. 하단부에 조금만 포인트를 주는 것이 아닌 1층 전체를 포인트로 가져가면서 외벽에 대한 오염방지 및 디자인적 무게감을 동시에 가져갈 수 있도록 하였습니다.


정다운 건축가 : 모던한 느낌과 클래식한 느낌을 공존할 수 있도록 설계하였습니다. 한쪽의 스타일로 치우치는 것이 아니라 현 트렌드에 맞게, 또한 각 스타일의 장점만 조합할 수 있도록 디자인을 잡았습니다. 지붕이 집 디자인에 주는 영향력은 상당히 큽니다. 사람도 머리스타일에 따라 분위기가 바뀌듯 집도 똑같습니다. 다른 집들과 조금 다른 느낌을 가져가고 싶다면 외장재가 아닌 지붕 디자인에 노력을 기울이시는 것이 어찌 보면 투자 대비 많은 이득을 얻을 수 있는 방법이기도 합니다.


임성재 건축가 : 현관과 계단실의 코어 부분을 중심이 아닌 좌측으로 몰아 동선의 꼬임을 방지하고, 현관을 진입했을 때 거실, 주방, 안방 라인까지 탁 트인 오픈형 공간을 만들어 줄 수 있도록 평면 구성을 진행했습니다. 많은 분들이 현관은 무조건 가운데에 들어가야 한다고 생각하지만 생각보다 많은 주택들의 현관은 한쪽으로 치우치는 경우가 많습니다. 주차장의 문제일 수도 있으며, 도로 또는 대문과의 연계 때문일 수도 있습니다. 항상 말하듯 설계를 하실 때 고정관념은 버리실 것. 그리고 그동안 살아왔던 아파트의 평면은 잊어버리실 것.



※모든 저작권은 홈트리오(주)에게 있습니다. 최근 무단으로 디자인과 설계 평면도를 복제해 마치 본인들이 한 것인 듯 홍보하는 업체들이 있는데 법적 책임을 물을 수 있다는 점 고지드립니다.

홈트리오 조직 계열도.jpg
프로필 통합본.jpg (좌측부터) 이동혁 건축가, 정다운 건축가, 임성재 건축가

[집이라는 본질적인 가치에 집중하다.]

Architecture Team : 홈트리오(주)

대표번호 : 1522-4279

홈페이지 : http://hometrio.kr/

KakaoTalk_20191210_164551850.jpg
KakaoTalk_20200521_090546896.jpg
img.jpg


keyword