brunch

2.5 48평 봄기운에 안기다/대전

PART 2. 나만의 개성을 담아 집을 짓다

by 이동혁 건축가
KakaoTalk_20200521_090546896.jpg

제목 : 우리는 전원주택을 짓습니다

-홈트리오 완공 주택 30채의 이야기-


저자 : 이동혁, 임성재, 정다운


HC051-2588r.jpg

제목 : 우리는 전원주택을 짓습니다

부제 : 홈트리오 완공 주택 30채의 이야기


PART 2. 나만의 개성을 담아 집을 짓다

2.5 48평 봄기운에 안기다/대전

0.메인 HC014-2130.jpg

POINT.1

박공지붕의 매력을 가장 잘 담아낸 주택이라 평하고 싶습니다. 목조주택은 이렇게 짓는 게 정답이에요. 확실한 물매와 물 끊기가 자연스럽게 이루어지는 처마. 그리고 물홈통. 간혹 디자인 때문에 물홈통 숨기시는 분들이 계신데요. 말리지는 않습니다. 다만 낙엽이 많이 지는 지역의 경우에는 무조건 피하세요. 막히기 시작하면 답 없습니다. 물홈통이 막히는 이유는 정말 다양해요. 가장 어이없었던 것이 물홈통 속에 말벌집이 생겨서 꽉 막혀버린 사례가 있었는데요. 뭐 답이 있겠어요. 홈통을 통째로 뜯어서 교체하는 게 제일 확실한 방법이죠. 그동안 집을 지어온 방법과 디자인에는 그만한 이유들이 다 존재합니다. 예쁘다고 다 좋은 것은 아니니 꼭 장·단점 검토해서 설계하세요.


POINT.2

스타코플렉스를 사용하는 이유 하시죠? 스타코가 브랜드 이름이고 플렉스가 말랑말랑한 탄성 재질을 뜻합니다. 외벽에 감싸주는 마감재를 탄성이 있는 재질로 입혀준 거예요. 철근콘크리트 주택에는 사용하지 않습니다. 스타코플렉스는 목조 공법에만 사용하는 외장 마감재입니다. 목조주택은 3년 동안 조금씩 움직이면서 자리를 잡아갑니다. 돌덩어리가 아니기 때문에 바로 강도가 발현되지 않아요. 움직임이 있다는 것은 외벽에 크랙이 갈 수 있다는 것을 내포하고 있기 때문에 꼭 탄성이 있는 재질로 입혀주어야 합니다. 그에 가장 가성비 높은 자재가 바로 스타코플렉스였던 것이죠. 테라코트 플렉시텍스 등 다른 브랜드들도 있습니다. 금액대는 비슷하니 마음 가는 것을 골라 쓰시면 되세요.


POINT.3

포치의 공간을 어떻게 만드냐에 따라 현관의 이미지가 완전히 달라진답니다. 일반적으로는 실내 공간을 더 만들기 위해 포치 공간을 많아야 1평 정도 할애하는데요. 이번 주택에서는 2평 이상의 넓은 공간으로 포치를 만들어 주었습니다. 일단 매스 외관 자체에서 들어가는 부위로 포치를 활용했기 때문에 입체감이 더 살아납니다. 또한 비를 맞지 않는 공간이기 때문에 자전거 및 킥보드 등을 세워둘 수 있고요. 외부에 세워놓아야 하는 물건들은 일단 비를 맞지 않아야 하거든요. 아파트에서 전원주택으로 처음 이사 왔을 때 가장 당황하는 부분이 자전거 등의 외부에 세워 놓아야 하는 물품들이에요. 실내로 들고 들어가기에는 부담스럽고 외부에 놔두어야 하는데 비는 맞추면 안 되고. 그럴 경우를 대비해 이렇게 포치를 조금 더 크게 만들어 놓으세요. 그러면 위와 같은 문제를 한 번에 해결할 수 있답니다.


SPEC

공법 : 경량 목구조

설계, 시공 : 홈트리오(주) / 상담문의 : 1522-4279

ARTIST : 건축가 정다운, 임성재, 이동혁

홈페이지 : http://hometrio.kr/

지붕마감재 : 아스팔트슁글 / 외벽 마감재 : 스타코플렉스 / 포인트자재 : 루나우드, 파벽돌

실내벽마감재 : 실크벽지/ 실내바닥마감재 : 강마루

창호재 : PVC 3중 시스템창호

건축면적 : 158.42㎡(1층 : 104.06㎡, 2층 : 54.36㎡)

예상 총 건축비 : 379,100,000원(부가세 포함, 산재보험료 포함 / 설계비, 인허가비, 구조계산 설계비 별도)

설계비 : 12,000,000원(부가세 포함) / 인허가비 : 4,800,000원(부가세 포함)

구조계산 설계비 : 4,800,000원(부가세 포함) / 인테리어 설계비 : 7,200,000원(부가세 포함)

*건축비 외 부대비용 : 대지구입비, 가구(싱크대, 신발장, 붙박이장), 기반시설 인입(수도, 전기, 가스 등), 토목공사, 조경비 등


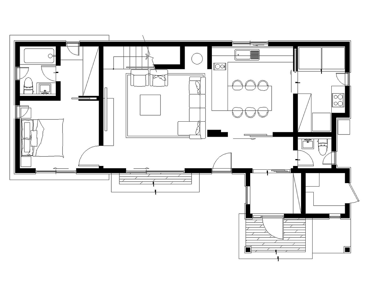
Floor Plan

1층.jpg 1층 평면도
2층.jpg 2층 평면도


<외관>

0.메인 HC014-2130.jpg
HC014-2111.jpg
HC014-2115.jpg
HC014-2118.jpg
HC014-2128.jpg
HC014-2131.jpg

<현관>

HC014-1831.jpg
HC014-1832.jpg
HC014-1834.jpg
HC014-1835.jpg
HC014-1839.jpg
HC014-1849.jpg

<거실>

HC014-1830.jpg
HC014-1851.jpg
HC014-1854.jpg
HC014-1855.jpg
HC014-1857.jpg
HC014-1859.jpg
HC014-1863.jpg
HC014-1864.jpg
HC014-1892.jpg
HC014-1893.jpg
HC014-1894.jpg
HC014-1895.jpg
HC014-1945.jpg
HC014-1946.jpg

<주방>

HC014-1866.jpg
HC014-1868.jpg
HC014-1869.jpg
HC014-1870.jpg
HC014-1873.jpg
HC014-1874.jpg
HC014-1877.jpg
HC014-1878.jpg
HC014-1880.jpg
HC014-1882.jpg
HC014-1883.jpg
HC014-1884.jpg
HC014-1885.jpg
HC014-1887.jpg
HC014-1924.jpg
HC014-1943.jpg

<방1>

HC014-1904.jpg
HC014-1905.jpg
HC014-1906.jpg
HC014-1907.jpg

<방2>

HC014-1913.jpg
HC014-1914.jpg
HC014-1915.jpg
HC014-1916.jpg

<방3>

HC014-1925.jpg
HC014-1926.jpg
HC014-1927.jpg

<화장실1>

HC014-1841.jpg
HC014-1843.jpg
HC014-1844.jpg
HC014-1846.jpg
HC014-1847.jpg

<화장실2>

HC014-1933.jpg
HC014-1934.jpg
HC014-1935.jpg
HC014-1936.jpg
HC014-1937.jpg
HC014-1938.jpg
HC014-1942.jpg

<화장실3>

HC014-1909.jpg
HC014-1910.jpg
HC014-1911.jpg

<계단실>

HC014-1888.jpg
HC014-1890.jpg
HC014-1891.jpg
HC014-1923.jpg

<2층 거실>

HC014-1896.jpg
HC014-1898.jpg
HC014-1900.jpg
HC014-1901.jpg
HC014-1902.jpg
HC014-1920.jpg
HC014-1921.jpg
HC014-1922.jpg

<드레스룸>

HC014-1928.jpg
HC014-1929.jpg
HC014-1931.jpg

<건축가 사진>

HC014-2023.jpg (좌측부터) 정다운 건축가, 임성재 건축가, 이동혁 건축가



이동혁 건축가 : 깔끔한 외벽, 안정감 있는 박공지붕, 거기에 밸런스가 느껴지는 1층과 2층의 공간 구성. 완전 제 취향입니다. 집 비싼 자재 사용할 필요 있나요. 이번 주택처럼 지으세요. 진짜 가성비 최고입니다. 골조에 돈을 투자하거나 땅에 돈을 투자하는 것은 어차피 정해진 금액이 있으니 말리지 않습니다. 대부분 고민에 휩싸이는 구간이 바로 외장재 선택 구간입니다. 보면 볼수록 비싼 걸로 옮겨가니 정말 시공을 해야 할 시기가 오면 정신이 붕괴되어버립니다. 돈이 많으면 상관없어요. 진짜 돈 많으신 분들은 금액 물어보지도 않고 외장재 선택에 시공합니다. 하지만 우리들의 예산은 항상 모자라잖아요. 다 줄였는데도 더 이상 줄일 게 없다면 외장재 스타코플렉스로 가세요. 차라리 어설프게 외장재 붙이는 것보다 전체 느낌을 깔끔하게 맞추는 것이 더 집을 살리는 방법입니다. 애매하게 반만 벽돌을 적용한다던지 하는 거 절대 하지 마세요. 정말 이상합니다.


정다운 건축가 : 재미있는 공간의 연속. 도심형 전원주택이 가지는 매력적 공간을 모두 포함한 주택이라 생각합니다. 짜임새 있는 공간 구성과 어디로든 이동할 수 있는 동선 계획은 이 집만이 가진 매력을 더욱 부가시켜 줍니다. 실내 공간이 독특합니다. 평면을 보시면 일반적인 주택의 설계가 아니라는 것을 단번에 아셨을 거예요. 전원주택은 아파트처럼 공간에 우리 가족이 맞춰 사는 것이 아니라, 내 가족의 라이프스타일에 맞춰 집을 짓고 생활하는 것입니다. 사람의 라이프스타일이 모두 다르니 당연히 집의 공간 구성도 완전히 다르게 구성된 거예요. 건축주님만을 위한 집이니 건축주님과 건축주님 가족만을 위한 공간으로 이 집을 탄생시켜드린 것입니다.


임성재 건축가 : 외부 디자인을 계획할 때 최대한 덜어내고자 하는 마음으로 디자인을 진행하였습니다. 무언가를 많이 가져다 붙이는 것이 아닌 깔끔하고 정돈된 느낌의 이미지를 전달해주고자 하였으며, 추후 유지보수적인 측면에서도 유리할 수 있는 설계적 요소들을 기본적으로 적용시켰습니다. 스타코플렉스, 박공지붕, 거기에 EPS 몰딩까지. 오염에 대한 부분과 단열, 방수에 대한 부분까지도 설계적으로 디자인적 반영하여 처음 시작하는 전원생활에 부담을 최소화시킬 수 있도록 노력하였습니다.


※모든 저작권은 홈트리오(주)에게 있습니다. 최근 무단으로 디자인과 설계 평면도를 복제해 마치 본인들이 한 것인 듯 홍보하는 업체들이 있는데 법적 책임을 물을 수 있다는 점 고지드립니다.

홈트리오 조직 계열도.jpg
프로필 통합본.jpg (좌측부터) 이동혁 건축가, 정다운 건축가, 임성재 건축가

[집이라는 본질적인 가치에 집중하다.]

Architecture Team : 홈트리오(주)

대표번호 : 1522-4279

홈페이지 : http://hometrio.kr/

KakaoTalk_20191210_164551850.jpg
KakaoTalk_20200521_090546896.jpg
img.jpg


keyword