brunch

3.3 67평 일산애니아트힐즈 단독주택 프로젝트/일산

PART 3. 꿈의 집을 짓다

by 이동혁 건축가
KakaoTalk_20200521_090546896.jpg

제목 : 우리는 전원주택을 짓습니다

-홈트리오 완공 주택 30채의 이야기-


저자 : 이동혁, 임성재, 정다운


HC051-2588r.jpg

제목 : 우리는 전원주택을 짓습니다

부제 : 홈트리오 완공 주택 30채의 이야기


PART 2. 나만의 개성을 담아 집을 짓다

3.3 67평 일산애니아트힐즈 단독주택 프로젝트/일산

0.메인 HC035-7076.jpg

POINT.1

모던 디자인과 롱 브록의 만남으로 일산 애니아트힐즈 단지 내에 랜드마크적인 건물이 탄생했습니다. 누구나 길을 지나다가 한 번씩 눈길을 줄 수밖에 없는 그러한 건물. 이 집이 바로 그런 집이라 이야기할 수 있을 것 같습니다. 롱 브록은 와이드 하게 긴 벽돌을 뜻합니다. 일반 벽돌 사이즈로서 표현해 낼 수 있는 디자인적 한계가 있기 때문에 벽돌 자체의 크기를 변화시켜 좀 더 유니크한 느낌을 내기 위해 사용하는 벽돌이 롱 브록입니다. 장점은 입면 디자인에 있으며, 단점은 일반 벽돌보다 배는 비싸다는 것에 있겠네요. 대부분의 롱 브록은 수입 벽돌이 많습니다. 가격대가 워낙 다양하기 때문에 어떠한 롱 브록을 선택하실지는 자재와 금액대를 보시면서 결정하시면 좋습니다.


POINT.2

바닥 평수 23평의 마법이라고 이야기하고 싶습니다. 건축가의 의도를 완벽하게 이해를 해준 건축주님께 감사인사를 전합니다. 1개 층당 23평의 면적은 큰 면적이 아니라 작은 면적에 속합니다. 이 공간 안에서 원하는 니즈를 모두 반영해야 하는데 설계 전 건축가들은 이미 알고 있습니다. '아, 어차피 다 못 넣겠구나'. 문제는 건축주님이 원하는 니즈를 포기할 수 있느냐(?)인데요. 선택과 집중이라고 하죠. 현관을 들어서서 느끼는 첫 이 집의 공간감. 이 공간감을 적게 가져갈 것이냐, 아니면 탁 트인 오픈공간으로 가져갈 것이냐를 결정해야 합니다. 답은 나와있죠. 무조건 오픈된 큰 공간으로 가져가야 됩니다. 평면도를 보는 것과 실제 시공해서 보는 것의 공간감은 많은 차이를 발생시킵니다. 도면보다 무조건 실제 시공된 공간이 좁고 작습니다. 항상 내 생각보다 큰 느낌으로 설계를 해야 비로소 내가 원하는 공간감으로 집이 탄생합니다.


POINT.3

발코니를 통한 볼륨감을 극대화했습니다. 모던 스타일을 잘못 해석하시는 분들이 계시더라고요. 무조건 박스형으로 디자인한다고 해서 모던 스타일이라고 부르지는 않습니다. 면과 선을 잘 정리만 해도 충분히 모던 스타일이라고 부를 수 있는 집이 탄생합니다. 특히 창고처럼 집을 짓는 분들이 계세요. 건축가와 건축주가 잘못된 캐미를 발생하면 그러한 창고 집이 탄생하는데요. 제발 그렇게는 짓지 마세요. 모던 스타일이 빛나기 위해서는 입체감과 볼륨감이라는 단어가 같이 결합되어야 합니다. 일정 부분은 디자인에 공간을 할애해 줘야 하고, 확실한 외부 공간으로서 이 집의 포인트로서 빛날 수 있게 해야 집의 밸런스가 완벽해집니다. 무조건 다 반듯하게만 만들지 마세요. 들어가고 나오고 하는 부분이 있어야 오히려 이 집이 더 크고 유니크하게 보일 수 있답니다.


SPEC

공법 : 철근콘크리트조(RC)

설계, 시공 : 홈트리오(주) / 상담문의 : 1522-4279

ARTIST : 건축가 정다운, 임성재, 이동혁

홈페이지 : http://hometrio.kr/

지붕마감재 : 리얼징크(0.7T) / 외벽 마감재 :모노롱블럭(조적) / 포인트자재 : 모노롱블럭(조적), 리얼징크(0.7T)

실내벽마감재 : 실크벽지+도장마감 / 실내바닥마감재 : 강마루, 포세린타일

창호재 : 이건 알루미늄 3중 시스템창호(로이양면)

건축면적 : 221.86㎡(1층 : 77.14㎡, 2층 : 77.14㎡, 3층 : 67.58㎡)

예상 총 건축비 : 837,500,000원(부가세 포함, 산재보험료 포함 / 설계비, 인허가비, 구조계산 설계비 별도)

설계비 : 20,100,000원(부가세 포함) / 인허가비 : 6,700,000원(부가세 포함)

구조계산 설계비 : 6,700,000원(부가세 포함) / 인테리어 설계비 : 10,050,000원(부가세 포함)

*건축비 외 부대비용 : 대지구입비, 가구(싱크대, 신발장, 붙박이장), 기반시설 인입(수도, 전기, 가스 등), 토목공사, 조경비 등


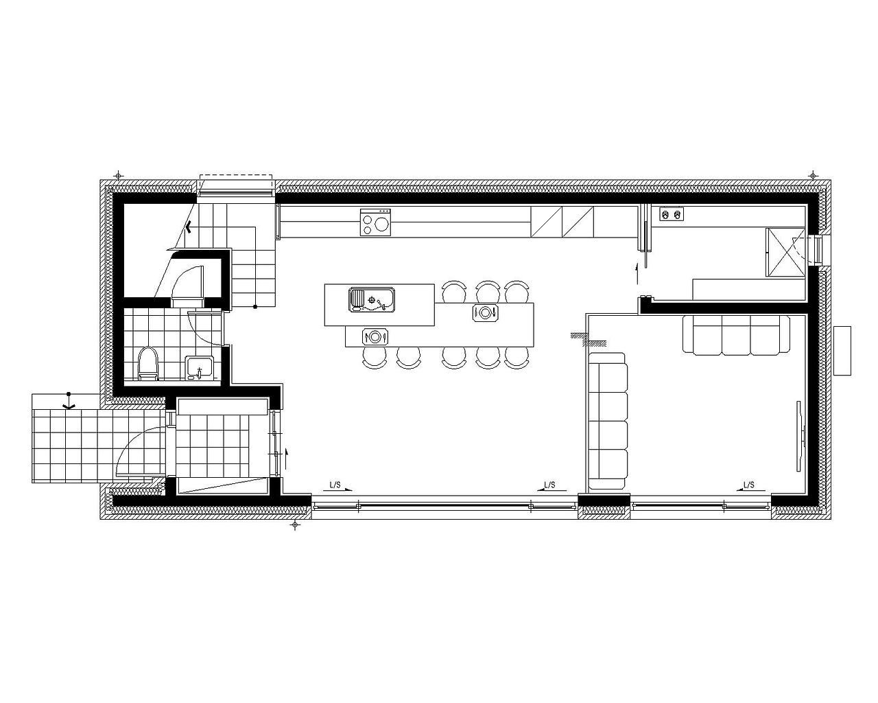
Floor Plan

1층 평면도.jpg 1층 평면도
2층 평면도.jpg 2층 평면도
3층 평면도.jpg 3층 평면도

<외관>

0.메인 HC035-7076.jpg
HC035-6929.jpg
HC035-6932.jpg
HC035-6936.jpg
HC035-6947.jpg
HC035-6964.jpg
HC035-6971.jpg
HC035-6973.jpg
HC035-6975.jpg
HC035-7078.jpg
HC035-7079.jpg
HC035-7080.jpg

<현관>

HC035-7064.jpg
HC035-7067.jpg

<1층 거실>

HC035-7044.jpg
HC035-7045.jpg

<주방>

HC035-7041.jpg
HC035-7042.jpg
HC035-7043.jpg
HC035-7047.jpg
HC035-7048.jpg
HC035-7049.jpg
HC035-7050.jpg
HC035-7051.jpg
HC035-7053.jpg
HC035-7054.jpg
HC035-7063.jpg

<1층 화장실>

HC035-7060.jpg
HC035-7062.jpg

<1층 계단실>

HC035-6976.jpg
HC035-6978.jpg
HC035-6979.jpg
HC035-6980.jpg
HC035-7055.jpg
HC035-7056.jpg
HC035-7058.jpg

<2층 복도>

HC035-9.jpg
HC035-6984.jpg

<2층 안방>

HC035-1.jpg
HC035-2.jpg
HC035-3.jpg
HC035-4.jpg
HC035-6994.jpg

<2층 안방 드레스룸>

HC035-5.jpg
HC035-6.jpg
HC035-7.jpg

<2층 화장실>

HC035-10.jpg
HC035-11.jpg
HC035-12.jpg
HC035-13.jpg
HC035-14.jpg
HC035-15.jpg

<세탁실>

HC035-39.jpg
HC035-6981.jpg
HC035-6982.jpg
HC035-6983.jpg

<2층 계단실>

HC035-16.jpg
HC035-17.jpg
HC035-18.jpg
HC035-19.jpg
HC035-20.jpg
HC035-21.jpg

<3층 복도>

HC035-22.jpg
HC035-37.jpg
HC035-38.jpg

<3층 방1>

HC035-23.jpg
HC035-24.jpg
HC035-25.jpg
HC035-26.jpg

<3층 방2>

HC035-30.jpg
HC035-31.jpg
HC035-32.jpg
HC035-33.jpg

<3층 화장실>

HC035-34.jpg
HC035-35.jpg
HC035-36.jpg

<3층 베란다>

HC035-27.jpg
HC035-28.jpg
HC035-29.jpg

<건축가 사진>

HC035-6914.jpg (좌측부터) 정다운 건축가, 임성재 건축가, 이동혁 건축가

이동혁 건축가 : 일반적인 벽돌이 식상하다 생각하시는 분들은 가로로 긴 모노롱벽돌을 고려해보시면 좋을 듯합니다. 긴 벽돌을 조적식으로 쌓아 올린다고 생각하시면 될 듯하며, 일반 벽돌 비율보다 가로가 길기 때문에 집이 더 커 보이는 디자인적 효과를 얻을 수 있습니다. 다만 문제가 있다면 저렴하지는 않습니다.


정다운 건축가 : 평면구성을 하실 때 공용공간과 개인 공간을 명확하게 구분 짓는 것이 좋습니다. 2층 주택의 경우 일반적으로 코어 부분이라고 하는 계단실과 화장실을 중심으로 기 구역을 구분하는데 층수가 3층 이상 된다면 이번 주택처럼 층간 분리를 고려하시는 것도 좋습니다. 1층은 완벽한 공용공간으로 구성하고, 2층은 부모님이 거주하는 안방 존, 3층은 자녀존으로 구성하여 특별히 벽을 구성하지 않더라도 동선과 프라이빗 공간이 자연스럽게 층간 분리되는 효과를 누리실 수 있습니다.


임성재 건축가 : 모던한 느낌의 건물을 디자인할 때에는 최대한 면을 깔끔하게 잡는 것이 좋습니다. 박스형의 이미지가 너무 공장 같다고 싫어하시는 분들도 계신데 이는 입면 디자인 안을 설계할 때 볼륨감을 고려하지 않아서 그렇습니다. 깔끔하고 모던한 느낌을 주되 일반적인 박스 이미지로 보이지 않게 하기 위해서는 일정 부분 들어가고 나오는 부분이 존재해야 하며, 층별로 창문의 크기 등을 조절해 주어야 합니다.


※모든 저작권은 홈트리오(주)에게 있습니다. 최근 무단으로 디자인과 설계 평면도를 복제해 마치 본인들이 한 것인 듯 홍보하는 업체들이 있는데 법적 책임을 물을 수 있다는 점 고지드립니다.

홈트리오 조직 계열도.jpg
프로필 통합본.jpg (좌측부터) 이동혁 건축가, 정다운 건축가, 임성재 건축가

[집이라는 본질적인 가치에 집중하다.]

Architecture Team : 홈트리오(주)

대표번호 : 1522-4279

홈페이지 : http://hometrio.kr/

KakaoTalk_20191210_164551850.jpg
KakaoTalk_20200521_090546896.jpg
img.jpg


keyword