brunch

3.4 70평 젊은 감성 트렌드를 입다/대전

PART 3. 꿈의 집을 짓다

by 이동혁 건축가
KakaoTalk_20200521_090546896.jpg

제목 : 우리는 전원주택을 짓습니다

-홈트리오 완공 주택 30채의 이야기-


저자 : 이동혁, 임성재, 정다운


HC051-2588r.jpg

제목 : 우리는 전원주택을 짓습니다

부제 : 홈트리오 완공 주택 30채의 이야기


PART 2. 나만의 개성을 담아 집을 짓다

3.4 70평 젊은 감성 트렌드를 입다/대전

0.메인 HC034-6673.jpg


POINT.1

젊은 건축주가 지은 젊은 감성의 집. 나이대에 따라 선호하는 집의 취향이 완전히 변화된다고 할 수 있습니다. 젊은 건축주일수록 심플하면서 단조로운 느낌을 많이 원하시며, 나이가 있으실수록 차가운 느낌보다는 좀 더 따뜻하고 아늑한 느낌을 선호하십니다. 이번 주택은 40대의 젊은 건축주님이셨습니다. 인테리어나 외관만 봐도 젊은 감각으로 트렌디하게 집을 설계했다는 것이 느껴집니다. 실내 인테리어는 심플함의 정점을 찍습니다. 포인트보다는 창과 조명이 주가 되는 느낌으로 인테리어를 잡아내었고, 포인트 색감 등도 최대한 절제하면서 적용하여, 우아하면서 절제미의 감각을 충분히 느낄 수 있도록 시공되었습니다.


POINT.2

모던 스타일 목조주택은 이렇게 짓는 것이 정답입니다. 일단 목조주택에서는 평지붕 마감이 안됩니다. 물매가 확실하게 구배 되어야 하기 때문에 박공지붕 형태의 경사지붕은 필수입니다. 지붕이 박공지붕이라고 해서 모던하지 않을 거라는 잘못된 생각은 안 가지셔도 괜찮습니다. 매스의 모던함과 선과 면의 정리로 충분히 모던 스타일의 특징인 박스형 입면을 만들어 낼 수 있습니다.


POINT.3

나만의 차고를 품고 태어난 미국 스타일의 전원주택입니다. 미국은 차고가 99% 있습니다. 한국에서는 차고에 대한 인식이 낮아서 잘 시공하지는 않는데요. 이번 주택의 건축주님의 경우 차고 겸 창고에 대한 니즈가 필수였기 때문에 현관 옆으로 차고부터 자리를 잡고 설계를 시작했습니다. 차고가 주는 실내 공간의 독특함은 그동안 한국형 전원주택에서는 못 보았던 분위기일 거예요. 차고의 문이 앞, 뒤로 완전히 오픈되는 형태를 취하고 있으며, 차고뿐만 아니라 다목적 운동공간이나 바비큐 장으로 충분히 활용 가능한 공간입니다.


SPEC

공법 : 경량목구조

설계, 시공 : 홈트리오(주) / 상담문의 : 1522-4279

ARTIST : 건축가 정다운, 임성재, 이동혁

홈페이지 : http://hometrio.kr/

지붕마감재 : 리얼징크 / 외벽 마감재 : 모노롱벽돌 / 포인트자재 : 모노롱벽돌

실내벽마감재 : 실크벽지, 파벽돌, 포세린타일 / 실내바닥마감재 : 이건 강마루

창호재 : 이건 알루미늄 3중 시스템창호

건축면적 : 230.71㎡(1층 : 130.20㎡, 2층 : 100.51㎡)

예상 총 건축비 : 563,000,000원(부가세 포함, 산재보험료 포함 / 설계비, 인허가비, 구조계산 설계비 별도)

설계비 : 17,500,000원(부가세 포함) / 인허가비 : 7,000,000원(부가세 포함)

구조계산 설계비 : 7,000,000원(부가세 포함) / 인테리어 설계비 : 10,500,000원(부가세 포함)

*건축비 외 부대비용 : 대지구입비, 가구(싱크대, 신발장, 붙박이장), 기반시설 인입(수도, 전기, 가스 등), 토목공사, 조경비 등


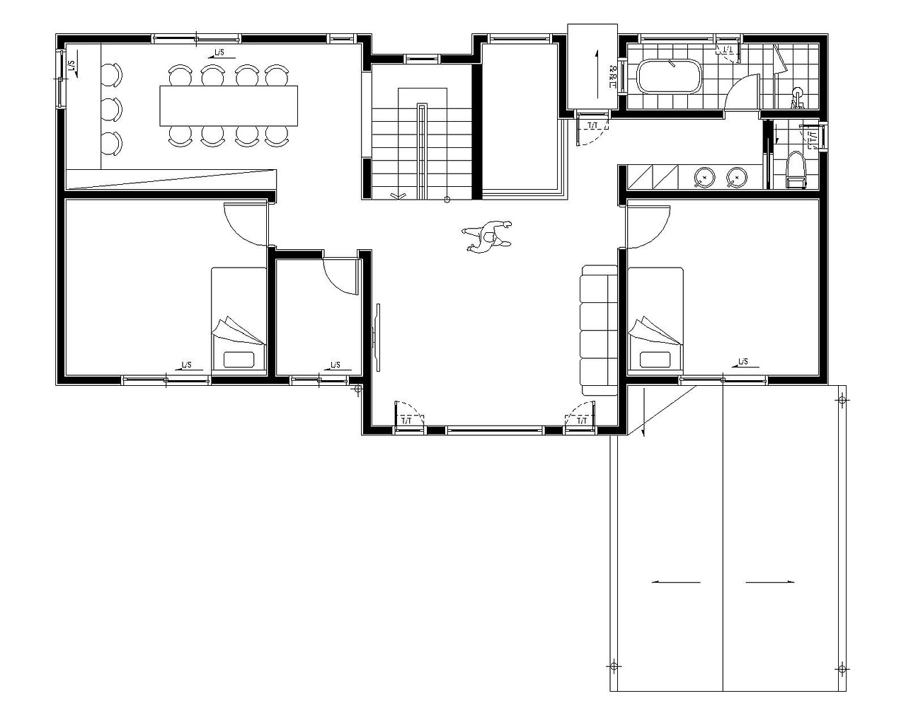
Floor Plan

1층.jpg 1층 평면도
2층.jpg 2층 평면도

<외관>

0.메인 HC034-6673.jpg
HC034-0217.jpg
HC034-0219.jpg
HC034-0222.jpg
HC034-0223.jpg
HC034-6674.jpg
HC034-6675.jpg
HC034-6685.jpg
HC034-6687.jpg
HC034-6688.jpg
HC034-6689.jpg
HC034-6691.jpg
HC034-6695.jpg
HC034-6721.jpg
HC034-6722.jpg

<현관>

HC034-6536.jpg
HC034-6537.jpg
HC034-6538.jpg
HC034-6539.jpg
HC034-6541.jpg
HC034-6542.jpg
HC034-6543.jpg
HC034-6544.jpg
HC034-6545.jpg
HC034-6546.jpg
HC034-6547.jpg
HC034-6548.jpg
HC034-6549.jpg
HC034-6551.jpg
HC034-6553.jpg
HC034-6723.jpg
HC034-6725.jpg
HC034-6763.jpg

<거실>

HC034-6554.jpg
HC034-6557.jpg
HC034-6559.jpg
HC034-6560.jpg
HC034-6565.jpg
HC034-6566.jpg
HC034-6567.jpg

<주방>

HC034-6568.jpg
HC034-6570.jpg
HC034-6572.jpg
HC034-6574.jpg
HC034-6575.jpg
HC034-6576.jpg
HC034-6577.jpg
HC034-6578.jpg
HC034-6579.jpg
HC034-6580.jpg
HC034-6589.jpg
HC034-6590.jpg
HC034-6598.jpg
HC034-6604.jpg
HC034-6669.jpg
HC034-6670.jpg
HC034-6671.jpg
HC034-6672.jpg

<1층 방>

HC034-6581.jpg
HC034-6583.jpg
HC034-6586.jpg

<1층 화장실>

HC034-6591.jpg
HC034-6592.jpg
HC034-6594.jpg
HC034-6595.jpg
HC034-6597.jpg

<계단실>

HC034-6599.jpg
HC034-6600.jpg
HC034-6601.jpg
HC034-6603.jpg
HC034-6605.jpg
HC034-6607.jpg
HC034-6619.jpg
HC034-6622.jpg
HC034-6624.jpg
HC034-6625.jpg

<2층 거실>

HC034-6608.jpg
HC034-6609.jpg
HC034-6610.jpg
HC034-6611.jpg
HC034-6612.jpg
HC034-6614.jpg
HC034-6615.jpg
HC034-6618.jpg
HC034-6627.jpg
HC034-6648.jpg

<가족실>

HC034-6628.jpg
HC034-6635.jpg
HC034-6636.jpg
HC034-6637.jpg
HC034-6638.jpg
HC034-6639.jpg
HC034-6640.jpg
HC034-6642.jpg

<2층 방1>

HC034-6643.jpg
HC034-6644.jpg
HC034-6650.jpg
HC034-6651.jpg
HC034-6652.jpg
HC034-6653.jpg

<2층 방2>

HC034-6645.jpg
HC034-6647.jpg

<2층 화장실>

HC034-6654.jpg
HC034-6657.jpg
HC034-6658.jpg
HC034-6660.jpg
HC034-6661.jpg
HC034-6663.jpg
HC034-6665.jpg
HC034-6666.jpg
HC034-6668.jpg

<주차장>

HC034-6697.jpg
HC034-6698.gif
HC034-6717.jpg
HC034-6764.jpg

<취미방>

HC034-6631.jpg
HC034-6632.jpg
HC034-6633.jpg

<건축가 사진>

HC034-6870.jpg (좌측부터)이동혁 건축가, 임성재 건축가, 정다운 건축가

이동혁 건축가 : 'ㄱ'자형 배치의 가장 큰 단점은 이동 동선이 길어짐에 따라 복도라는 공간이 생기고 그 공간이 데드 스페이스로 인지된다는 것에 있었습니다. 하지만 그 문제를 해결하는 방법은 오늘 설계 평면도에 답이 있습니다. 꼭 거실과 주방이 1층에 모두 존재해야 하는 것은 아닙니다. 1층에는 주방만을 배치한 후 복도를 없애고 바로 방으로 들어갈 수 있는 동선을 구성한 뒤 거실을 2층으로 별도 배치하여 데드 스페이스가 애초에 생길 수 없는 환경을 만들어주면 됩니다.


정다운 건축가 : 주택설계를 할 때 가장 주의해야 할 점은 고정관념에 사로잡히는 것입니다. 항상 그려왔듯이 안전하게... 솔직히 이건 너무 쉬운 방법이에요. 저희가 설계한 집들을 보면 단 하나도 동일한 집이 없습니다. 그 이유는 모든 집들을 설계할 때 건축주님께 100% 맞춘 설계를 진행했기 때문입니다. 포트폴리오를 참고하는 것은 말 그대로 도움을 얻는 정도이지 건축주님의 집을 그곳에서 찾으려고 하면 안 됩니다. 어차피 땅과 건축주님의 라이프스타일이 모두 다르게 때문에 남에 집을 그대로 가져와 짓는다는 것은 애초에 말도 안 되는 내용입니다. 건축주님만의 집을 지으세요. 일생에 단 한번 짓는 집. 건축주님만을 위한 집으로 지으셔야 합니다.


임성재 건축가 : 기존에 가장 많이 사용되었던 벽돌을 기성 사이즈의 벽돌이었습니다. 특히 고벽돌과 청고 벽돌에 많이 치중되어 있었습니다. 최근에는 좀 더 다양한 느낌을 집에 넣어주기 위해 긴 벽돌 형태인 모노롱벽돌을 사용하기 시작했습니다. 솔직히 최근이라기보다는 사용된지는 조금 오래되었는데 최근 몇 년간 젊은 층에서 많이 사용되고 있다고 생각하시면 될 것 같습니다. 모던 스타일의 가장 큰 장점은 군더더기가 없는 깔끔한 면에 있습니다. 이번 주택처럼 그레이톤의 모노롱벽돌과 깔끔한 선 정리. 그리고 리얼징크와의 조합으로 집을 짓는다면 지나다니는 사람들 모두가 한 번쯤 고개 돌려 쳐다볼만한 집으로 탄생될 것입니다.


※모든 저작권은 홈트리오(주)에게 있습니다. 최근 무단으로 디자인과 설계 평면도를 복제해 마치 본인들이 한 것인 듯 홍보하는 업체들이 있는데 법적 책임을 물을 수 있다는 점 고지드립니다.

홈트리오 조직 계열도.jpg
프로필 통합본.jpg (좌측부터) 이동혁 건축가, 정다운 건축가, 임성재 건축가

[집이라는 본질적인 가치에 집중하다.]

Architecture Team : 홈트리오(주)

대표번호 : 1522-4279

홈페이지 : http://hometrio.kr/

KakaoTalk_20191210_164551850.jpg
KakaoTalk_20200521_090546896.jpg
img.jpg


keyword