brunch

3.2 56평 도심에 불어온 꽃향기/세종

PART 3. 꿈의 집을 짓다

by 이동혁 건축가
KakaoTalk_20200521_090546896.jpg

제목 : 우리는 전원주택을 짓습니다

-홈트리오 완공 주택 30채의 이야기-


저자 : 이동혁, 임성재, 정다운


HC051-2588r.jpg

제목 : 우리는 전원주택을 짓습니다

부제 : 홈트리오 완공 주택 30채의 이야기


PART 2. 나만의 개성을 담아 집을 짓다

3.2 56평 도심에 불어온 꽃향기/세종

0.메인 HC049-1668.jpg


POINT.1

세라믹 사이딩은 이미 검증된 외장재입니다. 색이 변하지 않으며, 오염에 강하기 때문에 많은 건축주님들의 선택을 받고 있습니다. 세라믹 사이딩은 저렴한 외장재가 아닙니다. 일본에서 전량 수입하기 때문에 외장재 중에서도 상위에 금액이 형성되어 있습니다. 무조건 좋다고 선택했다가는 세라믹 사이딩 외장 시공비용만 수천만 원이 나오게 될 것입니다. 또한 이 비싼 세라믹 사이딩을 잘못 사용하시는 분들이 계세요. 세라믹 사이딩을 잘못 디자인해 붙이게 되면 창고처럼 보이게 됩니다. 세라믹 사이딩이 사용되는 집은 필히 일본식 주택 스타일인 'ZEN'스타일로 입면을 디자인해 주어야 합니다. 엉뚱하게 디자인해 버리면 이도 저도 아닌 창고의 느낌밖에 안 나기 때문에 헛돈 쓴 게 되어버리는 거죠. 꼭 기억하세요. 외장재와 입면 디자인은 같이 가야 한다는 것을요.


POINT.2

테릴 평기와는 무게감과 모던한 감성을 같이 가져갈 수 있는 유일무이한 지붕재입니다. 집을 디자인할 때 벽과 지붕의 디자인적 조화를 많이 고민합니다. 비싼 재료를 사용했다 하더라도 각 자재의 조화가 이루어지지 않으면 생뚱맞은 결과 값을 초래하게 됩니다. 테릴 평기와는 스타코플렉스의 깔끔한 느낌 또는 세라믹 사이딩처럼 정돈되면서 세련된 느낌을 주는 외장재와 찰떡입니다. 의외로 고벽돌처럼 질감이 느껴지는 외장재 하고는 느낌이 잘 맞지 않습니다. 또한 기와나 세라믹 사이딩을 조합할 때는 처마 부분이 포인트입니다. 정말 집처럼 디자인해야 이 조합이 빛날 수 있습니다. 박스형의 모던한 느낌(?) NO! 정말 아니에요. 각 자재가 가진 특징들을 빛날 수 있게 집을 디자인해야 한다는 것 잊지 마세요.


POINT.3

조경에도 설계가 필요합니다. 손으로 대충 그려서 시공해 달라고 한들 디테일이 없기 때문에 형편없이 조경이 시공됩니다. 도면 작업은 필수입니다. 좀 더 퀄리티 높은 조경을 위해서는 식생과 어떻게 조명을 설치할 것인지까지 고려되어야 합니다. 다른 사람들이 한 조경이 별거 없는 것 같아 보여도 그 느낌을 내기 위해 많은 고민을 한 후 조경설계를 진행한 사례들일 것입니다. 나무를 심고 꽃을 심는 하나하나까지도 조화가 이루어지고 밸런스가 맞춰서 배치되어야 비로소 하나의 안정감 있는 집처럼 보이는 것입니다. 아! 특히 대나무를 심는 것에 대해서는 조심하세요. 번식이 빠르고 뿌리가 기초 아래를 파고들 수 있는 문제가 있기 때문에 가급적 집과 먼 곳에 심는 것을 추천합니다.


SPEC

공법 : 경량목구조

설계, 시공 : 홈트리오(주) / 상담문의 : 1522-4279

ARTIST : 건축가 정다운, 임성재, 이동혁

홈페이지 : http://hometrio.kr/

지붕마감재 : 테릴 평기와 / 외벽 마감재 : 세라믹사이딩 / 포인트자재 : 세라믹사이딩, 파벽돌

실내벽마감재 : 실크벽지 / 실내바닥마감재 : 이건 강마루

창호재 : 이건 알루미늄 3중 시스템창호

건축면적 : 185.33㎡(1층 : 126.18㎡, 2층 : 59.15㎡)

예상 총 건축비 : 454,600,000원(부가세 포함, 산재보험료 포함 / 설계비, 인허가비, 구조계산 설계비 별도)

설계비 : 14,000,000원(부가세 포함) / 인허가비 : 5,600,000원(부가세 포함)

구조계산 설계비 : 5,600,000원(부가세 포함) / 인테리어 설계비 : 8,400,000원(부가세 포함)

*건축비 외 부대비용 : 대지구입비, 가구(싱크대, 신발장, 붙박이장), 기반시설 인입(수도, 전기, 가스 등), 토목공사, 조경비 등


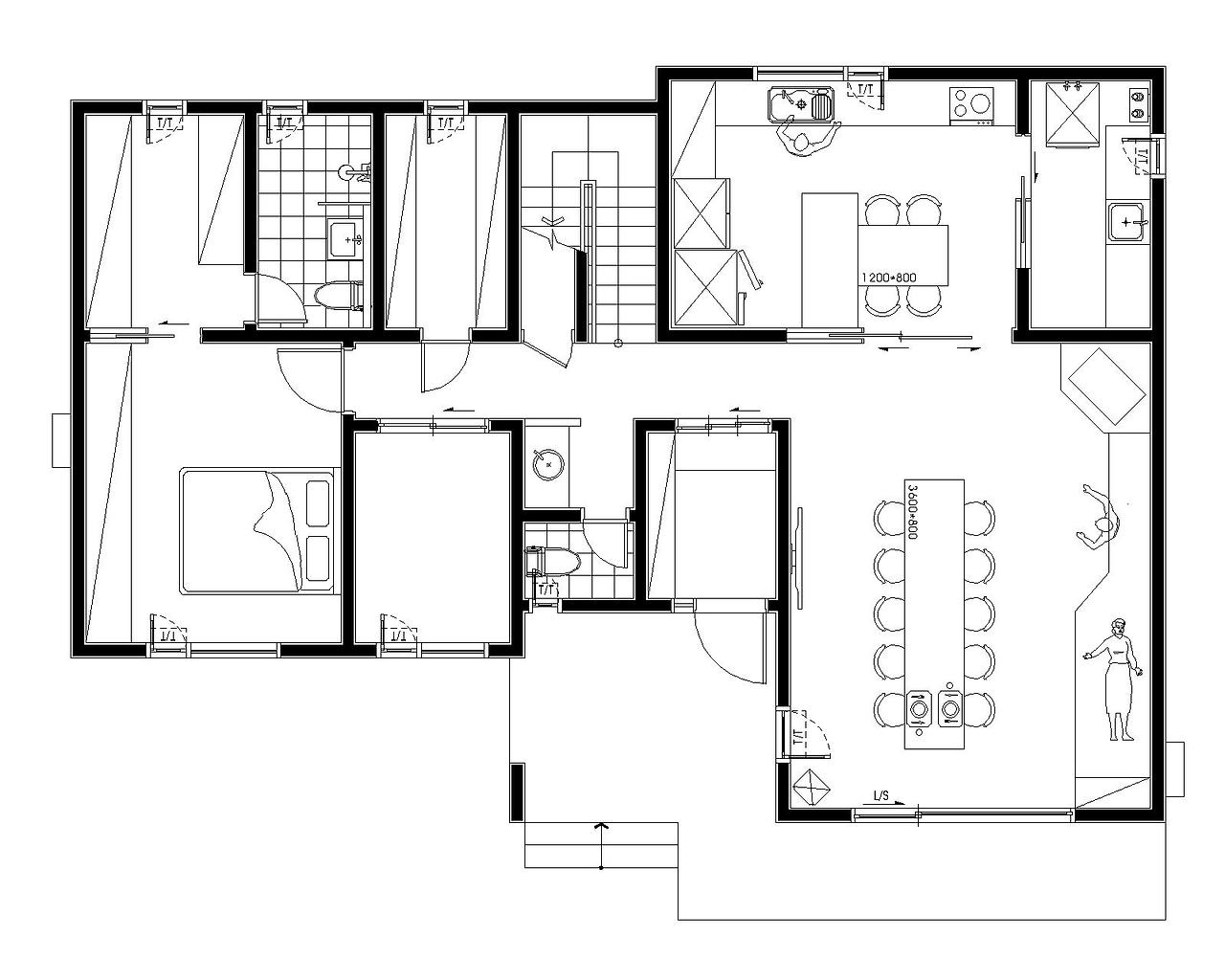
Floor Plan

1층 평면도.jpg 1층 평면도
2층 평면도.jpg 2층 평면도

<외관>

0.메인 HC049-1668.jpg
HC049-1611.jpg
HC049-1614.jpg
HC049-1628.jpg
HC049-1635.jpg
HC049-1643.jpg

<현관>

HC049-1584.jpg
HC049-1588.jpg

<1층 거실>

HC049-1531.jpg
HC049-1532.jpg
HC049-1534.jpg
HC049-1537.jpg
HC049-1539.jpg
HC049-1543.jpg
HC049-1544.jpg
HC049-1554.jpg
HC049-1576.jpg
HC049-1580.jpg

<주방>

HC049-1555.jpg
HC049-1560.jpg
HC049-1561.jpg
HC049-1563.jpg
HC049-1566.jpg
HC049-1571.jpg
HC049-1574.jpg

<1층 욕실>

HC049-1519.jpg
HC049-1520.jpg
HC049-1522.jpg
HC049-1523.jpg
HC049-1525.jpg

<1층 방1>

HC049-1507.jpg
HC049-1511.jpg
HC049-1513.jpg
HC049-1514.jpg

<1층 방2>

HC049-1472.jpg
HC049-1476.jpg
HC049-1479.jpg
HC049-1482.jpg
HC049-1488.jpg
HC049-1489.jpg

<드레스룸>

HC049-1492.jpg
HC049-1494.jpg
HC049-1496.jpg
HC049-1497.jpg

<안방 화장실>

HC049-1502.jpg
HC049-1504.jpg
HC049-1506.jpg

<계단실>

HC049-1465.jpg
HC049-1467.jpg
HC049-1469.jpg
HC049-1470.jpg
HC049-1516.jpg
HC049-1518.jpg
HC049-1529.jpg

<2층 복도>

HC049-1408.jpg
HC049-1410.jpg
HC049-1411.jpg
HC049-1415.jpg
HC049-1417.jpg
HC049-1421.jpg
HC049-1424.jpg
HC049-1425.jpg
HC049-1427.jpg

<2층 방1>

HC049-1428.jpg
HC049-1431.jpg
HC049-1433.jpg
HC049-1436.jpg
HC049-1439.jpg

<2층 방2>

HC049-1441.jpg
HC049-1446.jpg
HC049-1448.jpg
HC049-1449.jpg
HC049-1455.jpg

<발코니>

HC049-1403.jpg
HC049-1406.jpg

<2층 화장실>

HC049-1457.jpg
HC049-1461.jpg
HC049-1463.jpg
HC049-1464.jpg

<건축가 사진>

HC049-1609-1.jpg (좌측부터) 임성재 건축가, 이동혁 건축가, 정다운건축가(아파서 불참^^;)



이동혁 건축가 : 내 집을 짓는다는 것은 집에 나를 맞추는 것이 아닌 나의 라이프스타일에 집을 맞춘다는 의미일 것입니다. 사람들마다 좋아하는 것도 다 다르고, 활동에 대한 스타일도 서로 다르기 때문에 "똑같은 집을 지어 맞추어 살아라"라고 했던 것 자체가 어찌 보면 모순된 부분이 큰 건축이었을 거라 생각합니다. 전원주택을 짓고 사는 꿈을 꾸는 이유는 아마 이러한 이유에서 시작하는 것 같습니다. 현관에 들어왔을 때 항상 똑같은 공간이 아닌 나의 생활상에 맞춘 공간이 나타나고, 이 공간에서의 활동을 통해 또 다른 힐링과 매력포인트를 느낄 수 있다는 것. 이 공간에서 단순한 목적을 넘어 다목적 활용을 할 수 있는 공간을 만들어 내는 것. 이번 주택은 그러한 의미에서 시작한 주택 설계랍니다.


정다운 건축가 : 거실이라는 공간은 티브이를 보는 공간으로 단정되는 경우가 많습니다. 하지만 최근 들어 이 공간에서 모임을 한다던가 취미활동 등 다양한 목적을 영위할 수 있는 공간으로 거실이 바뀌고 있습니다. 이번 주택의 경우 가벼운 다과 모임 및 강의를 할 수 있는 공간으로 거실 공간을 구성하였으며, 주방 부분은 별도의 도어를 설치해 거실 부분과 독립적으로 분리될 수 있도록 공간을 구성하였습니다.


임성재 건축가 : 외관을 디자인할 때 처음으로 하는 것은 벽 구성, 그다음에는 창문 디자인, 그다음 지붕 디자인입니다. 볼륨감을 원하시는 분들의 경우 평면 자체에서부터 그 공간을 구성해야 디자인에 반영될 수 있는데요. 평면을 다 정해놓고 그다음 볼륨감을 위해 넣고 들어가는 입면을 만들고자 하면 어렵기도 하고 까딱 잘못했다가는 평면이 뒤집어지는 경우들도 있습니다. 단순하게 생각하세요. 평면에서 그렸던 선이 그대로 벽이 되는 것이고, 볼륨감을 느낄 수 있는 부위는 포치 부분과 발코니 부분 등이라는 것을 말입니다. 하나 더 포인트를 준다고 하면 지붕에서 주는 것이 좋아요. 너무 쪼개는 것은 반대고 적절히 박공지붕과 모임지붕을 조합한다면 나만의 유니크한 집이 탄생할 수 있을 것입니다.


※모든 저작권은 홈트리오(주)에게 있습니다. 최근 무단으로 디자인과 설계 평면도를 복제해 마치 본인들이 한 것인 듯 홍보하는 업체들이 있는데 법적 책임을 물을 수 있다는 점 고지드립니다.

홈트리오 조직 계열도.jpg
프로필 통합본.jpg (좌측부터) 이동혁 건축가, 정다운 건축가, 임성재 건축가

[집이라는 본질적인 가치에 집중하다.]

Architecture Team : 홈트리오(주)

대표번호 : 1522-4279

홈페이지 : http://hometrio.kr/

KakaoTalk_20191210_164551850.jpg
KakaoTalk_20200521_090546896.jpg
img.jpg


keyword