brunch

3.1 33평 소소한 멋을 입다/공주

PART 3. 꿈의 집을 짓다

by 이동혁 건축가
KakaoTalk_20200521_090546896.jpg

제목 : 우리는 전원주택을 짓습니다

-홈트리오 완공 주택 30채의 이야기-


저자 : 이동혁, 임성재, 정다운


HC051-2588r.jpg

제목 : 우리는 전원주택을 짓습니다

부제 : 홈트리오 완공 주택 30채의 이야기


PART 2. 나만의 개성을 담아 집을 짓다

3.1 33평 소소한 멋을 입다/공주

0.매안 마스터슬라이드.jpg


POINT.1

콤팩트 사이즈에 모든 것을 담아냈습니다. 30평형의 소평 단층 주택을 짓는다면 이렇게 지으라고 이야기하고 싶어요. 군더더기가 없으며, 가장 현대적인 감성을 가지고 디자인된 주택입니다. 간혹 건축주들이 작은 면적에 많은 생각을 담아내려고 할 때가 있는데요. 본인이 만족하면 그만일 수도 있겠지만 어차피 정해진 면적에서 엄청난 결과가 나올 수가 없음을 아셔야 합니다. 선택과 집중. 그리고 포기할 것은 과감히 포기하는 전략. 그것이 콤팩트 사이즈의 주택을 성공리 완성시킬 수 있는 방법이랍니다.


POINT.2

이 집의 메인 얼굴이라고 할 수 있는 부분을 하나 꼽으라면 정면부의 픽스 창일 거예요. 창도 비율이 매우 중요합니다. 무조건 크게 한다고 예쁜 것은 아니에요. 안과 밖에서 잘생겨 보이는 비율로 맞춰 배치해 주는 것. 그것이 핵심이랍니다. 거실 창을 일반적으로 생각한다면 가운데 픽스 창이 있고 양쪽에서 열리던지, 아니면 한쪽만 열리는 방식으로 많이 디자인합니다. 사용하기에 가장 편하고 아파트에 익숙한 우리들은 어색함 없이 바로 사용할 수 있는 형태거든요. 하지만 이번 주택에서는 그러한 일반적인 형태를 벗어나 가로로 긴 픽스 창과 틸팅 기능의 작은 환기창으로 디자인했습니다. 약간 어색함이 느껴지실 거예요. 그동안 못 보아왔던 느낌이니까요. 하지만 바로 이 창문 하나로 이 집의 정면부 이미지가 완전히 달라졌다면(?) 저 부분에 일반적인 느낌의 창을 설치했다면 분명 그냥 시골집처럼 보였을 거예요. 무언가 유니크하고 모던한 느낌이 드는 그 기분은 바로 이 집에서 저 창이 주는 효과라고 생각해주셔도 무방합니다.


POINT.3

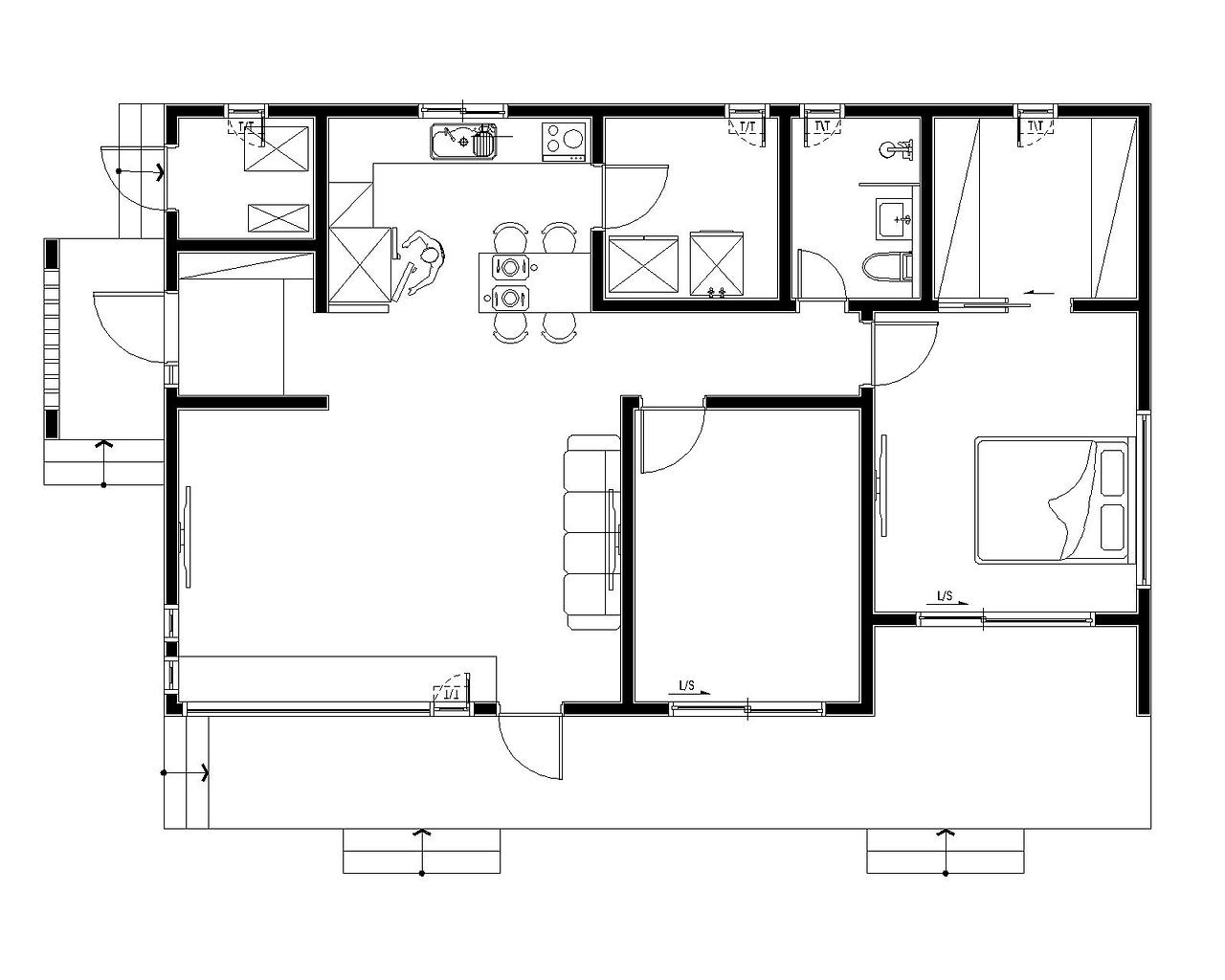
33평이라는 공간은 결코 큰 면적이 아닙니다. 30평에 방도 3개 넣고, 화장실도 2개 넣고, 공간이 남으면 거실 주방도 크게 하고... 네, 이해는 합니다. 문제는 여러분들이 생각하는 그 정도의 공간이 나오질 않습니다. 이 생각을 정리하기까지 너무 오랜 시간이 걸립니다. 33평의 단층 주택. 이 집은 2개의 방과 1개의 화장실이 최적입니다. 그리고 거실과 주방을 확실하게 만들어 주어야 합니다. 공용공간이 죽으면 나머지 공간도 빛을 보기 어렵습니다. 현관을 통해 내부를 들어왔을 때 느껴지는 그 공간감. 그게 다예요. 확실하게 임팩트 있게 공간의 개방감을 주세요. 작은 집이라고 해서 거실과 주방이 작아야 될 이유는 없습니다. 넓게 사세요. 오픈된 공간을 만드세요. 그것이 작은집에서 행복함과 여유를 가져갈 수 있는 방법이랍니다.


SPEC

공법 : 경량목구조

설계, 시공 : 홈트리오(주) / 상담문의 : 1522-4279

ARTIST : 건축가 정다운, 임성재, 이동혁

홈페이지 : http://hometrio.kr/

지붕마감재 : 리얼징크 / 외벽 마감재 : 스타코플렉스 / 포인트자재 : 파벽돌, 합성목재

실내벽마감재 : 실크벽지, 도장마감 / 실내바닥마감재 : 포세린타일

창호재 : 이건 알루미늄 3중 시스템창호

건축면적 : 108.00㎡(1층 : 108.00㎡)

예상 총 건축비 : 267,000,000원(부가세 포함, 산재보험료 포함 / 설계비, 인허가비, 구조계산 설계비 별도)

설계비 : 8,250,000원(부가세 포함) / 인허가비 : 3,300,000원(부가세 포함)

구조계산 설계비 : 3,300,000원(부가세 포함) / 인테리어 설계비 : 4,950,000원(부가세 포함)

*건축비 외 부대비용 : 대지구입비, 가구(싱크대, 신발장, 붙박이장), 기반시설 인입(수도, 전기, 가스 등), 토목공사, 조경비 등


Floor Plan

1층 평면도.jpg 1층 평면도

<외관>

0.매안 마스터슬라이드.jpg
HC058-4790.jpg
HC058-4792.jpg
HC058-4810.jpg
HC058-4973.jpg

<현관>

HC058-4843.jpg
HC058-4844.jpg
HC058-4846.jpg
HC058-4847.jpg
HC058-4848.jpg
HC058-4849.jpg

<거실>

HC058-4866.jpg
HC058-4869.jpg
HC058-4871.jpg
HC058-4875.jpg
HC058-4882.jpg
HC058-4884.jpg
HC058-4885.jpg
HC058-4898.jpg

<주방>

HC058-4815.jpg
HC058-4820.jpg
HC058-4826.jpg
HC058-4828.jpg
HC058-4836.jpg
HC058-4841.jpg
HC058-4852.jpg
HC058-4854.jpg
HC058-4860.jpg

<안방>

HC058-4900.jpg
HC058-4902.jpg
HC058-4905.jpg
HC058-4908.jpg
HC058-4911.jpg

<안방 드레스룸>

HC058-4913.jpg
HC058-4914.jpg

<방 2>

HC058-4887.jpg
HC058-4892.jpg
HC058-4893.jpg

<화장실>

HC058-4918.jpg
HC058-4920.jpg
HC058-4922.jpg
HC058-4923.jpg

<건축가 사진>

HC058-4951.jpg (좌측부터) 정다운 건축가, 임성재 건축가, 이동혁 건축가


이동혁 건축가 : 33평의 내부 공간에서 풀어낼 수 있는 최적의 공간을 찾아 설계를 진행한 사례입니다. 단층이기 때문에 계단실에 대한 공간 손실을 보지 않아도 되고, 방을 두 개만 배치하면서 나머지 공간을 모두 공용공간으로 가져갈 수 있는 형태로 내부 구성을 진행하여, 작은 평수대의 주택이지만 두 분이 거주하시는 공간 또는 세컨드 하우스로서의 역할을 충분히 할 수 있는 주택으로 설계가 되었습니다.


정다운 건축가 : 작은 평형대의 주택이기 때문에 어설프게 공간을 쪼개기보다는 거의 직사각형 형태의 내부 공간배치와 군더더기 없는 외관 디자인으로 가성비를 높여줄 수 있는 건축설계를 진행하였습니다. 포인트라고 할만하게 없어요. 완전히 깔끔하게 외벽을 마무리했거든요. 대신 모던한 느낌을 가미해주기 위해 지붕을 징크로 디자인하였습니다. 오히려 이렇게 하나의 포인트만 사용하여 깔끔하게 마감하는 것이 더 예쁘게 보일 때가 있답니다.


임성재 건축가 : 한국사람들은 유독 방 3개를 특별히 원합니다. 아마 핵가족인 4인 가족 형태가 일반적이기 때문에 자연스럽게 방 3개라는 인식이 자리 잡게 된 것 같은데요. 문제는 넉넉한 면적이라면 얼마든지 원하는 만큼 방을 만들어도 되는데, 소형평수대에서 무리하게 방을 밀어 넣다 보면 정작 중요한 거실이라던지 주방의 공간이 말도 안 되게 작게 나오는 경우가 있습니다. 물론 거실이 작아도 전혀 상관없다고 하시는 분들도 계시지만 저희의 경험상에 비춰보면 짓고난 다음 항상 집이 너무 작다는 이야기를 한답니다. 방을 먼저 구성하는 것이 아니라 가장 많이 사용하는 거실 및 주방 공간을 먼저 잡은 뒤 방을 구성해 보세요. 그것이 더 괜찮은 공간 구성 방법일 수 있습니다.


※모든 저작권은 홈트리오(주)에게 있습니다. 최근 무단으로 디자인과 설계 평면도를 복제해 마치 본인들이 한 것인 듯 홍보하는 업체들이 있는데 법적 책임을 물을 수 있다는 점 고지드립니다.

홈트리오 조직 계열도.jpg
프로필 통합본.jpg (좌측부터) 이동혁 건축가, 정다운 건축가, 임성재 건축가

[집이라는 본질적인 가치에 집중하다.]

Architecture Team : 홈트리오(주)

대표번호 : 1522-4279

홈페이지 : http://hometrio.kr/

KakaoTalk_20191210_164551850.jpg
KakaoTalk_20200521_090546896.jpg
img.jpg


keyword