7.3 131평 북위례 듀플렉스:BW131

PART 7. July-젊은 전원주택 트렌드 5

by 이동혁 건축가
KakaoTalk_20200521_090546896.jpg

스타 건축가 3인방의 집짓기 제안

제목 : 젊은 전원주택 트렌드 5

-아이들과 함께하는 행복한 집짓기-


저자 : 이동혁, 임성재, 정다운


PART 7. July


칠월 세 번째. 131평 북위례 듀플렉스:BW131


※모든 저작권은 홈트리오(주)에게 있습니다. 최근 무단으로 디자인과 설계 평면도를 복제해 마치 본인들이 한 것인 듯 홍보하는 업체들이 있는데 법적 책임을 물을 수 있다는 점 고지 드립니다.


STORY


: 북위례 단독주택 필지 내에 설계된 듀플렉스 하우스입니다. 도심형 단독주택의 매력을 듬뿍 안고 태어난 주택이며, 가족이 모여 살 수 있는 프라이빗한 주택으로 설계가 완료되었습니다.


철근콘크리트 공법으로 뼈대를 잡았으며, 벽돌 마감을 통해 전면 파사드의 라운드를 지게 하여 단독주택이지만 유니크한 느낌을 부여하고자 노력했습니다.


모던하면서 단단한 느낌의 주택. 그리고 프라이빗한 뒷마당까지 확보한 이번 주택은 북위례 단독주택 필지 내에서 랜드마크적인 역할을 할 주택으로 빛날 것이라 확신합니다.


북위례 단독주택 필지는 땅값이 20억이 넘어갈 정도로 비싼 대지입니다. 한 가구만 살아도 되는 땅이기는 하지만 건축비까지 포함한다면 거의 40억에 육박하는 비용이 선 투자되는 만큼 듀플렉스로 구성을 원하시는 분들이 대부분일 것이라 생각합니다.


듀플렉스 주택을 설계할 때 가장 중요한 것이 '프라이버시를 얼마만큼 지켜주면서 공간을 만들어 낼 것인가'입니다. 아무리 좋은 집이라도 두 가구가 함께 사는 공간이기 때문에 서로 자주 부딪히게 되면 그 불편함이 상상하는 것 이상으로 발생할 것이거든요.


이번 주택을 설계하면서 완벽하게 현관을 분리시키고, 도심형 단독주택에서 가장 중요한 법규적인 부분을 모두 만족시키면서 디자인을 완성시켰습니다.


저희들은 직접 설계와 시공을 모두 하고 있기 때문에 기획 투시도와 실물의 차이가 거의 발생하지 않습니다. 건축법규가 검토되지 않은 설계안은 그림일 뿐 건축도면이라 부르지 않습니다. 특히 가설계 많이들 받으시는데요. 문제는 어차피 본 설계 들어가면 다 뜯어고쳐야 한다는 것. 법규가 하나도 안 맞거든요.


시간이 '금'인 만큼 돌아서 가지 마세요. 어차피 답은 하나입니다. 정상적으로 설계받은 후 정확히 견적 받아서 깔끔하게 지으세요. 그것이 맞습니다..


도심형은 클래식한 느낌보다는 모던한 느낌의 주택이 더 잘 어울립니다. 산속에 있는 집이 아니고 주변의 환경이 모두 건물들이기 때문에 너무 취향적으로 가시는 것보다는 주변과 어느 정도의 흐름을 맞출 수 있게 집을 디자인하는 것이 좋습니다.


북위례 단독주택 필지는 지붕 경사면에 대해서 면적을 정해놓고 있습니다. 평 지붕만을 모두 원하실 수도 있지만 북위례 단독주택 필지에 집을 짓는다면 경사지붕은 필수라는 것 이야기드리겠습니다.


경사지붕을 디자인의 한 축으로 만들었습니다. 경사도는 조금 다르지만 정면에서 보았을 때 동일한 박공지붕이 연달이 이어지는 느낌으로 지붕을 완성시켰으며, 뒤쪽으로는 옥상을 활용할 수 있도록 했습니다. 일조권 사선이 적용되는 만큼 뒤쪽으로는 경사지붕을 놓을 수 없습니다. 애매하게 잘려버리거든요. 그렇다면 이번 주택처럼 도로 쪽으로 경사지붕을 배치하고 북쪽으로는 옥상을 배치하는 것이 베스트입니다.


창을 최대한 자제했습니다. 전면부에서는 라운드와 벽돌 자체의 면을 포인트로 느껴질 수 있도록 디자인했습니다. 경치가 좋은 곳이라면 창을 많이 내는 것을 추천하지만 도심지의 경우 채광을 위한 목적이 더 크기 때문에 남의 시선을 차단할 수 있는 상황에서의 면적만을 잡아드립니다. 너무 크게 뚫어버리면 아마 커튼을 치고 사는 시간이 더 많아질 수 있으니 이 부분은 참고해서 창을 계획하도록 하세요.


북위례는 지하를 파는 것에 있어서 매우 엄격합니다. 사람이 거주하는 공간은 설계할 수 없으며 창고로만 허가가 가능합니다. 아마 다목적 공간으로 활용하시면 될 것 같습니다. 참고로 화장실은 안됩니다. 다시 말하면 배관을 지하에 빼면 감리에서 걸리게 됩니다.


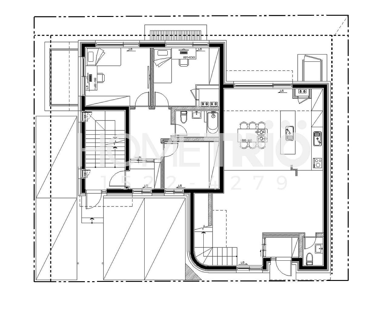
총 두 가구가 사는 집이기 때문에 평면 자체가 독특합니다. 왼쪽 세대는 1층에 방이 구성되고, 2층에 메인 거실이 형성됩니다. 반대로 오른쪽 세대는 1층에 거실과 주방, 그리고 2층에 프라이빗한 침실이 구성됩니다. 면적이 작은 만큼 한 층에 방과 거실을 모두 밀어 넣는 방식보다는 각 층별로 영역성을 구분해 주는 것이 중요합니다.


오밀조밀 쪼개서 하는 느낌보다는 '원 스페이스'처럼 넓게 각 공간들을 구성해 주었으며, 앞마당과 뒷마당을 모두 확보하면서 도심형이지만 아파트와는 다른 단독주택의 매력을 느낄 수 있도록 공간을 배치했습니다.


이번 주택은 총 131평으로 97평의 대지에 설계가 되었습니다. 총건축비는 12억 8천만 원으로 예상되며, 시장 상황에 따라 조금 변동은 있을 것 같습니다.


북위례 단독주택 필지가 서울에서는 가장 핫한 단독주택 주거지로 성장할 것 같습니다. 저희들도 총 4채의 설계를 진행 중인데요. 홈트리오만의 색깔이 확실히 담겨있는 주택 설계안으로 선보일 테니 앞으로도 많은 관심과 사랑 부탁드립니다.


#북위례단독주택 #도심형단독주택 #위례단독주택 #듀플렉스하우스 #다가구주택

북위례투시도-야경.jpg


공법 : 철근콘크리트(RC)

설계, 시공 : 홈트리오(주) / 상담문의 : 1522-4279

ARTIST : 건축가 정다운, 임성재, 이동혁

홈페이지 : http://hometrio.kr/

지붕마감재 : 리얼징크, 평지붕마감 / 외벽 마감재 : 벽돌(조적) / 포인트자재 : 벽돌(조적)

실내벽마감재 : 도장마감 / 실내바닥마감재 : 포세린타일, 이건 원목마루

창호재 : 이건 알루미늄 3중 시스템창호

건축면적 : 434.54㎡(지하 1층 : 153.34㎡, 1층 : 144.41㎡, 2층 : 136.79㎡, 다락: 38.72㎡)

예상 총 건축비 : 1,280,000,000원(부가세 포함, 산재보험료 포함 / 설계비, 인허가비, 구조계산 설계비 별도)

설계비 : 39,300,000원(부가세 포함) / 인허가비 : 13,100,000원(부가세 포함)

구조계산 설계비 : 13,100,000원(부가세 포함) / 인테리어 설계비 : 19,650,000원(부가세 포함)

*건축비 외 부대비용 : 대지구입비, 가구(싱크대, 신발장, 붙박이장), 기반시설 인입(수도, 전기, 가스 등), 토목공사, 조경비 등


0.jpg 지하 1층 평면도
1f.jpg 1층 평면도
2f.jpg 2층 평면도
3f.jpg 다락 평면도


이동혁 건축가 : 고급스러운 느낌을 외부에 입혀주고자 했습니다. 비싸 보이는 느낌이 아니라 말 그대로 고급스러움입니다. 수입 벽돌을 외장 마감으로 선택하여 무게감과 유니크함을 옷으로서 입혀주고자 했는데요. 원하는 결과물은 나왔지만 외장공사비용만으로 1억을 넘게 썼다는 것은 조금 아쉬움을 남깁니다. 하지만 파벽돌이나 인조석으로는 그 느낌을 낼 수 없었습니다. 재질적인 느낌과 텍스처의 디테일은 유럽의 수입 벽돌만이 낼 수 있는 쫀쫀함이 있거든요. 도심형 단독주택을 지을 때 외장재에 대한 고민을 정말 많이 하실 거예요. 저희들도 설계를 하면서 여러 번 고민을 하거든요. 우선 예산에 맞추시는 것을 추천드립니다. 그리고 디자인을 생각하세요. 어차피 원하는 게 있다 하더라도 돈이 없으면 선정할 수 없습니다. 그때부터는 욕심이거든요. 내부를 먼저 생각하시고, 그다음 디자인을 생각하세요. 특히 외장재는 말 그대로 취향이라는 점. 잊지 마세요.

정다운 건축가 : 단독주택의 로망. 특히 아이를 키우는 집들은 마음껏 뛰놀고, 작지만 내 마당이 있는 집들을 꿈꿀 것입니다. 아파트는 익숙해서 좋게 느껴질 뿐, 아이를 키우기에 최적화된 건축물은 아니거든요. 저희들도 수많은 집을 지어보면서 단독주택이 얼마나 매력적인 건축물인지를 매번 새롭게 깨닫습니다. 가족과 함께 모여사는 집. 사회의 변화로 핵가족이 일반적인 주류로 변했다고는 하지만 이제는 다시 모여 살아도 좋지 않을까 생각해 봅니다. 할아버지, 할머니와 함께 사는 집. 또는 형재, 자매가 함께 사는 집. 생각만으로도 행복한 기분이 들지 않나요? 이번 주택을 설계하면서 정말 행복했습니다. 많은 행복한 상상이 가득했었거든요. 이번 주택을 보면서 여러분들도 저희들과 같은 행복한 상상의 나래를 펼치며 하루를 보내셨으면 좋겠습니다.

임성재 건축가 : 이번 주택의 전면부에는 물홈통을 노출시키지 않았습니다. 박공지붕을 따라 흐르는 빗물을 경사면 끝에 숨겨진 내부 물홈통을 통해 우수가 배출될 수 있도록 설계했습니다. 디자인을 지키지 위한 방법으로 이러한 설계를 진행하였으며, 좀 더 모던한 느낌과 깔끔한 선이 외부적으로 표현되기를 바랐습니다. 하지만 뒷면 부분에는 확실하게 물홈통을 노출시켜 놓았습니다. 유지관리적인 측면에서는 노출시켜 놓는 것이 가장 확실하거든요. 막히거나 교체를 할 때에도 숨겨놓는 것보다는 노출시켜 놓는 것이 모든 면에서 좋습니다. 다만 디자인적으로 조금 안 예쁘다는 게 단점일 수 있겠네요. 건축적으로 디자인을 표현하는 방법은 이미 많은 기술개발로 완료가 되어 있는 상황입니다. 몰라서 안 하는 것이 아닌 알지만 이에 따라 발생되는 하자 및 단점을 또한 알기에 쉽게 적용하지 않는 것입니다. 디자인에는 그만큼 손해 보는 유지관리적인 측면이 있습니다. 무엇이 정답이라기보다는 모든 정보를 안 후 그다음 건축주님이 직접 선택을 하세요. 그래야 나중에 문제가 발생돼도 당황하지 않을 거예요. '알아서 해주세요'라는 말 별로 안 좋아합니다. 알아서 해주면 나중에 본인이 의도했던 것이 그것이 아니라고 다 뒤집거든요. 하나부터 열까지 모두 제안 주세요. 그리고 본인들의 취향을 정확히 구체적으로 알려주셔야 디자인 적으로 반영이 됩니다. 말 안 하면 몰라요. 저희들은 신이 아니거든요.


북위례투시도.jpg

*현 모델은 기획모델로서 설계도와 투시도가 상이할 수 있음을 알려드립니다.

메스1.jpg
메스2.jpg
메스3.jpg
메스4.jpg
북위례투시도.jpg
북위례투시도-야경.jpg

zIc8iYq2rVAhYzP6-dWk8s2df0E.jpg

홈트리오 조직 계열도.jpg
프로필 통합본.jpg (좌측부터) 이동혁 건축가, 정다운 건축가, 임성재 건축가

[집이라는 본질적인 가치에 집중하다.]

Architecture Team : 홈트리오(주)

대표번호 : 1522-4279

홈페이지 : http://hometrio.kr/

KakaoTalk_20191210_164551850.jpg
KakaoTalk_20200521_090546896.jpg
img.jpg