PART 11. November-젊은 전원주택 트렌드 5
스타 건축가 3인방의 집짓기 제안
-아이들과 함께하는 행복한 집짓기-
저자 : 이동혁, 임성재, 정다운
PART 11. November
※모든 저작권은 홈트리오(주)에게 있습니다. 최근 무단으로 디자인과 설계 평면도를 복제해 마치 본인들이 한 것인 듯 홍보하는 업체들이 있는데 법적 책임을 물을 수 있다는 점 고지드립니다.
STORY
: 유니크한 분위기를 자아내는 이번 단독주택은 모던함과 더불어 트렌디함을 품고 태어난 주택이라 설명드릴 수 있습니다. 그동안 저희들이 진행해 왔던 전원주택과는 완전히 다른 느낌의 주택일 거예요.
이번 주택의 가칭은 '예랑 79'이라고 지었습니다. 슬기롭고 밝게라는 뜻인데요. 큰 의미보다는 주변의 아기 이름이 너무 예뻐서 집 이름으로 가져오게 되었습니다.
콘셉트가 이름을 따라간다고 했던가요. 이 집도 밝은 느낌으로 아름답게 디자인이 탄생했습니다. 투시도를 보면 집이 2 채인 것을 볼 수 있습니다. 한 가족이 같이 짓는 집이며, 왼쪽과 오른쪽 주택이 완전히 분리된 건물로서 설계되었습니다.
이번 글에서 이야기드릴 주택은 왼쪽의 주택입니다. 기본 공법은 철근콘크리트로 구성했습니다. 단단하면서 공간을 조금 더 재미있게 설계할 수 있는 공법으로 선정을 진행했습니다.
첫 이 집을 만나셨을 때의 느낌은 아마 독특하고 매력적이다라는 생각을 가지셨을 겁니다. 일반 주택하고는 그 디자인의 시작점이 완전히 다르거든요. 굴곡도 많고 창문도 독특하게 형성되어 있고.
더 독특한 것은 면의 디자인과 지붕의 굴곡일 거예요. 그동안 저희 홈트리오가 그려왔던 주택과는 완전히 다른 느낌으로 집을 설계했거든요.
땅이 매우 제약적인 형태였습니다. 반듯한 땅이었다면 이런 멋집 집을 탄생시키지 못했을 거예요. 제약이 있는 땅을 해결했을 때 비로소 일반적이지 않고 유니크한 랜드마크적인 건물이 탄생할 수 있다고 생각합니다.
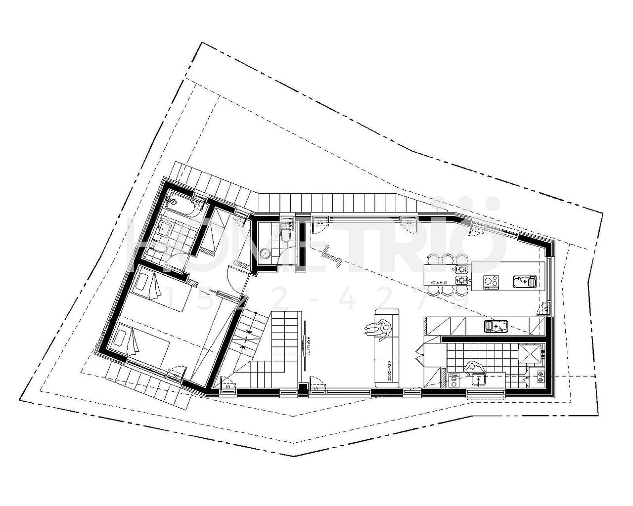
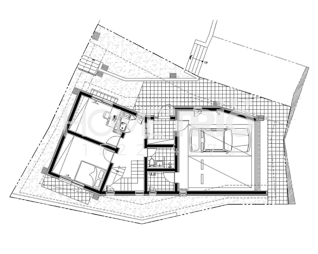
평면에 대한 이야기를 좀 해볼게요. 일단 이 집은 3층 주택입니다. 경사지가 있어 자연스럽게 지하 주차공간이 생겨났고, 지하주차장과 더불어 뒤쪽으로 메인 현관과 침실이 배치되었습니다. 모두 창이 존재하기 때문에 습과 환기에 대한 부분은 걱정하시지 않으셔도 괜찮습니다.
2층이 메인 주 생활공간입니다. 거실과 주방을 원스페이스 공간을 넓게 구성했으며, 어설프게 벽으로서 공간을 나누기보다는 계단실 코어를 중심으로 공용공간과 개인공간의 영역성을 나누어 주었습니다.
2층 왼쪽을 보시면 안방 존을 형성해 주었는데 작은 드레스룸과 화장실까지 모두 구성한 것을 볼 수 있을 거예요. 외부인이 못 들어오는 온전히 부부만을 위한 공간으로 설계했습니다. 공용화장실은 계단실 바로 앞에 별도로 구성해 주어 편리성을 더했습니다.
3층은 자녀방입니다. 지하층에 마련된 침실 공간은 침실의 역할보다는 운동하는 다목적 공간과 서재의 공간을 겸하며, 3층이 자녀들의 메인 룸이라고 보시면 될 것 같습니다. 별도의 화장실을 당연히 설치해 주었으며, 간이 싱크대를 설치하여 가벼운 다과 및 차를 마실 수 있는 공간으로 가족실을 구성했습니다. 애매하게 남는 복도의 공간을 조금 더 넓히고 그 공간에 티 테이블을 놓아 가족실로 만들어 준 것입니다.
또 하나의 매력적인 공간은 발코니 공간입니다. 1층까지 내려오지 않아도 야외의 시원한 바람을 쐴 수 있는 공간입니다. 일부 지붕을 덮어주어 비가 오더라도 침실의 창문을 열어 비가 오는 경치를 즐길 수도 있답니다.
#일산랜드마크 #모던하우스 #아름다운집 #고고한멋 #패밀리하우스
공법 : 철근콘크리트
설계, 시공 : 홈트리오(주) / 상담문의 : 1522-4279
ARTIST : 건축가 정다운, 임성재, 이동혁
홈페이지 : http://hometrio.kr/
지붕마감재 : 리얼징크 / 외벽 마감재 : 모노롱벽돌 / 포인트자재 : 모노롱벽돌
실내벽마감재 : 도장마감 / 실내바닥마감재 : 이건 강마루, 포세린타일
창호재 : 이건 알루미늄 3중 시스템창호
건축면적 : 262.26㎡(1층 : 100.21㎡, 2층 : 97.12㎡, 3층 : 64.93㎡)
예상 총 건축비 : 1,027,000,000원(부가세 포함, 산재보험료 포함 / 설계비, 인허가비, 구조계산 설계비 별도)
설계비 : 23,700,000원(부가세 포함) / 인허가비 : 7,900,000원(부가세 포함)
구조계산 설계비 : 7,900,000원(부가세 포함) / 인테리어 설계비 : 11,850,000원(부가세 포함)
*건축비 외 부대비용 : 대지구입비, 가구(싱크대, 신발장, 붙박이장), 기반시설 인입(수도, 전기, 가스 등), 토목공사, 조경비 등
이동혁 건축가 : 한계성이 높은 대지에서 빛을 이끌어낸 프로젝트였습니다. 역시 어려운 환경일수록 피어나는 꽃은 더욱 아름답기 마련인 것 같습니다. 반듯하지 않은 대지일수록 더 유니크하게 집이 디자인되는 것 같습니다. 다만 저희들이 너무 힘들다는... 그래도 이렇게 멋지게 집이 탄생해서 너무 기쁘답니다. 볼륨감이 매우 높은 주택입니다. 굴곡도 많아도 들어가고 나오는 면이 많아서 자연스럽게 유니크한 입면을 가질 수 있었습니다. 이러한 형태에는 조적식 벽돌이 잘 어울립니다. 벽돌이라는 재질과 만나 굴곡이 이루어지면 그 어떠한 집보다도 멋지고 고급스러운 느낌의 집으로 탄생한답니다.
정다운 건축가 : 모든 창을 이건브랜드의 알루미늄 3중 시스템창으로 계획했습니다. 이 이상은 없습니다. 좋은 집 짓고 저렴한 창호 다시는 분들이 계신데요. 뭐 선택은 자유지만 웬만하면 좋은 창호 설치하시기 바랍니다. 아! 본인 창호 안 좋다고 하는 분 없어요. 저희들도 많은 브랜드를 사용해 봤지만 인정하는 것은 딱 2개입니다. 이건창호와 LG창호. 다른 창호도 분명 장점을 가지고 있어요. 하지만 저희들은 이 시스템창호는 이건, 발코니 창호는 LG 이 두 개만 사용합니다. 더 이상 이야기 하기 싫어요. 10년 이상 집을 지어온 결과 그 답은 이 두 개 브랜드였다는 것. 나머지 이야기는 여러분들의 선택에 맡기겠습니다.
임성재 건축가 : 현 트렌드는 어둡게 집을 짓기보다는 최대한 밝은 느낌으로 집을 짓는 것이 디자인 트렌드입니다. 외벽이 오염될 것이 두려워 어두운 계열로 하는 경우는 많이 없어졌습니다. 그레이톤으로만 잘 구성하셔도 이 집은 화이트톤 계열처럼 보입니다. 그리고 해가 비치는 시각에 따라 조금씩 달라지기는 하지만 어느 시간대던 밝은 외장재에 그림자가 드리워졌을 때 더 멋지게 보입니다. 볼륨감과 입체감은 결국 그림자가 어떻게 지느냐에 따라 결정됩니다. 사계절마다 그리고 시간대마다 달라지는 내 집의 모습. 모던스타일의 도시적인 느낌과 볼륨감, 그리고 입체감이 서로 어우러지면 그것이야말로 남들이 부러워하는 집의 탄생이라고 이야기하고 싶네요.