오늘의집/52평 전원주택 '별에서 온 그대'

2024 월간 홈트리오 100 - 020번째

by 이동혁 건축가

http://spacemillion.kr <-ai 스페이스 밀리언

https://dewmillion.kr/ <-듀밀리언 종합건설

스페이스밀리언 배너.jpg

2024 월간 홈트리오 100 - 020번째 / 오늘의 집 / 52평 전원주택 '별에서 온 그대'(2024 전원주택)


※모든 저작권은 홈트리오(주), 듀밀리언 종합건설에게 있습니다. 최근 무단으로 디자인과 설계 평면도를 복제해 마치 본인들이 한 것인 듯 홍보하는 업체들이 있는데 법적 책임을 물을 수 있다는 점 고지드립니다.

상주-이안면-투시도.jpg

STORY


: 청초한 이미지를 가지고 태어난 주택.

아름다움과 우아함을 동시에 느낄 수 있는 집으로 설계하였으며, 52평이라는 넉넉한 공간으로 구성하여 온 가족이 불편함 없이 충분한 전원생활의 매력을 만끽할 수 있는 그러한 집으로 탄생시켰습니다.


밝은 느낌을 집 전체에 불어넣어 주고자 노력하였으며, 안정감 있게 내려앉은 지붕 디자인과 더불어 개방감 있는 창문 디자인은 이 집의 매력을 더욱 부각해 준답니다.


아름다운 디자인과 넓은 실내 공간이 매력인 이번 주택. 어떠신가요?


초반에 잡았던 건축예산이 끝까지 가면 좋으련만 설계를 하고 집을 짓다 보면 점차 건축비가 늘어나는데요. 상세 내역을 살펴보면 엄청 크게 예산이 들어간 부분이 존재하지 않는데도 최종 건축비를 계산해보면 초기 건축비보다 30% 이상은 다들 증가해 있습니다.


집을 구성하는 뼈대인 골조, 그리고 단열재, 창호 등은 생각보다 초기 건축예산 범위에서 많이 증가되지 않습니다. 증가되는 부분들은 정해져 있다 말할 수 있는데요. 딱 두 곳이에요. 외장재와 인테리어. 뭐 당연하지 않냐라고 하는데 생각보다 이 두 부분에서 들어가는 추가비를 생각보다 적게 잡고 움직이시는 분들이 많으세요.


외장과 인테리어는 기능적인 부분 때문에 고가의 제품을 선택한다라기 보다는 그냥 개인 취향 때문에 선택하는 경우가 대부분입니다. 좀 더 뼈 때리는 말로 설명드리면, 그냥 눈이 높으신 거예요.


단순 아파트 정도의 인테리어 수준으로 마감한다면 큰 비용 추가가 거의 없습니다. 다만 여기서 수입타일이나 해외 브랜드의 도장 마감, 그리고 수입 벽돌이나 세라믹 사이딩 등의 고가 외장재 및 인테리어 자재가 들어가게 되는 순간 수천만 원은 우습게 증가됩니다.


예산이 충분하여 내가 원하는 마감자재를 다 선택하여 짓는다면 아무런 문제가 없습니다. 내 돈 내가 쓴다는데 뭐라고 할 사람 아무도 없거든요. 다만 예산이 이 부분에서 오버되는데 무리해서 대출로 진행시키는 분들이 계세요. 더 문제는 건축비만으로 예산이 끝나는 것이 아니라는 거예요.


가구도 넣으셔야 하고, 조경, 세금, 기반시설 인입 등 앞으로 들어가야 할 비용들이 최소 4천만 원 이상이에요. 이 부분까지도 건축비 예산에 다 넣어놓아야 합니다. 그래야 당황하는 일이 없을 거예요.


집에 벽돌을 붙여도 되고, 사이딩 등의 타일을 붙여도 되세요. 다만 그 부분들이 위에서 말한 것과 같이 기능적인 부분 때문에 꼭 설치해야 하는 것은 아니라는 점을 알려드리고 싶어요.


깔끔하게 심플하게 지으셔도 되세요. 대신 정확한 브랜드의 제품을 사용하세요. 같은 마감자재여도 브랜드에 따라 그리고 KS 마크 여부에 따라 가격 차이와 품질이 달라지게 되거든요.


이번에 발표한 주택 모델은 가성비 적인 면에서는 가장 압도적인 성능을 발휘한다 생각합니다. 외장 부분에서는 거의 추가비를 발생시키지 않았고, 내부 인테리어적인 부분에서도 저희 홈트리오가 세워놓은 기준점에서 크게 벗어나지 않는 인테리어를 진행시켰습니다.


지어진 주택이 아닌 내 땅에 내 마음대로 집을 설계할 때, 가장 최고의 장점은 각 공간을 내 마음대로 조절할 수 있다는 것이에요. 이 집에서 생활하는 사람들의 라이프스타일과 공간지각력 부분이 서로 다르기 때문에 정말로 내가 원하는 면적의 공간들만 구성하여 낭비되는 데드 스페이스를 '0'점에 수렴할 수 있습니다.


각 방에 원하는 가구와 이동 공간을 구성하고, 계단 및 화장실 등의 부대시설은 불편함 없는 공간설계 안에서 움직여주어 건축주님 예산안에서 원하는 모든 공간을 넣을 수 있었습니다.


화이트 한 외벽, 그리고 탁 트인 조망. 거기에 우리 가족을 모두 품을 수 있는 실내 공간까지. 그동안 꿈꿔왔던 그러한 공간과 집이 아닐까 생각해 봅니다.


#군더더기없는 #너무예쁘다 #깔끔한느낌 #꽃향기 #청초한라일락

상주-이안면-투시도.jpg

공법 : 경량목구조

설계, 시공 : 듀밀리언(주), 홈트리오(주) / 상담문의 : sunsutu@hanmail.net(대표번호 : 1522-1035 / 문자상담 : 010-6889-9770 / 문의가 너무 많아 전화가 안 될 수 있습니다. 문자로 내용 남겨주시면 늦더라도 상담드릴께요.^^)

ARTIST : 건축가 이동혁, 임성재

홈페이지

: http://spacemillion.kr <-ai 스페이스 밀리언

: https://dewmillion.kr/ <-듀밀리언 종합건설

지붕마감재 : 아스팔트슁글 / 외벽 마감재 : 스타코플렉스 / 포인트자재 : 파벽돌

실내벽마감재 : 실크벽지 / 실내바닥마감재 : 이건 강마루

창호재 : 이건 알루미늄 3중 시스템창호

건축면적 : 170.87㎡(1층 : 106.23㎡, 2층 : 43.48㎡, 다락 : 21.16㎡)

예상 총 건축비 : 387,300,000원(부가세 포함, 산재보험료 포함 / 설계비, 인허가비, 구조계산 설계비 별도)

설계비 : 10,400,000원(부가세 포함) / 인허가비 : 5,200,000원(부가세 포함)

구조계산 설계비 : 5,200,000원(부가세 포함) / 인테리어 설계비 : 5,200,000원(부가세 포함)*건축비 외 부대비용 : 대지구입비, 가구(싱크대, 신발장, 붙박이장), 기반시설 인입(수도, 전기, 가스 등), 토목공사, 조경비 등


*건축비 기준은 24년 06월 20일 기준 금액입니다.


1층.jpg 1층 평면도
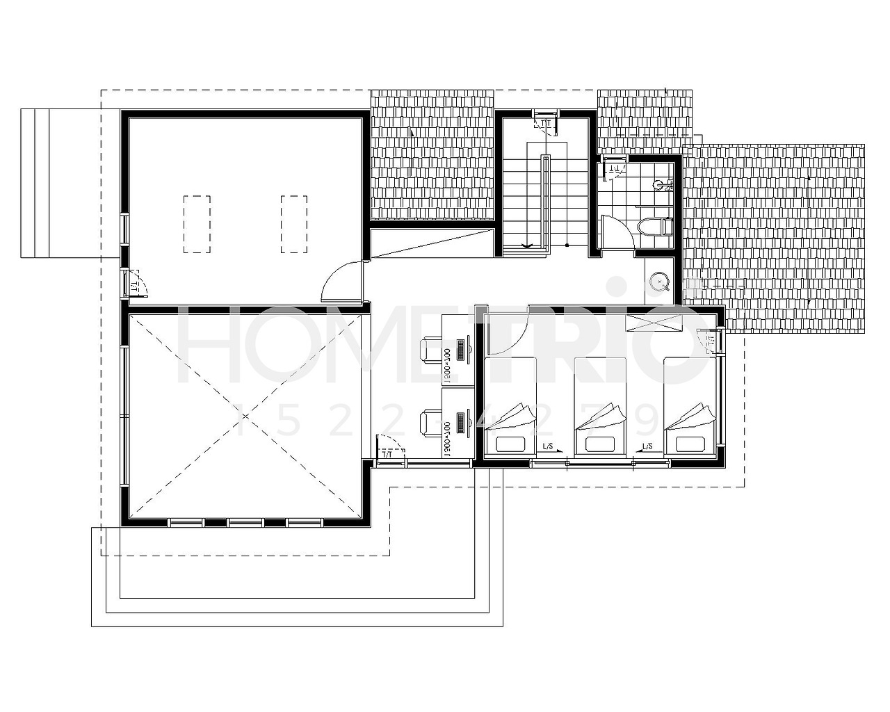
2층.jpg 2층 평면도


이동혁 건축가 : 별빛처럼 스스로 빛을 내며 주변을 밝혀주는 집. 이번 주택은 밝은 느낌과 긍정적인 기운을 듬뿍 안고 태어난 주택입니다. 군더더기 없이 지었어요. 홈트리오의 건축 철학을 가장 잘 담아낸 주택이라 설명드리고 싶습니다. 안정감 있는 박공지붕에 처마를 확실하게 만들어주고, 햇볕이 잘 들어오게 남향의 창을 크게 뚫어주었어요. 북쪽의 창은 환기를 위한 창이 대부분이기 때문에 크게 만들기보다는 최소한의 면적으로 만들어 주었고, 모든 창을 3중 시스템창호로 적용해 단열적인 부분을 최고치로 강화 해 놓았습니다. 벽체 단열을 건축법 기준치보다도 높게 구성하여 사시면서 벽 때문에 춥다는 생각은 안 하실 거예요.


3D 투시도에는 빠져있지만 실재 건축 시에는 꼭 들어가는 시공 부분이 있어요. 이미 눈치채신 분들도 계실 테지만, 그것은 바로 물홈통이에요. 지붕의 빗물이 그냥 지붕면을 타고 내려버리면 높이차로 인해 1층 바닥이 깊게 페이는 문제가 발생하고, 이에 더해 낮은 곳은 물이 고이는 부분이 발생하게 돼요. 그래서 지붕면 라인을 따라 물홈통을 모두 설치하고 설계 때 계획되었던 배수구 위치로 물이 자연스럽게 흘러갈 수 있도록 물길을 유도한답니다. 한옥을 생각하시면서 처마에 물 떨어지는 거 보고 싶다고 물홈통 설치 안 하시려고 하시는 분들 계신데요. 마당에 물 고입니다. 꼭 만들어야 한다는 거 잊지 마세요.


임성재 건축가 : 이번 주택에서 눈여겨보아야 할 부분은 의외로 공용공간인 주방이나 거실이 아닌 침실 부분이에요. 그동안 여러분들이 그렇게 주장해 왔던 정말 잠만 잘 수 있는 방을 이번에 구현했거든요. 다른 행위는 거의 못할 거예요. 진짜 잠만 잘 수 있는 그러한 최소 공간으로 침실을 구성했습니다. 이것이 정답이라는 것은 아니에요. 건축주님의 라이프스타일에 따라 정답일 수도 있고 틀린 오답일 수도 있어요. 참고를 하시되 여기에 너무 빠져서 못 헤어 나오시는 것은 안돼요.


메스1.jpg
메스2.jpg
메스3.jpg
메스4.jpg
상주-이안면-투시도.jpg

https://spacemillion.kr/

스페이스밀리언 배너.jpg

[집이라는 본질적인 가치에 집중하다.]

설계, 시공 : 홈트리오(주), 듀밀리언(주)

상담문의 : sunsutu@hanmail.net(대표번호 : 1522-1035 / 문자상담 : 010-6889-9770 / 문의가 너무 많아 전화가 안 될 수 있습니다. 문자로 내용 남겨주시면 늦더라도 상담드릴게요.^^)

ARTIST : 건축가 이동혁, 임성재

홈페이지

: http://spacemillion.kr <-ai 스페이스 밀리언

: https://dewmillion.kr/ <-듀밀리언 종합건설

포트폴리오 : https://brunch.co.kr/@sunsutu

스페이스밀리언 ai.jpg


keyword