오늘의집/56평 전원주택 '뷰티 인 사이드'

2024 월간 홈트리오 100 - 021번째

by 이동혁 건축가

http://spacemillion.kr <-ai 스페이스 밀리언

https://dewmillion.kr/ <-듀밀리언 종합건설

스페이스밀리언 배너.jpg

2024 월간 홈트리오 100 - 021번째 / 오늘의 집 / 56평 전원주택 '뷰티 인 사이드'(2024 전원주택)


※모든 저작권은 홈트리오(주), 듀밀리언 종합건설에게 있습니다. 최근 무단으로 디자인과 설계 평면도를 복제해 마치 본인들이 한 것인 듯 홍보하는 업체들이 있는데 법적 책임을 물을 수 있다는 점 고지드립니다.

논산-투시도-야경.jpg

STORY


: 낮의 분위기와 밤의 분위기가 다르게 느껴지는 집.

다방면으로 보아도 매력이 철철 넘치는 이번 주택은 ‘뷰티 인사이드’라는 테마로 완성된 주택이랍니다.


56평이라는 넓은 면적을 단층으로 가져간 독특한 전원주택입니다. 도심에서 보기에는 어려운 평면 구조를 가져갔으며, 모던하면서 클래식한 분위기가 공존하는 그러한 집으로 설계하였습니다.


엇갈린 공간 구성의 유니크함과 이 집이 풍기는 분위기는 그 어떠한 단층 주택보다 압도적인 카리스마를 뿜어낸다고 설명할 수 있을 것 같습니다.


입면 디자인은 고벽돌 스타일의 파벽돌 베이스를 전체로 감아주는 방법으로 가볍지 않고 묵직하면서 중후함마저 드는 분위기를 자아내려고 노력하였습니다.


박공지붕과 외쪽지붕을 방향과 각도를 달리 적용하여 유니크한 지붕 라인을 탄생시켜주었으며, 메인 파사드 부분에서 보았을 때 단층이지만 규모감 있는 느낌을 받을 수 있도록 디자인에 신경 썼습니다.


많은 사람들이 착각하는 것들 중에 하나가 외부 디자인을 잡은 후 내부 평면을 구성한다 생각하시는데요. 주택 설계는 그렇게 진행되는 것이 아닌, 내부 평면부터 구성 후 그 평면에 벽을 올려 매스를 하나씩 만드는 형태로 진행이 됩니다.


영화나 드라마에서 콘셉트 모형을 먼저 만든 후 디자인 방향성을 설명하는 영상들이 많이 나와 외부 디자인부터 당연히 잡는다고 생각들 하시는데 그렇지 않다는 점 이번 글을 통해 알려드립니다.


아! 외부 디자인부터 잡는 건물들도 존재하긴 합니다. 그것은 바로 초고층 빌딩이나 랜드마크적인 상징성 있는 건물들은 외부 디자인과 콘셉트부터 잡습니다. 이러한 경우는 엄청난 대공간이나 공모전 등의 콘셉트 위주의 내용을 다룰 때 주로 활용하는 방법이며, 소형 주택설계에서는 이렇게 잘하지 않는다는 것.


혹 소형주택에서 콘셉트부터 잡아야 하는 상황이 있었다면 분명 남에게 보여주어야 하는 건물이거나 자신을 상징해야 하는 제3의 표현방식일 가능성이 높을 건물일 것입니다.


내부 공간을 설계할 때 30평 정도의 소형 평수는 방을 포기하지 않는 이상 재미있는 공간 구성이 나오기 현실적으로 어렵습니다. 많은 예비 건축주님들이 "방을 작게 하면 우리 집은 넓게 구성할 수 있을 거야!!"라고들 생각하시는데 현실적으로 정해진 실 면적을 넘어서는 설계는 할 수 없습니다.


현관, 화장실, 보일러실, 다용도실, 계단실, 복도 등은 이미 최소면적이 정해져 있습니다. 더 작아지면 안 되는 면적이 정해져 있기 때문에 소형평수에서 방을 줄이는 것이 아니라 아예 없애버려야만 그나마 거실이나 주방 등의 공용공간을 확보할 수 있습니다.


이번 주택은 소형주택이 아닌 56평 중형 평수대의 주택입니다. 또한 땅에 대한 제약이 크지 않은 상황이었기 때문에 정말 건축주님의 요구조건에 따라 자유로운 설계를 진행했던 것 같습니다.


건축가의 한 사람으로서 단층으로 이렇게 넓은 공간을 플랫 한 형태로 설계해 본다는 것은 천운이 따라야만 가능하다고 생각합니다. 건축주님의 마음과 저희들의 마음이 일치해야만 최고의 결과물이 나올 수 있다 생각하며, 저희가 생각했던 방향성을 건축주님께서 잘 이해하고 받아들여주셔서 큰 수정 없이 좋은 결과물의 주택이 나온 것 같습니다.


거실과 주방을 그동안 보아왔던 주택들과는 다른 느낌으로 공간 구성했습니다. 남향의 채광과 남서쪽의 조망을 모두 보기 위해서는 직각으로 꺾이는 형태가 아닌 'ㅅ'형태로 대각선 각도로 꺾이는 공간 구성을 진행해야 했습니다. 직각이 아니니 공간이 애매해질 것 같다고요? 그렇지 않습니다. 충분히 매력적인 공간으로 탄생을 시켰거든요.


우리들을 알고 있습니다. 고정관념을 깨는 일이 얼마나 무서운 것인지를요. 그 작은 변화만 설계에 반영시킬 수 있다고 한다면, 그동안 보아왔던 집의 느낌이 아니라 나와 내 가족만을 위한 집으로 새롭게 탄생할 수 있을 것입니다.


#고벽돌 #웅장함 #단층전원주택 #압도적인공간감 #우아함

논산-투시도-야경.jpg

공법 : 경량목구조

설계, 시공 : 듀밀리언(주), 홈트리오(주) / 상담문의 : sunsutu@hanmail.net(대표번호 : 1522-1035 / 문자상담 : 010-6889-9770 / 문의가 너무 많아 전화가 안 될 수 있습니다. 문자로 내용 남겨주시면 늦더라도 상담드릴께요.^^)

ARTIST : 건축가 이동혁, 임성재

홈페이지

: http://spacemillion.kr <-ai 스페이스 밀리언

: https://dewmillion.kr/ <-듀밀리언 종합건설

지붕마감재 : 아스팔트슁글 / 외벽 마감재 : 파벽돌(고벽돌st) / 포인트자재 : 파벽돌

실내벽마감재 : 실크벽지 / 실내바닥마감재 : 이건 강마루

창호재 : 이건 알루미늄 3중 시스템창호

건축면적 : 183.49㎡(1층 : 183.49㎡)

예상 총 건축비 : 401,000,000원(부가세 포함, 산재보험료 포함 / 설계비, 인허가비, 구조계산 설계비 별도)

설계비 : 11,200,000원(부가세 포함) / 인허가비 : 5,600,000원(부가세 포함)

구조계산 설계비 : 5,600,000원(부가세 포함) / 인테리어 설계비 : 5,600,000원(부가세 포함)

*건축비 외 부대비용 : 대지구입비, 가구(싱크대, 신발장, 붙박이장), 기반시설 인입(수도, 전기, 가스 등), 토목공사, 조경비 등


*건축비 기준은 24년 06월 20일 기준 금액입니다.


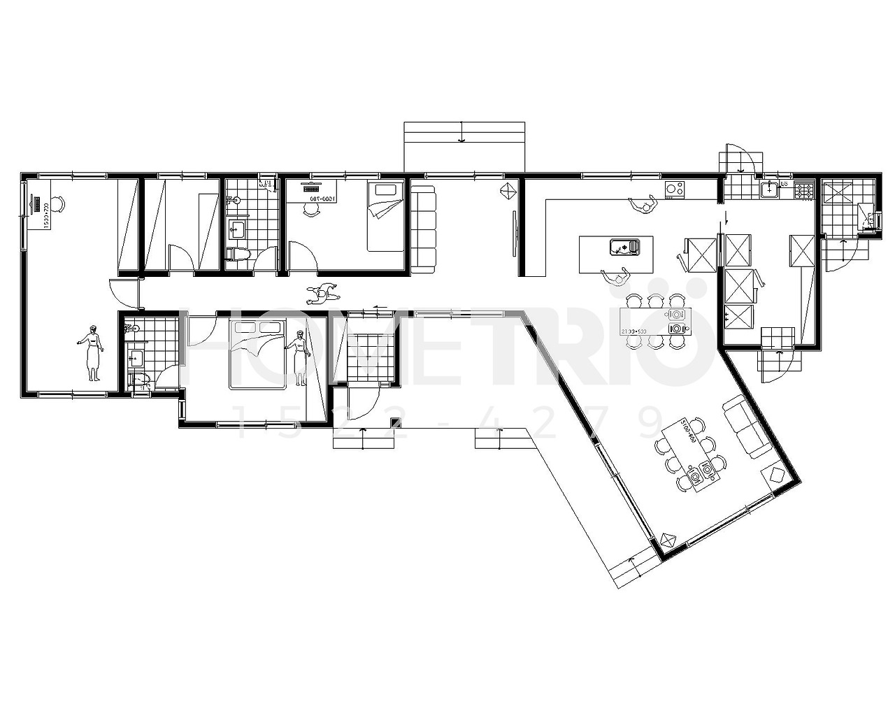
1층.jpg 1층 평면도


이동혁 건축가 : 클래식의 감성과 모던의 간결함을 더하면? 건축 설계의 자유로움을 마음껏 펼쳐낼 수 있었던 프로젝트. 일반 주택 생각하시면 놀라실 거예요. 깔끔한 외관 디자인 속에 자유로운 공간 구성이 숨겨져 있거든요. 단층 주택 디자인을 할 때 너무 주의해야 할 점을 하나 꼽으라면, 촌스러운 느낌이 안 나고 어색한 느낌이 안 나도록 하는 것을 꼽을 것 같습니다. 2층 주택은 매스의 볼륨감 때문에 정말 잘못하지 않는다면 무난한 디자인으로 완성이 자연스럽게 됩니다. 하지만 단층은 수직 볼륨감이 상대적으로 떨어지기 때문에 자칫 잘못했다가는 80년대 시골집의 느낌처럼 디자인되고 마는데요. 더 길게 말 안 해도 지방에 있는 이상한 집들을 많이 보셨죠? 새집인데 헌 집처럼 보이는... 네, 그거 맞아요. 단층 주택 생각하고 계신가요? 핵심은 현 트렌드에 맞는 디자인이라는 것. 촌스럽게 짓지 마세요. 이상하게 짓지 마세요. 짓고 나서 후회한답니다.


내부 공간을 구성할 때 정말 자유로운 설계를 진행한 것 같습니다. 56평이라는 넓은 공간을 플랫 하게 계획할 수 있다니. 어찌 보면 건축가로서의 복인 것 같습니다. 아파트와는 다른 느낌이 드는 공간을 하나 꼽으라면 복도를 선택할 거예요. 갤러리형 구성이라고 하는데, 아파트처럼 거실로 들어가 각 공간으로 퍼지는 것이 아닌 긴 복도를 통해 각 공간으로 동선이 연결되면 그 자체만으로도 새로운 느낌의 집이라 인지됩니다. 익숙한 공간이 아닌 처음 보고 체험하는 공간. 그러한 공간에서 산다는 것만으로도 새로운 느낌의 라이프를 느끼시게 될 거예요. 큰 평수 대비 방의 개수가 적습니다. 이유는 하나예요. 공용공간에 압도적으로 많은 공간을 할애해 시각적 개방감을 극대화하도록 유도하였거든요.


임성재 건축가 : 이번 주택에서 사용한 외장재는 고벽돌 스타일의 파벽돌입니다. 어떤 분이 그러더라고요. 파벽돌은 가벼워 보여서 싫다고. 이거 본인 바보라고 이야기하는 것과 같습니다. 벽돌을 얇게 켜서 만들기도 하는 것이 파벽돌입니다. 무조건 가짜로 만든 벽돌이 파벽돌은 아니에요. 옛날에는 가짜 티가 많이 났지만 최근에는 많이 기술이 발전되었어요. 그리고 싼 것들만 봐서 그렇지 수입 벽돌들은 전혀 저렴해 보이지 않습니다. 오히려 국산 벽돌보다 비싼 것들도 수두룩합니다. 붙일 거냐 쌓을 거냐의 차이이며, 이 둘을 결정하는 것은 디자인보다는 '비용'입니다. 조적 방식의 쌓는 형태는 자재비도 비싸지만 시공비도 더 비쌉니다. 무조건 파벽돌을 외면할 것이 아니라 예산이 부족하다면 충분히 고려해도 괜찮다는 것을 이야기드리고 싶어요.


메스1.jpg
메스2.jpg
메스3.jpg
메스4.jpg
논산-투시도.jpg
논산-투시도-야경.jpg

https://spacemillion.kr/

스페이스밀리언 배너.jpg

[집이라는 본질적인 가치에 집중하다.]

설계, 시공 : 홈트리오(주), 듀밀리언(주)

상담문의 : sunsutu@hanmail.net(대표번호 : 1522-1035 / 문자상담 : 010-6889-9770 / 문의가 너무 많아 전화가 안 될 수 있습니다. 문자로 내용 남겨주시면 늦더라도 상담드릴게요.^^)

ARTIST : 건축가 이동혁, 임성재

홈페이지

: http://spacemillion.kr <-ai 스페이스 밀리언

: https://dewmillion.kr/ <-듀밀리언 종합건설

포트폴리오 : https://brunch.co.kr/@sunsutu

스페이스밀리언 ai.jpg


keyword