brunch

'48평 대전 유성구 모던하우스' 대전 전원주택 완공

살고 싶은 전원주택 시리즈 #80 - 이동혁건축가

by 이동혁 건축가

제목 : '48평 대전 유성구 모던하우스' 대전 전원주택 완공 프로젝트 (세컨하우스 짓기)

소제목 : 살고 싶은 전원주택 시리즈 #80 - 이동혁건축가


*구독 버튼은 필수인 것 다들 아시죠^^

[크기변환]HC014-2130.jpg

SPEC


공법 : 경량목구조

설계, 시공 : 듀밀리언(주), 홈트리오(주) / 상담문의 : sunsutu@hanmail.net(대표번호 : 1522-1035 / 문자상담 : 010-6889-9770 / 문의가 너무 많아 전화가 안 될 수 있습니다. 문자로 내용 남겨주시면 늦더라도 상담드릴께요.^^)

ARTIST : 건축가 이동혁, 임성재

듀밀리언 프로필.jpg

홈페이지

: https://dewmillion.kr/ <-듀밀리언 종합건설

지붕마감재 : 아스팔트슁글 / 외벽 마감재 : 스타코플렉스 / 포인트자재 : 파벽돌, 루나우드

실내벽마감재 : 실크벽지 / 실내바닥마감재 : 이건 강마루

창호재 : PVC 3중 시스템창호

건축면적 : 158.42㎡(1층 : 104.06㎡, 2층 : 54.36㎡)

예상 총 건축비 : 345,600,000원(부가세 포함, 산재보험료 포함 / 설계비, 인허가비, 구조계산 설계비 별도)

설계비 : 12,000,000원(부가세 포함) / 인허가비 : 4,800,000원(부가세 포함)

구조계산 설계비 : 4,800,000원(부가세 포함) / 인테리어 설계비 : 7,200,000원(부가세 포함)

*건축비 외 부대비용 : 대지구입비, 가구(싱크대, 신발장, 붙박이장), 기반시설 인입(수도, 전기, 가스 등), 토목공사, 조경비 등

*건축비 기준은 24년 7월 29일 기준 금액입니다.


STORY


대전 유성구 죽동에 위치한 고급 단독주택 단지. 그 단지 내 76평의 대지에 고즈넉하면서 따뜻함이 묻어나는 주택이 완공되었습니다.


설계 단계에서부터 문의가 많았던 주택입니다. 큰 비용이 아닌 가성비라는 단어를 사용할 수 있는 집. 하지만 단열적인 면에서는 월등한 집. 아파트와는 다른 무언가 색다른 공간적 재미가 있는 집.


이러한 여러 가지의 숙제를 안고 시작된 프로젝트였습니다.


땅 자체가 넉넉한 편이 아니었기에 어설프게 공간을 매스 분절시키는 것이 아닌 대지의 경계면에서 낭비되는 면적을 최소화하면서 뒤쪽으로 집을 붙였습니다. 모든 공간이 균일한 조도를 유지하기 위해 'ㄱ'자형 배치 포맷을 선정하였으며, 오픈 천장 등의 설계적 기법을 통해 큰 평수대는 아니지만 현관에 진입했을 때 '탁 트인' 오픈 감을 선사해주고 싶었습니다.


집을 지을 때 처음부터 항상 강조하는 것이 이상과 현실의 경계라인을 구분해야 한다는 것입니다. 꿈꾸고 있던 공간을 무조건 없애라는 것이 아닌 내가 가진 예산안에서 최대한의 효과를 끌어내기 위해서는 현실을 깨달아야 하기 때문입니다.


집을 의뢰하고자 상담받으시러 오시는 분들의 대부분은 해외의 풀빌라처럼 직선적이고 거대한 매스의 주택을 들고 오십니다. 특히 창 큰 것을 정말 많이들 좋아하십니다.


사진을 처음 보았을 때 저는 이런 이야기를 합니다. "건축주님 추위는 많이 안 타시나 봐요." 하지만 돌아오는 답변은 "아니요 엄청 타요. 겨울에 두꺼운 옷 입으면 불편하니까 반팔만 입고 생활 가능하게 단열해 주세요.".

참 어렵습니다.


벽의 경우 현 법 규정대로만 단열을 해도 크게 추울 일은 없습니다. 목조주택의 경우 벽 전체가 단열벽이니까요. 오히려 아파트보다도 더 따뜻할 것입니다. 문제는 유리인데요. 주택의 경우 3중 시스템창호 1등급짜리를 사용합니다. 전창을 전부 다요. 높은 열관류율 값을 가지고 있기 때문에 물론 단열 잘되고 따뜻합니다. 문제는 창이 많아도 너무 많다는 것이지요. 아파트는 많아야 기성 사이즈의 창이 방에 1개 정도밖에는 없습니다. 그마저도 작아요. 하지만 주택을 짓는데 작게 창을 낼까요? 아니죠. 무조건 낼 수 있는 최대치를 냅니다. 단열보다는 개방감을 우선시하기 때문입니다. 저도 그 마음을 알기에 가급적 조망창 같은 경우도 많이 내는 편입니다.


자 다시 처음으로 돌아와서 아무리 좋은 시스템창호를 사용하더라도 결국 유리라는 자재입니다. 열을 가장 많이 빼앗기는 곳 중의 1순위가 바로 창이랍니다. 해외의 풀빌라처럼 크게 창을 내었다가는 난방을 돌리고 계셔도 내복은 벗지 못하고 겨울을 생활하셔야 할 것입니다.


항상 말하듯 모든 것은 밸런스 있게. 그리고 적당히.


마지막으로 지붕에 대한 이야기를 드리고 싶어요. 이번 주택에 적용된 박공지붕은 안에 공기층이 확실히 구성되는 형태입니다. 모던한 모양을 낸다고 평지붕을 고집하시는 분들이 계신데 평지붕의 경우 공기층이 없어 여름에 덥고 겨울에 춥답니다. 박공지붕이 식상하다고 적용하기 싫어하시는 분들이 계신데, 현존 최고의 지붕 형태를 꼽으라면 저는 박공지붕을 꼽을 것입니다.


가성비, 그리고 단열, 마지막으로 유지관리. 이 3가지의 요소를 모두 포함하여 탄생한 대전 유성구의 전원주택.


궁금하시죠. 지금부터 완공 사진으로 만나보시죠.



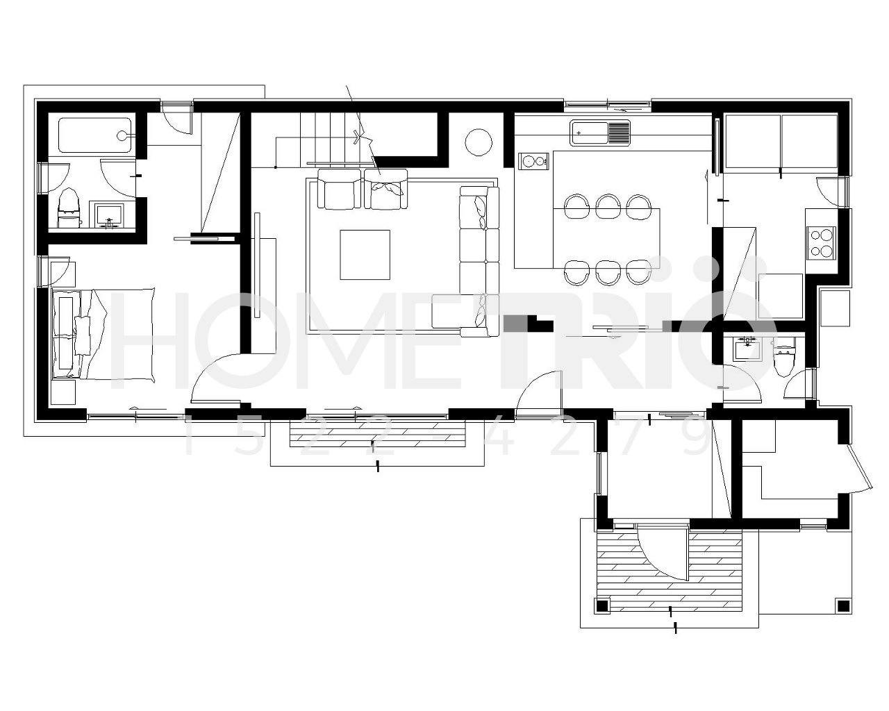
Floor Plan


다운로드-(2).jpg 1층 평면도
다운로드-(3).jpg 2층 평면도


이동혁 건축가 : 깔끔한 외벽, 안정감 있는 박공지붕, 거기에 밸런스가 느껴지는 1층과 2층의 공간구성. 완전 내 취향입니다. 집 비싼 자재 사용할 필요 있나요. 이번 주택처럼 지으세요. 진짜 가성비 최고입니다.


외부 디자인을 계획할 때 최대한 덜어내고자 하는 마음으로 디자인을 진행하였습니다. 무언가를 많이 가져다 붙이는 것이 아닌 깔끔하고 정돈된 느낌의 이미지를 전달해주고자 하였으며, 추후 유지보수적인 측면에서도 유리할 수 있는 설계적 요소들을 기본적으로 적용시켰습니다. 스타코플렉스, 박공지붕, 거기에 EPS몰딩까지. 오염에 대한 부분과 단열, 방수에 대한 부분까지도 설계적으로 디자인적 반영하여 처음 시작하는 전원생활에 부담을 최소화시킬 수 있도록 노력하였습니다.


임성재 건축가 : 재미있는 공간의 연속. 도심형 전원주택이 가지는 매력적 공간을 모두 포함한 주택이라 생각합니다. 짜임새 있는 공간구성과 어디로든 이동할 수 있는 동선 계획은 이 집만이 가진 매력을 더욱 부가시켜 줍니다.




HC014-2056r.jpg
HC014-2065r.jpg
HC014-2069r.jpg
HC014-2086r.jpg


HC014-1832r.jpg
HC014-1834r.jpg
HC014-1835r.jpg
HC014-1839r.jpg
HC014-1843r.jpg
HC014-1847r.jpg
HC014-1849r.jpg
HC014-1851r.jpg
HC014-1854r.jpg
HC014-1855r.jpg
HC014-1857r.jpg
HC014-1859r.jpg
HC014-1863r.jpg
HC014-1866r.jpg
HC014-1868r.jpg
HC014-1869r.jpg
HC014-1873r.jpg
HC014-1878r.jpg
HC014-1884r.jpg
HC014-1885r.jpg
HC014-1888r.jpg
HC014-1894r.jpg
HC014-1896r.jpg
HC014-1898r.jpg
HC014-1902r.jpg
HC014-1904r.jpg
HC014-1909r.jpg
HC014-1913r.jpg
HC014-1914r.jpg
HC014-1915r.jpg
HC014-1916r.jpg
HC014-1920r.jpg
HC014-1921r.jpg
HC014-1922r.jpg
HC014-1925r.jpg
HC014-1926r.jpg
HC014-1928r.jpg
HC014-1929r.jpg
HC014-1933r.jpg
HC014-1935r.jpg
HC014-1936r.jpg
HC014-1945r.jpg
HC014-1946r.jpg


HC014-2111r.jpg
HC014-2130r.jpg
HC014-2131r.jpg



[집이라는 본질적인 가치에 집중하다.]

설계, 시공 : 홈트리오(주), 듀밀리언(주)

상담문의 : sunsutu@hanmail.net(대표번호 : 1522-1035 / 문자상담 : 010-6889-9770 / 문의가 너무 많아 전화가 안 될 수 있습니다. 문자로 내용 남겨주시면 늦더라도 상담드릴게요.^^)

ARTIST : 건축가 이동혁, 임성재

듀밀리언 프로필.jpg

홈페이지

: http://spacemillion.kr <-ai 스페이스 밀리언

: https://dewmillion.kr/ <-듀밀리언 종합건설

스페이스밀리언 ai.jpg


keyword