#79 '노후까지 생각한 집' 철원 54평 전원주택

#79 강원 철원군 동송읍 목조 모던 스타일 54평 설계 사례

by 이동혁 건축가
철원 주택 수정.jpg

제목 : #79 '노후까지 생각한 집' 철원 54평 전원주택

소제목 : #79 강원 철원군 동송읍 목조 모던 스타일 54평 설계 사례


출발


안녕하세요. 이동혁 건축가 입니다.^^

다들 벚꽃 구경 다녀오셨나요? 저는 경기도 광주에 살고 있는데 아파트 단지 내 벚꽃이 만개하였더라고요. 걸어오면서 꽃잎이 떨어지는 것을 보고 있으니 절로 기분이 업 되는 듯한 느낌을 받았습니다.

본격적인 봄이 왔습니다. 5월 초에는 엄청 긴 연휴가 기다리고 있으니 다들 힘드시더라도 기운 내시기 바랍니다.^^

한동안 브런치 글을 업데이트하지 못했었는데요. 최근 착공 시즌과 5월 책 출간을 앞두고 있다 보니 거기에 정신이 팔려있었답니다. ㅠㅠ

앞으로는 다시 꾸준히 업데이트하도록 하겠습니다. 이메일로 왜 글 안 적느냐(?), 어디 아픈 것이냐(?) 하고 많은 걱정 어린 글들을 보내주셨는데요. 이렇게 많은 사랑을 받고 있었다니 행복할 따름입니다. ㅠㅠ

오늘은 강원 철원군에 지어질 모던 스타일 주택을 이야기드리고자 합니다. 평수는 생각보다 큽니다. 총 54평 규모의 집으로 노후까지 생각한 집이라는 콘셉트 아래에 진행된 사례랍니다.^^

자 그럼 오늘도 출발해 보겠습니다.

*읽고 난 다음에는 위의 하트 모양 라이킷과 공유 꾹 눌러주세용~^^


HOUSE PLAN

연면적 : 176.95㎡

1층 : 104.61㎡

2층 : 72.34㎡

규모 : 지상 2층

총괄 건축가 : 이동혁, 임성재, 정다운

설계·시공 : 홈트리오(주) 1522-4279

Homepage : http://hometrio.kr

이동혁건축가TV : http://tv.naver.com/sunsutu1

예상 총 건축비 : 297,000,000원(부가세 포함)

설계비 및 인허가비 : 13,500,000(부가세 포함)

*건축비 외 부대비용 : 대지구입비, 가구(싱크대, 신발장, 붙박이장), 기반시설 인입(수도, 전기, 가스 등), 토목공사, 조경비 등


SPEC

공법 : 기초-철근콘크리트 / 1층, 2층 구조-목조

지붕마감재 : 리얼징크

외벽마감재 : 스타코플렉스

외벽포인트자재 : 파벽돌, 세라믹사이딩

실내벽마감재 : 실크벽지

실내바닥마감재 : 강마루

창호재 : 융기 3중 시스템창호

단열재 : 외부벽체(Glasswool Insulation R21HD-15" 나등급)

▷크나우프社 ECOBATT (ECOSE® 특허)

▷HD:저에너지 하우스용 / 15인치(381mm) *동등 제품

: 내부벽체(Glasswool Insulation R19-15" 다등급)

: 천장(Glasswool Insulation R30-15" 다등급)

: 지붕(Glasswool Insulation R37-23" 가등급) ▷ISOVER社에너지세이버

*단열기준은 2016년 7월1일자로 변경되는 단열기준법을 적용하여 강화시켜 놓았습니다.

1F.png 1층 평면도
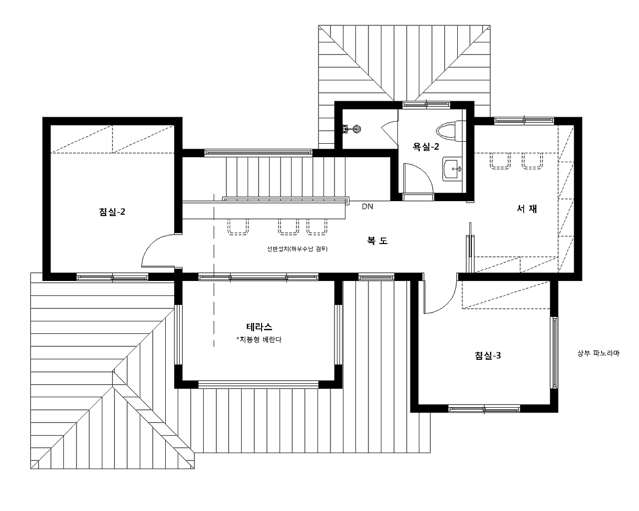
2F.png 2층 평면도

Q.설계 방향에 대해 설명해주세요.

이번 설계 방향의 테마는 '노후까지 생각한 집'입니다. 조금 생뚱맞나요?^^; 하지만 이번 콘셉트는 심오한 뜻을 내포하고 있답니다. 건축주님께서 많은 고민을 안고 짓는 집인 만큼 여러 가지 요소들을 모두 담아야만 했습니다. 넓은 공간. 그리고 환한 내부. 거기에 많은 수납공간. 나이가 들어 둘이 살더라도 항상 포근한 느낌이 드는 집. 이러한 내용들이 모두 담긴 집이 이번 설계안입니다.

길이 북쪽에 나 있기 때문에 다른 집들과 다르게 북쪽에 현관을 내었으며, 남향의 햇볕을 모든 실이 균등하게 받을 수 있도록 기본 향을 남향으로 모든실을 배치하였습니다.^^


Q.면적은 얼마나 되는가요?

총 54평(176.95㎡)으로 설계되었으며, 2층으로 구성된 설계 안 입니다. 1층은 32평(104.61㎡), 2층은 22평(72.34㎡)으로 구성되었으며, 2층 발코니를 넓게 구성한 매력적인 주택입니다.


Q.비용은 얼마가 들었나요?

건축비의 경우 297,000,000원이 소요될 것으로 예상됩니다. 부가세가 포함된 가격이며, 순수한 건축비입니다.

설계비는 13,500,000원이 소요되어졌습니다. 이는 부가세 포함 가격이며, 인허가 및 사용승인 비용도 포함된 금액입니다.


Q.비 올 때 리얼징크는 소리가 시끄럽지 않나요?

아무래도 비가 지붕면의 리얼징크를 때릴 때는 기본적으로 소리는 발생됩니다.^^ 많은 분들이 잠을 잘 때 너무 시끄러우면 어떡하나 걱정하시는데요. 실상 창문을 닫고 생활하실 때는 외부의 소음이 내부로 들리지는 않는답니다. 외장재로 인한 소리가 걱정이신 분들은 너무 걱정하시지 않으셔오 되고요. 자동차 소리보다는 들리는 소리가 적으니 편안하게 설계하시고 시공하시면 되십니다.^^


Q.주차장 계획은 꼭 해야 하나요?

주차장의 경우 인허가 단계에서 필수로 들어가야 하는 건축 사항입니다.

많은 분들이 준공단계에서 주차장을 만들어 놓았다가 추후 마당으로 그냥 쓰시는 데 사용 자체에는 문제가 없지만 추후 민원이 들어갔을 때에 벌금 및 원상복구 명령이 떨어질 수 있으므로 남의 집에서 주차장을 안 했다고 하여 내 집에도 안 하는 일은 없으셔야 합니다.^^


Q.설계기간 및 시공기간은 얼마나 걸릴까요?

설계기간은 인허가 포함 3달 정도를 잡는 것이 여유로우며, 목조주택 시공기간은 착공일로부터 3.5개월을 잡는 것이 좋습니다. 사용승인(준공)까지 포함된 기간입니다.


Q.마지막 총평을 한다면?

요즘 설계를 할 때마다 많은 고민을 하면서 설계를 진행합니다. 정말 좋은 집의 조건은 무엇일까? 그리고 가장 적절한 건축비는 어느 정도 선일까? 저희가 꿈애디자인랩 주택 쇼핑몰을 열면서 많은 고민을 했지만 이 문제에 대해서는 끊임없이 고민을 하게 되는 것 같습니다.

높은 품질의 가성비 높은 주택. 아마 건축가인 제가 이 업을 마칠 때까지 가지고 가야 할 숙제인 것 같습니다.^^;

이번 주택은 강원 철원군 동송읍에 지어질 주택입니다. 마을에서는 아직 신축된 주택이 없다 보니 동네 주민들이 많은 관심을 보이고 있는 주택입니다. 건축주님도 자랑할 수 있는 멋진 집을 기대하고 계신데요. 정말 누가 보더라도 멋지구나 하는 생각이 들 수 있도록 최고의 집을 지어드리도록 하겠습니다.^^

감사합니다.^^


정면도.png 정면도
좌측면도.png 좌측면도
우측면도.png 우측면도


배면도.png 배면도
지붕.png 지붕평면도
입면 전체.jpg
투시 1.jpg
투시 2.jpg
투시 3.jpg

도착


54평 강원 철원군 동송읍 이평리에 지어진 전원주택 설계 사례. 어떠셨나요?

모던한 외관에 리얼징크 지붕이 더해져 더욱 단단하고 시크한 이미지로 설계가 완성될 것 같습니다.^^

한동안 브런치에 글을 못 적고 있었는데요. 제가 5월 정도에 책 출판이 예정되어 있다 보니 마무리 작업을 열심히 진행하고 있었답니다. ^^;

최대한 많은 내용을 압축해서 담아내려고 하다 보니 계속 페이지수만 늘어나고 있는 실정입니다.

그래도 정말 창피하지 않고 집에 소장가치가 있는 책으로 만들고자 노력하고 있으니 출간되면 많은 관심과 사랑 부탁드립니다.^^

집은 따뜻하고 비가 안 새야 합니다. 이것이 집의 본질이라 생각합니다.

앞으로도 따뜻하고 안전한 집. 정말 잘 짓도록 노력하겠습니다.^^

감사합니다.

*읽고 난 다음에는 위의 하트모양 라이킷과 공유 꾹 눌러주세용~^^


IMG_7463.jpg (좌측부터) 정다운 건축가, 이동혁 건축가, 임성재 건축가


설계·시공 : 홈트리오(주) 1522-4279

Homepage : http://hometrio.kr

이동혁건축가TV : http://tv.naver.com/sunsutu1

[집이라는 본질적인 가치에 집중하다.]


글쓴이 : 이동혁 건축가

이메일 : sunsutu@hanmail.net

이동혁건축가TV : http://tv.naver.com/sunsutu1


상담 및 자문[홈트리오(주) CEO]

이동혁 건축가 : 010-4567-8413

정다운 건축가 : 010-8560-0477

임성재 건축가 : 010-9941-8899



keyword