brunch

61평 무안에 지은고향집(2025월간 듀밀리언전원주택)

2025 월간 듀밀리언-6

by 이동혁 건축가

작은집을 짓는 전원주택 건축가입니다.*^^*

제 글을 읽어주시는 모든분들께 감사인사를 전합니다.


작은집은 대부분의 건설사들이 꺼려하는 분야입니다. 시간대비 수익이 엄청 적거든요.

하지만 저희들은 수익보다는 저희들이 재미있고 보람되는 일을 하기로 결정 했습니다.


그러한 결정이 10년 이라는 시간동안 작은 전원주택을 짓는 건축가로서 살아올 수 있었던 원동력이었던 것 같습니다.


앞으로도 큰 집 보다는 작은 집을 짓는 건축가들로 남을 생각입니다.

저희들 도움이 필요한 곳이라면 어디든 달려갈 생각입니다. 1년에 30채만 짓는 저희들의 기준은 앞으로도 계속 될 예정이에요.


브런치와 유튜브를 통해 저희들의 작품을 계속 올려드릴테니, 여러분들의 집짓기에 조금이나마 도움이 되길 바랍니다.


감사합니다.*^^*


제목 : 61평 무안에 지은 고향집(2025 월간 듀밀리언 전원주택)

소제목 : 2025 월간 듀밀리언-6


*구독 버튼은 필수인 것 다들 아시죠^^

Screenshot 2025-05-12 at 11.03.49.JPG

SPEC


공법 : 경량목구조

설계, 시공 : 듀밀리언(주), 홈트리오(주) / 상담문의 : sunsutu@hanmail.net(대표번호 : 1522-1035 / 문자상담 : 010-6889-9770 / 문의가 너무 많아 전화가 안 될 수 있습니다. 문자로 내용 남겨주시면 늦더라도 상담드릴께요.^^)

홈페이지 상담 문의 : https://dewmillion.kr/%EB%AC%B8%EC%9D%98

ARTIST : 건축가 이동혁, 임성재

듀밀리언 프로필.jpg

홈페이지

: https://dewmillion.kr/ <-듀밀리언 종합건설

지붕마감재 : 리얼징크 / 외벽 마감재 : 모노롱타일 / 포인트자재 : 모노롱타일

실내벽마감재 : 도장마감 / 실내바닥마감재 : 원목마루, 포세린타일

창호재 : 이건 알루미늄 3중 시스템창호

건축면적 : 202.82㎡(지하1층 : 56.70㎡, 지상1층 : 88.50㎡, 지상2층 : 57.62㎡)

예상 총 건축비 : 762,500,000원(부가세 포함, 산재보험료 포함 / 설계비, 인허가비, 구조계산 설계비 별도)

설계비 : 18,300,000원(부가세 포함) / 인허가비 : 6,100,000원(부가세 포함)

구조계산 설계비 : 6,100,000원(부가세 포함) / 인테리어 설계비 : 9,150,000원(부가세 포함)

*건축비 외 부대비용 : 대지구입비, 가구(싱크대, 신발장, 붙박이장), 기반시설 인입(수도, 전기, 가스 등), 토목공사, 조경비 등

*건축비 기준은 25년 05월 08일 기준 금액입니다.


STORY


: 전남 무안에 지어질 랜드마크 주택.

철근콘크리트조 공법으로 설계된 이번 주택은 유니크 한 디자인과 전원주택의 로망인 지하주차장을 품고 태어난 주택입니다.


모노롱벽돌을 기본 마감재로 디자인하여, 기존 주택들과는 시각적으로 또 다른 느낌을 부여하고자 노력하였습니다. 유지관리적인 측면을 염두하여 옥상을 만드는 대신 박공지붕으로 지붕을 디자인하였고, 발코니 공간 등도 최소화하여 애초에 누수가 발생될 수 있는 여지를 완전히 없애 주었습니다.


철근콘크리트 공법이기 때문에 벤트 공간이 필요 없으며, 벽면과 지붕의 라인을 맞춰 마감하여 모던한 느낌이 배가 될 수 있도록 하였습니다.


전원주택보다는 도심형 단독주택 분위기에 더 맞게 설계가 되었으며, 젊은 감성과 트렌디한 공간 설계로 무안의 랜드마크적인 주택이 될 것이라 의심치 않습니다.


디자인이 심플합니다. 우리는 이러한 집 디자인 보고 '모던스타일'주택이라고 이야기합니다. 옥상이 없고 지붕이 박공지붕으로 덮여있으니 목조주택일 것이다(?)라고 생각하셨던 분들도 계실 거예요.


하지만 이 집은 분명 철근콘크리트 주택입니다. 공법을 이야기할 때 '무엇이 더 좋냐?'라고 간혹 물어오시는 분들이 계신데요. 이미 목조와 철근콘크리트는 오랜 기간 동안 검증을 받은 공법이기 때문에 둘도 좋은 공법이다라고 이야기드릴 수 있을 것 같습니다.


다만 각 공법에 장·단점이 극명확하기 때문에 그 장·단점에 따라 내 집에 적용할 공법을 정하시면 될 것 같습니다. 비용을 생각한다면 목조가 현실적일 것이며, 공간 및 디자인을 생각한다면 철근콘크리트가 맞을 것입니다.


아! 이거 하나는 확실히 하고 가는 게 좋겠네요. 철근콘크리트에 '가성비'라는 단어를 쓰지 않습니다. 간혹 철근콘크리트가 목조와 같은 금액 대라고 생각하시는 분들이 계신데요. 전혀 아닙니다. 철근콘크리트가 훨씬 비쌉니다. 예산 잡을 때 착각하지 마시고 넉넉히 잡아놓으세요. 잘못하다가는 공사 중간에 중도금 못 내는 상황이 벌어질 수도 있습니다.


이번 주택에서는 창을 많이 활용하였습니다. 거의 모든 면에 창을 내준 거 같은데요. 창문이 많아지면 단열이 상대적으로 떨어지는 것을 걱정하시는 분들도 계시기는 하지만, 자연채광이 주는 혜택이 훨씬 많기 때문에 가급적이면 전원주택 지을 때 창을 많이 내는 쪽으로 이야기를 드립니다.


정말 추위에 너무 약해서 나는 창을 작게 내어야 한다는 분들은 차라리 '아파트'를 추천합니다. 전원주택은 짓는 순간부터 아무리 단열을 두껍게 해도 춥습니다. 그냥 추운 게 아니라 정말 춥습니다. 이거 알고 꼭 지으세요.


이번 주택에 거주하는 주 인원은 2명입니다. 건물 평수가 크기 때문에 4인 가족이라고 생각하셨던 분들도 계실 건데요. 규모는 있지만 정말로 은퇴 후 전원생활하실 두 분만을 위한 공간으로 내부를 구성했습니다.


현관을 진입하면 완전히 분리된 거실과 주방 공간을 만날 수 있으며, 1층 서재 공간을 북쪽에 위치시켜 좋은 남향의 햇살을 거실과 주방이 거르게 받을 수 있도록 하였습니다.


땅이 한정적이기 때문에 모든 실들을 남향에 놓을 수 없습니다. 중요도에 따라 남향에 놓을 실과 그렇지 않은 실을 구분해 놓는 것이 좋습니다.


2층이 메인 주거공간입니다. 침실과 드레스룸, 그리고 넓은 화장실까지. 이런 구성은 주택에서 많이 활용하지는 않는데, 이번 주택에서는 화장실 부분을 호텔급의 퀄리티와 구성으로 공간을 만들어 냈습니다.


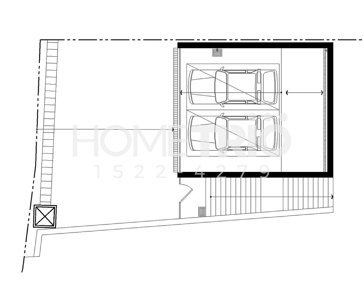
아! 지하주차장 이야기를 안 했네요. 지하주차장의 경우 2대를 완전히 넣을 수 있는 공간으로 설계했으며, 약간의 여유공간을 더 두어 차가 없을 때 다목적 공간으로 활용될 수 있도록 하였습니다. 지하주차장은 실내공간이 아닙니다. 법적으로 야외 공간이 맞으며, 정면부 자동 셔터를 통해 외기를 어느 정도 차단할 수 있습니다.


차 한 대의 면적이 5평 정도 됩니다. 2대를 주차하기 위해서는 최소 10평의 공간이 필요하며, 세차 및 자동 셔터가 완전히 닫히게 하려면 최소 15평 이상의 공간이 필요합니다. 이번 주택에서는 17평 정도의 공간을 만들어 주었기 때문에 넉넉한 지하주차장 공간이라고 할 수 있습니다.


시골에 짓는 집이라고 아무한테나 설계 의뢰하지 마세요. 특히 지역의 허가 방에 싸게 의뢰하셔서 집을 짓는 분들이 계신데요. 지금 당장은 저렴하게 보이지만 완공되었을 때 하나씩 따져보면 그것이 결코 이득이지 않다는 것을 깨닫게 되실 것입니다.


건축주님이 상상하던, 그리고 꿈꾸던 집을 지을 건축가를 꼭 찾으세요. 다 같은 건축가라고 설명드릴 수는 없을 것 같아요. 가장 근사치의 포트폴리오를 가지고 있고, 나와 마음이 가장 잘 맞는 사람을 찾으세요.


그것이 정말로 덜 고생하면서, 그리고 내 집이 잘 지어질 확률이 높은 방법이랍니다.


#무안전원주택 #철근콘크리트주택 #모던스타일 #여자마음심쿵 #취향저격

무안투시도.jpg

Floor Plan


0.b1.jpg 지하1층 평면도
1f.jpg 1층 평면도
2f.jpg 2층 평면도


이동혁 건축가 : 외관의 이미지만 보고 목조주택인 줄 아셨죠? 이제 저희 글을 꾸준히 보시는 분들은 따로 이야기를 하지 않아도 입면 이미지만 보고도 어떠한 공법으로 지은 주택인지 아시더라고요. 아마 저희들이 목조주택과 철근콘크리트 주택의 장점과 단점, 그리고 특징들을 하도 이야기해서 그런 것 같습니다. 이러한 반응은 매우 좋은 방향성이라 생각합니다. 어떠한 공법이던 일단 누수가 발생되지 않는 설계안으로 만들어 내는 것이 가장 좋습니다. 하자가 발생될 수 있는 여지를 남겨두고 시공적인 부분에서 해결하려고 하면, 지금 당장이야 문제없지만 5년 후에는(?). 네, 결국 터질 건 터지겠죠. 여러분들도 집을 설계할 때 디자인도 당연히 중요하지만 꼭 하자가 발생되지 않는 설계를 해야 한다는 것! 기억하세요.

창문에 매우 많은 집이라 설명드리고 싶네요. 각 면에 가구가 배치되지 않는 모든 면에 창문을 내었다고 해도 과언이 아닐 정도로 많은 창문이 배치된 주택입니다. 채광은 전원주택의 제1 조건입니다. 조명도 좋지만 자연채광만 한 것은 없습니다. 자연채광이 집 안에 들어와야 따스한 온기가 항상 감돌고, 밝은 기운이 항상 맴돌기 때문에 자연적으로 기분도 좋아지게 됩니다. 추위 때문에 창을 작게 내거나 아예 안 내시려고 하시는 분들이 계세요. 물론 이해는 하지만 어둡고 칙칙한 느낌보다는 밝은 느낌으로 공간을 만들어 내는 것이 무조건 좋다고 이야기드리고 싶네요.


임성재 건축가 : 은퇴 후 두 분만 거주하시는 집이기 때문에 4인 가족에 맞춘 공간 설계가 아니라 정말 두 분만이 살 집으로 계획했습니다. 1층에 작은 방 하나와 2층에 손님방 하나. 그리고 드레스룸과 넓은 화장실. 솔직히 단순 평면만 본다면 주생활 공간의 주택이 아니라 펜션이나 리조트의 느낌을 받을 겁니다. 많은 사람이 들어와서 사는 집이 아닌 건축주님 내외분만 거주하시는 집이기 때문에 그에 따른 라이프스타일을 적용하여 설계를 하였고, 호텔식의 편리한 공간 구성을 집에 넣어주었기 때문에 사용감에 있어서 불편함을 거의 못 느끼실 거라 생각합니다. 평면을 구성하는데 정답은 없습니다. 그 공간 안에서 생활하는 사람이 만족하고 편해하는 공간이라면 그것이 데드 스페이스를 많이 만들어 내는 구성이라 할지라도 그것이 맞는 설계라고 이야기드리고 싶습니다.

무안투시도.jpg
메스1.jpg
메스2.jpg
메스3.jpg
메스4.jpg
메스5.jpg
무안투시도.jpg

[집이라는 본질적인 가치에 집중하다.]

설계, 시공 : 홈트리오(주), 듀밀리언(주)

상담문의 : sunsutu@hanmail.net(대표번호 : 1522-1035 / 문자상담 : 010-6889-9770 / 문의가 너무 많아 전화가 안 될 수 있습니다. 문자로 내용 남겨주시면 늦더라도 상담드릴게요.^^)

ARTIST : 건축가 이동혁, 임성재

듀밀리언 프로필.jpg

홈페이지

: https://dewmillion.kr/ <-듀밀리언 종합건설

: http://spacemillion.kr <-ai 스페이스 밀리언

스페이스밀리언 ai.jpg

<듀밀리언 집짓기 영상>


1. 듀밀리언 완공주택 - 전남 순천 50평 목조주택 완공 둘러보기(전원주택 집짓기)

https://www.youtube.com/watch?v=xONUa-8sUbA&list=PLIpsbWPaay95I-_T5JGIv4Mp3-HeatJnl

2. 듀밀리언 완공주택 - 53평 충남 금산 전원주택 톺아보기(전원주택 집짓기)

https://www.youtube.com/watch?v=3I7pEJ5a4WA&list=PLIpsbWPaay95I-_T5JGIv4Mp3-HeatJnl&index=2

3. 56평 충남 논산 듀밀리언 완공주택 톺아보기 - 전원주택 집짓기

https://www.youtube.com/watch?v=A-p9DW9xlac&list=PLIpsbWPaay95I-_T5JGIv4Mp3-HeatJnl&index=3

4. 44평 강원 양양 듀밀리언 완공주택 톺아보기 - 전원주택 집짓기

https://www.youtube.com/watch?v=rsy2ld3DSFE&list=PLIpsbWPaay95I-_T5JGIv4Mp3-HeatJnl&index=45.

5. 듀밀리언 일산 풍동 애니아트힐즈 73평 목조 단독주택 완공 톺아보기(전원주택 집짓기)

https://www.youtube.com/watch?v=fjQlAE2hloU&list=PLIpsbWPaay95I-_T5JGIv4Mp3-HeatJnl&index=5

6. 듀밀리언 경북 상주 52평 목조 전원주택 완공 톺아보기(전원주택 집짓기)

https://www.youtube.com/watch?v=haAsuLN21pQ&list=PLIpsbWPaay95I-_T5JGIv4Mp3-HeatJnl&index=6

7. 듀밀리언 완주 삼례읍 76평 목조 전원주택 완공 톺아보기(전원주택 집짓기)

https://www.youtube.com/watch?v=PH10Z8J_jgc&list=PLIpsbWPaay95I-_T5JGIv4Mp3-HeatJnl&index=7

8. 듀밀리언 세종시 장군면 57평 목조 전원주택 완공 톺아보기(전원주택 집짓기)

https://www.youtube.com/watch?v=WleLIuA1ccA&list=PLIpsbWPaay95I-_T5JGIv4Mp3-HeatJnl&index=8

9. 듀밀리언 세종시 도담동 56평 목조 단독주택 완공 톺아보기(전원주택 집짓기)

https://www.youtube.com/watch?v=fXDoVHCridA&list=PLIpsbWPaay95I-_T5JGIv4Mp3-HeatJnl&index=13

10. 듀밀리언 일산 풍동 애니아트힐즈 67평 도심형 단독주택 완공 톺아보기(전원주택 집짓기)

https://www.youtube.com/watch?v=X8RMQBBaSYc&list=PLIpsbWPaay95I-_T5JGIv4Mp3-HeatJnl&index=25


keyword