brunch

'세컨하우스 로망' 순천 51평 전원주택 둘러보기

살고 싶은 전원주택 시리즈 #130 - 이동혁건축가

by 이동혁 건축가

작은집을 짓는 전원주택 건축가입니다.*^^*

제 글을 읽어주시는 모든분들께 감사인사를 전합니다.


작은집은 대부분의 건설사들이 꺼려하는 분야입니다. 시간대비 수익이 엄청 적거든요.

하지만 저희들은 수익보다는 저희들이 재미있고 보람되는 일을 하기로 결정 했습니다.


그러한 결정이 10년 이라는 시간동안 작은 전원주택을 짓는 건축가로서 살아올 수 있었던 원동력이었던 것 같습니다.


앞으로도 큰 집 보다는 작은 집을 짓는 건축가들로 남을 생각입니다.

저희들 도움이 필요한 곳이라면 어디든 달려갈 생각입니다. 1년에 30채만 짓는 저희들의 기준은 앞으로도 계속 될 예정이에요.


브런치와 유튜브를 통해 저희들의 작품을 계속 올려드릴테니, 여러분들의 집짓기에 조금이나마 도움이 되길 바랍니다.


감사합니다.*^^*


제목 : '세컨하우스 로망' 순천 51평 전원주택 프로젝트(오늘의 전원주택)

소제목 : 살고 싶은 전원주택 시리즈 #130 - 이동혁건축가


*구독 버튼은 필수인 것 다들 아시죠^^

Screenshot 2025-09-15 at 09.07.07.JPG

SPEC


공법 : 경량목구조

설계, 시공 : 듀밀리언(주) / 상담문의 : sunsutu@hanmail.net(대표번호 : 1522-1035 / 문자상담 : 010-6889-9770 / 문의가 너무 많아 전화가 안 될 수 있습니다. 문자로 내용 남겨주시면 늦더라도 상담드릴께요.^^)

홈페이지 상담 문의 : https://dewmillion.kr/%EB%AC%B8%EC%9D%98

ARTIST : 건축가 이동혁, 임성재

홈페이지 : https://dewmillion.kr/<-듀밀리언 종합건설

지붕마감재 : 아스팔트슁글 / 외벽 마감재 : 스타코플렉스 / 포인트자재 : 파벽돌

실내벽마감재 : 실크벽지 / 실내바닥마감재 : 이건 강마루

창호재 : 이건 알루미늄 3중 시스템창호

건축면적 : 170.51㎡(1층 : 117.72㎡, 2층 : 52.79㎡)

예상 총 건축비 : 382,500,000원(부가세 포함, 산재보험료 포함 / 설계비, 인허가비, 구조계산 설계비 별도)

설계비 : 12,750,000원(부가세 포함) / 인허가비 : 5,100,000원(부가세 포함)

구조계산 설계비 : 5,100,000원(부가세 포함) / 인테리어 설계비 : 7,650,000원(부가세 포함)

*건축비 외 부대비용 : 대지구입비, 가구(싱크대, 신발장, 붙박이장), 기반시설 인입(수도, 전기, 가스 등), 토목공사, 조경비 등

*건축비 기준은 25년 09월 15일 기준 금액입니다.


STORY


듀밀리언의 색이 잘 묻어나는 집으로 설계가 완료되었습니다. 듀밀리언의 색은 '가성비'+'실용성'입니다. 화려하게 설계하는 것은 오히려 쉽습니다. 돈 생각 안 하고 좋다고 하는 거 다 가져다 사용하면 되니까요. 오히려 한정된 예산 안에서 설계하는 것이 배는 더 어렵습니다.


건축주님의 일생에 한 번 짓는 집인데 계속 대출과 빚을 얻으라고 할 수 없잖아요. 처음 계획하신 예산 범위 안에서 원하시는 구성요소를 최대한 반영해지어 드리는 것이 저희들의 목표라고 할 수 있습니다.


이 집은 기본 마감 자재를 적재적소에 잘 활용하여 설계한 집입니다. 스타코플렉스 베이스에 파벽돌을 포인트 조합하고, 박공지붕에 매스적으로 꺾인 각도 변화를 주어 입체감을 부여해 주었습니다.


박공지붕을 구성하실 때에는 지붕을 안 보이게 하는 것보다는 최대한 각도를 주어 지붕면이 보이게 하는 것이 좋습니다. 그래야 집이 더 커 보이거든요. 집은 작아 보이는 것보다는 무조건 커 보이게 디자인하는 것이 더 좋습니다.


'ㄱ'형 배치는 주택 생활상에 있어서 매우 유리한 배치라고 할 수 있습니다. 박스형으로만 구성하면 어느 공간은 해가 안 들어갈 수밖에 없습니다. 하지만 이렇게 좌, 우로 펼치고 'ㄱ'형으로 집을 배치하면 집구석구석 모든 공간에 해가 들어갈 수 있습니다. 또한 환기도 잘 될 수밖에 없고요.


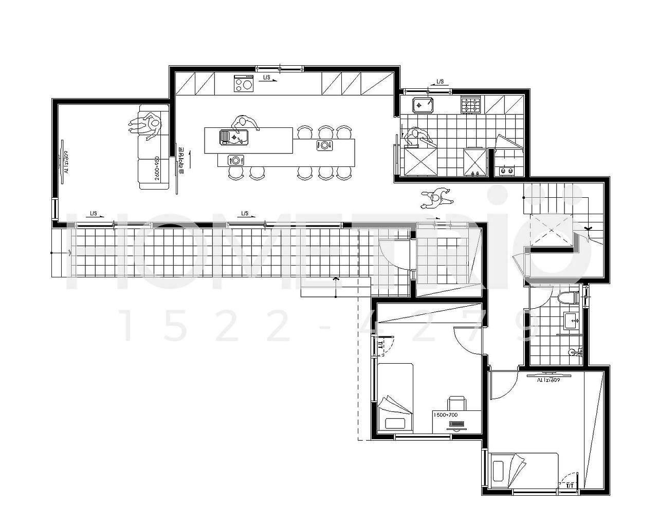
평면을 좀 이야기드릴게요. 현관을 집 중심에 두었습니다. 데크를 넓게 설치하여 진입에 있어서 편리성을 유도했고, 'ㄱ'형으로 겹쳐지는 부분에 2층 매스를 1층보다 튀어나오게 설계하여 자연스럽게 처마 형태의 공간이 생겨날 수 있도록 했습니다. 이 정도의 처마공간만 있어도 비 올 때 창문 열어도 훨씬 더 비가 덜 들이치게 됩니다. 당연히 포치는 1평 만들어 두었습니다.


현관을 통해 집에 진입하면 'ㄱ'형으로 구성된 독특한 느낌의 복도 공간을 만날 수 있을 거예요. 이 공간이 공용공간인 거실, 주방과 침실 공간을 구분하는 역할을 하게 됩니다. 꼭 벽을 구성해야 영역성이 나뉘는 것이 아닙니다. 이렇게 시각적으로 꺾이는 부분만 만들어도 실내에서 체감하는 공간은 구분되어 인식됩니다.


주방이 엄청 큽니다. 오히려 거실이 엄청 작게 느껴집니다. 식구가 많은 집이기 때문에 주방과 식사를 할 수 있는 식당 공간에 많은 부분을 할애해 주었습니다. 주방이 정말 '악' 소리 날 정도로 멋지고 예쁘게 구성될 거예요.


2층은 방 2개와 작은 가족실을 하나 만들어 주었습니다. 가족실은 복도와 연계하여 조금 더 면적을 준 것인데요. 이렇게 작은 공간이지만 작은 테이블을 놓고 차 한잔의 여유를 가질 수 있는 공간이랍니다.


침실은 크게 구성하기보다는 침대와 붙박이장 정도 들어갈 수 있도록 설계했습니다. 주목적 자체가 잠을 자고 책을 읽은 공간 정도이기 때문에 과하게 면적을 배분하지 않았습니다. 당연히 2층도 화장실을 하나 구성했습니다. 화장실은 층별로 있는 것이 사용상에 좋습니다.


이번 주택 어떠셨나요? 마음에 드는 설계안이었나요? 클래식함의 멋과 'ㄱ'형 배치의 집을 원하신다면 오늘 주택을 눈여겨보시면 좋을 것 같아요.



Floor Plan


1f.jpg 1층 평면도
2f.jpg 2층 평면도


이동혁 건축가 : 집이 커 보이죠. 아마 51평의 주택보다 외관에서 보이는 느낌이 더 크게 느껴지실 거예요. 실제로 지어지고 보면 이 주택의 규모는 60평을 넘어서는 느낌이 날 거예요. 가장 핵심이 '건물의 입체감'입니다. 박스로 지어놓고 보는 것과 좌, 우로 길게 집을 배치해 지은 것과의 느낌은 완전히 다르거든요. 이 집은 51평이라는 면적으로 지어졌지만 'ㄱ'배치를 집에 적용하면서 집의 볼륨감과 입체감이 극대화되는 효과를 누리게 되었습니다. 도심에서는 이렇게 못 지어요. 땅이 작기 때문에 거의 박스형으로 올리지만 도심을 벗어나서 짓는 집이라면 이번 주택처럼 좌, 우로 길게 배치하는 것도 한번 생각해 보시면 좋습니다.


임성재 건축가 : 평면을 박스형태로 구성하지 않고 이렇게 'ㄱ'형으로 배치하면 아쉬운 단점 하나가 발생합니다. 바로 이동공간인 '복도'입니다. 어쩔 수 없이 이동을 해야 하니 데드스페이스라고 불리는 복도가 생길 수밖에 없는 것이죠. 하지만 이 또한 하나의 인테리어적 효과라고 생각하신다면 데드스페이스라고 인식되지 않을 수 있습니다. 소형 평수에서는 이렇게 하면 안 돼요. 이번 주택은 51평이라는 넉넉한 면적으로 지어졌기 때문에 이러한 복도 공간마저도 예쁘게 나온 거예요. 설계할 때는 밸런스가 중요합니다. 각 공간에 할당되는 평수와 이동공간, 공용공간, 프라이빗공간 등에 어떤 비율로 배치해 줄 것이냐에 따라 이 집이 빛나보일 것인지, 아니면 애물단지로 추락할 것인지가 결정될 것입니다.


<외관>

DJI_0457(h).jpg
DJI_0459(h).jpg
DJI_0461(메인)(h).jpg
DJI_0462(h).jpg
DJI_0464(h).jpg
DJI_0466(h).jpg
IMG_0347(h).jpg
IMG_0348(h).jpg
IMG_0349(h).jpg
IMG_0350(h).jpg
IMG_0353(h).jpg
IMG_0354(h).jpg
IMG_0355(h).jpg
IMG_0356(h).jpg
IMG_0357(h).jpg
IMG_0358(h).jpg
IMG_0359(h).jpg
IMG_0360(h).jpg
IMG_0361(h).jpg
IMG_0362(h).jpg
IMG_0363(h).jpg

<거실>

IMG_0364(h).jpg
IMG_0365(h).jpg
IMG_0366(h).jpg

<주방>

IMG_0367(h).jpg
IMG_0368(h).jpg
IMG_0369(h).jpg
IMG_0370(h).jpg
IMG_0371(h).jpg

<다용도실>

IMG_0372(h).jpg
IMG_0373(h).jpg
IMG_0374(h).jpg
IMG_0375(h).jpg

<계단실>

IMG_0376(h).jpg
IMG_0377(h).jpg
IMG_0378(h).jpg
IMG_0391(h).jpg
IMG_0392(h).jpg

<1층 복도>

IMG_0379(h).jpg

<1층 방1>

IMG_0380(h).jpg
IMG_0381(h).jpg
IMG_0382(h).jpg

<1층 방2>

IMG_0383(h).jpg
IMG_0384(h).jpg
IMG_0385(h).jpg
IMG_0386(h).jpg

<1층 화장실>

IMG_0387(h).jpg
IMG_0388(h).jpg
IMG_0389(h).jpg
IMG_0390(h).jpg

<2층 가족실>

IMG_0393(h).jpg
IMG_0394(h).jpg
IMG_0395(h).jpg
IMG_0396(h).jpg

<2층 방1>

IMG_0397(h).jpg
IMG_0398(h).jpg
IMG_0399(h).jpg

<2층 방2>

IMG_0400(h).jpg
IMG_0401(h).jpg
IMG_0402(h).jpg
IMG_0403(h).jpg

<2층 화장실>

IMG_0404(h).jpg
IMG_0405(h).jpg
IMG_0406(h).jpg
IMG_0407(h).jpg

[집이라는 본질적인 가치에 집중하다.]

설계, 시공 : 듀밀리언(주)

상담문의 : sunsutu@hanmail.net(대표번호 : 1522-1035 / 문자상담 : 010-6889-9770 / 문의가 너무 많아 전화가 안 될 수 있습니다. 문자로 내용 남겨주시면 늦더라도 상담드릴게요.^^)

ARTIST : 건축가 이동혁, 임성재

wsZIwVqlewQ1MftHLHtngpfCHt0.jpg

홈페이지

: https://dewmillion.kr/ <-듀밀리언 종합건설

: http://spacemillion.kr <-ai 스페이스 밀리언

ZTX0TLVSoLUCFKMgz0FXwgPhKUY.jpg


keyword