3.내 마음에.../3.4 땅 모양 때문에 걱정인가요?

3.4 땅 모양 때문에 걱정인가요?

by 이동혁 건축가

순서대로 읽다 보면 완성되는 나의 집

꿈꾸던 전원주택을 짓다

글쓴이 : 이동혁


3. 내 마음에 드는 땅 구하기(땅 구입 편)


3.4 땅 모양 때문에 걱정인가요?


돈은 없고 땅은 가지고 싶고. 거기에 더해 집까지 짓고 싶다.

정말 많은 고민들...


"그래서 요즘 자투리 땅이라는 것이 유행이라더라."


문제는 이 땅 모양이 이상하게 생겼다는 것!


"일반적 땅 모양이 아닌 곳에 집을 지을 수 있을까?"


오늘은 이 물음에 답을 두 가지 사례를 통해 들려드리록 하겠다.


사례) 남겨진 삼각형 땅


최근 단독주택을 열망하는 사람들이 찾아 헤매는 땅이 바로 삼각형 자투리 땅이다. 우리가 흔히 생각하는 땅은 정사각형의 반듯반듯한 땅인데 삼각형에 집을 지으려고 하니 어떻게 지어야 할지 막막하기만 하다.


아래의 대상지가 최근에 내가 진행한 삼각형 땅의 모양이다.

어떤가? 쉽게 집을 짓고자 마음먹을 수 있겠는가?

그림 32.jpg

솔직히 일반적인 형태의 땅이 아닌 유니크한 땅이 의뢰 들어오게 되면 나뿐만 아니라 우리 프로젝트 팀 전체가 긴장을 하기 시작한다. 잘 못 해석하고 풀어냈다가는 정말 죽도 밥도 안 되는 형태가 나와버리기 때문이다.


우리 팀은 한 문제씩 풀어가면서 위의 대지를 해석해 냈다.


그림 33.jpg


뒷 집과의 법적 이격거리를 띄우고 주변으로도 기본적인 이격거리를 띄운 뒤 최대한 모든 면적에 집을 배치하는 안으로 프로젝트를 진행시켰다. 땅이 워낙 작았기 때문에 최대한 면적을 다 찾아먹는 방법을 택해야만 했다.


그림 34 -1층.jpg 1층 평면도

길 쪽으로 최대한 붙이되 가벽을 통해 자연적인 담장이 형성될 수 있도록 하였다. 어찌 보면 가장 적은 비용으로 큰 효과를 낼 수 있는 방법을 찾은 것이었다.


거실과 식당 공간은 위압감이 들지 않도록 최대한 직선을 이용하여 공간을 구성하였고 주방과 다용도실을 자연스럽게 각도를 주어 데드 스페이스 없이 모든 공간을 찾아 먹을 수 있도록 하였다.


땅이 이상하다고 느끼지 않게 하기 위해서는 현관을 통해서 집에 들어왔을 때 느끼는 첫번째 시각을 최대한 거부감 없이 잡아주어야 한다는 데에 있다.


이번 설계 프로젝트에서는 현관을 통해 집에 들어왔을 때 최대한 오픈된 공간감을 주어 경사로 꺾여 있는 면을 위압감이 들지 않게 하였으며, 주방과 다용도실이라는 공간을 자연스럽게 연결시켜 자투리 땅이 아니라 마치 일반적인 사각형 땅에 집이 앉혀진 느낌이 들 수 있도록 하였다.


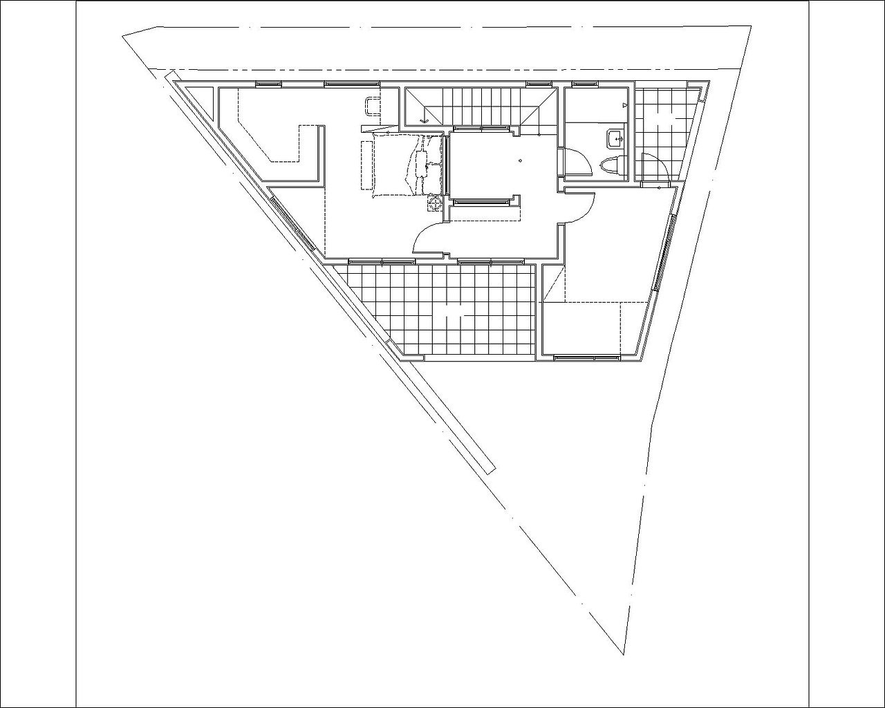
그림 35 -2층.jpg 2층 평면도


계단을 통해 2층에 올라오면 작은 복도를 통해 각 방으로 집입 할 수 있도록 동선을 구성했다. 경사가 있는 곳에는 굴곡이 있어도 어색하지 않은 드레스룸이라던지 책상, 발코니 등을 구성하고 방은 사각형 형태로 구성하여 평생 사용해 오던 방 형식과 차별성이 느껴지지 않도록 했다.


"위의 도면이 어떻게 완성되었을 것 같은가?"


"삼각형 땅에 앉혀졌으니 이상할 것 같은가?"


"결과는 여러분들 눈으로 확인해 보길 바란다."


추신 : 땅은 설계에 따라 값어치가 달라진다.

그림 31.jpg 삼각형 땅에 지은 43.5평 단독주택



(좌측부터) 정다운 건축가, 임성재 건축가, 이동혁 건축가

[집이라는 본질적인 가치에 집중하다.]

Architecture Team : 홈트리오(주)

대표번호 : 1522-4279

위치 : 경기도 성남시 분당구 운중로 141, 경창 빌딩 602호 홈트리오(주)

홈페이지 : http://hometrio.kr/

설계 사례(홈페이지) : http://hometrio.kr/designcase/


글쓴이 : 이동혁 건축가

이메일 : sunsutu@hanmail.net

책 : '따뜻한 전원주택을 꿈꾸다' 저자(http://www.yes24.com/24/goods/40516450?scode=029)

이동혁 건축가 TV : http://tv.naver.com/sunsutu1


상담 및 자문[HOMETRIO 건축가]

이동혁 건축가 : 010-4567-8413

정다운 건축가 : 010-8560-0477

임성재 건축가 : 010-9941-8899




[네이버 TV - 이동혁 건축가 TV]

*글 읽기가 어렵나요? 그럼 이제부터는 영상으로 확인하세요.^^


1. 내 집 짓기의 시작-인트로 : http://tv.naver.com/v/1429784

2. 전원주택 짓기 1차 강연 영상 : http://tv.naver.com/v/1431765

3. 성공의 정석 '꾼' 이동혁 대표 : http://tv.naver.com/v/1434375

4. 전원주택 공법. 무엇으로 지으면 좋을까요? : http://tv.naver.com/v/1436122

5. 전원주택 짓기. 예산 잡는 법! : http://tv.naver.com/v/1446575

6. 전원주택. 왜 품질에 대해 말이 많을까? : http://tv.naver.com/v/1451485

7. 내 집짓기. 언제부터 준비해야 할까요? : http://tv.naver.com/v/1473650

8. 내 땅에 몇 평까지 집을 지을 수 있나요? : http://tv.naver.com/v/1473658

9. 전원주택 지방은 공사비가 더 비싸나요? : http://tv.naver.com/v/1479534

10. 전원주택 AS는 어떻게 진행되고 몇 년까지 보증되나요? : http://tv.naver.com/v/1479537

11. 전원주택 단층과 2층으로 지을 때 비용 차이가 많이 있나요? : http://tv.naver.com/v/1479547

12. 전원주택 성토한 땅에 바로 시공할 수 있나요? : http://tv.naver.com/v/1479558

13. 강화도 이강리 전원주택. 오픈하우스 현장 : http://tv.naver.com/v/1497662

14. 전원주택에 스타코플렉스를 왜 사용하나요? : http://tv.naver.com/v/1599468

15. 전원주택 데크에 대해 알려주세요. : http://tv.naver.com/v/1599480

16. 집짓기 착공 전 준비사항은 어떻게 되나요? : http://tv.naver.com/v/1599505

17. 목조주택에서 가장 많이 나는 하자와 그 빈도는? : http://tv.naver.com/v/1672388

18. 조영구 트렌드 핫이슈. 전원주택 쇼핑몰 : http://tv.naver.com/v/1682435

19. 전원주택 계약 시 속지 않기 위한 방법은? : http://tv.naver.com/v/1684870

20. 전원주택 추가 공사 왜 공사 전에 미리 말하지 않나요? : http://tv.naver.com/v/1688493

21. 강화마루, 강마루, 장판 무엇이 좋나요? : http://tv.naver.com/v/1692136

22. 목조 공법으로도 3층 이상으로 높게 지을 수 있나요? : http://tv.naver.com/v/1698287

23. 목조주택 2층에 시멘트 방통 시공. 목조에 부담을 주지 않나요? : http://tv.naver.com/v/1701955

24. 전원주택 바닥 방통 없이 난방을 할 수 있는 방법이 있나요? : http://tv.naver.com/v/1728947

25. 2억 4천만 원. 경기 광주 전원주택을 소개합니다. : http://tv.naver.com/v/1732431

26. 전원주택. 철근콘크리트가 목조보다 더 튼튼할 텐데도 목조로 집을 짓는 이유가 있나요? : http://tv.naver.com/v/1735979

27. 내 땅에 흙을 마음대로 받아도 되나요? : http://tv.naver.com/v/1739333

28. 지진이 늘어나는데 중목이 아닌 경량 목구조는 약하지 않나요? : http://tv.naver.com/v/1743684

29. 땅이 낮아 성토하고 싶어요. 절차가 어떻게 되나요? : http://tv.naver.com/v/1746299

30. 전원주택. 여름 공사와 겨울 공사 단점은 어떤 게 있을까요? : http://tv.naver.com/v/1759345

31. 전원주택 회사. 정말 안전한 업체인지 확인하고 싶어요. : http://tv.naver.com/v/1766577

32. 목조주택이 몸에 좋다는데 어차피 본드나 벽지도 바르지 않나요? : http://tv.naver.com/v/1817543

33. 전원주택 브랜드 업체들의 이윤이 너무 높지 않나요? : http://tv.naver.com/v/1834510

34. 전원주택 땅을 살려는데 종류가 너무 많아요. 혹시 집을 지을 수 없는 땅도 있나요? : http://tv.naver.com/v/1862326

35. 사람들이 목조주택을 짓게 되는 계기가 있을까요? : http://tv.naver.com/v/1866671

36. 건설업체가 안전한 업체인지 알아보는 법! : http://tv.naver.com/v/1918266

37. 미국식 창호와 독일식 창호의 차이 : http://tv.naver.com/v/1934487

38. 하자이행보증증권에 대해 알아보자 : http://tv.naver.com/v/2011225

39. 제주도에 집 지을 때 주의해야 할 점 : http://tv.naver.com/v/2011251

40. 월간 홈트리오 4월호-NEW 농가주택 표준설계도 : https://www.youtube.com/watch?v=WwZjpLNUiwI&t=273s

41. 월간 홈트리오 4월호②-꿈꾸던 다락방을 갖다 : https://www.youtube.com/watch?v=r1fyjlp4N5Q&t=129s

42. 조립식 소형 전원주택. [kasita]에 대해 알아보자! : https://tv.naver.com/v/3440492

43. 전원주택. 월간 홈트리오 5월호 - 도심형 단독주택을 짓다. : https://tv.naver.com/v/3441024

44. 전원주택에서 비가 오기 전 가장 먼저 확인해야 할 사항 : https://tv.naver.com/v/3506313

45. 전원주택 지으려고 하는데 어디에 물어봐야 할까요? : https://tv.naver.com/v/3571540

46. 전원주택 아스팔트슁글 괜찮나요? : https://tv.naver.com/v/3571580

47. 전원주택 세라믹사이딩 어떤 자재인가요? : https://tv.naver.com/v/3571616



keyword